Переверните экран
Поиск домов и коттеджей

Найдите идеальный дом или коттедж в Санкт-Петербурге и области

Найдите идеальный дом или коттедж в Санкт-Петербурге и области

Перейти к поиску
Новостройки Квартиры Ипотека Медиа О проекте Контакты Реклама на сайте Vk Youtube Telegram Дзен Продавцы и застройщики Коммерческие помещения Квартиры на карте Эксперты и авторы Машиноместа Акции от застройщиков Банки и программы Апартаменты Новостройки на карте 4-комнатные и более Готовые новостройки 3-комнатные Военная ипотека Покупателю Новостройки Санкт-Петербурга Видеообзор новостроек Семейная ипотека Аналитика рынка Панорамы новостроек 1-комнатные Субсидированная застройщиком Мнение эксперта Студии Ипотечный калькулятор Новости недвижимости Новостройки Ленинградской области ИТ-ипотека Квартиры со скидками до 25% Новостройки премиум-класса Новостройки бизнес-класса Дома и коттеджи Коттеджные поселки в Санкт-Петербурге Коттеджные поселки в Ленинградской обл Готовые коттеджные поселки Строящиеся коттеджные поселки Коттеджные поселки у леса Коттеджные поселки у водоема Коттеджные поселки в ипотеку Бизнес-центры Коттеджи Ипотека со ставкой 0,1% Траншевая ипотека
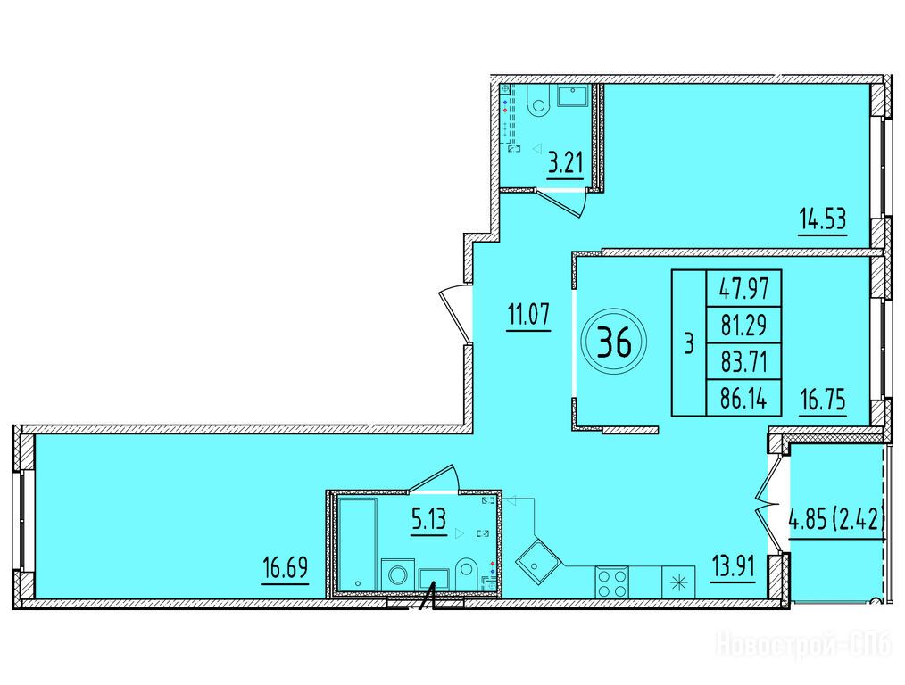
3-комн. квартира, 81.29 м2, 1 этаж
Срок сдачи 3 квартал 2026 года
16 258 000 
200 000 2
обновлено 4 мая

Описание 3-комн. квартиры

Срок ГК
3 квартал 2026 года
Общая площадь
81.29 м2
Этаж
1 / 4
Отделка
нет

Расположение 3-комн. квартиры

Локация
Метро
Купчино
14 мин.
Дом
2
Адрес
Кокколевская ул., ЖК «Образцовый квартал 17», секция 1-5

Способы покупки

Особенности

Продается трехкомнатная квартира в новостройке ЖК «Образцовый квартал 17» по адресу Санкт-Петербург, Пушкинский, Шушары пос., Кокколевская ул., ЖК «Образцовый квартал 17». Общая площадь квартиры - 81.29 кв. м. Тип проекта, по которому построен дом — Монолитно-кирпичный, компания-застройщик — СЗ «Терминал Ресурс». Стоимость квартиры — 16 258 000 руб. Способы оплаты можно уточнить у продавца. Срок сдачи — 3 квартал 2026. Более подробная информация по телефону.
Инфоцентр новостроек
Инфоцентр новостроек
+7 (812) 424-49-09
Время работы 9:00 — 21:00
студия 27,06 м2 6 148 032
Этаж 2/4
СПБ, ЖК «Образцовый квартал 17»
Купчино
14 мин.
Строится
студия 30,58 м2 6 947 776
Этаж 4/4
СПБ, ЖК «Образцовый квартал 17»
Купчино
14 мин.
Строится
студия 30,69 м2 6 800 904
Этаж 3/4
СПБ, ЖК «Образцовый квартал 17»
Купчино
14 мин.
Строится
студия 31,08 м2 6 526 800
Этаж 1/4
СПБ, ЖК «Образцовый квартал 17»
Купчино
14 мин.
Строится
Посмотреть 5 квартир в ЖК «Образцовый квартал 17»
1-комн. квартира 32,23 м2 7 322 656
Этаж 4/4
СПБ, ЖК «Образцовый квартал 17»
Купчино
14 мин.
Строится
1-комн. квартира 32,30 м2 6 976 800
Этаж 2/4
СПБ, ЖК «Образцовый квартал 17»
Купчино
14 мин.
Строится
1-комн. квартира 32,83 м2 7 458 976
Этаж 4/4
СПБ, ЖК «Образцовый квартал 17»
Купчино
14 мин.
Строится
1-комн. квартира 32,92 м2 7 295 072
Этаж 3/4
СПБ, ЖК «Образцовый квартал 17»
Купчино
14 мин.
Строится
Посмотреть 284 квартиры в ЖК «Образцовый квартал 17»
2-комн. квартира 56,40 м2 12 126 000
Этаж 3/4
СПБ, ЖК «Образцовый квартал 17»
Купчино
14 мин.
Строится
2-комн. квартира 58,36 м2 12 547 400
Этаж 3/4
СПБ, ЖК «Образцовый квартал 17»
Купчино
14 мин.
Строится
2-комн. квартира 58,71 м2 12 622 650
Этаж 3/4
СПБ, ЖК «Образцовый квартал 17»
Купчино
14 мин.
Строится
2-комн. квартира 59,09 м2 11 818 000
Этаж 1/4
СПБ, ЖК «Образцовый квартал 17»
Купчино
14 мин.
Строится
Посмотреть 5 квартир в ЖК «Образцовый квартал 17»
3-комн. квартира 76,37 м2 16 037 700
Этаж 2/4
СПБ, ЖК «Образцовый квартал 17»
Купчино
14 мин.
Строится
3-комн. квартира 77,04 м2 15 408 000
Этаж 1/4
СПБ, ЖК «Образцовый квартал 17»
Купчино
14 мин.
Строится
3-комн. квартира 78,08 м2 16 396 800
Этаж 2/4
СПБ, ЖК «Образцовый квартал 17»
Купчино
14 мин.
Строится
3-комн. квартира 78,59 м2 16 896 850
Этаж 3/4
СПБ, ЖК «Образцовый квартал 17»
Купчино
14 мин.
Строится
Посмотреть 14 квартир в ЖК «Образцовый квартал 17»

Скидки и спецпредложения от застройщиков

ЖК «Образцовый квартал 17» на карте

Выгодные предложения на новостройки

Отзывы о ЖК «Образцовый квартал 17»

Самый полезный отзыв
А
28 февраля 2025
Оценка:
Достоинства
Транспортная доступность
Социальная инфраструктура
Двор, окружение
Расположение
Заезд и выезд из комплекса просто отличные, нет пробок и задержек, что очень приятно. Месторасположение тоже приятно удивляет — все необходимое находится неподалеку, и я ценю возможность быстро добираться до работы и других важных мест.
Ответить
Самый новый отзыв
УЮ
17 декабря 2025
Оценка:
Достоинства
Планировки
Способы покупки
Двор, окружение
Расположение
Впечатляет ставка на экологию и малоэтажность: людям нравится воздух и отсутствие «высотного давления». Но даже в позитивных мнениях проскакивает оговорка про инфраструктуру — не всё ещё дозрело, и за это, честно, немного обидно при не самой низкой цене. Я бы рассматривала, если важнее качество среды и тишина, чем «всё под боком прямо сейчас».
Ответить

Оставить отзыв

Добавьте отзыв, заполнив личные данные, или сначала войдите на сайт, тогда информация будет автоматически взята из личного профиля.
Оценка*