Переверните экран
Поиск бизнес центров

Найдите современный офис в деловых районах Санкт-Петербурга

Найдите современный офис в деловых районах Санкт-Петербурга

Перейти к поиску
Новостройки Квартиры Ипотека Медиа О проекте Контакты Реклама на сайте Vk Youtube Telegram Дзен Продавцы и застройщики Коммерческие помещения Квартиры на карте Эксперты и авторы Машиноместа Акции от застройщиков Банки и программы Апартаменты Новостройки на карте 4-комнатные и более Готовые новостройки 3-комнатные Военная ипотека Покупателю Новостройки Санкт-Петербурга Видеообзор новостроек Семейная ипотека Аналитика рынка Панорамы новостроек 1-комнатные Субсидированная застройщиком Мнение эксперта Студии Ипотечный калькулятор Новости недвижимости Новостройки Ленинградской области ИТ-ипотека Квартиры со скидками до 25% Новостройки премиум-класса Новостройки бизнес-класса Дома и коттеджи Коттеджные поселки в Санкт-Петербурге Коттеджные поселки в Ленинградской обл Готовые коттеджные поселки Строящиеся коттеджные поселки Коттеджные поселки у леса Коттеджные поселки у водоема Коттеджные поселки в ипотеку Бизнес-центры Коттеджи Ипотека со ставкой 0,1% Траншевая ипотека
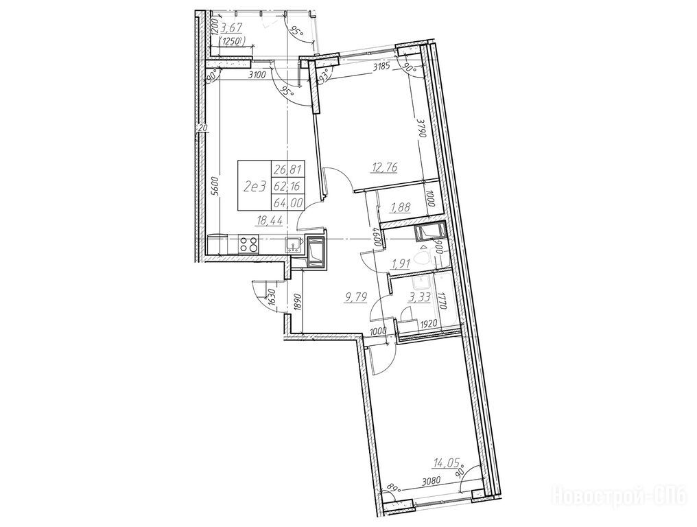
3-комн. квартира, 64.00 м2, 9 этаж
Срок сдачи 2 квартал 2026 года
9 268 056 
144 813 2
обновлено 21 мая

Описание 3-комн. квартиры

Новостройка
Срок ГК
2 квартал 2026 года
Тип проекта
Общая площадь
64.00 м2
Этаж
9 / 22
Отделка
нет

Расположение 3-комн. квартиры

Метро
Ж/Д-станция
Дом
1
Адрес
ул. Оборонная, уч. 31/1

Способы покупки

Особенности

Продается трехкомнатная квартира в новостройке ЖК «Левитан» по адресу Ленинградская область, Всеволожский район, Мурино, Мурино, ул. Оборонная, уч. 31/1. Общая площадь квартиры - 64 кв. м. Тип проекта, по которому построен дом — Монолит, компания-застройщик — ЛенОблАИЖК. Стоимость квартиры — 9 268 056 руб. Способы оплаты можно уточнить у продавца. Срок сдачи — 2 квартал 2026. Более подробная информация по телефону.
Инфоцентр новостроек
Инфоцентр новостроек
+7 (812) 424-49-09
Время работы 9:00 — 21:00

Похожие квартиры в ЖК «Левитан»

4 этаж
из 22 2 квартал 2026
Ленинградская область, Мурино
Девяткино
21 мин.
1
Корпус
нет
Отделка
2.75 м
Потолки
ЖК «Левитан»
9 268 056
ВТБ, СберБанк, ДОМ.РФ, Банк Россия, Т-Банк, Промсвязьбанк, Россельхозбанк, Абсолют Банк
6.00%
Ставка
20.10%
Первый взнос
от 55 567 /мес.
Все варианты
8 этаж
из 22 2 квартал 2026
Ленинградская область, Мурино
Девяткино
21 мин.
1
Корпус
нет
Отделка
2.75 м
Потолки
ЖК «Левитан»
9 268 056
ВТБ, СберБанк, ДОМ.РФ, Банк Россия, Т-Банк, Промсвязьбанк, Россельхозбанк, Абсолют Банк
6.00%
Ставка
20.10%
Первый взнос
от 55 567 /мес.
Все варианты
6 этаж
из 22 2 квартал 2026
Ленинградская область, Мурино
Девяткино
21 мин.
1
Корпус
нет
Отделка
2.75 м
Потолки
ЖК «Левитан»
9 268 056
ВТБ, СберБанк, ДОМ.РФ, Банк Россия, Т-Банк, Промсвязьбанк, Россельхозбанк, Абсолют Банк
6.00%
Ставка
20.10%
Первый взнос
от 55 567 /мес.
Все варианты
10 этаж
из 22 2 квартал 2026
Ленинградская область, Мурино
Девяткино
21 мин.
1
Корпус
нет
Отделка
2.75 м
Потолки
ЖК «Левитан»
9 268 056
ВТБ, СберБанк, ДОМ.РФ, Банк Россия, Т-Банк, Промсвязьбанк, Россельхозбанк, Абсолют Банк
6.00%
Ставка
20.10%
Первый взнос
от 55 567 /мес.
Все варианты
7 этаж
из 22 2 квартал 2026
Ленинградская область, Мурино
Девяткино
21 мин.
1
Корпус
нет
Отделка
2.75 м
Потолки
ЖК «Левитан»
9 268 056
ВТБ, СберБанк, ДОМ.РФ, Банк Россия, Т-Банк, Промсвязьбанк, Россельхозбанк, Абсолют Банк
6.00%
Ставка
20.10%
Первый взнос
от 55 567 /мес.
Все варианты
5 этаж
из 22 2 квартал 2026
Ленинградская область, Мурино
Девяткино
21 мин.
1
Корпус
нет
Отделка
2.75 м
Потолки
ЖК «Левитан»
9 268 056
ВТБ, СберБанк, ДОМ.РФ, Банк Россия, Т-Банк, Промсвязьбанк, Россельхозбанк, Абсолют Банк
6.00%
Ставка
20.10%
Первый взнос
от 55 567 /мес.
Все варианты
студия 24,74 м2 4 230 198
Этаж 22/22
ЛО, ЖК «Левитан»
Девяткино
21 мин.
Строится
студия 24,80 м2 4 240 971
Этаж 21/22
ЛО, ЖК «Левитан»
Девяткино
21 мин.
Строится
студия 24,83 м2 4 212 243
Этаж 21/22
ЛО, ЖК «Левитан»
Девяткино
21 мин.
Строится
студия 24,97 м2 4 258 926
Этаж 21/22
ЛО, ЖК «Левитан»
Девяткино
21 мин.
Строится
Посмотреть 277 квартир в ЖК «Левитан»
1-комн. квартира 37,90 м2 5 772 375
Этаж 17/22
ЛО, ЖК «Левитан»
Девяткино
21 мин.
Строится
1-комн. квартира 38,03 м2 6 288 815
Этаж 19/22
ЛО, ЖК «Левитан»
Девяткино
21 мин.
Строится
1-комн. квартира 38,09 м2 6 679 945
Этаж 4/22
ЛО, ЖК «Левитан»
Девяткино
21 мин.
Строится
1-комн. квартира 38,26 м2 5 825 925
Этаж 14/22
ЛО, ЖК «Левитан»
Девяткино
21 мин.
Строится
Посмотреть 41 квартира в ЖК «Левитан»
2-комн. квартира 38,61 м2 6 417 630
Этаж 7/22
ЛО, ЖК «Левитан»
Девяткино
21 мин.
Строится
2-комн. квартира 38,62 м2 5 866 875
Этаж 21/22
ЛО, ЖК «Левитан»
Девяткино
21 мин.
Строится
2-комн. квартира 38,66 м2 6 812 755
Этаж 20/22
ЛО, ЖК «Левитан»
Девяткино
21 мин.
Строится
2-комн. квартира 38,71 м2 5 926 725
Этаж 19/22
ЛО, ЖК «Левитан»
Девяткино
21 мин.
Строится
Посмотреть 279 квартир в ЖК «Левитан»
3-комн. квартира 53,27 м2 7 684 614
Этаж 17/22
ЛО, ЖК «Левитан»
Девяткино
21 мин.
Строится
3-комн. квартира 55,59 м2 7 991 760
Этаж 21/22
ЛО, ЖК «Левитан»
Девяткино
21 мин.
Строится
3-комн. квартира 56,16 м2 8 082 711
Этаж 22/22
ЛО, ЖК «Левитан»
Девяткино
21 мин.
Строится
3-комн. квартира 56,51 м2 8 142 351
Этаж 22/22
ЛО, ЖК «Левитан»
Девяткино
21 мин.
Строится
Посмотреть 273 квартиры в ЖК «Левитан»
4-комн. квартира 74,71 м2 10 209 812
Этаж 22/22
ЛО, ЖК «Левитан»
Девяткино
21 мин.
Строится
4-комн. квартира 75,35 м2 10 299 188
Этаж 5/22
ЛО, ЖК «Левитан»
Девяткино
21 мин.
Строится
4-комн. квартира 75,93 м2 10 380 185
Этаж 2/22
ЛО, ЖК «Левитан»
Девяткино
21 мин.
Строится
4-комн. квартира 75,95 м2 10 382 978
Этаж 14/22
ЛО, ЖК «Левитан»
Девяткино
21 мин.
Строится
Посмотреть 28 квартир в ЖК «Левитан»

Скидки и спецпредложения от застройщиков

ЖК «Левитан» на карте

Выгодные предложения на новостройки

Отзывы о ЖК «Левитан»

Самый полезный отзыв
МС
21 января 2023
Оценка:
Достоинства
Экология
Планировки
Двор, окружение
Выбирая из 3 ЖК выбрал Левитан. Нравится район, хоть и далековато от метро зато река и пляж рядом. По ценнику устраивает, квартира студия, но по планировке удачная, правильной формы, метраж нормальный.
Ответить
Самый новый отзыв
А
28 февраля
Оценка:
Качество жилья хорошее, но некоторые рабочие моменты еще требуют доработки. Ждем завершения всех работ по благоустройству территории
Ответить

Оставить отзыв

Добавьте отзыв, заполнив личные данные, или сначала войдите на сайт, тогда информация будет автоматически взята из личного профиля.
Оценка*