Переверните экран
Поиск домов и коттеджей

Найдите идеальный дом или коттедж в Санкт-Петербурге и области

Найдите идеальный дом или коттедж в Санкт-Петербурге и области

Перейти к поиску
Новостройки Квартиры Ипотека Медиа О проекте Контакты Реклама на сайте Vk Youtube Telegram Дзен Продавцы и застройщики Коммерческие помещения Квартиры на карте Эксперты и авторы Машиноместа Акции от застройщиков Банки и программы Апартаменты Новостройки на карте 4-комнатные и более Готовые новостройки 3-комнатные Военная ипотека Покупателю Новостройки Санкт-Петербурга Видеообзор новостроек Семейная ипотека Аналитика рынка Панорамы новостроек 1-комнатные Субсидированная застройщиком Мнение эксперта Студии Ипотечный калькулятор Новости недвижимости Новостройки Ленинградской области IT-ипотека Квартиры со скидками до 25% Новостройки премиум-класса Новостройки бизнес-класса Дома и коттеджи Бизнес-центры Бизнес-центры в Санкт-Петербурге Бизнес-центры рядом с метро Строящиеся бизнес-центры Бизнес-центры класса A
3-комн. квартира, 100.20 м2, 11 этаж
Срок сдачи 2 квартал 2028 года
73 757 220 
736 100 2
обновлено 5 декабря

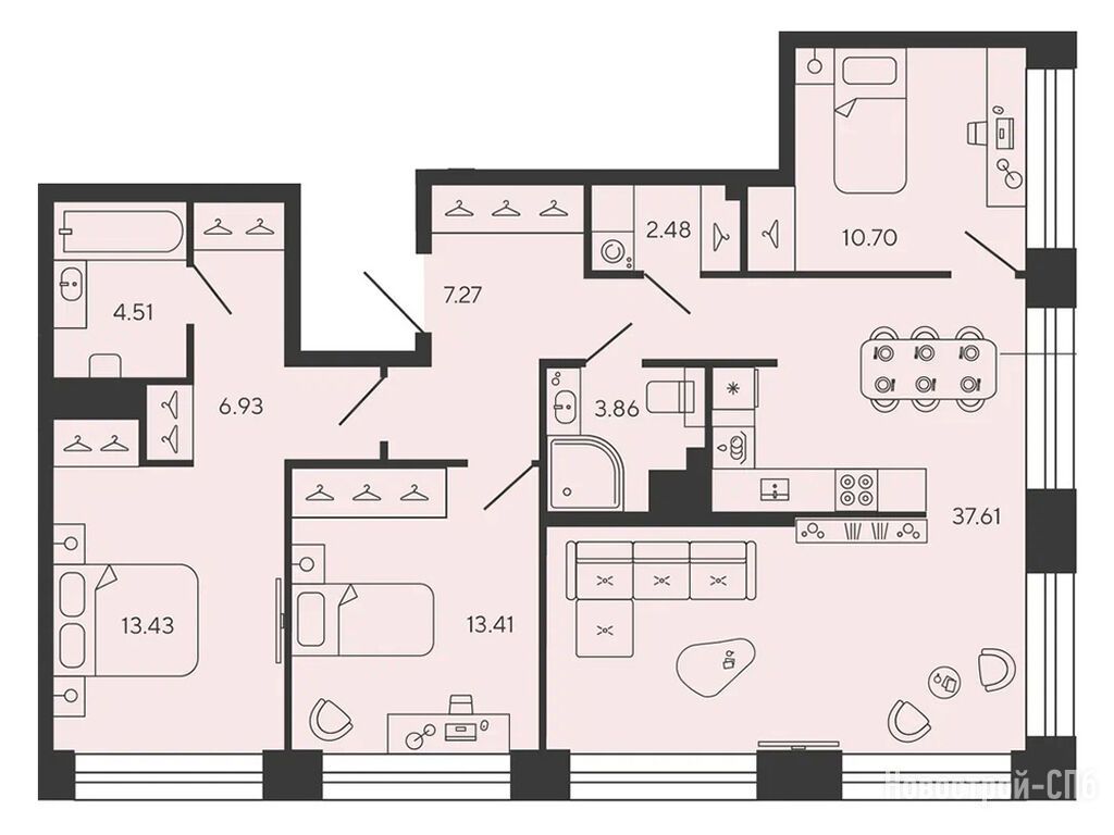
Описание 3-комн. квартиры

Застройщик
Срок ГК
2 квартал 2028 года
Стадия строительства
котлован/фундамент
Тип проекта
Общая площадь
100.20 м2
Жилая площадь
37.54 м2
Площадь кухни
37.61 м2
Этаж
11 / 19
Отделка
чистовая

Расположение 3-комн. квартиры

Дом
Titan
Адрес
Невская губа, участок 12, (западнее Васильевского острова, квартал 10), секция 1

Особенности

Продается трехкомнатная квартира в новостройке ЖК Bashni Element (Башни Элемент) по адресу Санкт-Петербург, Василеостровский, Невская губа, участок 12, (западнее Васильевского острова, квартал 10). Общая площадь квартиры - 100.2 кв. м. Тип проекта, по которому построен дом — Монолит, компания-застройщик — Element Development. Стоимость квартиры — 73 757 220 руб. Способы оплаты можно уточнить у продавца. Срок сдачи — 2 квартал 2028. Более подробная информация по телефону.
Инфоцентр новостроек
Инфоцентр новостроек
+7 (812) 424-49-09
Время работы 9:00 — 21:00

Похожие квартиры в ЖК Bashni Element

15 этаж
из 19 2 квартал 2028
Санкт-Петербург, Санкт-Петербург
Приморская
11 мин.
Titan
Корпус
чистовая
Отделка
2.85 м
Потолки
ЖК Bashni Element (Башни Элемент)
74 523 750
Посмотреть все спецпредложения
1-комн. квартира 23,15 м2 11 708 113
Этаж 4/22
СПБ, ЖК Bashni Element (Башни Элемент)
Приморская
11 мин.
Строится
1-комн. квартира 24,21 м2 17 615 196
Этаж 20/20
СПБ, ЖК Bashni Element (Башни Элемент)
Приморская
11 мин.
Строится
1-комн. квартира 24,27 м2 12 274 553
Этаж 15/20
СПБ, ЖК Bashni Element (Башни Элемент)
Приморская
11 мин.
Строится
1-комн. квартира 24,37 м2 11 682 978
Этаж 5/22
СПБ, ЖК Bashni Element (Башни Элемент)
Приморская
11 мин.
Строится
Посмотреть 90 квартир в ЖК Bashni Element
2-комн. квартира 47,01 м2 20 258 960
Этаж 4/22
СПБ, ЖК Bashni Element (Башни Элемент)
Приморская
11 мин.
Строится
2-комн. квартира 47,85 м2 21 393 735
Этаж 7/19
СПБ, ЖК Bashni Element (Башни Элемент)
Приморская
11 мин.
Строится
2-комн. квартира 47,95 м2 26 370 103
Этаж 3/22
СПБ, ЖК Bashni Element (Башни Элемент)
Приморская
11 мин.
Строится
2-комн. квартира 48,21 м2 21 595 670
Этаж 3/20
СПБ, ЖК Bashni Element (Башни Элемент)
Приморская
11 мин.
Строится
Посмотреть 48 квартир в ЖК Bashni Element
3-комн. квартира 68,22 м2 46 389 600
Этаж 4/19
СПБ, ЖК Bashni Element (Башни Элемент)
Приморская
11 мин.
Строится
3-комн. квартира 74,74 м2 59 081 970
Этаж 15/18
СПБ, ЖК Bashni Element (Башни Элемент)
Приморская
11 мин.
Строится
3-комн. квартира 75,51 м2 57 508 416
Этаж 3/18
СПБ, ЖК Bashni Element (Башни Элемент)
Приморская
11 мин.
Строится
3-комн. квартира 83,06 м2 34 947 495
Этаж 5/20
СПБ, ЖК Bashni Element (Башни Элемент)
Приморская
11 мин.
Строится
Посмотреть 20 квартир в ЖК Bashni Element
4-комн. квартира 110,81 м2 83 356 823
Этаж 12/19
СПБ, ЖК Bashni Element (Башни Элемент)
Приморская
11 мин.
Строится
4-комн. квартира 111,28 м2 83 237 440
Этаж 10/19
СПБ, ЖК Bashni Element (Башни Элемент)
Приморская
11 мин.
Строится
4-комн. квартира 267,68 м2 407 208 227
Этаж 19/19
СПБ, ЖК Bashni Element (Башни Элемент)
Приморская
11 мин.
Строится

Скидки и спецпредложения от застройщиков

ЖК Bashni Element (Башни Элемент) на карте

Выгодные предложения на новостройки

Отзывы о ЖК Bashni Element

Самый полезный отзыв
АР
28 февраля
Оценка:
Планировки
Способы покупки
Внешний вид фасада
Двор, окружение
Расположение
Здесь несколько башен с разными типами квартир, что позволяет выбрать что-то подходящее под свои нужды. Особенно заинтересовали квартиры с панорамными окнами, которые обещают крутой вид на город. Мне кажется, это отличный вариант для тех, кто ценит светлые пространства и живописные пейзажи. Планирую внимательно рассмотреть возможность приобретения жилья в этом комплексе, так как он действительно отвечает многим моим требованиям.
Ответить
Полезный отзыв?
Самый новый отзыв
Д
07 ноября
Оценка:
Транспортная доступность
Социальная инфраструктура
Способы покупки
Расположение
Взяли студию повыше. До метро действительно 10–15 минут на машине, рядом выезд на зсд, поэтому удобно добираться до центра и выезжать за город. В шаговой доступности есть магазины и кафейни, что тоже приятно
Ответить
Полезный отзыв?
Добавьте отзыв, заполнив личные данные, или сначала войдите на сайт, тогда информация будет автоматически взята из личного профиля.
Оценка*