Переверните экран
Поиск бизнес центров

Найдите современный офис в деловых районах Санкт-Петербурга

Найдите современный офис в деловых районах Санкт-Петербурга

Перейти к поиску
Новостройки Квартиры Ипотека Медиа О проекте Контакты Реклама на сайте Vk Youtube Telegram Дзен Продавцы и застройщики Коммерческие помещения Квартиры на карте Эксперты и авторы Машиноместа Акции от застройщиков Банки и программы Апартаменты Новостройки на карте 4-комнатные и более Готовые новостройки 3-комнатные Военная ипотека Покупателю Новостройки Санкт-Петербурга Видеообзор новостроек Семейная ипотека Аналитика рынка Панорамы новостроек 1-комнатные Субсидированная застройщиком Мнение эксперта Студии Ипотечный калькулятор Новости недвижимости Новостройки Ленинградской области ИТ-ипотека Квартиры со скидками до 25% Новостройки премиум-класса Новостройки бизнес-класса Дома и коттеджи Коттеджные поселки в Санкт-Петербурге Коттеджные поселки в Ленинградской обл Готовые коттеджные поселки Строящиеся коттеджные поселки Коттеджные поселки у леса Коттеджные поселки у водоема Коттеджные поселки в ипотеку Бизнес-центры Коттеджи Ипотека со ставкой 0,1% Траншевая ипотека
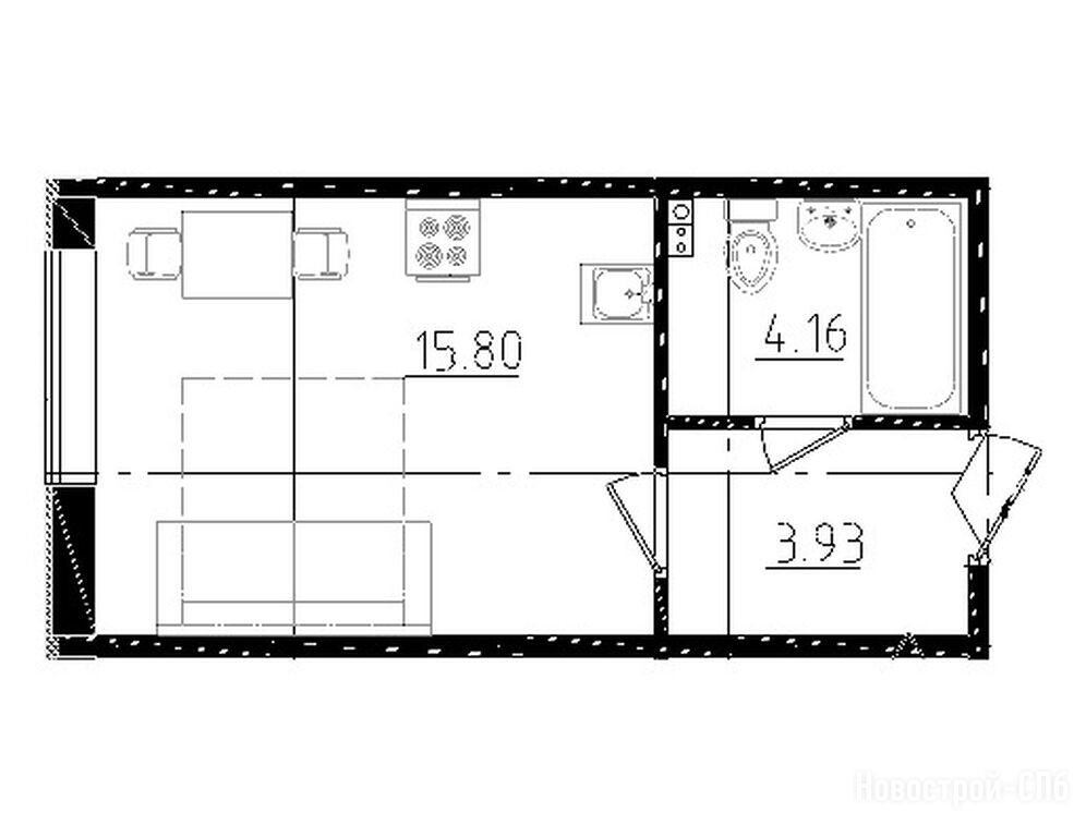
студия, 24.20 м2, 1 этаж
Сдан
3 267 000 
135 000 2
обновлено 4 мая

Описание студии

Новостройка
Срок ГК
Дом сдан
Стадия строительства
выдача ключей + заселение
Тип проекта
Общая площадь
24.20 м2
Этаж
1 / 12
Отделка
нет

Расположение студии

Дом
2 (III оч.)
Адрес
ул. Нижняя, 5к2

Способы покупки

Особенности

Продается студия в новостройке ЖК «Ювента» по адресу Ленинградская область, Всеволожский район, Бугровское С/П, Бугры, ул. Нижняя, 5к2. Общая площадь квартиры - 24.2 кв. м. Тип проекта, по которому построен дом — Монолит, компания-застройщик — Цертус. Стоимость квартиры — 3 267 000 руб. Способы оплаты можно уточнить у продавца. Более подробная информация по телефону.
Инфоцентр новостроек
Инфоцентр новостроек
+7 (812) 424-49-09
Время работы 9:00 — 21:00

Похожие квартиры в ЖК «Ювента»

1 этаж
из 12 Дом сдан
Ленинградская область, Бугровское С/П
Проспект Просвещения
20 мин.
2 (III оч.)
Корпус
нет
Отделка
2.76 м
Потолки
ЖК «Ювента»
3 267 000
ДОМ.РФ, СберБанк
6.00%
Ставка
20.01%
Первый взнос
от 19 587 /мес.
Все варианты
1 этаж
из 12 Дом сдан
Ленинградская область, Бугровское С/П
Проспект Просвещения
20 мин.
2 (III оч.)
Корпус
нет
Отделка
2.76 м
Потолки
ЖК «Ювента»
3 267 000
ДОМ.РФ, СберБанк
6.00%
Ставка
20.01%
Первый взнос
от 19 587 /мес.
Все варианты
студия 23,80 м2 3 213 000
Этаж 2/12
ЛО, ЖК «Ювента»
Проспект Просвещения
20 мин.
Сдан
студия 24,00 м2 3 240 000
Этаж 1/12
ЛО, ЖК «Ювента»
Проспект Просвещения
20 мин.
Сдан
студия 24,20 м2 3 267 000
Этаж 1/12
ЛО, ЖК «Ювента»
Проспект Просвещения
20 мин.
Сдан
студия 24,40 м2 3 294 000
Этаж 2/12
ЛО, ЖК «Ювента»
Проспект Просвещения
20 мин.
Сдан
Посмотреть 29 квартир в ЖК «Ювента»
1-комн. квартира 37,50 м2 4 725 000
Этаж 1/12
ЛО, ЖК «Ювента»
Проспект Просвещения
20 мин.
Сдан
1-комн. квартира 38,70 м2 4 876 200
Этаж 1/12
ЛО, ЖК «Ювента»
Проспект Просвещения
20 мин.
Сдан
1-комн. квартира 38,80 м2 4 888 800
Этаж 1/12
ЛО, ЖК «Ювента»
Проспект Просвещения
20 мин.
Сдан
1-комн. квартира 38,90 м2 4 901 400
Этаж 1/12
ЛО, ЖК «Ювента»
Проспект Просвещения
20 мин.
Сдан
Посмотреть 45 квартир в ЖК «Ювента»

Скидки и спецпредложения от застройщиков

ЖК «Ювента» на карте

Выгодные предложения на новостройки

Отзывы о ЖК «Ювента»

Самый полезный отзыв
ЕВ
01 июля 2019
Оценка:
Достоинства
Транспортная доступность
Планировки
Внешний вид фасада
Новостройка расположена рядом с метро «Девяткино» (всего в 30 минутах). Планировки меня тоже устраивают. Да и внешний вид корпусов устраивает. Плюс школа располагается поблизости к домам.
Ответить
Самый новый отзыв
ВЛ
17 декабря 2025
Оценка:
Достоинства
Планировки
Способы покупки
Двор, окружение
Расположение
Отношение двойственное. С одной стороны, попадаются отзывы, где люди отмечают, что студии просторнее многих аналогов, и в целом проект понятный по цене. С другой — много негатива по срокам/организационным моментам: задержки, споры по метрам и коммуналке, плюс вопросы к продуманности планировок. Я бы заходил только после очень тщательной проверки документов и реальной стадии готовности.
Ответить

Оставить отзыв

Добавьте отзыв, заполнив личные данные, или сначала войдите на сайт, тогда информация будет автоматически взята из личного профиля.
Оценка*