Переверните экран
Новостройки Квартиры Ипотека Медиа О проекте Контакты Реклама на сайте Vk Youtube Telegram Дзен Продавцы и застройщики Коммерческие помещения Квартиры на карте Эксперты и авторы Машиноместа Акции от застройщиков Банки и программы Апартаменты Новостройки на карте 4-комнатные и более Готовые новостройки 3-комнатные Военная ипотека Покупателю Новостройки Санкт-Петербурга Видеообзор новостроек Семейная ипотека Аналитика рынка Панорамы новостроек 1-комнатные Субсидированная застройщиком Мнение эксперта Студии Ипотечный калькулятор Новости недвижимости Новостройки Ленинградской области IT-ипотека Квартиры со скидками до 25% Новостройки премиум-класса Новостройки бизнес-класса Дома и коттеджи Бизнес-центры Бизнес-центры в Санкт-Петербурге Бизнес-центры рядом с метро Строящиеся бизнес-центры Бизнес-центры класса A
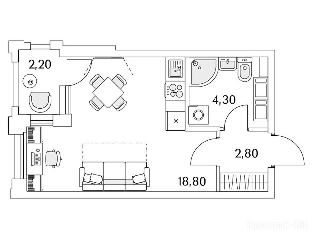
студия, 26.70 м2, 5 этаж
Сдан
7 665 306 
9 826 382
287 090 2
обновлено 16 декабря

Описание студии

Новостройка
Застройщик
ГК РСТИ (РосСтройИнвест) СЗ «РСТИ на Глухарской»
Срок ГК
Дом сдан
Стадия строительства
сдан ГК
Тип проекта
Общая площадь
26.70 м2
Этаж
5 / 13
Отделка
white box
Грузовой лифт
есть

Расположение студии

Локация
Дом
3
Адрес
Планерная улица, 99

Способы покупки

Особенности

Продается студия в новостройке ЖК «Тайм Сквер» по адресу Санкт-Петербург, Приморский, Планерная улица, 99. Общая площадь квартиры - 26.7 кв. м. Тип проекта, по которому построен дом — Монолит, компания-застройщик — ГК РСТИ (РосСтройИнвест), СЗ «РСТИ на Глухарской». Стоимость квартиры — 7 665 306 руб. Способы оплаты можно уточнить у продавца. Более подробная информация по телефону.
Инфоцентр новостроек
Инфоцентр новостроек
+7 (812) 424-49-09
Время работы 9:00 — 21:00
Посмотреть все спецпредложения
студия 21,00 м2 6 608 226
Этаж 13/13
СПБ, ЖК «Тайм Сквер»
Комендантский проспект
14 мин.
Сдан
студия 21,10 м2 6 386 548
Этаж 8/13
СПБ, ЖК «Тайм Сквер»
Комендантский проспект
14 мин.
Сдан
студия 22,30 м2 7 157 748
Этаж 11/13
СПБ, ЖК «Тайм Сквер»
Комендантский проспект
14 мин.
Сдан
студия 23,40 м2 7 177 358
Этаж 7/13
СПБ, ЖК «Тайм Сквер»
Комендантский проспект
14 мин.
Сдан
Посмотреть 110 квартир в ЖК «Тайм Сквер»
1-комн. квартира 31,90 м2 10 513 542
Этаж 10/13
СПБ, ЖК «Тайм Сквер»
Комендантский проспект
14 мин.
Сдан
1-комн. квартира 32,10 м2 10 777 734
Этаж 13/13
СПБ, ЖК «Тайм Сквер»
Комендантский проспект
14 мин.
Сдан
1-комн. квартира 32,50 м2 11 505 367
Этаж 11/13
СПБ, ЖК «Тайм Сквер»
Комендантский проспект
14 мин.
Сдан
1-комн. квартира 32,70 м2 11 674 501
Этаж 12/13
СПБ, ЖК «Тайм Сквер»
Комендантский проспект
14 мин.
Сдан
Посмотреть 86 квартир в ЖК «Тайм Сквер»
2-комн. квартира 52,00 м2 12 446 028
Этаж 2/13
СПБ, ЖК «Тайм Сквер»
Комендантский проспект
14 мин.
Сдан
2-комн. квартира 52,20 м2 15 902 400
Этаж 10/13
СПБ, ЖК «Тайм Сквер»
Комендантский проспект
14 мин.
Сдан
2-комн. квартира 52,30 м2 15 784 429
Этаж 9/13
СПБ, ЖК «Тайм Сквер»
Комендантский проспект
14 мин.
Сдан
2-комн. квартира 60,50 м2 19 165 428
Этаж 11/13
СПБ, ЖК «Тайм Сквер»
Комендантский проспект
14 мин.
Сдан
Посмотреть 61 квартира в ЖК «Тайм Сквер»
3-комн. квартира 68,60 м2 22 192 105
Этаж 10/13
СПБ, ЖК «Тайм Сквер»
Комендантский проспект
14 мин.
Сдан
3-комн. квартира 92,10 м2 28 678 606
Этаж 13/13
СПБ, ЖК «Тайм Сквер»
Комендантский проспект
14 мин.
Сдан
3-комн. квартира 92,80 м2 28 646 588
Этаж 12/13
СПБ, ЖК «Тайм Сквер»
Комендантский проспект
14 мин.
Сдан
3-комн. квартира 96,40 м2 23 062 760
Этаж 3/13
СПБ, ЖК «Тайм Сквер»
Комендантский проспект
14 мин.
Сдан
Посмотреть 6 квартир в ЖК «Тайм Сквер»

Скидки и спецпредложения от застройщиков

ЖК «Тайм Сквер» на карте

Выгодные предложения на новостройки

Отзывы о ЖК «Тайм Сквер»

Самый полезный отзыв
Е
18 октября 2023
Оценка:
Экология
Двор, окружение
Социальная инфраструктура
Очень жду сдачи комплекса. Взяли с семьей двушку, уже во всех деталях представили, как будем здесь жить! :)
Ответить
Полезный отзыв?
Самый новый отзыв
К
29 сентября
Оценка:
Очень уютный двор, много зеленых зон и детских площадок. Соседи дружелюбные, все мероприятия организуются для жителей. Рекомендую!
Ответить
Полезный отзыв?
Добавьте отзыв, заполнив личные данные, или сначала войдите на сайт, тогда информация будет автоматически взята из личного профиля.
Оценка*