Переверните экран
Поиск домов и коттеджей

Найдите идеальный дом или коттедж в Санкт-Петербурге и области

Найдите идеальный дом или коттедж в Санкт-Петербурге и области

Перейти к поиску
Новостройки Квартиры Ипотека Медиа О проекте Контакты Реклама на сайте Vk Youtube Telegram Дзен Продавцы и застройщики Коммерческие помещения Квартиры на карте Эксперты и авторы Машиноместа Акции от застройщиков Банки и программы Апартаменты Новостройки на карте 4-комнатные и более Готовые новостройки 3-комнатные Военная ипотека Покупателю Новостройки Санкт-Петербурга Видеообзор новостроек Семейная ипотека Аналитика рынка Панорамы новостроек 1-комнатные Субсидированная застройщиком Мнение эксперта Студии Ипотечный калькулятор Новости недвижимости Новостройки Ленинградской области ИТ-ипотека Квартиры со скидками до 25% Новостройки премиум-класса Новостройки бизнес-класса Дома и коттеджи Коттеджные поселки в Санкт-Петербурге Коттеджные поселки в Ленинградской обл Готовые коттеджные поселки Строящиеся коттеджные поселки Коттеджные поселки у леса Коттеджные поселки у водоема Коттеджные поселки в ипотеку Бизнес-центры Коттеджи Ипотека со ставкой 0,1% Траншевая ипотека
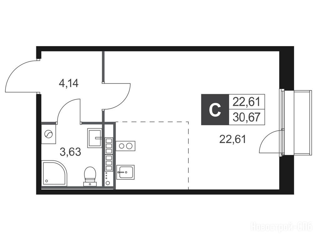
студия, 30.67 м2, 2 этаж
Срок сдачи 4 квартал 2027 года
4 783 740 
155 975 2
обновлено 30 апреля

Описание студии

Новостройка
Срок ГК
4 квартал 2027 года
Стадия строительства
котлован/фундамент
Общая площадь
30.67 м2
Жилая площадь
22.61 м2
Этаж
2 / 4

Расположение студии

Метро
Ж/Д-станция
Дом
1
Адрес
ул. Кутышева

Способы покупки

Особенности

Продается студия в новостройке ЖК «Слобода» по адресу Ленинградская область, Гатчинский район, Малое Верево, ул. Кутышева. Общая площадь квартиры - 30.67 кв. м. Тип проекта, по которому построен дом — Монолитно-кирпичный, компания-застройщик — СЗ «Слобода Верево». Стоимость квартиры — 4 783 740 руб. Способы оплаты можно уточнить у продавца. Срок сдачи — 4 квартал 2027. Более подробная информация по телефону.
Инфоцентр новостроек
Инфоцентр новостроек
Время работы 9:00 — 21:00
Выбирайте квартиру в ЖК «Слобода» по ценам от застройщика

Похожие квартиры в ЖК «Слобода»

4 этаж
из 4 4 квартал 2027
Ленинградская область, Гатчинский район
Московская
25 мин.
1
Корпус
нет данных
Отделка
2.64 м
Потолки
ЖК «Слобода»
4 783 740
ДОМ.РФ
6.00%
Ставка
20.01%
Первый взнос
от 28 681 /мес.
Все варианты
Этаж 1/4
ЛО, ЖК «Слобода»
Московская
25 мин.
Строится
Этаж 3/4
ЛО, ЖК «Слобода»
Московская
25 мин.
Строится
Этаж 4/4
ЛО, ЖК «Слобода»
Московская
25 мин.
Строится
студия 30,82 м2 5 048 971
Этаж 2/4
ЛО, ЖК «Слобода»
Московская
25 мин.
Строится
Посмотреть 24 квартиры в ЖК «Слобода»
Этаж 4/4
ЛО, ЖК «Слобода»
Московская
25 мин.
Строится
1-комн. квартира 34,54 м2 5 656 997
Этаж 2/4
ЛО, ЖК «Слобода»
Московская
25 мин.
Строится
Этаж 3/4
ЛО, ЖК «Слобода»
Московская
25 мин.
Строится
Этаж 3/4
ЛО, ЖК «Слобода»
Московская
25 мин.
Строится
Посмотреть 22 квартиры в ЖК «Слобода»
Этаж 4/4
ЛО, ЖК «Слобода»
Московская
25 мин.
Строится
2-комн. квартира 55,25 м2 8 702 190
Этаж 1/4
ЛО, ЖК «Слобода»
Московская
25 мин.
Строится
2-комн. квартира 55,37 м2 8 836 733
Этаж 3/4
ЛО, ЖК «Слобода»
Московская
25 мин.
Строится

Скидки и спецпредложения от застройщиков

ЖК «Слобода» на карте

Выгодные предложения на новостройки

Отзывы о ЖК «Слобода»

Самый новый отзыв
ММ
02 апреля
Оценка:
Достоинства
Экология
Двор, окружение
Нормальный малоэтажный кирпич в пригороде Гатчины. Тихо, тепло, до Питера можно быстро долететь на электричке за 40 минут. Базовая инфраструктура под боком, остальное — в 10 минутах езды. Хороший вариант для тех, кто ищет бюджетное жилье на юге.
Ответить

Оставить отзыв

Добавьте отзыв, заполнив личные данные, или сначала войдите на сайт, тогда информация будет автоматически взята из личного профиля.
Оценка*