Переверните экран
Поиск бизнес центров

Найдите современный офис в деловых районах Санкт-Петербурга

Найдите современный офис в деловых районах Санкт-Петербурга

Перейти к поиску
Новостройки Квартиры Ипотека Медиа О проекте Контакты Реклама на сайте Vk Youtube Telegram Дзен Продавцы и застройщики Коммерческие помещения Квартиры на карте Эксперты и авторы Машиноместа Акции от застройщиков Банки и программы Апартаменты Новостройки на карте 4-комнатные и более Готовые новостройки 3-комнатные Военная ипотека Покупателю Новостройки Санкт-Петербурга Видеообзор новостроек Семейная ипотека Аналитика рынка Панорамы новостроек 1-комнатные Субсидированная застройщиком Мнение эксперта Студии Ипотечный калькулятор Новости недвижимости Новостройки Ленинградской области IT-ипотека Квартиры со скидками до 25% Новостройки премиум-класса Новостройки бизнес-класса Дома и коттеджи Бизнес-центры Бизнес-центры в Санкт-Петербурге Бизнес-центры рядом с метро Строящиеся бизнес-центры Бизнес-центры класса A
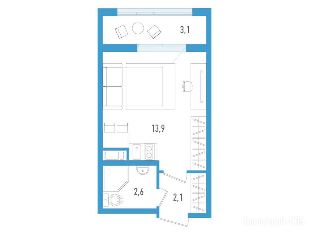
студия, 19.50 м2, 7 этаж
Срок сдачи 4 квартал 2026 года
4 095 000 
210 000 2
обновлено 5 декабря

Описание студии

Новостройка
Застройщик
Срок ГК
4 квартал 2026 года
Стадия строительства
отделка фасада и внутренние работы
Тип проекта
монолит, блочный
Общая площадь
19.50 м2
Этаж
7 / 12
Грузовой лифт
есть

Расположение студии

Локация
Метро
Ж/Д-станция
Шушары
8 мин.
Дом
4
Адрес
ул. Школьная, Аэросити 4, секция 10

Способы покупки

Особенности

Продается студия в новостройке ЖК AEROCITY (Аэросити) по адресу Санкт-Петербург, Пушкинский, Шушары пос., ул. Школьная, Аэросити 4. Общая площадь квартиры - 19.5 кв. м. Тип проекта, по которому построен дом — Монолитно-панельный, компания-застройщик — Лидер Групп. Стоимость квартиры — 4 095 000 руб. Способы оплаты можно уточнить у продавца. Срок сдачи — 4 квартал 2026. Более подробная информация по телефону.
Инфоцентр новостроек
Инфоцентр новостроек
+7 (812) 424-49-09
Время работы 9:00 — 21:00
Посмотреть все спецпредложения
Этаж 10/12
СПБ, ЖК AEROCITY (Аэросити)
Купчино
15 мин.
Сдан
студия 18,20 м2 5 096 000
Этаж 7/12
СПБ, ЖК AEROCITY (Аэросити)
Купчино
15 мин.
Сдан
Этаж 7/12
СПБ, ЖК AEROCITY (Аэросити)
Купчино
15 мин.
Сдан
студия 19,30 м2 5 307 500
Этаж 11/12
СПБ, ЖК AEROCITY (Аэросити)
Купчино
15 мин.
Сдан
Посмотреть 122 квартиры в ЖК AEROCITY
Этаж 9/12
СПБ, ЖК AEROCITY (Аэросити)
Купчино
15 мин.
Строится
1-комн. квартира 28,44 м2 6 825 600
Этаж 9/12
СПБ, ЖК AEROCITY (Аэросити)
Купчино
15 мин.
Строится
1-комн. квартира 28,75 м2 5 692 500
Этаж 2/12
СПБ, ЖК AEROCITY (Аэросити)
Купчино
15 мин.
Строится
1-комн. квартира 28,85 м2 5 712 300
Этаж 5/12
СПБ, ЖК AEROCITY (Аэросити)
Купчино
15 мин.
Строится
Посмотреть 85 квартир в ЖК AEROCITY
Этаж 5/12
СПБ, ЖК AEROCITY (Аэросити)
Купчино
15 мин.
Строится
Этаж 7/12
СПБ, ЖК AEROCITY (Аэросити)
Купчино
15 мин.
Строится
Этаж 12/12
СПБ, ЖК AEROCITY (Аэросити)
Купчино
15 мин.
Строится
Этаж 2/12
СПБ, ЖК AEROCITY (Аэросити)
Купчино
15 мин.
Строится
Посмотреть 122 квартиры в ЖК AEROCITY
Этаж 7/12
СПБ, ЖК AEROCITY (Аэросити)
Купчино
15 мин.
Строится
Этаж 11/12
СПБ, ЖК AEROCITY (Аэросити)
Купчино
15 мин.
Строится
Этаж 12/12
СПБ, ЖК AEROCITY (Аэросити)
Купчино
15 мин.
Строится
Этаж 7/12
СПБ, ЖК AEROCITY (Аэросити)
Купчино
15 мин.
Строится
Посмотреть 59 квартир в ЖК AEROCITY

Скидки и спецпредложения от застройщиков

ЖК AEROCITY (Аэросити) на карте

Выгодные предложения на новостройки

Самый полезный отзыв
П
27 июня 2022
Оценка:
Аэросити готов, Лидер опубликовал фотоотчет о проделанной работе. Места общего пользования выглядят хорошо, да внешне дом получился красивым.
Ответить
Полезный отзыв?
Самый новый отзыв
МБ
29 мая
Оценка:
Планировки
Способы покупки
Внешний вид фасада
Двор, окружение
Мне сразу приглянулась малоэтажная застройка - никакого ощущения муравейника! Подземный паркинг - это вообще сказка, можно спуститься прямо на лифте, не нужно выходить на улицу. Закрытая территория - спокойнее за детей и за машину. Сейчас активно идет благоустройство, видно, что стараются сделать все для людей. И самое главное - строится скоростная линия трамваев, которая соединит метро Купчино и город Пушкин
Ответить
Полезный отзыв?
Добавьте отзыв, заполнив личные данные, или сначала войдите на сайт, тогда информация будет автоматически взята из личного профиля.
Оценка*