Переверните экран
Новостройки Квартиры Ипотека Медиа О проекте Контакты Реклама на сайте Vk Youtube Telegram Дзен Продавцы и застройщики Коммерческие помещения Квартиры на карте Эксперты и авторы Машиноместа Акции от застройщиков Банки и программы Апартаменты Новостройки на карте 4-комнатные и более Готовые новостройки 3-комнатные Военная ипотека Покупателю Новостройки Санкт-Петербурга Видеообзор новостроек Семейная ипотека Аналитика рынка Панорамы новостроек 1-комнатные Субсидированная застройщиком Мнение эксперта Студии Ипотечный калькулятор Новости недвижимости Новостройки Ленинградской области IT-ипотека Квартиры со скидками до 25% Новостройки премиум-класса Новостройки бизнес-класса Дома и коттеджи Бизнес-центры Бизнес-центры в Санкт-Петербурге Бизнес-центры рядом с метро Строящиеся бизнес-центры Бизнес-центры класса A
Данное предложение на 16.12.2025 неактуально. Пожалуйста, ознакомьтесь с другими похожими предложениями в ЖК «Ясно.Янино» .
1-комн. квартира, 40.46 м2, 2 этаж
Срок сдачи 3 квартал 2026 года
6 999 580 
173 000 2
обновлено 12 ноября

Описание 1-комн. квартиры

Новостройка
Застройщик
Срок ГК
3 квартал 2026 года
Стадия строительства
монтаж нижних этажей
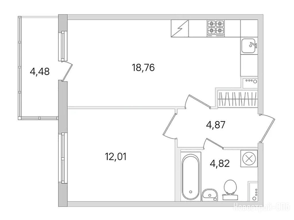
Общая площадь
40.46 м2
Жилая площадь
12.01 м2
Площадь кухни
18.76 м2
Этаж
2 / 8
Отделка
чистовая
Грузовой лифт
есть

Расположение 1-комн. квартиры

Дом
14.8
Адрес
ул. Ясная, секция 1

Способы покупки

Особенности

Продается однокомнатная квартира в новостройке ЖК «Ясно.Янино» по адресу Ленинградская область, Всеволожский район, Янино-1, ул. Ясная. Общая площадь квартиры - 40.46 кв. м. Тип проекта, по которому построен дом — Монолит, компания-застройщик — КВС. Стоимость квартиры — 6 999 580 руб. Способы оплаты можно уточнить у продавца. Срок сдачи — 3 квартал 2026. Более подробная информация по телефону.

Правовые документы

Инфоцентр новостроек
Инфоцентр новостроек
+7 (812) 424-49-09
Время работы 9:00 — 21:00
Посмотреть все спецпредложения
студия 22,84 м2 4 974 552
Этаж 2/8
ЛО, ЖК «Ясно.Янино»
Ладожская
20 мин.
Строится
студия 23,55 м2 5 051 475
Этаж 7/8
ЛО, ЖК «Ясно.Янино»
Ладожская
20 мин.
Строится
студия 24,28 м2 5 132 792
Этаж 8/8
ЛО, ЖК «Ясно.Янино»
Ладожская
20 мин.
Строится
студия 24,31 м2 5 139 134
Этаж 8/8
ЛО, ЖК «Ясно.Янино»
Ладожская
20 мин.
Строится
Посмотреть 101 квартира в ЖК «Ясно.Янино»
1-комн. квартира 34,82 м2 7 183 366
Этаж 3/8
ЛО, ЖК «Ясно.Янино»
Ладожская
20 мин.
Строится
1-комн. квартира 34,85 м2 7 227 890
Этаж 4/8
ЛО, ЖК «Ясно.Янино»
Ладожская
20 мин.
Строится
1-комн. квартира 34,86 м2 7 181 160
Этаж 2/8
ЛО, ЖК «Ясно.Янино»
Ладожская
20 мин.
Строится
1-комн. квартира 34,91 м2 7 167 023
Этаж 2/8
ЛО, ЖК «Ясно.Янино»
Ладожская
20 мин.
Строится
Посмотреть 200 квартир в ЖК «Ясно.Янино»
2-комн. квартира 51,94 м2 9 385 558
Этаж 4/8
ЛО, ЖК «Ясно.Янино»
Ладожская
20 мин.
Сдан
2-комн. квартира 57,13 м2 11 277 462
Этаж 2/8
ЛО, ЖК «Ясно.Янино»
Ладожская
20 мин.
Строится
2-комн. квартира 57,21 м2 11 144 508
Этаж 2/8
ЛО, ЖК «Ясно.Янино»
Ладожская
20 мин.
Строится
2-комн. квартира 57,72 м2 10 487 724
Этаж 1/8
ЛО, ЖК «Ясно.Янино»
Ладожская
20 мин.
Строится
Посмотреть 115 квартир в ЖК «Ясно.Янино»
3-комн. квартира 73,95 м2 14 649 495
Этаж 7/8
ЛО, ЖК «Ясно.Янино»
Ладожская
20 мин.
Строится
3-комн. квартира 81,42 м2 17 236 614
Этаж 3/8
ЛО, ЖК «Ясно.Янино»
Ладожская
20 мин.
Строится
3-комн. квартира 82,54 м2 17 102 288
Этаж 2/8
ЛО, ЖК «Ясно.Янино»
Ладожская
20 мин.
Строится
Посмотреть 7 квартир в ЖК «Ясно.Янино»

Скидки и спецпредложения от застройщиков

ЖК «Ясно.Янино» на карте

Выгодные предложения на новостройки

Отзывы о ЖК «Ясно.Янино»

Самый полезный отзыв
М
08 декабря 2017
Оценка:
О комплексе знаю и от друзей, и от коллег по работе. теперь вот сама подхожу к покупке квартиры, поэтому посматриваю на Янино. слышала, что 10 декабря будет бесплатная экскурсия от застройщика на объект, хочу съездить глянуть. может скидку еще какую предложат)
Ответить
Полезный отзыв?
Самый новый отзыв
Д
11 декабря
Оценка:
Из всего мне здесь только к\у не нравится платить((( Отличный квартал, заехали быстро. Понравилась местная школа.
Ответить
Полезный отзыв?
Добавьте отзыв, заполнив личные данные, или сначала войдите на сайт, тогда информация будет автоматически взята из личного профиля.
Оценка*