Переверните экран
Поиск домов и коттеджей

Найдите идеальный дом или коттедж в Санкт-Петербурге и области

Найдите идеальный дом или коттедж в Санкт-Петербурге и области

Перейти к поиску
Новостройки Квартиры Ипотека Медиа О проекте Контакты Реклама на сайте Vk Youtube Telegram Дзен Продавцы и застройщики Коммерческие помещения Квартиры на карте Эксперты и авторы Машиноместа Акции от застройщиков Банки и программы Апартаменты Новостройки на карте 4-комнатные и более Готовые новостройки 3-комнатные Военная ипотека Покупателю Новостройки Санкт-Петербурга Видеообзор новостроек Семейная ипотека Аналитика рынка Панорамы новостроек 1-комнатные Субсидированная застройщиком Мнение эксперта Студии Ипотечный калькулятор Новости недвижимости Новостройки Ленинградской области ИТ-ипотека Квартиры со скидками до 25% Новостройки премиум-класса Новостройки бизнес-класса Дома и коттеджи Коттеджные поселки в Санкт-Петербурге Коттеджные поселки в Ленинградской обл Готовые коттеджные поселки Строящиеся коттеджные поселки Коттеджные поселки у леса Коттеджные поселки у водоема Коттеджные поселки в ипотеку Бизнес-центры Коттеджи Ипотека со ставкой 0,1% Траншевая ипотека
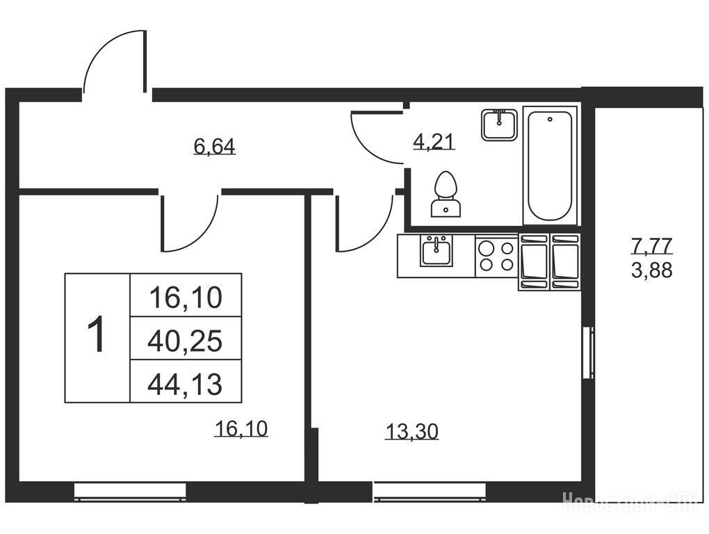
1-комн. квартира, 44.13 м2, 14 этаж
Срок сдачи 4 квартал 2028 года
6 708 630 
152 020 2
обновлено 4 мая

Описание 1-комн. квартиры

Новостройка
Застройщик
Срок ГК
4 квартал 2028 года
Стадия строительства
отделка фасада
Общая площадь
44.13 м2
Жилая площадь
16.10 м2
Этаж
14 / 18
Отделка
чистовая
Грузовой лифт
есть

Расположение 1-комн. квартиры

Метро
Дом
1
Адрес
Школьная ул., ЖК «Высота»

Способы покупки

Особенности

Продается однокомнатная квартира в новостройке ЖК «Высота» (Бугры) по адресу Ленинградская область, Всеволожский район, Бугровское С/П, Бугры, Школьная ул., ЖК «Высота». Общая площадь квартиры - 44.13 кв. м. Тип проекта, по которому построен дом — Монолитно-кирпичный, компания-застройщик — ГК «Стоун». Стоимость квартиры — 6 708 630 руб. Способы оплаты можно уточнить у продавца. Срок сдачи — 4 квартал 2028. Более подробная информация по телефону.
Инфоцентр новостроек
Инфоцентр новостроек
Время работы 9:00 — 21:00
Выбирайте квартиру в ЖК «Высота» (Бугры) по ценам от застройщика

Похожие квартиры в ЖК «Высота»

15 этаж
из 18 4 квартал 2028
Ленинградская область, Бугровское С/П
Девяткино
26 мин.
1
Корпус
чистовая
Отделка
2.57 м
Потолки
ЖК «Высота» (Бугры)
6 708 630
ДОМ.РФ, СберБанк, ВТБ
6.00%
Ставка
20.01%
Первый взнос
от 40 222 /мес.
Все варианты
16 этаж
из 18 4 квартал 2028
Ленинградская область, Бугровское С/П
Девяткино
26 мин.
1
Корпус
чистовая
Отделка
2.57 м
Потолки
ЖК «Высота» (Бугры)
6 708 630
ДОМ.РФ, СберБанк, ВТБ
6.00%
Ставка
20.01%
Первый взнос
от 40 222 /мес.
Все варианты
17 этаж
из 18 4 квартал 2028
Ленинградская область, Бугровское С/П
Девяткино
26 мин.
1
Корпус
чистовая
Отделка
2.57 м
Потолки
ЖК «Высота» (Бугры)
6 708 630
ДОМ.РФ, СберБанк, ВТБ
6.00%
Ставка
20.01%
Первый взнос
от 40 222 /мес.
Все варианты
18 этаж
из 18 4 квартал 2028
Ленинградская область, Бугровское С/П
Девяткино
26 мин.
1
Корпус
чистовая
Отделка
2.57 м
Потолки
ЖК «Высота» (Бугры)
6 708 630
ДОМ.РФ, СберБанк, ВТБ
6.00%
Ставка
20.01%
Первый взнос
от 40 222 /мес.
Все варианты
студия 24,89 м2 4 276 300
Этаж 15/18
ЛО, ЖК «Высота» (Бугры)
Девяткино
26 мин.
Строится
студия 24,92 м2 4 281 400
Этаж 14/18
ЛО, ЖК «Высота» (Бугры)
Девяткино
26 мин.
Строится
студия 25,24 м2 4 335 800
Этаж 4/18
ЛО, ЖК «Высота» (Бугры)
Девяткино
26 мин.
Строится
студия 25,27 м2 4 340 900
Этаж 4/18
ЛО, ЖК «Высота» (Бугры)
Девяткино
26 мин.
Строится
Посмотреть 152 квартиры в ЖК «Высота»
1-комн. квартира 28,49 м2 5 030 750
Этаж 16/18
ЛО, ЖК «Высота» (Бугры)
Девяткино
26 мин.
Строится
1-комн. квартира 28,78 м2 5 225 400
Этаж 3/18
ЛО, ЖК «Высота» (Бугры)
Девяткино
26 мин.
Строится
1-комн. квартира 33,10 м2 5 506 500
Этаж 17/18
ЛО, ЖК «Высота» (Бугры)
Девяткино
26 мин.
Строится
1-комн. квартира 33,20 м2 5 290 600
Этаж 14/18
ЛО, ЖК «Высота» (Бугры)
Девяткино
26 мин.
Строится
Посмотреть 430 квартир в ЖК «Высота»
2-комн. квартира 48,52 м2 7 711 160
Этаж 14/18
ЛО, ЖК «Высота» (Бугры)
Девяткино
26 мин.
Строится
2-комн. квартира 48,59 м2 7 722 220
Этаж 15/18
ЛО, ЖК «Высота» (Бугры)
Девяткино
26 мин.
Строится
2-комн. квартира 48,81 м2 7 756 980
Этаж 3/18
ЛО, ЖК «Высота» (Бугры)
Девяткино
26 мин.
Строится
2-комн. квартира 48,88 м2 7 768 040
Этаж 3/18
ЛО, ЖК «Высота» (Бугры)
Девяткино
26 мин.
Строится
Посмотреть 117 квартир в ЖК «Высота»

Скидки и спецпредложения от застройщиков

ЖК «Высота» (Бугры) на карте

Выгодные предложения на новостройки

Отзывы о ЖК «Высота»

Самый полезный отзыв
РС
28 февраля 2025
Оценка:
Достоинства
Транспортная доступность
Социальная инфраструктура
Планировки
Внешний вид фасада
Развитая инфраструктура самого комплекса предоставляет все необходимые удобства рядом: магазины, кафе и другие услуги. Особенно понравилось благоустройство территории. Закрытый двор создаёт атмосферу уюта и безопасности. Близость к Токсовским лесам открывает возможности для прогулок на природе и активного отдыха.
Ответить
Самый новый отзыв
С
24 декабря 2025
Оценка:
Достоинства
Планировки
Способы покупки
Внешний вид фасада
Расположение
Брали квартиру из-за планировок и нормальной цены на старте. Дом выглядит аккуратно, без перегруза. Район не самый оживлённый, инфраструктура пока подтягивается. В остальном - спокойный, понятный проект без завышенных ожиданий.
Ответить

Оставить отзыв

Добавьте отзыв, заполнив личные данные, или сначала войдите на сайт, тогда информация будет автоматически взята из личного профиля.
Оценка*