Переверните экран
Поиск бизнес центров

Найдите современный офис в деловых районах Санкт-Петербурга

Найдите современный офис в деловых районах Санкт-Петербурга

Перейти к поиску
Новостройки Квартиры Ипотека Медиа О проекте Контакты Реклама на сайте Vk Youtube Telegram Дзен Продавцы и застройщики Коммерческие помещения Квартиры на карте Эксперты и авторы Машиноместа Акции от застройщиков Банки и программы Апартаменты Новостройки на карте 4-комнатные и более Готовые новостройки 3-комнатные Военная ипотека Покупателю Новостройки Санкт-Петербурга Видеообзор новостроек Семейная ипотека Аналитика рынка Панорамы новостроек 1-комнатные Субсидированная застройщиком Мнение эксперта Студии Ипотечный калькулятор Новости недвижимости Новостройки Ленинградской области ИТ-ипотека Квартиры со скидками до 25% Новостройки премиум-класса Новостройки бизнес-класса Дома и коттеджи Коттеджные поселки в Санкт-Петербурге Коттеджные поселки в Ленинградской обл Готовые коттеджные поселки Строящиеся коттеджные поселки Коттеджные поселки у леса Коттеджные поселки у водоема Коттеджные поселки в ипотеку Бизнес-центры Коттеджи Ипотека со ставкой 0,1% Траншевая ипотека
1-комн. квартира, 50.50 м2, 1 этаж
Срок сдачи 4 квартал 2026 года
24 771 000 
490 515 2
обновлено 28 мая

Описание 1-комн. квартиры

Новостройка
Срок ГК
4 квартал 2026 года
Стадия строительства
отделка фасада и внутренние работы
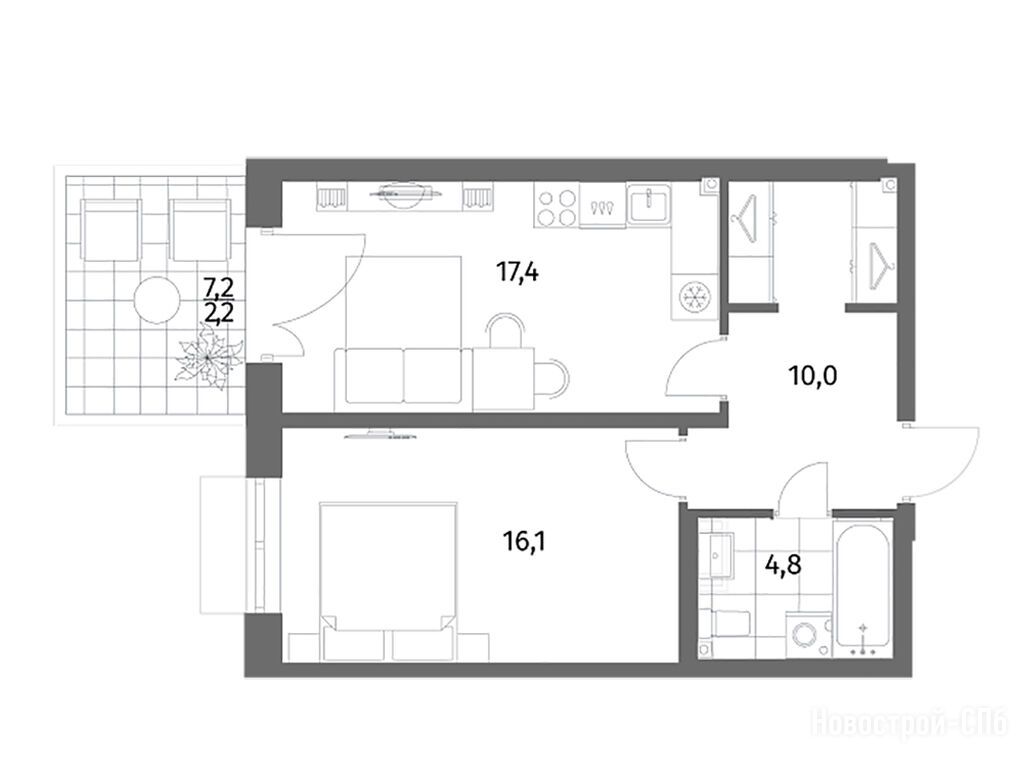
Общая площадь
50.50 м2
Жилая площадь
16.10 м2
Площадь кухни
17.40 м2
Этаж
1 / 13
Отделка
нет

Расположение 1-комн. квартиры

Метро
Дом
1.1
Адрес
ул. Шкиперский проток, 19А, корп.1.1

Способы покупки

Особенности

Продается однокомнатная квартира в новостройке ЖК «Парусная 1» по адресу Санкт-Петербург, Василеостровский, ул. Шкиперский проток, 19А, корп.1.1. Общая площадь квартиры - 50.5 кв. м. Тип проекта, по которому построен дом — Монолитно-каркасный, компания-застройщик — АО «СЗ «Строительный трест», ГК «ТРЕСТ». Стоимость квартиры — 24 771 000 руб. Способы оплаты можно уточнить у продавца. Срок сдачи — 4 квартал 2026. Более подробная информация по телефону.
ГК «ТРЕСТ»
ГК «ТРЕСТ»
Сданных 22
|
Строящихся 3
Выбирайте квартиру в ЖК «Парусная 1» по ценам от застройщика
студия 23,60 м2 10 639 000
Этаж 8/13
СПБ, ЖК «Парусная 1»
Приморская
19 мин.
Строится
1-комн. квартира 33,50 м2 15 075 000
Этаж 7/13
СПБ, ЖК «Парусная 1»
Приморская
19 мин.
Строится
Этаж 5/13
СПБ, ЖК «Парусная 1»
Приморская
19 мин.
Строится
1-комн. квартира 37,10 м2 16 724 000
Этаж 11/13
СПБ, ЖК «Парусная 1»
Приморская
19 мин.
Строится
1-комн. квартира 38,60 м2 17 800 000
Этаж 4/13
СПБ, ЖК «Парусная 1»
Приморская
19 мин.
Строится
Посмотреть 11 квартир в ЖК «Парусная 1»
2-комн. квартира 35,40 м2 17 731 000
Этаж 11/13
СПБ, ЖК «Парусная 1»
Приморская
19 мин.
Строится
2-комн. квартира 43,00 м2 20 241 000
Этаж 7/13
СПБ, ЖК «Парусная 1»
Приморская
19 мин.
Строится
2-комн. квартира 43,50 м2 20 065 000
Этаж 2/13
СПБ, ЖК «Парусная 1»
Приморская
19 мин.
Строится
2-комн. квартира 44,10 м2 21 632 000
Этаж 1/13
СПБ, ЖК «Парусная 1»
Приморская
19 мин.
Строится
Посмотреть 125 квартир в ЖК «Парусная 1»
3-комн. квартира 57,40 м2 21 543 000
Этаж 2/13
СПБ, ЖК «Парусная 1»
Приморская
19 мин.
Строится
3-комн. квартира 57,50 м2 21 580 000
Этаж 2/13
СПБ, ЖК «Парусная 1»
Приморская
19 мин.
Строится
3-комн. квартира 59,60 м2 22 690 000
Этаж 3/13
СПБ, ЖК «Парусная 1»
Приморская
19 мин.
Строится
3-комн. квартира 62,00 м2 23 604 000
Этаж 4/13
СПБ, ЖК «Парусная 1»
Приморская
19 мин.
Строится
Посмотреть 85 квартир в ЖК «Парусная 1»
4-комн. квартира 107,40 м2 46 542 000
Этаж 13/13
СПБ, ЖК «Парусная 1»
Приморская
19 мин.
Строится

Скидки и спецпредложения от застройщиков

ЖК «Парусная 1» на карте

Выгодные предложения на новостройки

Отзывы о ЖК «Парусная 1»

Самый полезный отзыв
ДМ
25 марта 2025
Оценка:
Достоинства
Социальная инфраструктура
Планировки
Внешний вид фасада
Двор, окружение
Расположение
Остался под приятным впечатлением. Наверное, это лучший вариант из всех, что мы рассматривали на Васильевском. Комплекс выглядит современно и аккуратно. Очень понравилось, что здесь будет паркинг. Удобно, особенно в городских условиях. Еще один важный момент - школа. Для семьи с детьми это огромный плюс. Наличие образовательных учреждений рядом всегда радует, когда думаешь о будущем.
Ответить
Самый новый отзыв
МН
15 января
Оценка:
Достоинства
Планировки
Способы покупки
Двор, окружение
Расположение
Мне нравится сама идея места и то, что проект обещает новую прогулочную набережную/общественное пространство, это редкая ценность для Васильевского. Но по квартирографии есть жёсткая критика: люди прямо ругают планировки, включая спорные решения типа двери в санузел из кухни - и я их понимаю, это реально может быть стоп-фактором
Ответить

Оставить отзыв

Добавьте отзыв, заполнив личные данные, или сначала войдите на сайт, тогда информация будет автоматически взята из личного профиля.
Оценка*