Переверните экран
Поиск бизнес центров

Найдите современный офис в деловых районах Санкт-Петербурга

Найдите современный офис в деловых районах Санкт-Петербурга

Перейти к поиску
Новостройки Квартиры Ипотека Медиа О проекте Контакты Реклама на сайте Vk Youtube Telegram Дзен Продавцы и застройщики Коммерческие помещения Квартиры на карте Эксперты и авторы Машиноместа Акции от застройщиков Банки и программы Апартаменты Новостройки на карте 4-комнатные и более Готовые новостройки 3-комнатные Военная ипотека Покупателю Новостройки Санкт-Петербурга Видеообзор новостроек Семейная ипотека Аналитика рынка Панорамы новостроек 1-комнатные Субсидированная застройщиком Мнение эксперта Студии Ипотечный калькулятор Новости недвижимости Новостройки Ленинградской области IT-ипотека Квартиры со скидками до 25% Новостройки премиум-класса Новостройки бизнес-класса Дома и коттеджи Бизнес-центры Бизнес-центры в Санкт-Петербурге Бизнес-центры рядом с метро Строящиеся бизнес-центры Бизнес-центры класса A
1-комн. квартира, 61.90 м2, 1 этаж
Сдан
9 902 000 
159 968 2
обновлено 5 декабря

Описание 1-комн. квартиры

Новостройка
Застройщик
ГК «ТРЕСТ» СТ-Новоселье
Срок ГК
Дом сдан
Стадия строительства
выдача ключей + заселение
Тип проекта
Общая площадь
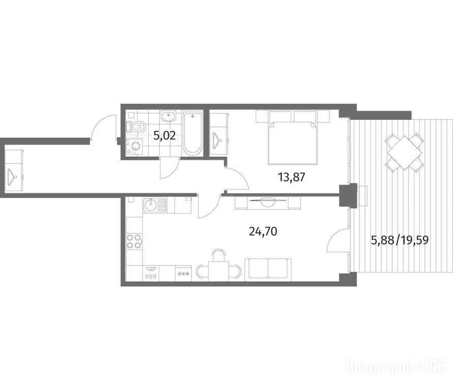
61.90 м2
Жилая площадь
13.87 м2
Площадь кухни
24.70 м2
Этаж
1 / 12
Отделка
нет

Расположение 1-комн. квартиры

Дом
Лот 16
Адрес
Питерский проспект, д. 1, 5, 7, 10, 11

Способы покупки

Особенности

Продается однокомнатная квартира в новостройке ЖК NEWПИТЕР по адресу Ленинградская область, Ломоносовский район, Аннинское, Новоселье пос., Питерский проспект, д. 1, 5, 7, 10, 11. Общая площадь квартиры - 61.9 кв. м. Тип проекта, по которому построен дом — Кирпичный, компания-застройщик — ГК «ТРЕСТ», СТ-Новоселье. Стоимость квартиры — 9 902 000 руб. Способы оплаты можно уточнить у продавца. Более подробная информация по телефону.

Правовые документы

Инфоцентр новостроек
Инфоцентр новостроек
+7 (812) 424-49-09
Время работы 9:00 — 21:00
Посмотреть все спецпредложения
Этаж 9/12
ЛО, ЖК NEWПИТЕР
Проспект Ветеранов
18 мин.
Строится
Этаж 3/12
ЛО, ЖК NEWПИТЕР
Проспект Ветеранов
18 мин.
Строится
Этаж 6/12
ЛО, ЖК NEWПИТЕР
Проспект Ветеранов
18 мин.
Строится
Этаж 7/12
ЛО, ЖК NEWПИТЕР
Проспект Ветеранов
18 мин.
Строится
Посмотреть 589 квартир в ЖК NEWПИТЕР
Этаж 5/12
ЛО, ЖК NEWПИТЕР
Проспект Ветеранов
18 мин.
Строится
Этаж 2/12
ЛО, ЖК NEWПИТЕР
Проспект Ветеранов
18 мин.
Строится
Этаж 2/12
ЛО, ЖК NEWПИТЕР
Проспект Ветеранов
18 мин.
Строится
Этаж 4/12
ЛО, ЖК NEWПИТЕР
Проспект Ветеранов
18 мин.
Строится
Посмотреть 238 квартир в ЖК NEWПИТЕР
3-комн. квартира 66,85 м2 11 730 000
Этаж 5/12
ЛО, ЖК NEWПИТЕР
Проспект Ветеранов
18 мин.
Строится
3-комн. квартира 66,94 м2 11 746 000
Этаж 3/12
ЛО, ЖК NEWПИТЕР
Проспект Ветеранов
18 мин.
Строится
Этаж 7/12
ЛО, ЖК NEWПИТЕР
Проспект Ветеранов
18 мин.
Строится
Этаж 7/12
ЛО, ЖК NEWПИТЕР
Проспект Ветеранов
18 мин.
Строится
Посмотреть 89 квартир в ЖК NEWПИТЕР

Скидки и спецпредложения от застройщиков

ЖК NEWПИТЕР на карте

Выгодные предложения на новостройки

Отзывы о ЖК NEWПИТЕР

Самый полезный отзыв
Ю
17 апреля 2018
Оценка:
Живу в ЖК NEWПитер уже почти год, пока снимаю, но уже приобрела квартиру в 5 лоте.Ни разу не пожалела о выбранном ЖК. Строительная компания думает о людях, а не строит дабы наживится. Есть с чем сравнить. Пока выбирала квартиру в данной ценовой категории, волосы вставали дыбом, думая как жить дальше во многих районах с новыми ЖК которые в принципе не предусмротирны для таких больших комплексов. Не буду приводить примеры конкретные примеры дабы не разводить антирекламу. Да есть минусы, касаемо транспорта, конечно каждый хотел бы сесть на одну маршрутку и оказаться там где ему надо. Но увы такие проблемы существуют даже в городе, что прежде чем добраться до метро, надо потрястись в маршруточке. Глядя на молодых мам, мне кажется они кайфуют от этого места, тут действительно уютно и комфортно, безопасно. Куда поставить коляску често есть, припарковать машину да пожалуйста, мало места еще сделаем, сходить купить продукты и вещи первой необходимости уже не проблема, много помещений под аренду, где открываются магазины, пекарни, для девчонок салон красоты, ногтевой сервис, и о животных не забыли.))) Для любителей провести вечер вне дома лаунж бар. В принципе на данной стадии строительства жк уже есть чем похвастаться и привлечь. Видела отзыв про холодную квартиру, не правда в домах очень тепло, всю зиму, даже в сильные морозы этого года, батареи держали на 2, правда при заезде в квартиру мерзли, потому что не знали что нужно подойти к диспетчеру сделать заявку, пришел сантехник и все сразу стало как надо, тепло)))) Школа уже строится полным ходом, и думаю что детки в следующем году уже пойдут в нее учится. Вообщем я довольна. И могу сказать, что прежде чем делать негативные выводы, лучше побывайте в этом жк, погуляйте, посмотрите. Атмосфера Вас затянет.
Показать все комментарии
Ответить
Полезный отзыв?
Самый новый отзыв
Д
28 февраля 2024
Оценка:
Расположение
Больше к этому застройщику не обратимся. Обман тотальный, сначала показывают один рендер, потом переделывать всё, в Новоселье не оставили бесплатных мест для паркинга. Люди тотальный байкот надо им устроить, не покупайте квартиры у СТройтреста
Ответить
Полезный отзыв?
Добавьте отзыв, заполнив личные данные, или сначала войдите на сайт, тогда информация будет автоматически взята из личного профиля.
Оценка*