Переверните экран
Новостройки Квартиры Ипотека Медиа О проекте Контакты Реклама на сайте Vk Youtube Telegram Дзен Продавцы и застройщики Коммерческие помещения Квартиры на карте Эксперты и авторы Машиноместа Акции от застройщиков Банки и программы Апартаменты Новостройки на карте 4-комнатные и более Готовые новостройки 3-комнатные Военная ипотека Покупателю Новостройки Санкт-Петербурга Видеообзор новостроек Семейная ипотека Аналитика рынка Панорамы новостроек 1-комнатные Субсидированная застройщиком Мнение эксперта Студии Ипотечный калькулятор Новости недвижимости Новостройки Ленинградской области IT-ипотека Квартиры со скидками до 25% Новостройки премиум-класса Новостройки бизнес-класса Дома и коттеджи Бизнес-центры Бизнес-центры в Санкт-Петербурге Бизнес-центры рядом с метро Строящиеся бизнес-центры Бизнес-центры класса A
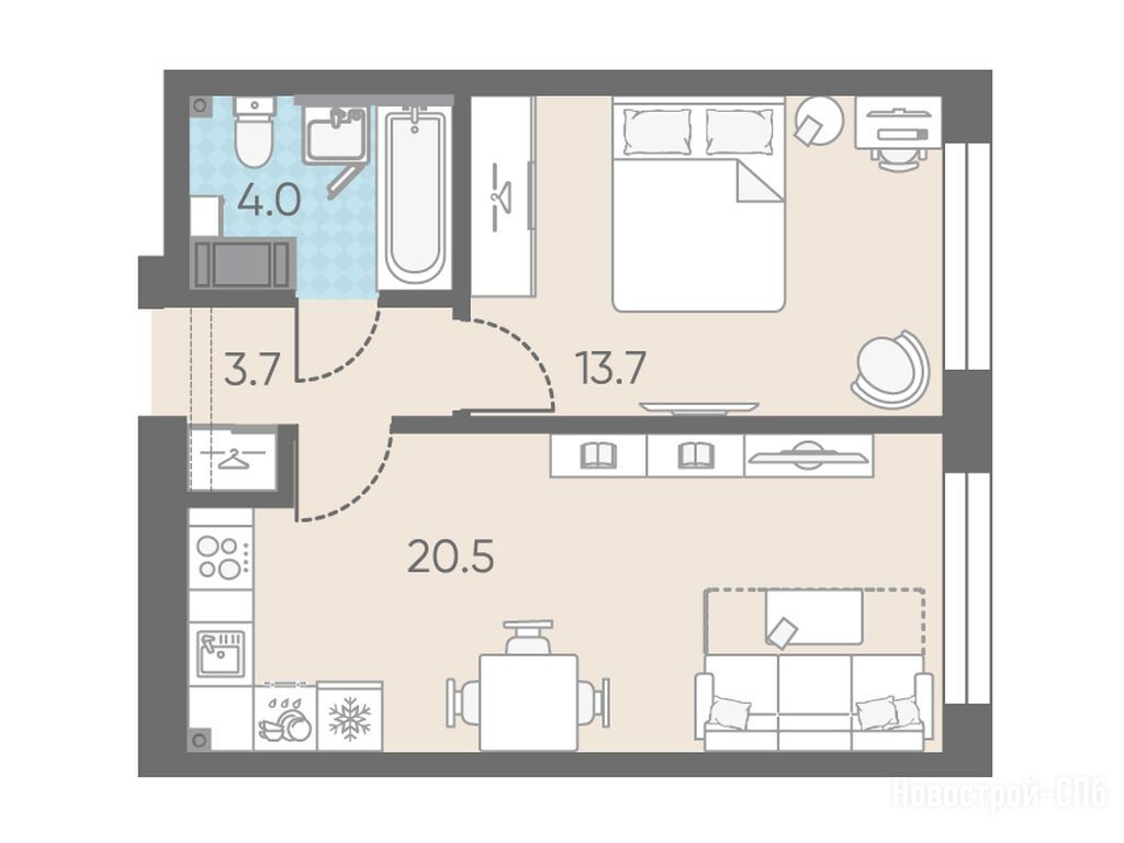
1-комн. квартира, 41.90 м2, 3 этаж
Срок сдачи 4 квартал 2027 года
18 750 250 
447 500 2
обновлено 15 декабря

Описание 1-комн. квартиры

Срок ГК
4 квартал 2027 года
Стадия строительства
Тип проекта
Общая площадь
41.90 м2
Жилая площадь
28.50 м2
Площадь кухни
5.70 м2
Высота потолков
2.50
Этаж
3 / 11
Отделка
white box
Вид из окна
во двор
Мусоропровод
есть
Грузовой лифт
есть

Расположение 1-комн. квартиры

Дом
1
Адрес
улица Егорова, 23БА, секция 2

Способы покупки

Особенности

Продается однокомнатная квартира в новостройке ЖК «ЛСР. Измайловский» по адресу Санкт-Петербург, Адмиралтейский, улица Егорова, 23БА. Общая площадь квартиры - 41.9 кв. м. Тип проекта, по которому построен дом — Монолит, компания-застройщик — ООО «ЛСР. Недвижимость–Северо-Запад». Стоимость квартиры — 18 750 250 руб. Способы оплаты можно уточнить у продавца. Срок сдачи — 4 квартал 2027. Более подробная информация по телефону.
Инфоцентр новостроек
Инфоцентр новостроек
+7 (812) 424-49-09
Время работы 9:00 — 21:00

Похожие квартиры в ЖК «ЛСР. Измайловский»

3 этаж
из 11 4 квартал 2027
Санкт-Петербург, Санкт-Петербург
Фрунзенская
11 мин.
1
Корпус
white box
Отделка
2.52 м
Потолки
ЖК «ЛСР. Измайловский»
18 750 250
Московский Кредитный Банк, Альфа-Банк, ВТБ, СберБанк, Совкомбанк, Уралсиб, ДОМ.РФ
6.00%
Ставка
50.01%
Первый взнос
от 112 417 /мес.
Все варианты
4 этаж
из 11 4 квартал 2027
Санкт-Петербург, Санкт-Петербург
Фрунзенская
11 мин.
1
Корпус
white box
Отделка
2.52 м
Потолки
ЖК «ЛСР. Измайловский»
18 926 230
Московский Кредитный Банк, Альфа-Банк, ВТБ, СберБанк, Совкомбанк, Уралсиб, ДОМ.РФ
6.00%
Ставка
50.01%
Первый взнос
от 113 472 /мес.
Все варианты
4 этаж
из 11 4 квартал 2027
Санкт-Петербург, Санкт-Петербург
Фрунзенская
11 мин.
1
Корпус
white box
Отделка
2.52 м
Потолки
ЖК «ЛСР. Измайловский»
18 926 230
Московский Кредитный Банк, Альфа-Банк, ВТБ, СберБанк, Совкомбанк, Уралсиб, ДОМ.РФ
6.00%
Ставка
50.01%
Первый взнос
от 113 472 /мес.
Все варианты
5 этаж
из 11 4 квартал 2027
Санкт-Петербург, Санкт-Петербург
Фрунзенская
11 мин.
1
Корпус
white box
Отделка
2.52 м
Потолки
ЖК «ЛСР. Измайловский»
19 110 590
Московский Кредитный Банк, Альфа-Банк, ВТБ, СберБанк, Совкомбанк, Уралсиб, ДОМ.РФ
6.00%
Ставка
50.01%
Первый взнос
от 114 578 /мес.
Все варианты
8 этаж
из 11 4 квартал 2027
Санкт-Петербург, Санкт-Петербург
Фрунзенская
11 мин.
1
Корпус
white box
Отделка
2.52 м
Потолки
ЖК «ЛСР. Измайловский»
20 158 090
Московский Кредитный Банк, Альфа-Банк, ВТБ, СберБанк, Совкомбанк, Уралсиб, ДОМ.РФ
6.00%
Ставка
50.01%
Первый взнос
от 120 858 /мес.
Все варианты
9 этаж
из 11 4 квартал 2027
Санкт-Петербург, Санкт-Петербург
Фрунзенская
11 мин.
1
Корпус
white box
Отделка
2.52 м
Потолки
ЖК «ЛСР. Измайловский»
20 598 040
Московский Кредитный Банк, Альфа-Банк, ВТБ, СберБанк, Совкомбанк, Уралсиб, ДОМ.РФ
6.00%
Ставка
50.01%
Первый взнос
от 123 496 /мес.
Все варианты
10 этаж
из 11 4 квартал 2027
Санкт-Петербург, Санкт-Петербург
Фрунзенская
11 мин.
1
Корпус
white box
Отделка
2.52 м
Потолки
ЖК «ЛСР. Измайловский»
21 033 800
Московский Кредитный Банк, Альфа-Банк, ВТБ, СберБанк, Совкомбанк, Уралсиб, ДОМ.РФ
6.00%
Ставка
50.01%
Первый взнос
от 126 108 /мес.
Все варианты
Посмотреть все спецпредложения
студия 20,40 м2 10 836 480
Этаж 7/11
СПБ, ЖК «ЛСР. Измайловский»
Фрунзенская
11 мин.
Строится
студия 20,50 м2 10 737 900
Этаж 4/11
СПБ, ЖК «ЛСР. Измайловский»
Фрунзенская
11 мин.
Строится
студия 20,80 м2 10 982 400
Этаж 7/11
СПБ, ЖК «ЛСР. Измайловский»
Фрунзенская
11 мин.
Строится
студия 20,90 м2 10 640 190
Этаж 2/11
СПБ, ЖК «ЛСР. Измайловский»
Фрунзенская
11 мин.
Строится
Посмотреть 31 квартира в ЖК «ЛСР. Измайловский»
1-комн. квартира 37,00 м2 17 811 800
Этаж 8/11
СПБ, ЖК «ЛСР. Измайловский»
Фрунзенская
11 мин.
Строится
1-комн. квартира 37,60 м2 16 495 120
Этаж 2/11
СПБ, ЖК «ЛСР. Измайловский»
Фрунзенская
11 мин.
Строится
1-комн. квартира 38,80 м2 17 347 480
Этаж 5/11
СПБ, ЖК «ЛСР. Измайловский»
Фрунзенская
11 мин.
Строится
1-комн. квартира 39,00 м2 19 184 100
Этаж 10/11
СПБ, ЖК «ЛСР. Измайловский»
Фрунзенская
11 мин.
Строится
Посмотреть 41 квартира в ЖК «ЛСР. Измайловский»
2-комн. квартира 65,30 м2 27 896 160
Этаж 8/11
СПБ, ЖК «ЛСР. Измайловский»
Фрунзенская
11 мин.
Строится

Скидки и спецпредложения от застройщиков

ЖК «ЛСР. Измайловский» на карте

Выгодные предложения на новостройки

Отзывы о ЖК «ЛСР. Измайловский»

Самый полезный отзыв
Р
16 июля 2024
Оценка:
Транспортная доступность
Социальная инфраструктура
Планировки
Внешний вид фасада
Интересный и крутой проект на сегодняшний день. Самое главное чтобы его реализовали так как его преподносят и показывают на картинках. Будет просто огонь.
Ответить
Полезный отзыв?
Самый новый отзыв
JM
29 сентября
Оценка:
Очень хорошие цены пока. Похоже, что это отличная возможность для первой покупки квартиры. Обязательно рассмотрим вариант.
Ответить
Полезный отзыв?
Добавьте отзыв, заполнив личные данные, или сначала войдите на сайт, тогда информация будет автоматически взята из личного профиля.
Оценка*