Переверните экран
Поиск домов и коттеджей

Найдите идеальный дом или коттедж в Санкт-Петербурге и области

Найдите идеальный дом или коттедж в Санкт-Петербурге и области

Перейти к поиску
Новостройки Квартиры Ипотека Медиа О проекте Контакты Реклама на сайте Vk Youtube Telegram Дзен Продавцы и застройщики Коммерческие помещения Квартиры на карте Эксперты и авторы Машиноместа Акции от застройщиков Банки и программы Апартаменты Новостройки на карте 4-комнатные и более Готовые новостройки 3-комнатные Военная ипотека Покупателю Новостройки Санкт-Петербурга Видеообзор новостроек Семейная ипотека Аналитика рынка Панорамы новостроек 1-комнатные Субсидированная застройщиком Мнение эксперта Студии Ипотечный калькулятор Новости недвижимости Новостройки Ленинградской области IT-ипотека Квартиры со скидками до 25% Новостройки премиум-класса Новостройки бизнес-класса Дома и коттеджи Бизнес-центры Бизнес-центры в Санкт-Петербурге Бизнес-центры рядом с метро Строящиеся бизнес-центры Бизнес-центры класса A
1-комн. квартира, 37.11 м2, 17 этаж
Сдан
7 069 847 
190 511 2
обновлено 5 декабря

Описание 1-комн. квартиры

Новостройка
Застройщик
Срок ГК
Дом сдан
Стадия строительства
сдан ГК
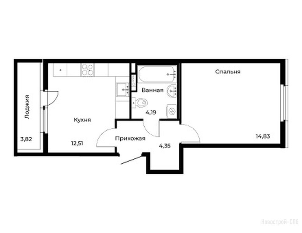
Общая площадь
37.11 м2
Этаж
17 / 18
Отделка
дизайнерская
Грузовой лифт
есть

Расположение 1-комн. квартиры

Метро
Ж/Д-станция
Дом
1
Адрес
Петровский бульвар, ЖК «Лето»

Особенности

Продается однокомнатная квартира в новостройке ЖК «Лето» (Бугры) по адресу Ленинградская область, Всеволожский район, Бугровское С/П, Бугры, Петровский бульвар, ЖК «Лето». Общая площадь квартиры - 37.11 кв. м. Тип проекта, по которому построен дом — Монолитно-кирпичный, компания-застройщик — СЗ «Бизнес мост». Стоимость квартиры — 7 069 847 руб. Способы оплаты можно уточнить у продавца. Более подробная информация по телефону.
Инфоцентр новостроек
Инфоцентр новостроек
+7 (812) 424-49-09
Время работы 9:00 — 21:00
Посмотреть все спецпредложения
студия 21,61 м2 5 110 766
Этаж 18/19
ЛО, ЖК «Лето» (Бугры)
Девяткино
20 мин.
Сдан
студия 22,53 м2 5 112 369
Этаж 18/19
ЛО, ЖК «Лето» (Бугры)
Девяткино
20 мин.
Сдан
студия 22,65 м2 5 481 300
Этаж 9/19
ЛО, ЖК «Лето» (Бугры)
Девяткино
20 мин.
Сдан
студия 23,47 м2 5 411 106
Этаж 17/19
ЛО, ЖК «Лето» (Бугры)
Девяткино
20 мин.
Сдан
Посмотреть 14 квартир в ЖК «Лето»
1-комн. квартира 32,85 м2 6 586 736
Этаж 9/19
ЛО, ЖК «Лето» (Бугры)
Девяткино
20 мин.
Сдан
Этаж 10/19
ЛО, ЖК «Лето» (Бугры)
Девяткино
20 мин.
Сдан
2-комн. квартира 33,51 м2 7 185 285
Этаж 18/19
ЛО, ЖК «Лето» (Бугры)
Девяткино
20 мин.
Сдан
2-комн. квартира 36,73 м2 7 753 066
Этаж 15/19
ЛО, ЖК «Лето» (Бугры)
Девяткино
20 мин.
Сдан
2-комн. квартира 36,86 м2 7 181 371
Этаж 12/19
ЛО, ЖК «Лето» (Бугры)
Девяткино
20 мин.
Сдан
Посмотреть 9 квартир в ЖК «Лето»

Скидки и спецпредложения от застройщиков

ЖК «Лето» (Бугры) на карте

Выгодные предложения на новостройки

Отзывы о ЖК «Лето»

Самый полезный отзыв
ЕС
28 февраля
Оценка:
Планировки
Способы покупки
Внешний вид фасада
Входные группы
Приятно удивила отделка квартиры, которая идет в подарок. По качеству она явно выше среднего! Все сделано с учётом современных трендов, используются качественные материалы, и в интерьере нет ничего лишнего. Мне особенно нравится, что отделка выглядит очень стильно и современно, абсолютно не возникает ощущения деревенского стиля, что важно для меня.
Ответить
Полезный отзыв?
Самый новый отзыв
М
31 августа
Оценка:
Инфраструктура комплекса полностью отвечает заявленным ожиданиям. В близости находятся несколько детских садов и школ. Добираться до них удобно и безопасно.
Ответить
Полезный отзыв?
Добавьте отзыв, заполнив личные данные, или сначала войдите на сайт, тогда информация будет автоматически взята из личного профиля.
Оценка*