Переверните экран
Поиск бизнес центров

Найдите современный офис в деловых районах Санкт-Петербурга

Найдите современный офис в деловых районах Санкт-Петербурга

Перейти к поиску
Новостройки Квартиры Ипотека Медиа О проекте Контакты Реклама на сайте Vk Youtube Telegram Дзен Продавцы и застройщики Коммерческие помещения Квартиры на карте Эксперты и авторы Машиноместа Акции от застройщиков Банки и программы Апартаменты Новостройки на карте 4-комнатные и более Готовые новостройки 3-комнатные Военная ипотека Покупателю Новостройки Санкт-Петербурга Видеообзор новостроек Семейная ипотека Аналитика рынка Панорамы новостроек 1-комнатные Субсидированная застройщиком Мнение эксперта Студии Ипотечный калькулятор Новости недвижимости Новостройки Ленинградской области ИТ-ипотека Квартиры со скидками до 25% Новостройки премиум-класса Новостройки бизнес-класса Дома и коттеджи Бизнес-центры Бизнес-центры в Санкт-Петербурге Бизнес-центры рядом с метро Строящиеся бизнес-центры Бизнес-центры класса A Ипотека со ставкой 0,1% Траншевая ипотека
1-комн. квартира, 45.90 м2, 1 этаж
Сдан
10 235 700 
223 000 2
обновлено 20 марта

Описание 1-комн. квартиры

Застройщик
Срок ГК
Дом сдан
Стадия строительства
выдача ключей + заселение
Тип проекта
панельный, монолитно-панельный
Общая площадь
45.90 м2
Этаж
1 / 12

Расположение 1-комн. квартиры

Метро
Дом
3 (оч.IV)
Адрес
Голландская ул., уч. 7 к.2

Особенности

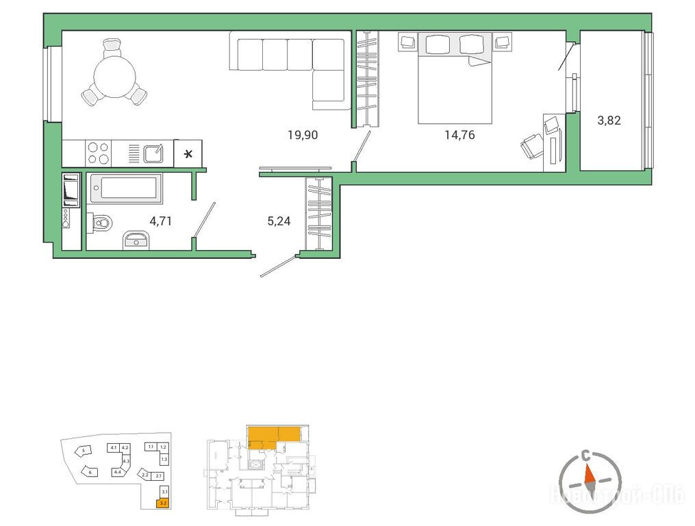
Продается однокомнатная квартира в новостройке ЖК Jaanila Drive (Янила Драйв) по адресу Ленинградская область, Всеволожский район, Янино-1, Голландская ул., уч. 7 к.2. Общая площадь квартиры - 45.9 кв. м. Тип проекта, по которому построен дом — Панельный,Монолитно-панельный, компания-застройщик — «Ленстройтрест». Стоимость квартиры — 10 235 700 руб. Способы оплаты можно уточнить у продавца. Более подробная информация по телефону.
Инфоцентр новостроек
Инфоцентр новостроек
+7 (812) 424-49-09
Время работы 9:00 — 21:00
студия 24,90 м2 6 822 600
Этаж 1/12
ЛО, ЖК Jaanila Drive (Янила Драйв)
Ладожская
22 мин.
Сдан
студия 25,00 м2 7 090 000
Этаж 10/12
ЛО, ЖК Jaanila Drive (Янила Драйв)
Ладожская
22 мин.
Сдан
студия 25,10 м2 6 977 800
Этаж 5/12
ЛО, ЖК Jaanila Drive (Янила Драйв)
Ладожская
22 мин.
Сдан
студия 25,20 м2 6 824 160
Этаж 1/12
ЛО, ЖК Jaanila Drive (Янила Драйв)
Ладожская
22 мин.
Сдан
Посмотреть 35 квартир в ЖК Jaanila Drive (Янила Драйв)
1-комн. квартира 30,00 м2 8 076 000
Этаж 8/12
ЛО, ЖК Jaanila Drive (Янила Драйв)
Ладожская
22 мин.
Сдан
1-комн. квартира 31,70 м2 7 966 210
Этаж 1/12
ЛО, ЖК Jaanila Drive (Янила Драйв)
Ладожская
22 мин.
Сдан
1-комн. квартира 32,20 м2 7 805 280
Этаж 1/12
ЛО, ЖК Jaanila Drive (Янила Драйв)
Ладожская
22 мин.
Сдан
1-комн. квартира 32,70 м2 8 246 940
Этаж 2/12
ЛО, ЖК Jaanila Drive (Янила Драйв)
Ладожская
22 мин.
Сдан
Посмотреть 55 квартир в ЖК Jaanila Drive (Янила Драйв)
2-комн. квартира 61,30 м2 10 911 400
Этаж 1/12
ЛО, ЖК Jaanila Drive (Янила Драйв)
Ладожская
22 мин.
Сдан
2-комн. квартира 61,40 м2 11 653 720
Этаж 8/12
ЛО, ЖК Jaanila Drive (Янила Драйв)
Ладожская
22 мин.
Сдан
2-комн. квартира 61,50 м2 11 672 700
Этаж 5/12
ЛО, ЖК Jaanila Drive (Янила Драйв)
Ладожская
22 мин.
Сдан
2-комн. квартира 61,60 м2 11 500 720
Этаж 2/12
ЛО, ЖК Jaanila Drive (Янила Драйв)
Ладожская
22 мин.
Сдан
Посмотреть 8 квартир в ЖК Jaanila Drive (Янила Драйв)
Этаж 1/12
ЛО, ЖК Jaanila Drive (Янила Драйв)
Ладожская
22 мин.
Сдан

Скидки и спецпредложения от застройщиков

ЖК Jaanila Drive (Янила Драйв) на карте

Выгодные предложения на новостройки

Отзывы о ЖК Jaanila Drive (Янила Драйв)

Самый полезный отзыв
ИЦ
14 мая 2018
Оценка:
Достоинства
Транспортная доступность
Экология
Планировки
Двор, окружение
Расположение
Кантри очень классный ЖК! Яркие фасады, удобные планировки. Драйв обещает быть не чуть не хуже, учитывая что это один проект концепция также будет одна. Расположение очень удобное, рядом остановка автобусная, можно без проблем добраться до метро, плюс своя инфраструктура!
Показать все комментарии
Ответить
Самый новый отзыв
ЯМ
16 марта
Оценка:
Достоинства
Внешний вид фасада
Двор, окружение
У проекта уже сформирован образ более продуманной среды, и это чувствуется. Обычно хвалят общий подход к дворам и кварталу, но Янино все равно остается Янино: если каждый день ездить в город, транспортный фактор рано или поздно начинает влиять на общее впечатление.
Ответить

Оставить отзыв

Добавьте отзыв, заполнив личные данные, или сначала войдите на сайт, тогда информация будет автоматически взята из личного профиля.
Оценка*