Переверните экран
Поиск бизнес центров

Найдите современный офис в деловых районах Санкт-Петербурга

Найдите современный офис в деловых районах Санкт-Петербурга

Перейти к поиску
Новостройки Квартиры Ипотека Медиа О проекте Контакты Реклама на сайте Vk Youtube Telegram Дзен Продавцы и застройщики Коммерческие помещения Квартиры на карте Эксперты и авторы Машиноместа Акции от застройщиков Банки и программы Апартаменты Новостройки на карте 4-комнатные и более Готовые новостройки 3-комнатные Военная ипотека Покупателю Новостройки Санкт-Петербурга Видеообзор новостроек Семейная ипотека Аналитика рынка Панорамы новостроек 1-комнатные Субсидированная застройщиком Мнение эксперта Студии Ипотечный калькулятор Новости недвижимости Новостройки Ленинградской области ИТ-ипотека Квартиры со скидками до 25% Новостройки премиум-класса Новостройки бизнес-класса Дома и коттеджи Бизнес-центры Бизнес-центры в Санкт-Петербурге Бизнес-центры рядом с метро Строящиеся бизнес-центры Бизнес-центры класса A Ипотека со ставкой 0,1% Траншевая ипотека
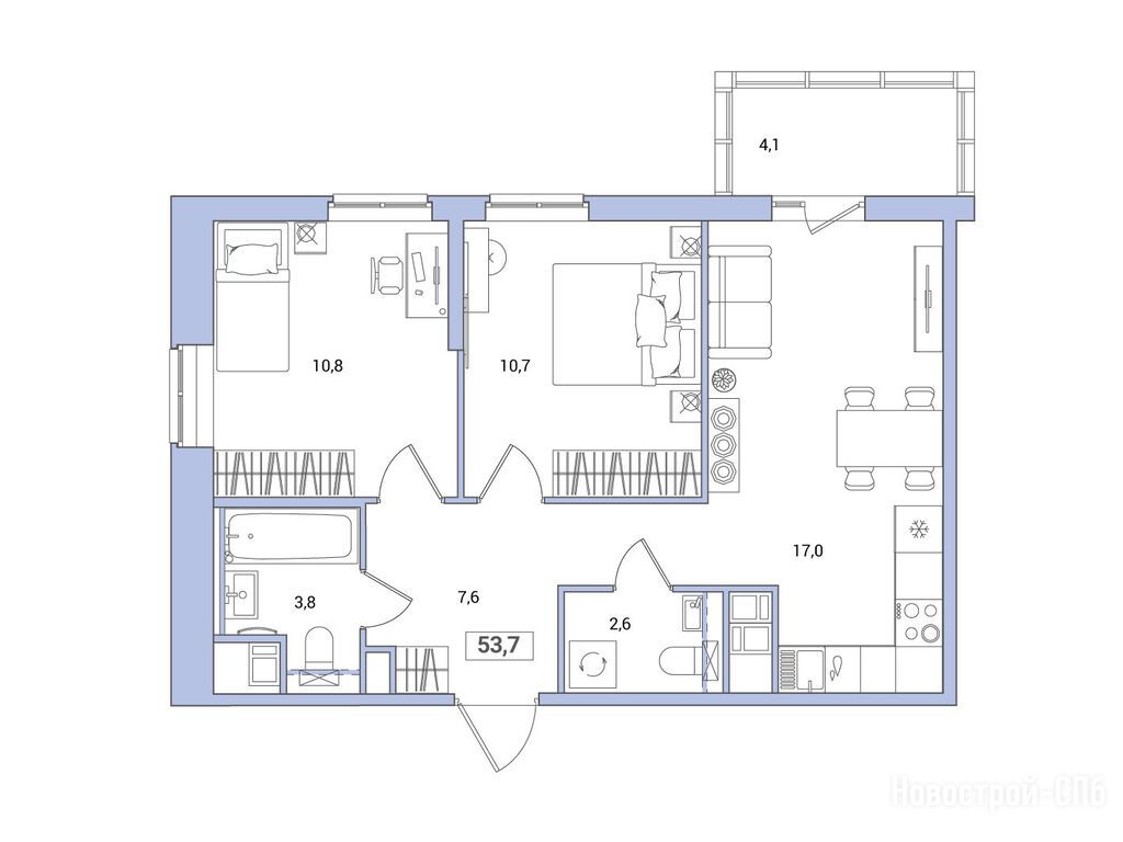
2-комн. квартира, 53.70 м2, 2 этаж
Срок сдачи 4 квартал 2026 года
9 504 900 
177 000 2
обновлено 20 марта

Описание 2-комн. квартиры

Новостройка
Застройщик
Срок ГК
4 квартал 2026 года
Стадия строительства
отделка фасада и внутренние работы
Тип проекта
монолитно-панельный
Общая площадь
53.70 м2
Жилая площадь
21.50 м2
Площадь кухни
17.00 м2
Этаж
2 / 10
Отделка
чистовая
Грузовой лифт
есть

Расположение 2-комн. квартиры

Метро
Дом
2
Адрес
ул. Голландская, секция 4

Особенности

Продается двухкомнатная квартира в новостройке ЖК «Янила Форест» по адресу Ленинградская область, Всеволожский район, Янино-1, ул. Голландская. Общая площадь квартиры - 53.7 кв. м. Тип проекта, по которому построен дом — Монолитно-панельный, компания-застройщик — «Ленстройтрест». Стоимость квартиры — 9 504 900 руб. Способы оплаты можно уточнить у продавца. Срок сдачи — 4 квартал 2026. Более подробная информация по телефону.
Инфоцентр новостроек
Инфоцентр новостроек
+7 (812) 424-49-09
Время работы 9:00 — 21:00

Похожие квартиры в ЖК «Янила Форест»

4 этаж
из 10 4 квартал 2026
Ленинградская область, Всеволожский район
Ладожская
26 мин.
2
Корпус
чистовая
Отделка
2.74 м
Потолки
ЖК «Янила Форест»
9 601 560
7 этаж
из 10 4 квартал 2026
Ленинградская область, Всеволожский район
Ладожская
26 мин.
2
Корпус
чистовая
Отделка
2.74 м
Потолки
ЖК «Янила Форест»
9 644 520
6 этаж
из 10 4 квартал 2026
Ленинградская область, Всеволожский район
Ладожская
26 мин.
2
Корпус
чистовая
Отделка
2.74 м
Потолки
ЖК «Янила Форест»
9 644 520
5 этаж
из 10 4 квартал 2026
Ленинградская область, Всеволожский район
Ладожская
26 мин.
2
Корпус
чистовая
Отделка
2.74 м
Потолки
ЖК «Янила Форест»
9 644 520
8 этаж
из 10 4 квартал 2026
Ленинградская область, Всеволожский район
Ладожская
26 мин.
2
Корпус
чистовая
Отделка
2.74 м
Потолки
ЖК «Янила Форест»
9 698 220
9 этаж
из 10 4 квартал 2026
Ленинградская область, Всеволожский район
Ладожская
26 мин.
2
Корпус
чистовая
Отделка
2.74 м
Потолки
ЖК «Янила Форест»
9 886 170
студия 24,70 м2 5 584 670
Этаж 9/10
ЛО, ЖК «Янила Форест»
Ладожская
26 мин.
Строится
Этаж 2/12
ЛО, ЖК «Янила Форест»
Ладожская
26 мин.
Строится
Этаж 3/12
ЛО, ЖК «Янила Форест»
Ладожская
26 мин.
Строится
студия 30,70 м2 6 367 180
Этаж 6/12
ЛО, ЖК «Янила Форест»
Ладожская
26 мин.
Строится
Посмотреть 68 квартир в ЖК «Янила Форест»
1-комн. квартира 33,90 м2 6 512 190
Этаж 11/11
ЛО, ЖК «Янила Форест»
Ладожская
26 мин.
Строится
1-комн. квартира 34,10 м2 6 455 130
Этаж 5/8
ЛО, ЖК «Янила Форест»
Ладожская
26 мин.
Строится
1-комн. квартира 34,40 м2 6 876 560
Этаж 12/12
ЛО, ЖК «Янила Форест»
Ладожская
26 мин.
Строится
Этаж 2/12
ЛО, ЖК «Янила Форест»
Ладожская
26 мин.
Строится
Посмотреть 126 квартир в ЖК «Янила Форест»
2-комн. квартира 48,10 м2 8 701 290
Этаж 2/10
ЛО, ЖК «Янила Форест»
Ладожская
26 мин.
Строится
Этаж 2/12
ЛО, ЖК «Янила Форест»
Ладожская
26 мин.
Строится
2-комн. квартира 53,70 м2 9 601 560
Этаж 4/10
ЛО, ЖК «Янила Форест»
Ладожская
26 мин.
Строится
2-комн. квартира 54,70 м2 9 884 290
Этаж 3/10
ЛО, ЖК «Янила Форест»
Ладожская
26 мин.
Строится
Посмотреть 68 квартир в ЖК «Янила Форест»
3-комн. квартира 73,50 м2 14 031 150
Этаж 2/12
ЛО, ЖК «Янила Форест»
Ладожская
26 мин.
Строится
Этаж 2/12
ЛО, ЖК «Янила Форест»
Ладожская
26 мин.
Строится
Посмотреть 24 квартиры в ЖК «Янила Форест»

Скидки и спецпредложения от застройщиков

ЖК «Янила Форест» на карте

Выгодные предложения на новостройки

Отзывы о ЖК «Янила Форест»

Самый полезный отзыв
Р
27 января 2025
Оценка:
Достоинства
Транспортная доступность
Экология
Планировки
Живу в двухкомнатной квартире, и мне вполне хватает места. Потолки высокие, квартира светлая. Чувствуется, что место спланировано удобно)) смотрел в форесте планировки тоже классные, жду сдачи, чтобы оценить вживую
Ответить
Самый новый отзыв
Т
29 января
Оценка:
Достоинства
Социальная инфраструктура
Планировки
Отдельно радует паркинг и кладовые на технических этажах. Удобно, что не нужно искать места для всего своего хозяйства.
Ответить

Оставить отзыв

Добавьте отзыв, заполнив личные данные, или сначала войдите на сайт, тогда информация будет автоматически взята из личного профиля.
Оценка*