Переверните экран
Поиск домов и коттеджей

Найдите идеальный дом или коттедж в Санкт-Петербурге и области

Найдите идеальный дом или коттедж в Санкт-Петербурге и области

Перейти к поиску
Новостройки Квартиры Ипотека Медиа О проекте Контакты Реклама на сайте Vk Youtube Telegram Дзен Продавцы и застройщики Коммерческие помещения Квартиры на карте Эксперты и авторы Машиноместа Акции от застройщиков Банки и программы Апартаменты Новостройки на карте 4-комнатные и более Готовые новостройки 3-комнатные Военная ипотека Покупателю Новостройки Санкт-Петербурга Видеообзор новостроек Семейная ипотека Аналитика рынка Панорамы новостроек 1-комнатные Субсидированная застройщиком Мнение эксперта Студии Ипотечный калькулятор Новости недвижимости Новостройки Ленинградской области ИТ-ипотека Квартиры со скидками до 25% Новостройки премиум-класса Новостройки бизнес-класса Дома и коттеджи Коттеджные поселки в Санкт-Петербурге Коттеджные поселки в Ленинградской обл Готовые коттеджные поселки Строящиеся коттеджные поселки Коттеджные поселки у леса Коттеджные поселки у водоема Коттеджные поселки в ипотеку Бизнес-центры Коттеджи Ипотека со ставкой 0,1% Траншевая ипотека
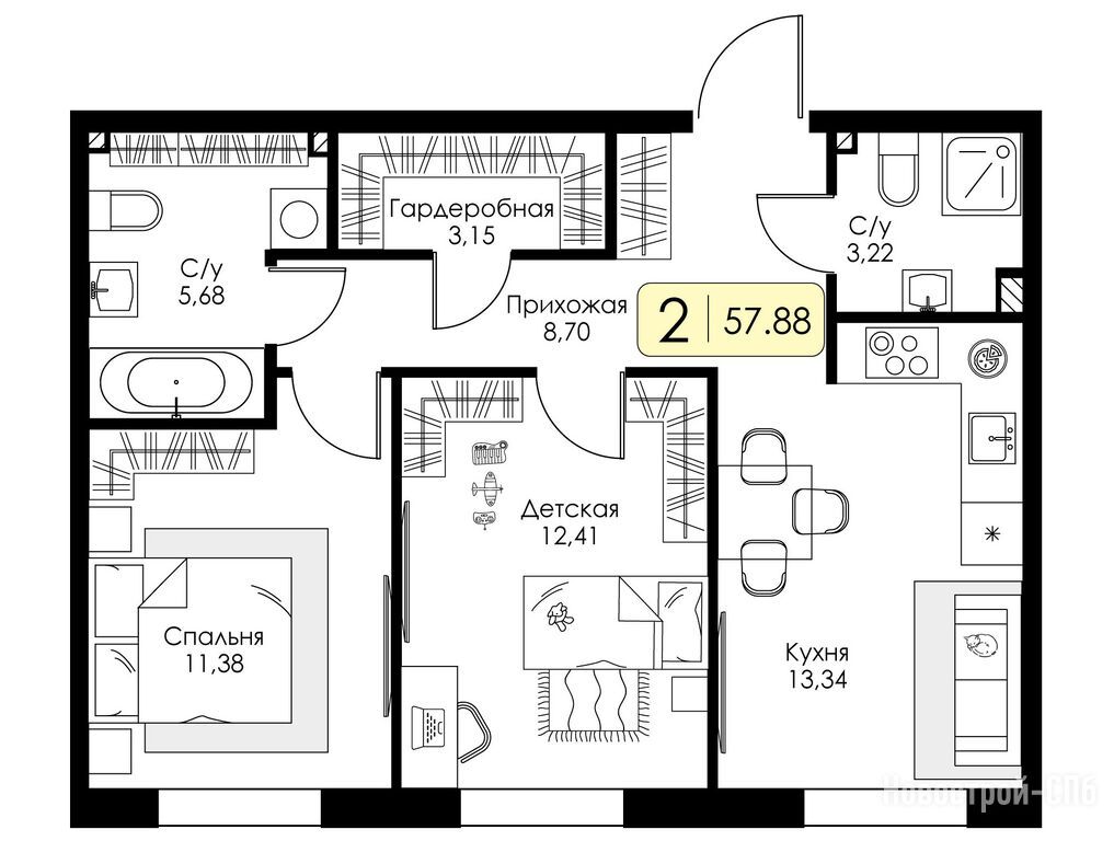
2-комн. квартира, 57.88 м2, 2 этаж
Срок сдачи 4 квартал 2027 года
8 797 760 
10 997 200
152 000 2
обновлено 15 мая

Описание 2-комн. квартиры

Новостройка
Срок ГК
4 квартал 2027 года
Стадия строительства
уточняется
Общая площадь
57.88 м2
Этаж
2 / 5
Отделка
предчистовая
Грузовой лифт
есть

Расположение 2-комн. квартиры

Метро
Ж/Д-станция
Дом
1.1
Адрес
поселок Романовка, ЖК «Всевгород», корпус 1.1

Способы покупки

Особенности

Продается двухкомнатная квартира в новостройке ЖК «Всевгород» по адресу Ленинградская область, Всеволожский район, поселок Романовка, ЖК «Всевгород», корпус 1.1. Общая площадь квартиры - 57.88 кв. м. Тип проекта, по которому построен дом — Монолитно-кирпичный, компания-застройщик — Группа компаний «Консоль», ООО СЗ РОМАНОВКА 1. Стоимость квартиры — 8 797 760 руб. Способы оплаты можно уточнить у продавца. Срок сдачи — 4 квартал 2027. Более подробная информация по телефону.

Правовые документы

Инфоцентр новостроек
Инфоцентр новостроек
Время работы 9:00 — 21:00
Выбирайте квартиру в ЖК «Всевгород» по ценам от застройщика

Похожие квартиры в ЖК «Всевгород»

2 этаж
из 5 4 квартал 2027
Ленинградская область, Ленинградская область
Ладожская
31 мин.
1.1
Корпус
предчистовая
Отделка
2.85 м
Потолки
ЖК «Всевгород»
8 797 760 10 997 200
ДОМ.РФ
6.00%
Ставка
20.01%
Первый взнос
от 52 747 /мес.
Все варианты
студия 28,61 м2 4 939 517
Этаж 4/5
ЛО, ЖК «Всевгород»
Ладожская
31 мин.
Строится
студия 28,62 м2 4 967 001
Этаж 4/5
ЛО, ЖК «Всевгород»
Ладожская
31 мин.
Строится
студия 28,68 м2 4 950 168
Этаж 3/5
ЛО, ЖК «Всевгород»
Ладожская
31 мин.
Строится
студия 28,70 м2 4 978 015
Этаж 3/5
ЛО, ЖК «Всевгород»
Ладожская
31 мин.
Строится
Посмотреть 6 квартир в ЖК «Всевгород»
1-комн. квартира 33,78 м2 5 477 427
Этаж 4/5
ЛО, ЖК «Всевгород»
Ладожская
31 мин.
Строится
1-комн. квартира 33,79 м2 5 479 049
Этаж 4/5
ЛО, ЖК «Всевгород»
Ладожская
31 мин.
Строится
1-комн. квартира 33,89 м2 5 491 875
Этаж 3/5
ЛО, ЖК «Всевгород»
Ладожская
31 мин.
Строится
1-комн. квартира 34,01 м2 5 399 088
Этаж 2/5
ЛО, ЖК «Всевгород»
Ладожская
31 мин.
Строится
Посмотреть 74 квартиры в ЖК «Всевгород»
2-комн. квартира 44,56 м2 7 165 248
Этаж 4/5
ЛО, ЖК «Всевгород»
Ладожская
31 мин.
Строится
2-комн. квартира 44,67 м2 7 180 703
Этаж 3/5
ЛО, ЖК «Всевгород»
Ладожская
31 мин.
Строится
2-комн. квартира 44,79 м2 7 197 753
Этаж 2/5
ЛО, ЖК «Всевгород»
Ладожская
31 мин.
Строится
2-комн. квартира 44,88 м2 7 252 608
Этаж 2/5
ЛО, ЖК «Всевгород»
Ладожская
31 мин.
Строится
Посмотреть 38 квартир в ЖК «Всевгород»
3-комн. квартира 57,77 м2 9 867 116
Этаж 4/5
ЛО, ЖК «Всевгород»
Ладожская
31 мин.
Строится
3-комн. квартира 57,78 м2 9 877 491
Этаж 4/5
ЛО, ЖК «Всевгород»
Ладожская
31 мин.
Строится
3-комн. квартира 57,90 м2 9 895 110
Этаж 3/5
ЛО, ЖК «Всевгород»
Ладожская
31 мин.
Строится
3-комн. квартира 57,93 м2 9 885 755
Этаж 3/5
ЛО, ЖК «Всевгород»
Ладожская
31 мин.
Строится
Посмотреть 11 квартир в ЖК «Всевгород»

Скидки и спецпредложения от застройщиков

ЖК «Всевгород» на карте

Выгодные предложения на новостройки

Отзывы о ЖК «Всевгород»

Самый полезный отзыв
АС
31 августа 2025
Оценка:
Очень довольна выбранной планировкой. Кухня, гостиная просто огромные, а спальня правильной формы, удобно для расстановки мебели. Спасибо за такие решения!
Ответить
Самый новый отзыв
ИБ
17 декабря 2025
Оценка:
Достоинства
Планировки
Способы покупки
Внешний вид фасада
Двор, окружение
Расположение
В Всевгороде забронировал квартиру, когда увидел концепт малоэтажного квартала, но сейчас больше перечитываю новости, чем радуюсь покупке. Срок сдачи заявлен на 2027 год, а по отзывам дольщиков бывали сложности с переаккредитацией и работой офиса продаж, что настораживает. Надеюсь, что застройщик подтвердит репутацию и доведёт проект до конца, но запас по срокам закладываю сразу.
Ответить

Оставить отзыв

Добавьте отзыв, заполнив личные данные, или сначала войдите на сайт, тогда информация будет автоматически взята из личного профиля.
Оценка*