Переверните экран
Поиск бизнес центров

Найдите современный офис в деловых районах Санкт-Петербурга

Найдите современный офис в деловых районах Санкт-Петербурга

Перейти к поиску
Новостройки Квартиры Ипотека Медиа О проекте Контакты Реклама на сайте Vk Youtube Telegram Дзен Продавцы и застройщики Коммерческие помещения Квартиры на карте Эксперты и авторы Машиноместа Акции от застройщиков Банки и программы Апартаменты Новостройки на карте 4-комнатные и более Готовые новостройки 3-комнатные Военная ипотека Покупателю Новостройки Санкт-Петербурга Видеообзор новостроек Семейная ипотека Аналитика рынка Панорамы новостроек 1-комнатные Субсидированная застройщиком Мнение эксперта Студии Ипотечный калькулятор Новости недвижимости Новостройки Ленинградской области ИТ-ипотека Квартиры со скидками до 25% Новостройки премиум-класса Новостройки бизнес-класса Дома и коттеджи Бизнес-центры Бизнес-центры в Санкт-Петербурге Бизнес-центры рядом с метро Строящиеся бизнес-центры Бизнес-центры класса A Ипотека со ставкой 0,1% Траншевая ипотека
2-комн. квартира, 36.92 м2, 9 этаж
Срок сдачи 1 квартал 2027 года
6 394 726 
173 205 2
обновлено 20 марта

Описание 2-комн. квартиры

Срок ГК
1 квартал 2027 года
Стадия строительства
монтаж средних этажей
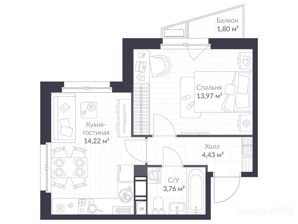
Общая площадь
36.92 м2
Жилая площадь
13.97 м2
Площадь кухни
14.22 м2
Этаж
9 / 11
Отделка
нет
Грузовой лифт
есть

Расположение 2-комн. квартиры

Дом
6
Адрес
ул. Дмитрия Кожемякина (корп.6), секция 6

Особенности

Продается двухкомнатная квартира в новостройке ЖК «Верен Норт Сертолово» по адресу Ленинградская область, Всеволожский район, Сертолово, ул. Дмитрия Кожемякина (корп.6). Общая площадь квартиры - 36.92 кв. м. Тип проекта, по которому построен дом — Монолитно-кирпичный, компания-застройщик — Veren Group (Верен Груп), СЗ МКД 2. Стоимость квартиры — 6 394 726 руб. Способы оплаты можно уточнить у продавца. Срок сдачи — 1 квартал 2027. Более подробная информация по телефону.
Инфоцентр новостроек
Инфоцентр новостроек
+7 (812) 424-49-09
Время работы 9:00 — 21:00

Похожие квартиры в ЖК «Верен Норт Сертолово»

8 этаж
из 11 1 квартал 2027
Ленинградская область, Всеволожский район
Проспект Просвещения
39 мин.
6
Корпус
нет
Отделка
2.82 м
Потолки
ЖК «Верен Норт Сертолово»
6 225 040
10 этаж
из 11 1 квартал 2027
Ленинградская область, Всеволожский район
Проспект Просвещения
39 мин.
6
Корпус
нет
Отделка
2.82 м
Потолки
ЖК «Верен Норт Сертолово»
6 454 985
студия 22,18 м2 4 048 689
Этаж 10/11
ЛО, ЖК «Верен Норт Сертолово»
Проспект Просвещения
39 мин.
Строится
студия 22,48 м2 3 999 806
Этаж 8/11
ЛО, ЖК «Верен Норт Сертолово»
Проспект Просвещения
39 мин.
Строится
студия 22,50 м2 3 888 179
Этаж 5/11
ЛО, ЖК «Верен Норт Сертолово»
Проспект Просвещения
39 мин.
Строится
студия 24,01 м2 3 956 209
Этаж 3/11
ЛО, ЖК «Верен Норт Сертолово»
Проспект Просвещения
39 мин.
Строится
Посмотреть 210 квартир в ЖК «Верен Норт Сертолово»
1-комн. квартира 32,13 м2 5 255 121
Этаж 4/11
ЛО, ЖК «Верен Норт Сертолово»
Проспект Просвещения
39 мин.
Строится
1-комн. квартира 32,14 м2 5 288 655
Этаж 3/11
ЛО, ЖК «Верен Норт Сертолово»
Проспект Просвещения
39 мин.
Строится
1-комн. квартира 32,17 м2 5 261 664
Этаж 4/11
ЛО, ЖК «Верен Норт Сертолово»
Проспект Просвещения
39 мин.
Строится
1-комн. квартира 32,27 м2 5 254 901
Этаж 3/11
ЛО, ЖК «Верен Норт Сертолово»
Проспект Просвещения
39 мин.
Строится
Посмотреть 60 квартир в ЖК «Верен Норт Сертолово»
2-комн. квартира 35,18 м2 5 723 597
Этаж 3/11
ЛО, ЖК «Верен Норт Сертолово»
Проспект Просвещения
39 мин.
Строится
2-комн. квартира 35,90 м2 7 622 021
Этаж 11/11
ЛО, ЖК «Верен Норт Сертолово»
Проспект Просвещения
39 мин.
Строится
2-комн. квартира 36,90 м2 5 778 872
Этаж 6/11
ЛО, ЖК «Верен Норт Сертолово»
Проспект Просвещения
39 мин.
Строится
2-комн. квартира 36,92 м2 5 729 836
Этаж 10/11
ЛО, ЖК «Верен Норт Сертолово»
Проспект Просвещения
39 мин.
Строится
Посмотреть 309 квартир в ЖК «Верен Норт Сертолово»
3-комн. квартира 48,63 м2 7 830 098
Этаж 3/11
ЛО, ЖК «Верен Норт Сертолово»
Проспект Просвещения
39 мин.
Строится
3-комн. квартира 48,64 м2 7 908 420
Этаж 4/11
ЛО, ЖК «Верен Норт Сертолово»
Проспект Просвещения
39 мин.
Строится
3-комн. квартира 48,73 м2 7 923 053
Этаж 4/11
ЛО, ЖК «Верен Норт Сертолово»
Проспект Просвещения
39 мин.
Строится
3-комн. квартира 49,11 м2 7 832 944
Этаж 2/11
ЛО, ЖК «Верен Норт Сертолово»
Проспект Просвещения
39 мин.
Строится
Посмотреть 148 квартир в ЖК «Верен Норт Сертолово»
4-комн. квартира 74,43 м2 12 567 757
Этаж 2/11
ЛО, ЖК «Верен Норт Сертолово»
Проспект Просвещения
39 мин.
Строится
4-комн. квартира 75,03 м2 12 609 091
Этаж 1/11
ЛО, ЖК «Верен Норт Сертолово»
Проспект Просвещения
39 мин.
Строится
4-комн. квартира 76,03 м2 13 595 245
Этаж 9/11
ЛО, ЖК «Верен Норт Сертолово»
Проспект Просвещения
39 мин.
Строится
4-комн. квартира 78,66 м2 16 913 934
Этаж 11/11
ЛО, ЖК «Верен Норт Сертолово»
Проспект Просвещения
39 мин.
Строится
Посмотреть 20 квартир в ЖК «Верен Норт Сертолово»

Скидки и спецпредложения от застройщиков

ЖК «Верен Норт Сертолово» на карте

Выгодные предложения на новостройки

Отзывы о ЖК «Верен Норт Сертолово»

Самый полезный отзыв
В
23 октября 2023
Оценка:
Ждать до 25 года бы не рискнул, если бы не узнал, что финансирует проект банк дом.рф. Бюджет значит заранее заложен, риски с поставками оборудования, стройматериалов и прочего точно исключены. Короче говоря, стройка на подстраховке.
Ответить
Самый новый отзыв
И
19 марта
Оценка:
Недавно смотрел варианты квартир и наткнулся на жилой комплекс Верен Норт Сертолово. Можно сказать, повезло, у них сейчас действует юбилейная скидка 30%. Место у жк тоже удачное, вокруг сосновый лес, а это значит свежий воздух и природа рядом. В целом комплекс выглядит неплохо, тут и комфортно жить, и природа совсем рядом. Думаю, стоит купить квартиру, пока такие условия выгодные.
Ответить

Оставить отзыв

Добавьте отзыв, заполнив личные данные, или сначала войдите на сайт, тогда информация будет автоматически взята из личного профиля.
Оценка*