Переверните экран
Поиск домов и коттеджей

Найдите идеальный дом или коттедж в Санкт-Петербурге и области

Найдите идеальный дом или коттедж в Санкт-Петербурге и области

Перейти к поиску
Новостройки Квартиры Ипотека Медиа О проекте Контакты Реклама на сайте Vk Youtube Telegram Дзен Продавцы и застройщики Коммерческие помещения Квартиры на карте Эксперты и авторы Машиноместа Акции от застройщиков Банки и программы Апартаменты Новостройки на карте 4-комнатные и более Готовые новостройки 3-комнатные Военная ипотека Покупателю Новостройки Санкт-Петербурга Видеообзор новостроек Семейная ипотека Аналитика рынка Панорамы новостроек 1-комнатные Субсидированная застройщиком Мнение эксперта Студии Ипотечный калькулятор Новости недвижимости Новостройки Ленинградской области ИТ-ипотека Квартиры со скидками до 25% Новостройки премиум-класса Новостройки бизнес-класса Дома и коттеджи Коттеджные поселки в Санкт-Петербурге Коттеджные поселки в Ленинградской обл Готовые коттеджные поселки Строящиеся коттеджные поселки Коттеджные поселки у леса Коттеджные поселки у водоема Коттеджные поселки в ипотеку Бизнес-центры Коттеджи Ипотека со ставкой 0,1% Траншевая ипотека
2-комн. квартира, 52.70 м2, 3 этаж
Сдан
8 695 500 
165 000 2
обновлено 5 мая

Описание 2-комн. квартиры

Застройщик
Срок ГК
Дом сдан
Стадия строительства
Общая площадь
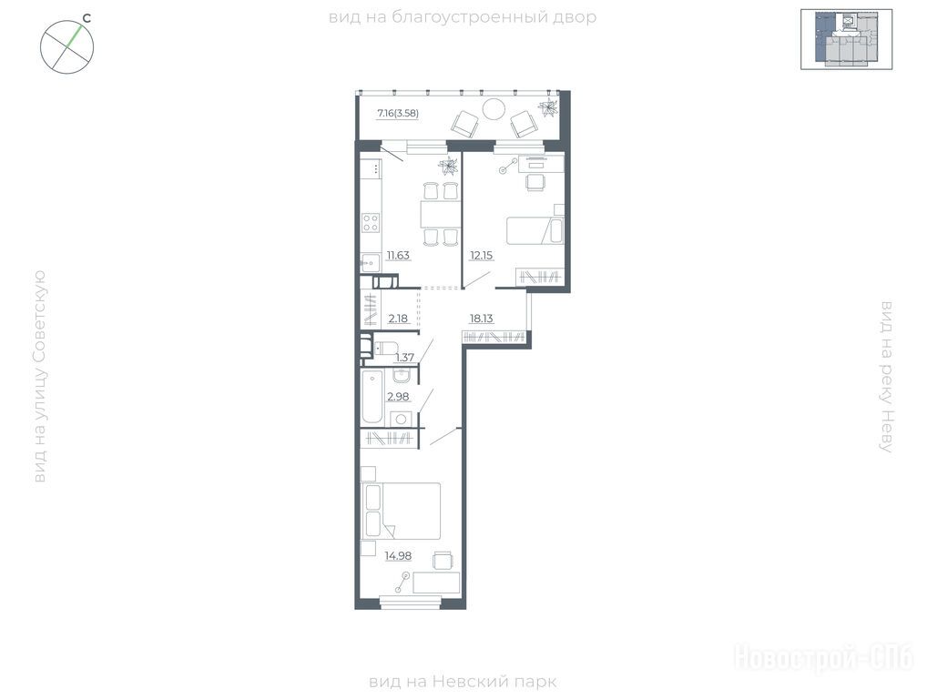
52.70 м2
Этаж
3 / 5
Отделка
предчистовая

Расположение 2-комн. квартиры

Метро
Ж/Д-станция
Дом
1
Адрес
ул. Невская, 2

Способы покупки

Особенности

Продается двухкомнатная квартира в новостройке ЖК «Невский берег» (Дубровка) по адресу Ленинградская область, Всеволожский район, Дубровское городское поселение, пос. Дубровка, ул. Невская, 2. Общая площадь квартиры - 52.7 кв. м. Тип проекта, по которому построен дом — Монолитно-кирпичный, компания-застройщик — ЛенОблСтрой. Стоимость квартиры — 8 695 500 руб. Способы оплаты можно уточнить у продавца. Более подробная информация по телефону.
Инфоцентр новостроек
Инфоцентр новостроек
Время работы 9:00 — 21:00
Выбирайте квартиру в ЖК «Невский берег» (Дубровка) по ценам от застройщика
Этаж 3/5
ЛО, ЖК «Невский берег» (Дубровка)
Улица Дыбенко
38 мин.
Сдан
Этаж 4/5
ЛО, ЖК «Невский берег» (Дубровка)
Улица Дыбенко
38 мин.
Сдан
Этаж 3/5
ЛО, ЖК «Невский берег» (Дубровка)
Улица Дыбенко
38 мин.
Сдан
Этаж 5/5
ЛО, ЖК «Невский берег» (Дубровка)
Улица Дыбенко
38 мин.
Сдан
Посмотреть 13 квартир в ЖК «Невский берег»
Этаж 5/5
ЛО, ЖК «Невский берег» (Дубровка)
Улица Дыбенко
38 мин.
Сдан
1-комн. квартира 37,60 м2 5 264 000
Этаж 1/5
ЛО, ЖК «Невский берег» (Дубровка)
Улица Дыбенко
38 мин.
Сдан
Этаж 4/5
ЛО, ЖК «Невский берег» (Дубровка)
Улица Дыбенко
38 мин.
Сдан
Этаж 5/5
ЛО, ЖК «Невский берег» (Дубровка)
Улица Дыбенко
38 мин.
Сдан
Посмотреть 22 квартиры в ЖК «Невский берег»
Этаж 2/5
ЛО, ЖК «Невский берег» (Дубровка)
Улица Дыбенко
38 мин.
Сдан
Этаж 3/5
ЛО, ЖК «Невский берег» (Дубровка)
Улица Дыбенко
38 мин.
Сдан
Этаж 2/5
ЛО, ЖК «Невский берег» (Дубровка)
Улица Дыбенко
38 мин.
Сдан
Этаж 4/5
ЛО, ЖК «Невский берег» (Дубровка)
Улица Дыбенко
38 мин.
Сдан
Посмотреть 30 квартир в ЖК «Невский берег»
Этаж 5/5
ЛО, ЖК «Невский берег» (Дубровка)
Улица Дыбенко
38 мин.
Сдан

Скидки и спецпредложения от застройщиков

ЖК «Невский берег» (Дубровка) на карте

Выгодные предложения на новостройки

Отзывы о ЖК «Невский берег»

Самый полезный отзыв
К
28 февраля 2025
Оценка:
Достоинства
Планировки
Способы покупки
Внешний вид фасада
Двор, окружение
Расположение
сложилось положительное мнение о нем. Хорошее место в удалённости от города обеспечивает спокойствие и тишину. Здесь можно отдохнуть от городской суеты и насладиться природой. Приятные прогулки по прилегающей территории дарят комфорт и расслабление. Рассматриваю покупку как вложение средств.
Ответить
Самый новый отзыв
С
28 февраля
Оценка:
Пока что комплекс не до конца обустроен, но в целом с хорошими планировками. Очень шумно в выходные. По транспортной доступности нормально
Ответить

Оставить отзыв

Добавьте отзыв, заполнив личные данные, или сначала войдите на сайт, тогда информация будет автоматически взята из личного профиля.
Оценка*