Переверните экран
Поиск домов и коттеджей

Найдите идеальный дом или коттедж в Санкт-Петербурге и области

Найдите идеальный дом или коттедж в Санкт-Петербурге и области

Перейти к поиску
Новостройки Квартиры Ипотека Медиа О проекте Контакты Реклама на сайте Vk Youtube Telegram Дзен Продавцы и застройщики Коммерческие помещения Квартиры на карте Эксперты и авторы Машиноместа Акции от застройщиков Банки и программы Апартаменты Новостройки на карте 4-комнатные и более Готовые новостройки 3-комнатные Военная ипотека Покупателю Новостройки Санкт-Петербурга Видеообзор новостроек Семейная ипотека Аналитика рынка Панорамы новостроек 1-комнатные Субсидированная застройщиком Мнение эксперта Студии Ипотечный калькулятор Новости недвижимости Новостройки Ленинградской области ИТ-ипотека Квартиры со скидками до 25% Новостройки премиум-класса Новостройки бизнес-класса Дома и коттеджи Бизнес-центры Бизнес-центры в Санкт-Петербурге Бизнес-центры рядом с метро Строящиеся бизнес-центры Бизнес-центры класса A Ипотека со ставкой 0,1% Траншевая ипотека
Данное предложение на 04.03.2026 неактуально. Пожалуйста, ознакомьтесь с другими похожими предложениями в ЖК «Лисино» .
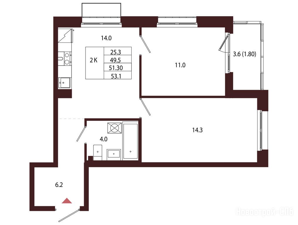
2-комн. квартира, 51.30 м2, 2 этаж
Срок сдачи 4 квартал 2027 года
16 200 000 
315 789 2
обновлено 8 декабря

Описание 2-комн. квартиры

Новостройка
Застройщик
Срок ГК
4 квартал 2027 года
Стадия строительства
котлован/фундамент
Общая площадь
51.30 м2
Жилая площадь
25.30 м2
Этаж
2 / 5

Расположение 2-комн. квартиры

Локация
Метро
Дом
2.4
Адрес
Сестрорецк, ул.Авиационная

Способы покупки

Особенности

Продается двухкомнатная квартира в новостройке ЖК «Лисино» по адресу Санкт-Петербург, Курортный, Сестрорецк, ул.Авиационная. Общая площадь квартиры - 51.3 кв. м. Тип проекта, по которому построен дом — Монолитно-панельный, компания-застройщик — Унистрой. Стоимость квартиры — 16 200 000 руб. Способы оплаты можно уточнить у продавца. Срок сдачи — 4 квартал 2027. Более подробная информация по телефону.
Инфоцентр новостроек
Инфоцентр новостроек
+7 (812) 424-49-09
Время работы 9:00 — 21:00
1-комн. квартира 26,84 м2 10 472 000
Этаж 3/5
СПБ, ЖК «Лисино»
Старая деревня
30 мин.
Сдан
1-комн. квартира 27,07 м2 10 359 000
Этаж 2/5
СПБ, ЖК «Лисино»
Старая деревня
30 мин.
Сдан
1-комн. квартира 27,25 м2 10 487 000
Этаж 2/5
СПБ, ЖК «Лисино»
Старая деревня
30 мин.
Сдан
1-комн. квартира 27,74 м2 10 433 000
Этаж 1/5
СПБ, ЖК «Лисино»
Старая деревня
30 мин.
Сдан
Посмотреть 266 квартир в ЖК «Лисино»
2-комн. квартира 46,90 м2 14 941 000
Этаж 1/5
СПБ, ЖК «Лисино»
Старая деревня
30 мин.
Строится
2-комн. квартира 50,90 м2 16 294 000
Этаж 1/5
СПБ, ЖК «Лисино»
Старая деревня
30 мин.
Строится
2-комн. квартира 51,20 м2 16 145 000
Этаж 2/5
СПБ, ЖК «Лисино»
Старая деревня
30 мин.
Строится
2-комн. квартира 51,30 м2 17 090 000
Этаж 2/5
СПБ, ЖК «Лисино»
Старая деревня
30 мин.
Строится
Посмотреть 218 квартир в ЖК «Лисино»
3-комн. квартира 71,95 м2 22 010 000
Этаж 1/5
СПБ, ЖК «Лисино»
Старая деревня
30 мин.
Строится
3-комн. квартира 72,15 м2 22 240 000
Этаж 2/5
СПБ, ЖК «Лисино»
Старая деревня
30 мин.
Строится
3-комн. квартира 74,00 м2 22 465 000
Этаж 1/5
СПБ, ЖК «Лисино»
Старая деревня
30 мин.
Строится
3-комн. квартира 74,10 м2 22 588 000
Этаж 1/5
СПБ, ЖК «Лисино»
Старая деревня
30 мин.
Строится
Посмотреть 16 квартир в ЖК «Лисино»

Скидки и спецпредложения от застройщиков

ЖК «Лисино» на карте

Выгодные предложения на новостройки

Отзывы о ЖК «Лисино»

Самый полезный отзыв
АК
28 февраля 2025
Оценка:
Планировки
Способы покупки
Двор, окружение
Расположение
Парк и залив - создают ощущение спокойствия и умиротворения. Еще застройщик предлагает комфортные условия, как в самом доме, так и за его пределами. В квартире продумано все до мелочей: современная отделка, уютные общественные пространства и отличная звукоизоляция. Внутренний двор тоже радует: есть места для отдыха, детские площадки и даже спортивные зоны.
Ответить
Полезный отзыв?
Самый новый отзыв
ВК
15 января
Оценка:
Двор, окружение
Расположение
Живу здесь уже второй сезон, и могу сказать: если вам важна природа и спокойствие, это то, что нужно. Хвалят лесопарковые зоны рядом и пешую доступность к тропам. Но по бытовым услугам в шаговой доступности меньше, чем хотелось бы, и это надо учитывать
Ответить
Полезный отзыв?
Добавьте отзыв, заполнив личные данные, или сначала войдите на сайт, тогда информация будет автоматически взята из личного профиля.
Оценка*