Переверните экран
Поиск домов и коттеджей

Найдите идеальный дом или коттедж в Санкт-Петербурге и области

Найдите идеальный дом или коттедж в Санкт-Петербурге и области

Перейти к поиску
Новостройки Квартиры Ипотека Медиа О проекте Контакты Реклама на сайте Vk Youtube Telegram Дзен Продавцы и застройщики Коммерческие помещения Квартиры на карте Эксперты и авторы Машиноместа Акции от застройщиков Банки и программы Апартаменты Новостройки на карте 4-комнатные и более Готовые новостройки 3-комнатные Военная ипотека Покупателю Новостройки Санкт-Петербурга Видеообзор новостроек Семейная ипотека Аналитика рынка Панорамы новостроек 1-комнатные Субсидированная застройщиком Мнение эксперта Студии Ипотечный калькулятор Новости недвижимости Новостройки Ленинградской области ИТ-ипотека Квартиры со скидками до 25% Новостройки премиум-класса Новостройки бизнес-класса Дома и коттеджи Коттеджные поселки в Санкт-Петербурге Коттеджные поселки в Ленинградской обл Готовые коттеджные поселки Строящиеся коттеджные поселки Коттеджные поселки у леса Коттеджные поселки у водоема Коттеджные поселки в ипотеку Бизнес-центры Коттеджи Ипотека со ставкой 0,1% Траншевая ипотека
2-комн. квартира, 69.40 м2, 9 этаж
Срок сдачи 4 квартал 2027 года
89 697 000 
1 292 464 2
обновлено 23 апреля

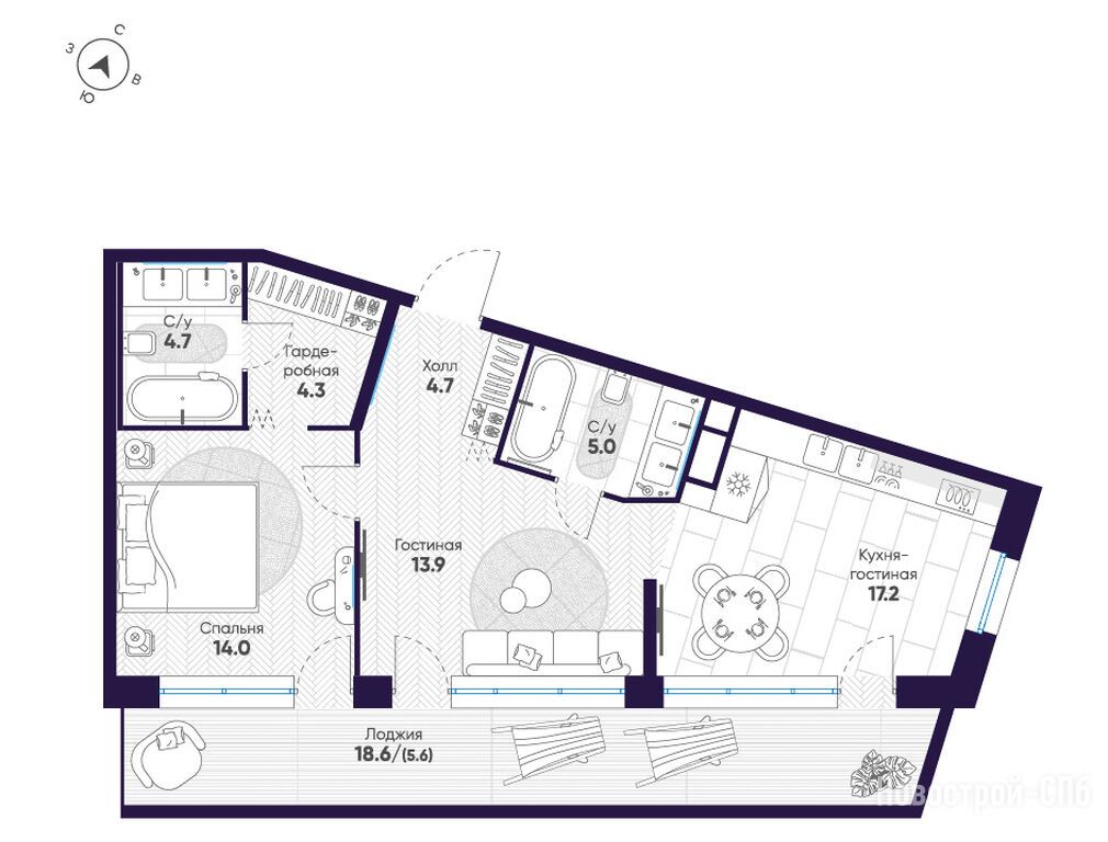
Описание 2-комн. квартиры

Новостройка
Срок ГК
4 квартал 2027 года
Стадия строительства
монтаж нижних этажей
Тип проекта
Общая площадь
69.40 м2
Этаж
9 / 9
Отделка
нет

Расположение 2-комн. квартиры

Дом
5
Адрес
ул. Профессора Попова / ул. Барочная

Способы покупки

Особенности

Продается двухкомнатная квартира в новостройке ЖК «ЛДМ» по адресу Санкт-Петербург, Петроградский, ул. Профессора Попова / ул. Барочная. Общая площадь квартиры - 69.4 кв. м. , компания-застройщик — Группа «Эталон», ООО СЗ ЭТАЛОН НА ПЕТРОГРАДСКОЙ. Стоимость квартиры — 89 697 000 руб. Способы оплаты можно уточнить у продавца. Срок сдачи — 4 квартал 2027. Более подробная информация по телефону.
Инфоцентр новостроек
Инфоцентр новостроек
+7 (812) 424-49-09
Время работы 9:00 — 21:00
1-комн. квартира 41,90 м2 43 999 000
Этаж 4/9
СПБ, ЖК «ЛДМ»
Чкаловская
20 мин.
Строится
1-комн. квартира 45,00 м2 58 808 000
Этаж 7/9
СПБ, ЖК «ЛДМ»
Чкаловская
20 мин.
Строится
1-комн. квартира 48,30 м2 55 782 000
Этаж 6/9
СПБ, ЖК «ЛДМ»
Чкаловская
20 мин.
Строится
Этаж 2/9
СПБ, ЖК «ЛДМ»
Чкаловская
20 мин.
Строится
Посмотреть 17 квартир в ЖК «ЛДМ»
2-комн. квартира 50,30 м2 65 257 000
Этаж 9/9
СПБ, ЖК «ЛДМ»
Чкаловская
20 мин.
Строится
2-комн. квартира 64,50 м2 86 864 000
Этаж 9/9
СПБ, ЖК «ЛДМ»
Чкаловская
20 мин.
Строится
Этаж 9/9
СПБ, ЖК «ЛДМ»
Чкаловская
20 мин.
Строится
2-комн. квартира 75,70 м2 102 257 000
Этаж 9/9
СПБ, ЖК «ЛДМ»
Чкаловская
20 мин.
Строится
Посмотреть 50 квартир в ЖК «ЛДМ»
3-комн. квартира 72,20 м2 77 926 000
Этаж 7/9
СПБ, ЖК «ЛДМ»
Чкаловская
20 мин.
Строится
3-комн. квартира 102,30 м2 99 999 000
Этаж 6/9
СПБ, ЖК «ЛДМ»
Чкаловская
20 мин.
Строится
3-комн. квартира 114,60 м2 109 348 000
Этаж 7/9
СПБ, ЖК «ЛДМ»
Чкаловская
20 мин.
Строится
3-комн. квартира 116,50 м2 126 334 000
Этаж 3/9
СПБ, ЖК «ЛДМ»
Чкаловская
20 мин.
Строится
Посмотреть 27 квартир в ЖК «ЛДМ»
4-комн. квартира 127,50 м2 184 326 000
Этаж 9/9
СПБ, ЖК «ЛДМ»
Чкаловская
20 мин.
Строится
4-комн. квартира 132,50 м2 165 820 000
Этаж 8/9
СПБ, ЖК «ЛДМ»
Чкаловская
20 мин.
Строится
Этаж 8/16
СПБ, ЖК «ЛДМ»
Чкаловская
20 мин.
Строится
4-комн. квартира 141,00 м2 219 122 000
Этаж 7/9
СПБ, ЖК «ЛДМ»
Чкаловская
20 мин.
Строится
Посмотреть 10 квартир в ЖК «ЛДМ»
Этаж 3/9
СПБ, ЖК «ЛДМ»
Чкаловская
20 мин.
Строится
5-комн. квартира 173,70 м2 277 773 000
Этаж 7/9
СПБ, ЖК «ЛДМ»
Чкаловская
20 мин.
Строится

Скидки и спецпредложения от застройщиков

ЖК «ЛДМ» на карте

Выгодные предложения на новостройки

Отзывы о ЖК «ЛДМ»

Самый полезный отзыв
К
06 августа 2024
Оценка:
Если получиться сделать в местах общего пользования элегантный дизайн такой как задумали, будут живые зелёные растения, а также будут реализованы идеи по организации работы консьержа и сервиса, то ЛДМ станет одним из лучших комплексов города.
Ответить
Самый новый отзыв
АА
17 декабря 2025
Оценка:
Достоинства
Социальная инфраструктура
Планировки
Способы покупки
Внешний вид фасада
Двор, окружение
Расположение
В ЛДМ пока только забронировал квартиру: этот проект цепляет архитектурой и редким для Петроградской стороны форматом многофункционального комплекса. Читаю новости по ходу стройки, смотрю за разрешительной документацией — сроки пока далекие, поэтому отношусь к покупке как к долгосрочной ставке на локацию. Из минусов — цена входа высокая и рисков по срокам тут заведомо больше, чем у типового массового проекта на окраине
Ответить

Оставить отзыв

Добавьте отзыв, заполнив личные данные, или сначала войдите на сайт, тогда информация будет автоматически взята из личного профиля.
Оценка*