Переверните экран
Поиск бизнес центров

Найдите современный офис в деловых районах Санкт-Петербурга

Найдите современный офис в деловых районах Санкт-Петербурга

Перейти к поиску
Новостройки Квартиры Ипотека Медиа О проекте Контакты Реклама на сайте Vk Youtube Telegram Дзен Продавцы и застройщики Коммерческие помещения Квартиры на карте Эксперты и авторы Машиноместа Акции от застройщиков Банки и программы Апартаменты Новостройки на карте 4-комнатные и более Готовые новостройки 3-комнатные Военная ипотека Покупателю Новостройки Санкт-Петербурга Видеообзор новостроек Семейная ипотека Аналитика рынка Панорамы новостроек 1-комнатные Субсидированная застройщиком Мнение эксперта Студии Ипотечный калькулятор Новости недвижимости Новостройки Ленинградской области IT-ипотека Квартиры со скидками до 25% Новостройки премиум-класса Новостройки бизнес-класса Дома и коттеджи Бизнес-центры Бизнес-центры в Санкт-Петербурге Бизнес-центры рядом с метро Строящиеся бизнес-центры Бизнес-центры класса A
2-комн. квартира, 99.50 м2, 16 этаж
Сдан
33 406 011 
41 287 818
335 739 2
обновлено 5 декабря

Описание 2-комн. квартиры

Новостройка
Срок ГК
Дом сдан
Стадия строительства
выдача ключей + заселение
Тип проекта
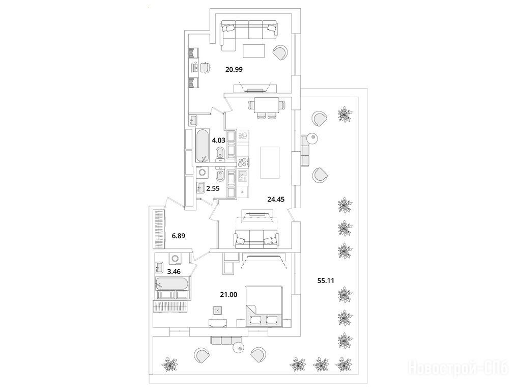
Общая площадь
99.50 м2
Этаж
16 / 23
Отделка
нет
Грузовой лифт
есть

Расположение 2-комн. квартиры

Локация
Метро
Лесная
10 мин.
Дом
2
Адрес
пр. Полюстровский, участок 30

Способы покупки

Особенности

Продается двухкомнатная квартира в новостройке ЖК «БелАрт» по адресу Санкт-Петербург, Калининский, пр. Полюстровский, участок 30. Общая площадь квартиры - 99.5 кв. м. Тип проекта, по которому построен дом — Монолит, компания-застройщик — ГК РСТИ (РосСтройИнвест). Стоимость квартиры — 33 406 011 руб. Способы оплаты можно уточнить у продавца. Более подробная информация по телефону.

Правовые документы

Инфоцентр новостроек
Инфоцентр новостроек
+7 (812) 424-49-09
Время работы 9:00 — 21:00
Посмотреть все спецпредложения
студия 24,70 м2 10 441 207
Этаж 15/23
СПБ, ЖК «БелАрт»
Лесная
10 мин.
Сдан
студия 24,80 м2 10 132 652
Этаж 14/23
СПБ, ЖК «БелАрт»
Лесная
10 мин.
Сдан
студия 24,90 м2 8 845 140
Этаж 14/22
СПБ, ЖК «БелАрт»
Лесная
10 мин.
Сдан
студия 24,99 м2 8 273 981
Этаж 2/23
СПБ, ЖК «БелАрт»
Лесная
10 мин.
Строится
Посмотреть 16 квартир в ЖК «БелАрт»
Этаж 7/23
СПБ, ЖК «БелАрт»
Лесная
10 мин.
Сдан
1-комн. квартира 32,00 м2 11 840 255
Этаж 7/23
СПБ, ЖК «БелАрт»
Лесная
10 мин.
Сдан
1-комн. квартира 35,80 м2 12 756 403
Этаж 5/23
СПБ, ЖК «БелАрт»
Лесная
10 мин.
Сдан
1-комн. квартира 64,40 м2 17 727 561
Этаж 1/23
СПБ, ЖК «БелАрт»
Лесная
10 мин.
Сдан
2-комн. квартира 53,80 м2 18 789 016
Этаж 16/23
СПБ, ЖК «БелАрт»
Лесная
10 мин.
Сдан
2-комн. квартира 54,20 м2 19 157 836
Этаж 16/22
СПБ, ЖК «БелАрт»
Лесная
10 мин.
Сдан
2-комн. квартира 55,40 м2 21 222 169
Этаж 16/22
СПБ, ЖК «БелАрт»
Лесная
10 мин.
Сдан
2-комн. квартира 59,81 м2 18 568 260
Этаж 8/23
СПБ, ЖК «БелАрт»
Лесная
10 мин.
Строится
Посмотреть 36 квартир в ЖК «БелАрт»
3-комн. квартира 67,75 м2 22 675 096
Этаж 14/23
СПБ, ЖК «БелАрт»
Лесная
10 мин.
Строится
3-комн. квартира 68,55 м2 20 939 470
Этаж 14/22
СПБ, ЖК «БелАрт»
Лесная
10 мин.
Строится
3-комн. квартира 68,77 м2 20 413 715
Этаж 4/22
СПБ, ЖК «БелАрт»
Лесная
10 мин.
Строится
Посмотреть 18 квартир в ЖК «БелАрт»
4-комн. квартира 113,10 м2 37 603 797
Этаж 13/23
СПБ, ЖК «БелАрт»
Лесная
10 мин.
Сдан

Скидки и спецпредложения от застройщиков

ЖК «БелАрт» на карте

Выгодные предложения на новостройки

Отзывы о ЖК «БелАрт»

Самый полезный отзыв
Д
22 октября 2023
Оценка:
Транспортная доступность
Социальная инфраструктура
Планировки
Двор, окружение
Плюсов здесь больше -метро, сеть транспорта, электричка, магазины, в самом комплексе много планировочных решений, садик. Минусы обусловлены стройкой, проект большой, будут строить не один год, вокруг тоже все обновляется, даже строят новые дороги. Пока в таких условиях жить не комфортно.
Ответить
Полезный отзыв?
Самый новый отзыв
ДК
27 октября
Оценка:
Дома - пушка, архитектура нетривиальная! Очень понравилась концепция и как по итогу все реализовано. Район с богатой инфраструктурой, близко водоем, все как я хотел.
Ответить
Полезный отзыв?
Добавьте отзыв, заполнив личные данные, или сначала войдите на сайт, тогда информация будет автоматически взята из личного профиля.
Оценка*