Переверните экран
Поиск домов и коттеджей

Найдите идеальный дом или коттедж в Санкт-Петербурге и области

Найдите идеальный дом или коттедж в Санкт-Петербурге и области

Перейти к поиску
Новостройки Квартиры Ипотека Медиа О проекте Контакты Реклама на сайте Vk Youtube Telegram Дзен Продавцы и застройщики Коммерческие помещения Квартиры на карте Эксперты и авторы Машиноместа Акции от застройщиков Банки и программы Апартаменты Новостройки на карте 4-комнатные и более Готовые новостройки 3-комнатные Военная ипотека Покупателю Новостройки Санкт-Петербурга Видеообзор новостроек Семейная ипотека Аналитика рынка Панорамы новостроек 1-комнатные Субсидированная застройщиком Мнение эксперта Студии Ипотечный калькулятор Новости недвижимости Новостройки Ленинградской области IT-ипотека Квартиры со скидками до 25% Новостройки премиум-класса Новостройки бизнес-класса Дома и коттеджи Коттеджные поселки в Санкт-Петербурге Коттеджные поселки в Ленинградской обл Готовые коттеджные поселки Строящиеся коттеджные поселки Коттеджные поселки у леса Коттеджные поселки у водоема Коттеджные поселки в ипотеку Бизнес-центры Коттеджи Таунхаусы
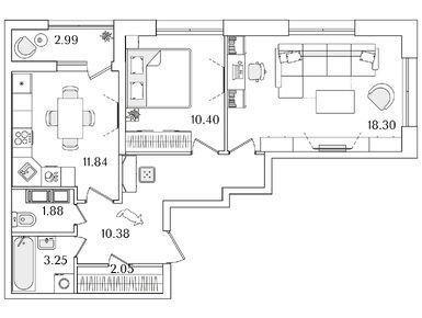
2-комн. квартира, 55.40 м2, 16 этаж
Сдан
21 222 169 
26 307 523
383 072 2
обновлено 9 ноября

Описание 2-комн. квартиры

Новостройка
Срок ГК
Дом сдан
Стадия строительства
выдача ключей + заселение
Тип проекта
Общая площадь
55.40 м2
Этаж
16 / 22
Отделка
нет
Грузовой лифт
есть

Расположение 2-комн. квартиры

Локация
Метро
Лесная
10 мин.
Дом
3
Адрес
проспект Маршала Блюхера, 3к2

Способы покупки

Особенности

Продается двухкомнатная квартира в новостройке ЖК «БелАрт» по адресу Санкт-Петербург, Калининский, проспект Маршала Блюхера, 3к2. Общая площадь квартиры - 55.4 кв. м. Тип проекта, по которому построен дом — Монолит, компания-застройщик — ГК РСТИ (РосСтройИнвест). Стоимость квартиры — 21 222 169 руб. Способы оплаты можно уточнить у продавца. Более подробная информация по телефону.

Правовые документы

Инфоцентр новостроек
Инфоцентр новостроек
+7 (812) 424-49-09
Время работы 9:00 — 21:00
Посмотреть все спецпредложения
1-комн. квартира 32,00 м2 11 609 306
Этаж 7/23
СПБ, ЖК «БелАрт»
Лесная
10 мин.
Сдан
1-комн. квартира 32,10 м2 11 418 263
Этаж 6/23
СПБ, ЖК «БелАрт»
Лесная
10 мин.
Сдан
1-комн. квартира 35,40 м2 12 559 260
Этаж 10/23
СПБ, ЖК «БелАрт»
Лесная
10 мин.
Сдан
1-комн. квартира 35,80 м2 12 515 914
Этаж 5/23
СПБ, ЖК «БелАрт»
Лесная
10 мин.
Сдан
Посмотреть 6 квартир в ЖК «БелАрт»
2-комн. квартира 53,80 м2 18 789 016
Этаж 16/23
СПБ, ЖК «БелАрт»
Лесная
10 мин.
Сдан
2-комн. квартира 54,20 м2 19 157 836
Этаж 16/22
СПБ, ЖК «БелАрт»
Лесная
10 мин.
Сдан
2-комн. квартира 55,58 м2 18 971 470
Этаж 16/23
СПБ, ЖК «БелАрт»
Лесная
10 мин.
Строится
2-комн. квартира 59,60 м2 17 993 175
Этаж 12/23
СПБ, ЖК «БелАрт»
Лесная
10 мин.
Строится
Посмотреть 41 квартира в ЖК «БелАрт»
3-комн. квартира 67,75 м2 22 247 640
Этаж 14/23
СПБ, ЖК «БелАрт»
Лесная
10 мин.
Строится
3-комн. квартира 68,55 м2 20 939 470
Этаж 15/23
СПБ, ЖК «БелАрт»
Лесная
10 мин.
Строится
3-комн. квартира 68,77 м2 20 413 715
Этаж 3/23
СПБ, ЖК «БелАрт»
Лесная
10 мин.
Строится
Посмотреть 20 квартир в ЖК «БелАрт»
4-комн. квартира 113,10 м2 37 603 797
Этаж 13/23
СПБ, ЖК «БелАрт»
Лесная
10 мин.
Сдан
студия 24,60 м2 8 610 485
Этаж 12/23
СПБ, ЖК «БелАрт»
Лесная
10 мин.
Сдан
студия 24,70 м2 10 253 188
Этаж 15/23
СПБ, ЖК «БелАрт»
Лесная
10 мин.
Сдан
студия 24,80 м2 10 294 448
Этаж 14/23
СПБ, ЖК «БелАрт»
Лесная
10 мин.
Сдан
студия 24,90 м2 8 672 918
Этаж 13/22
СПБ, ЖК «БелАрт»
Лесная
10 мин.
Сдан
Посмотреть 30 квартир в ЖК «БелАрт»

Скидки и спецпредложения от застройщиков

ЖК «БелАрт» на карте

Выгодные предложения на новостройки

Отзывы о ЖК «БелАрт»

Самый полезный отзыв
Д
22 октября 2023
Оценка:
Транспортная доступность
Социальная инфраструктура
Планировки
Двор, окружение
Плюсов здесь больше -метро, сеть транспорта, электричка, магазины, в самом комплексе много планировочных решений, садик. Минусы обусловлены стройкой, проект большой, будут строить не один год, вокруг тоже все обновляется, даже строят новые дороги. Пока в таких условиях жить не комфортно.
Ответить
Полезный отзыв?
Самый новый отзыв
ДК
27 октября
Оценка:
Дома - пушка, архитектура нетривиальная! Очень понравилась концепция и как по итогу все реализовано. Район с богатой инфраструктурой, близко водоем, все как я хотел.
Ответить
Полезный отзыв?
Добавьте отзыв, заполнив личные данные, или сначала войдите на сайт, тогда информация будет автоматически взята из личного профиля.
Оценка*