Переверните экран
Поиск домов и коттеджей

Найдите идеальный дом или коттедж в Санкт-Петербурге и области

Найдите идеальный дом или коттедж в Санкт-Петербурге и области

Перейти к поиску
Новостройки Квартиры Ипотека Медиа О проекте Контакты Реклама на сайте Vk Youtube Telegram Дзен Продавцы и застройщики Коммерческие помещения Квартиры на карте Эксперты и авторы Машиноместа Акции от застройщиков Банки и программы Апартаменты Новостройки на карте 4-комнатные и более Готовые новостройки 3-комнатные Военная ипотека Покупателю Новостройки Санкт-Петербурга Видеообзор новостроек Семейная ипотека Аналитика рынка Панорамы новостроек 1-комнатные Субсидированная застройщиком Мнение эксперта Студии Ипотечный калькулятор Новости недвижимости Новостройки Ленинградской области ИТ-ипотека Квартиры со скидками до 25% Новостройки премиум-класса Новостройки бизнес-класса Дома и коттеджи Коттеджные поселки в Санкт-Петербурге Коттеджные поселки в Ленинградской обл Готовые коттеджные поселки Строящиеся коттеджные поселки Коттеджные поселки у леса Коттеджные поселки у водоема Коттеджные поселки в ипотеку Бизнес-центры Коттеджи Ипотека со ставкой 0,1% Траншевая ипотека
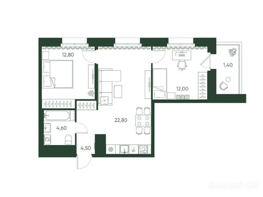
2-комн. квартира, 58.10 м2, 5 этаж
Срок сдачи 3 квартал 2028 года
53 742 500 
925 000 2
обновлено 4 мая

Описание 2-комн. квартиры

Застройщик
Срок ГК
3 квартал 2028 года
Стадия строительства
реконструкция
Общая площадь
58.10 м2
Жилая площадь
24.80 м2
Площадь кухни
22.80 м2
Этаж
5 / 10

Расположение 2-комн. квартиры

Локация
Дом
4
Адрес
ул. Моисеенко 10, секция 5

Способы покупки

Особенности

Продается двухкомнатная квартира в новостройке Клубный дом «Моисеенко 10» по адресу Санкт-Петербург, Центральный, ул. Моисеенко 10. Общая площадь квартиры - 58.1 кв. м. Тип проекта, по которому построен дом — Монолитно-кирпичный, компания-застройщик — FIZIKA DEVELOPMENT. Стоимость квартиры — 53 742 500 руб. Способы оплаты можно уточнить у продавца. Срок сдачи — 3 квартал 2028. Более подробная информация по телефону.
Инфоцентр новостроек
Инфоцентр новостроек
+7 (812) 424-49-09
Время работы 9:00 — 21:00

Похожие квартиры в Клубный дом «Моисеенко 10»

6 этаж
из 10 3 квартал 2028
Санкт-Петербург, Санкт-Петербург
Площадь Восстания
21 мин.
4
Корпус
нет данных
Отделка
3.00 м
Потолки
Клубный дом «Моисеенко 10»
54 323 500
ДОМ.РФ, Банк Санкт-Петербург
6.00%
Ставка
20.01%
Первый взнос
от 325 697 /мес.
Все варианты
8 этаж
из 10 3 квартал 2028
Санкт-Петербург, Санкт-Петербург
Площадь Восстания
21 мин.
4
Корпус
нет данных
Отделка
3.00 м
Потолки
Клубный дом «Моисеенко 10»
55 195 000
ДОМ.РФ, Банк Санкт-Петербург
6.00%
Ставка
20.01%
Первый взнос
от 330 922 /мес.
Все варианты
студия 24,80 м2 20 584 000
Этаж 3/6
СПБ, Клубный дом «Моисеенко 10»
Площадь Восстания
21 мин.
Строится
1-комн. квартира 38,80 м2 32 786 000
Этаж 4/6
СПБ, Клубный дом «Моисеенко 10»
Площадь Восстания
21 мин.
Строится
1-комн. квартира 42,00 м2 36 834 000
Этаж 3/10
СПБ, Клубный дом «Моисеенко 10»
Площадь Восстания
21 мин.
Строится
1-комн. квартира 45,40 м2 38 136 000
Этаж 4/9
СПБ, Клубный дом «Моисеенко 10»
Площадь Восстания
21 мин.
Строится
1-комн. квартира 46,30 м2 40 882 900
Этаж 5/10
СПБ, Клубный дом «Моисеенко 10»
Площадь Восстания
21 мин.
Строится
Посмотреть 12 квартир в Клубный дом «Моисеенко 10»
2-комн. квартира 51,70 м2 44 720 500
Этаж 3/10
СПБ, Клубный дом «Моисеенко 10»
Площадь Восстания
21 мин.
Строится
2-комн. квартира 58,10 м2 54 323 500
Этаж 6/10
СПБ, Клубный дом «Моисеенко 10»
Площадь Восстания
21 мин.
Строится
2-комн. квартира 59,90 м2 54 089 700
Этаж 3/10
СПБ, Клубный дом «Моисеенко 10»
Площадь Восстания
21 мин.
Строится
Этаж 5/10
СПБ, Клубный дом «Моисеенко 10»
Площадь Восстания
21 мин.
Строится
Посмотреть 19 квартир в Клубный дом «Моисеенко 10»
3-комн. квартира 85,80 м2 76 791 000
Этаж 3/10
СПБ, Клубный дом «Моисеенко 10»
Площадь Восстания
21 мин.
Строится
Этаж 7/10
СПБ, Клубный дом «Моисеенко 10»
Площадь Восстания
21 мин.
Строится
3-комн. квартира 96,20 м2 76 767 600
Этаж 3/9
СПБ, Клубный дом «Моисеенко 10»
Площадь Восстания
21 мин.
Строится
3-комн. квартира 97,40 м2 78 212 200
Этаж 4/9
СПБ, Клубный дом «Моисеенко 10»
Площадь Восстания
21 мин.
Строится
Посмотреть 13 квартир в Клубный дом «Моисеенко 10»
Этаж 9/9
СПБ, Клубный дом «Моисеенко 10»
Площадь Восстания
21 мин.
Строится

Скидки и спецпредложения от застройщиков

Клубный дом «Моисеенко 10» на карте

Выгодные предложения на новостройки

Отзывы о Клубный дом «Моисеенко 10»

Самый полезный отзыв
СС
28 февраля 2025
Оценка:
Достоинства
Транспортная доступность
Социальная инфраструктура
Планировки
Двор, окружение
Расположение
Когда я выбирал новое место жительства, ЖК привлек меня сразу. Место престижное, буквально соседствует с ратушей, что добавляет статусности. Удобное расположение на Чернышевской и Набережной позволяет быстро добираться до основных точек города. Замечаю, что не самый плотный трафик на дорогах также способствует удобству передвижения. В целом, я доволен своим выбором и новым окружением.
Ответить
Самый новый отзыв
Д
13 апреля
Оценка:
Такое жилье я люблю. Для жизни в таком классном районе прям очень достойный вариант.
Ответить

Оставить отзыв

Добавьте отзыв, заполнив личные данные, или сначала войдите на сайт, тогда информация будет автоматически взята из личного профиля.
Оценка*