Переверните экран
Новостройки Квартиры Ипотека Медиа О проекте Контакты Реклама на сайте Vk Youtube Telegram Дзен Продавцы и застройщики Коммерческие помещения Квартиры на карте Эксперты и авторы Машиноместа Акции от застройщиков Банки и программы Апартаменты Новостройки на карте 4-комнатные и более Готовые новостройки 3-комнатные Военная ипотека Покупателю Новостройки Санкт-Петербурга Видеообзор новостроек Семейная ипотека Аналитика рынка Панорамы новостроек 1-комнатные Субсидированная застройщиком Мнение эксперта Студии Ипотечный калькулятор Новости недвижимости Новостройки Ленинградской области IT-ипотека Квартиры со скидками до 25% Новостройки премиум-класса Новостройки бизнес-класса Дома и коттеджи Бизнес-центры Бизнес-центры в Санкт-Петербурге Бизнес-центры рядом с метро Строящиеся бизнес-центры Бизнес-центры класса A
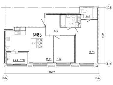
2-комн. квартира, 73.06 м2, 6 этаж
Срок сдачи 2 квартал 2027 года
35 164 533 
37 811 326
481 310 2
обновлено 16 декабря

Описание 2-комн. квартиры

Новостройка
Застройщик
Срок ГК
2 квартал 2027 года
Стадия строительства
котлован/фундамент
Общая площадь
73.06 м2
Жилая площадь
29.35 м2
Площадь кухни
25.42 м2
Этаж
6 / 10
Отделка
нет

Расположение 2-комн. квартиры

Локация
Дом
1
Адрес
ул Новгородская, д. 8, литера А, секция 2

Способы покупки

Особенности

Продается двухкомнатная квартира в новостройке Клубный дом № 8 по адресу Санкт-Петербург, Центральный, ул Новгородская, д. 8, литера А. Общая площадь квартиры - 73.06 кв. м. Тип проекта, по которому построен дом — Монолитно-кирпичный, компания-застройщик — ГК ФСК, ООО СЗ НОВГОРОДСКАЯ. Стоимость квартиры — 35 164 533 руб. Способы оплаты можно уточнить у продавца. Срок сдачи — 2 квартал 2027. Более подробная информация по телефону.
Инфоцентр новостроек
Инфоцентр новостроек
+7 (812) 424-49-09
Время работы 9:00 — 21:00

Похожие квартиры в Клубный дом № 8

7 этаж
из 10 2 квартал 2027
Санкт-Петербург, Санкт-Петербург
Площадь Александра Невского
18 мин.
1
Корпус
нет
Отделка
3.30 м
Потолки
Клубный дом № 8
35 843 991 38 541 926
Альфа-Банк, Всероссийский банк развития регионов (ВБРР), Банк Санкт-Петербург, ДОМ.РФ, Промсвязьбанк
6.00%
Ставка
30.10%
Первый взнос
от 214 903 /мес.
Все варианты
8 этаж
из 10 2 квартал 2027
Санкт-Петербург, Санкт-Петербург
Площадь Александра Невского
18 мин.
1
Корпус
нет
Отделка
3.30 м
Потолки
Клубный дом № 8
36 523 449 39 272 526
Альфа-Банк, Всероссийский банк развития регионов (ВБРР), Банк Санкт-Петербург, ДОМ.РФ, Промсвязьбанк
6.00%
Ставка
30.10%
Первый взнос
от 218 977 /мес.
Все варианты
Посмотреть все спецпредложения
студия 23,02 м2 14 661 680
Этаж 5/10
СПБ, Клубный дом № 8
Площадь Александра Невского
18 мин.
Строится
студия 23,40 м2 14 479 347
Этаж 2/10
СПБ, Клубный дом № 8
Площадь Александра Невского
18 мин.
Строится
студия 26,62 м2 16 137 590
Этаж 3/10
СПБ, Клубный дом № 8
Площадь Александра Невского
18 мин.
Строится
студия 27,00 м2 16 204 739
Этаж 2/10
СПБ, Клубный дом № 8
Площадь Александра Невского
18 мин.
Строится
Посмотреть 21 квартира в Клубный дом № 8
1-комн. квартира 35,83 м2 19 644 926
Этаж 5/10
СПБ, Клубный дом № 8
Площадь Александра Невского
18 мин.
Строится
1-комн. квартира 35,92 м2 20 696 439
Этаж 7/10
СПБ, Клубный дом № 8
Площадь Александра Невского
18 мин.
Строится
Этаж 2/10
СПБ, Клубный дом № 8
Площадь Александра Невского
18 мин.
Строится
1-комн. квартира 36,98 м2 20 791 321
Этаж 6/10
СПБ, Клубный дом № 8
Площадь Александра Невского
18 мин.
Строится
Посмотреть 63 квартиры в Клубный дом № 8
2-комн. квартира 56,14 м2 28 814 809
Этаж 8/10
СПБ, Клубный дом № 8
Площадь Александра Невского
18 мин.
Строится
2-комн. квартира 58,82 м2 32 686 882
Этаж 8/10
СПБ, Клубный дом № 8
Площадь Александра Невского
18 мин.
Строится
2-комн. квартира 59,07 м2 31 727 108
Этаж 6/10
СПБ, Клубный дом № 8
Площадь Александра Невского
18 мин.
Строится
2-комн. квартира 59,18 м2 29 969 956
Этаж 3/10
СПБ, Клубный дом № 8
Площадь Александра Невского
18 мин.
Строится
Посмотреть 45 квартир в Клубный дом № 8
3-комн. квартира 84,35 м2 40 705 370
Этаж 9/10
СПБ, Клубный дом № 8
Площадь Александра Невского
18 мин.
Строится
3-комн. квартира 84,55 м2 36 359 206
Этаж 4/10
СПБ, Клубный дом № 8
Площадь Александра Невского
18 мин.
Строится
3-комн. квартира 85,65 м2 35 796 732
Этаж 2/10
СПБ, Клубный дом № 8
Площадь Александра Невского
18 мин.
Строится
3-комн. квартира 88,64 м2 45 660 857
Этаж 10/10
СПБ, Клубный дом № 8
Площадь Александра Невского
18 мин.
Строится
Посмотреть 9 квартир в Клубный дом № 8
4-комн. квартира 94,23 м2 49 741 002
Этаж 6/10
СПБ, Клубный дом № 8
Площадь Александра Невского
18 мин.
Строится
4-комн. квартира 94,34 м2 46 903 773
Этаж 3/10
СПБ, Клубный дом № 8
Площадь Александра Невского
18 мин.
Строится
4-комн. квартира 95,21 м2 46 760 773
Этаж 2/10
СПБ, Клубный дом № 8
Площадь Александра Невского
18 мин.
Строится
4-комн. квартира 142,17 м2 99 282 571
Этаж 9/10
СПБ, Клубный дом № 8
Площадь Александра Невского
18 мин.
Строится
Посмотреть 9 квартир в Клубный дом № 8

Скидки и спецпредложения от застройщиков

Клубный дом № 8 на карте

Выгодные предложения на новостройки

Отзывы о Клубный дом № 8

Самый полезный отзыв
А
24 октября 2024
Оценка:
Классное архитектурное решение, думаю, недвижимость будет там ликвидной. Пока рассматриваю вариант покупки небольшой квартиры там.
Ответить
Полезный отзыв?
Самый новый отзыв
Р
15 декабря
Оценка:
Да, варианты дешевле найти можно, я смотрел. Но Клубный дом N8 берет расположением и тем что двор и помещения для жителей продумали нормально. Мне важно чтобы рядом было где бегать по утрам, а тут целый маршрут под окнами. Трешку не потянули, зато двушку с женой взяли в рассрочку.
Ответить
Полезный отзыв?
Добавьте отзыв, заполнив личные данные, или сначала войдите на сайт, тогда информация будет автоматически взята из личного профиля.
Оценка*