Переверните экран
Поиск бизнес центров

Найдите современный офис в деловых районах Санкт-Петербурга

Найдите современный офис в деловых районах Санкт-Петербурга

Перейти к поиску
Новостройки Квартиры Ипотека Медиа О проекте Контакты Реклама на сайте Vk Youtube Telegram Дзен Продавцы и застройщики Коммерческие помещения Квартиры на карте Эксперты и авторы Машиноместа Акции от застройщиков Банки и программы Апартаменты Новостройки на карте 4-комнатные и более Готовые новостройки 3-комнатные Военная ипотека Покупателю Новостройки Санкт-Петербурга Видеообзор новостроек Семейная ипотека Аналитика рынка Панорамы новостроек 1-комнатные Субсидированная застройщиком Мнение эксперта Студии Ипотечный калькулятор Новости недвижимости Новостройки Ленинградской области ИТ-ипотека Квартиры со скидками до 25% Новостройки премиум-класса Новостройки бизнес-класса Дома и коттеджи Коттеджные поселки в Санкт-Петербурге Коттеджные поселки в Ленинградской обл Готовые коттеджные поселки Строящиеся коттеджные поселки Коттеджные поселки у леса Коттеджные поселки у водоема Коттеджные поселки в ипотеку Бизнес-центры Коттеджи Ипотека со ставкой 0,1% Траншевая ипотека
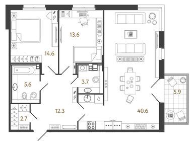
2-комн. помещение, 74.40 м2, 2 этаж
Срок сдачи 1 квартал 2028 года
49 445 775 
664 594 2
обновлено 4 мая

Описание 2-комн. помещения

Застройщик
RBI
Срок ГК
1 квартал 2028 года
Стадия строительства
котлован/фундамент
Общая площадь
74.40 м2
Этаж
2 / 6

Расположение 2-комн. помещения

Локация
Метро
Ж/Д-станция
Репино
18 мин.
Дом
3
Адрес
Приморское шоссе, д. 441

Способы покупки

Особенности

Продается двухкомнатное помещение в новостройке Лаунж-комплекс «Репин» по адресу Санкт-Петербург, Курортный, Приморское шоссе, д. 441. Общая площадь помещения - 74.4 кв. м. Тип проекта, по которому построен дом — Монолитно-кирпичный, компания-застройщик — RBI. Стоимость помещения — 49 445 775 руб. Способы оплаты можно уточнить у продавца. Срок сдачи — 1 квартал 2028. Более подробная информация по телефону.
Инфоцентр новостроек
Инфоцентр новостроек
Время работы 9:00 — 21:00
Выбирайте помещения в Лаунж-комплекс «Репин» по ценам от застройщика
1-комн. помещение 45,80 м2 33 178 093
Этаж 2/6
СПБ, Лаунж-комплекс «Репин»
Черная речка
41 мин.
Строится
1-комн. помещение 48,80 м2 36 345 937
Этаж 2/6
СПБ, Лаунж-комплекс «Репин»
Черная речка
41 мин.
Строится
1-комн. помещение 48,90 м2 31 334 149
Этаж 1/6
СПБ, Лаунж-комплекс «Репин»
Черная речка
41 мин.
Строится
1-комн. помещение 49,00 м2 37 003 193
Этаж 3/6
СПБ, Лаунж-комплекс «Репин»
Черная речка
41 мин.
Строится
Посмотреть 10 помещений в Лаунж-комплексе «Репин»
2-комн. помещение 74,60 м2 51 905 333
Этаж 2/6
СПБ, Лаунж-комплекс «Репин»
Черная речка
41 мин.
Строится
2-комн. помещение 75,10 м2 47 564 927
Этаж 1/6
СПБ, Лаунж-комплекс «Репин»
Черная речка
41 мин.
Строится
2-комн. помещение 93,10 м2 63 731 689
Этаж 3/6
СПБ, Лаунж-комплекс «Репин»
Черная речка
41 мин.
Строится
Посмотреть 6 помещений в Лаунж-комплексе «Репин»
3-комн. помещение 102,90 м2 72 547 757
Этаж 4/6
СПБ, Лаунж-комплекс «Репин»
Черная речка
41 мин.
Строится
3-комн. помещение 103,10 м2 68 935 356
Этаж 3/6
СПБ, Лаунж-комплекс «Репин»
Черная речка
41 мин.
Строится
3-комн. помещение 120,50 м2 78 010 362
Этаж 3/6
СПБ, Лаунж-комплекс «Репин»
Черная речка
41 мин.
Строится
3-комн. помещение 136,70 м2 88 456 116
Этаж 3/6
СПБ, Лаунж-комплекс «Репин»
Черная речка
41 мин.
Строится
Посмотреть 11 помещений в Лаунж-комплексе «Репин»

Скидки и спецпредложения от застройщиков

Лаунж-комплекс «Репин» на карте

Выгодные предложения на новостройки

Отзывы о Лаунж-комплексе «Репин»

Самый новый отзыв
А
16 февраля
Оценка:
Достоинства
Экология
Расположение
Я в Репино родилась, долго работала в городе, но устала от шума и решила с семьёй вернуться ближе к родителям. Долго с мужем выбирали подходящий комплекс. Искали место в стороне от дорог и общественных пляжей, но чтобы всё было рядом. Важно было, чтобы территория была своей, закрытой и под охраной. Обычные «многоквартирники» не хотели, но и частные дома без инфраструктуры не рассматривали. Так и остановились на RBI. Менеджеры и офис у компании приятные, процесс покупки прошёл комфортно. Пока нам всё нравится.
Ответить

Оставить отзыв

Добавьте отзыв, заполнив личные данные, или сначала войдите на сайт, тогда информация будет автоматически взята из личного профиля.
Оценка*