Переверните экран
Поиск домов и коттеджей

Найдите идеальный дом или коттедж в Санкт-Петербурге и области

Найдите идеальный дом или коттедж в Санкт-Петербурге и области

Перейти к поиску
Новостройки Квартиры Ипотека Медиа О проекте Контакты Реклама на сайте Vk Youtube Telegram Дзен Продавцы и застройщики Коммерческие помещения Квартиры на карте Эксперты и авторы Машиноместа Акции от застройщиков Банки и программы Апартаменты Новостройки на карте 4-комнатные и более Готовые новостройки 3-комнатные Военная ипотека Покупателю Новостройки Санкт-Петербурга Видеообзор новостроек Семейная ипотека Аналитика рынка Панорамы новостроек 1-комнатные Субсидированная застройщиком Мнение эксперта Студии Ипотечный калькулятор Новости недвижимости Новостройки Ленинградской области IT-ипотека Квартиры со скидками до 25% Новостройки премиум-класса Новостройки бизнес-класса Дома и коттеджи Бизнес-центры Бизнес-центры в Санкт-Петербурге Бизнес-центры рядом с метро Строящиеся бизнес-центры Бизнес-центры класса A
4-комн. квартира, 72.00 м2, 3 этаж
Срок сдачи 3 квартал 2028 года
12 384 000 
172 000 2
обновлено 1 февраля

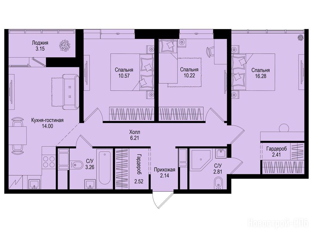
Описание 4-комн. квартиры

Срок ГК
3 квартал 2028 года
Стадия строительства
котлован/фундамент
Общая площадь
72.00 м2
Этаж
3 / 10
Отделка
white box
Грузовой лифт
есть

Расположение 4-комн. квартиры

Метро
Ж/Д-станция
7 км
9 мин.
Дом
1-5
Адрес
ул. Ленинградская

Особенности

Продается четырехкомнатная квартира в новостройке ЖК iD Kudrovo II (Айди Кудрово 2) по адресу Ленинградская область, Всеволожский район, ул. Ленинградская. Общая площадь квартиры - 72 кв. м. Тип проекта, по которому построен дом — Монолитно-кирпичный, компания-застройщик — ООО «Евроинвест Девелопмент». Стоимость квартиры — 12 384 000 руб. Способы оплаты можно уточнить у продавца. Срок сдачи — 3 квартал 2028. Более подробная информация по телефону.
Инфоцентр новостроек
Инфоцентр новостроек
+7 (812) 424-49-09
Время работы 9:00 — 21:00
Посмотреть все спецпредложения
студия 22,00 м2 4 004 000
Этаж 2/10
ЛО, ЖК iD Kudrovo II (Айди Кудрово 2)
Улица Дыбенко
12 мин.
Строится
студия 22,18 м2 4 036 760
Этаж 2/10
ЛО, ЖК iD Kudrovo II (Айди Кудрово 2)
Улица Дыбенко
12 мин.
Строится
студия 22,26 м2 4 006 800
Этаж 2/9
ЛО, ЖК iD Kudrovo II (Айди Кудрово 2)
Улица Дыбенко
12 мин.
Строится
студия 22,28 м2 4 010 400
Этаж 3/9
ЛО, ЖК iD Kudrovo II (Айди Кудрово 2)
Улица Дыбенко
12 мин.
Строится
Посмотреть 200 квартир в ЖК iD Kudrovo II
1-комн. квартира 31,46 м2 5 725 720
Этаж 2/10
ЛО, ЖК iD Kudrovo II (Айди Кудрово 2)
Улица Дыбенко
12 мин.
Строится
1-комн. квартира 31,74 м2 5 776 680
Этаж 2/10
ЛО, ЖК iD Kudrovo II (Айди Кудрово 2)
Улица Дыбенко
12 мин.
Строится
1-комн. квартира 31,90 м2 5 805 800
Этаж 2/10
ЛО, ЖК iD Kudrovo II (Айди Кудрово 2)
Улица Дыбенко
12 мин.
Строится
1-комн. квартира 32,32 м2 5 882 240
Этаж 1/10
ЛО, ЖК iD Kudrovo II (Айди Кудрово 2)
Улица Дыбенко
12 мин.
Строится
Посмотреть 25 квартир в ЖК iD Kudrovo II
2-комн. квартира 30,72 м2 5 529 600
Этаж 7/9
ЛО, ЖК iD Kudrovo II (Айди Кудрово 2)
Улица Дыбенко
12 мин.
Строится
2-комн. квартира 32,06 м2 5 770 800
Этаж 2/9
ЛО, ЖК iD Kudrovo II (Айди Кудрово 2)
Улица Дыбенко
12 мин.
Строится
2-комн. квартира 32,52 м2 5 853 600
Этаж 2/9
ЛО, ЖК iD Kudrovo II (Айди Кудрово 2)
Улица Дыбенко
12 мин.
Строится
2-комн. квартира 32,71 м2 5 887 800
Этаж 2/9
ЛО, ЖК iD Kudrovo II (Айди Кудрово 2)
Улица Дыбенко
12 мин.
Строится
Посмотреть 94 квартиры в ЖК iD Kudrovo II
3-комн. квартира 47,94 м2 8 341 560
Этаж 3/10
ЛО, ЖК iD Kudrovo II (Айди Кудрово 2)
Улица Дыбенко
12 мин.
Строится
3-комн. квартира 48,50 м2 8 051 000
Этаж 3/10
ЛО, ЖК iD Kudrovo II (Айди Кудрово 2)
Улица Дыбенко
12 мин.
Строится
3-комн. квартира 48,58 м2 8 064 280
Этаж 2/10
ЛО, ЖК iD Kudrovo II (Айди Кудрово 2)
Улица Дыбенко
12 мин.
Строится
3-комн. квартира 48,95 м2 8 125 700
Этаж 2/10
ЛО, ЖК iD Kudrovo II (Айди Кудрово 2)
Улица Дыбенко
12 мин.
Строится
Посмотреть 99 квартир в ЖК iD Kudrovo II
4-комн. квартира 47,98 м2 8 396 500
Этаж 7/9
ЛО, ЖК iD Kudrovo II (Айди Кудрово 2)
Улица Дыбенко
12 мин.
Строится
Этаж 2/9
ЛО, ЖК iD Kudrovo II (Айди Кудрово 2)
Улица Дыбенко
12 мин.
Строится
4-комн. квартира 64,35 м2 11 068 200
Этаж 9/10
ЛО, ЖК iD Kudrovo II (Айди Кудрово 2)
Улица Дыбенко
12 мин.
Строится
4-комн. квартира 65,64 м2 11 290 080
Этаж 2/10
ЛО, ЖК iD Kudrovo II (Айди Кудрово 2)
Улица Дыбенко
12 мин.
Строится
Посмотреть 7 квартир в ЖК iD Kudrovo II

Скидки и спецпредложения от застройщиков

ЖК iD Kudrovo II (Айди Кудрово 2) на карте

Выгодные предложения на новостройки

Отзывы о ЖК iD Kudrovo II

Самый полезный отзыв
ЭР
25 марта 2025
Оценка:
Социальная инфраструктура
Самое классное, что рядом уже есть полноценная инфраструктура. Школы, магазины, медицинские учреждения и транспорт — всё под рукой. Жить в таком районе — это здорово, когда не надо тратить много времени на поиск необходимых сервисов.
Ответить
Полезный отзыв?
Самый новый отзыв
А
24 декабря 2025
Оценка:
Покупал как ликвидный вариант. Район перегружен, это минус. Но спрос высокий, инфраструктура уже сложилась. Дом современный, без явных проблем. Как инвестиция - понятный продукт.
Ответить
Полезный отзыв?
Добавьте отзыв, заполнив личные данные, или сначала войдите на сайт, тогда информация будет автоматически взята из личного профиля.
Оценка*