Переверните экран
Поиск бизнес центров

Найдите современный офис в деловых районах Санкт-Петербурга

Найдите современный офис в деловых районах Санкт-Петербурга

Перейти к поиску
Новостройки Квартиры Ипотека Медиа О проекте Контакты Реклама на сайте Vk Youtube Telegram Дзен Продавцы и застройщики Коммерческие помещения Квартиры на карте Эксперты и авторы Машиноместа Акции от застройщиков Банки и программы Апартаменты Новостройки на карте 4-комнатные и более Готовые новостройки 3-комнатные Военная ипотека Покупателю Новостройки Санкт-Петербурга Видеообзор новостроек Семейная ипотека Аналитика рынка Панорамы новостроек 1-комнатные Субсидированная застройщиком Мнение эксперта Студии Ипотечный калькулятор Новости недвижимости Новостройки Ленинградской области IT-ипотека Квартиры со скидками до 25% Новостройки премиум-класса Новостройки бизнес-класса Дома и коттеджи Бизнес-центры Бизнес-центры в Санкт-Петербурге Бизнес-центры рядом с метро Строящиеся бизнес-центры Бизнес-центры класса A
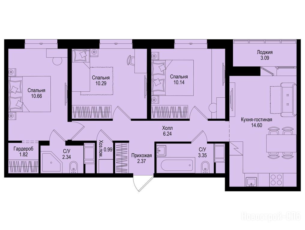
4-комн. квартира, 64.35 м2, 3 этаж
Срок сдачи 3 квартал 2028 года
10 617 750 
165 000 2
обновлено 5 декабря

Описание 4-комн. квартиры

Срок ГК
3 квартал 2028 года
Стадия строительства
котлован/фундамент
Общая площадь
64.35 м2
Этаж
3 / 10
Отделка
white box
Грузовой лифт
есть

Расположение 4-комн. квартиры

Метро
Ж/Д-станция
7 км
9 мин.
Дом
1-5
Адрес
ул. Ленинградская

Особенности

Продается четырехкомнатная квартира в новостройке ЖК iD Kudrovo II (Айди Кудрово 2) по адресу Ленинградская область, Всеволожский район, ул. Ленинградская. Общая площадь квартиры - 64.35 кв. м. Тип проекта, по которому построен дом — Монолитно-кирпичный, компания-застройщик — ООО «Евроинвест Девелопмент». Стоимость квартиры — 10 617 750 руб. Способы оплаты можно уточнить у продавца. Срок сдачи — 3 квартал 2028. Более подробная информация по телефону.
Инфоцентр новостроек
Инфоцентр новостроек
+7 (812) 424-49-09
Время работы 9:00 — 21:00

Похожие квартиры в ЖК iD Kudrovo II

4 этаж
из 10 3 квартал 2028
Ленинградская область, Ленинградская область
Улица Дыбенко
12 мин.
1-5
Корпус
white box
Отделка
2.73 м
Потолки
ЖК iD Kudrovo II (Айди Кудрово 2)
10 617 750
7 этаж
из 10 3 квартал 2028
Ленинградская область, Ленинградская область
Улица Дыбенко
12 мин.
1-5
Корпус
white box
Отделка
2.73 м
Потолки
ЖК iD Kudrovo II (Айди Кудрово 2)
10 617 750
9 этаж
из 10 3 квартал 2028
Ленинградская область, Ленинградская область
Улица Дыбенко
12 мин.
1-5
Корпус
white box
Отделка
2.73 м
Потолки
ЖК iD Kudrovo II (Айди Кудрово 2)
10 617 750
8 этаж
из 10 3 квартал 2028
Ленинградская область, Ленинградская область
Улица Дыбенко
12 мин.
1-5
Корпус
white box
Отделка
2.73 м
Потолки
ЖК iD Kudrovo II (Айди Кудрово 2)
10 617 750
Посмотреть все спецпредложения
студия 22,00 м2 3 916 000
Этаж 2/10
ЛО, ЖК iD Kudrovo II (Айди Кудрово 2)
Улица Дыбенко
12 мин.
Строится
студия 22,15 м2 3 942 700
Этаж 8/10
ЛО, ЖК iD Kudrovo II (Айди Кудрово 2)
Улица Дыбенко
12 мин.
Строится
студия 22,18 м2 3 948 040
Этаж 2/10
ЛО, ЖК iD Kudrovo II (Айди Кудрово 2)
Улица Дыбенко
12 мин.
Строится
студия 22,26 м2 3 962 280
Этаж 2/9
ЛО, ЖК iD Kudrovo II (Айди Кудрово 2)
Улица Дыбенко
12 мин.
Строится
Посмотреть 246 квартир в ЖК iD Kudrovo II
1-комн. квартира 31,16 м2 5 328 360
Этаж 5/10
ЛО, ЖК iD Kudrovo II (Айди Кудрово 2)
Улица Дыбенко
12 мин.
Строится
1-комн. квартира 31,46 м2 5 379 660
Этаж 2/10
ЛО, ЖК iD Kudrovo II (Айди Кудрово 2)
Улица Дыбенко
12 мин.
Строится
1-комн. квартира 31,63 м2 5 377 100
Этаж 5/9
ЛО, ЖК iD Kudrovo II (Айди Кудрово 2)
Улица Дыбенко
12 мин.
Строится
1-комн. квартира 31,74 м2 5 427 540
Этаж 2/10
ЛО, ЖК iD Kudrovo II (Айди Кудрово 2)
Улица Дыбенко
12 мин.
Строится
Посмотреть 41 квартира в ЖК iD Kudrovo II
2-комн. квартира 31,15 м2 5 388 950
Этаж 2/9
ЛО, ЖК iD Kudrovo II (Айди Кудрово 2)
Улица Дыбенко
12 мин.
Строится
Этаж 2/10
ЛО, ЖК iD Kudrovo II (Айди Кудрово 2)
Улица Дыбенко
12 мин.
Строится
2-комн. квартира 32,01 м2 5 537 730
Этаж 2/10
ЛО, ЖК iD Kudrovo II (Айди Кудрово 2)
Улица Дыбенко
12 мин.
Строится
2-комн. квартира 32,06 м2 5 546 380
Этаж 2/9
ЛО, ЖК iD Kudrovo II (Айди Кудрово 2)
Улица Дыбенко
12 мин.
Строится
Посмотреть 146 квартир в ЖК iD Kudrovo II
3-комн. квартира 46,85 м2 7 870 800
Этаж 2/10
ЛО, ЖК iD Kudrovo II (Айди Кудрово 2)
Улица Дыбенко
12 мин.
Строится
3-комн. квартира 47,72 м2 7 587 480
Этаж 3/10
ЛО, ЖК iD Kudrovo II (Айди Кудрово 2)
Улица Дыбенко
12 мин.
Строится
3-комн. квартира 47,94 м2 8 053 920
Этаж 3/10
ЛО, ЖК iD Kudrovo II (Айди Кудрово 2)
Улица Дыбенко
12 мин.
Строится
3-комн. квартира 48,50 м2 7 711 500
Этаж 3/10
ЛО, ЖК iD Kudrovo II (Айди Кудрово 2)
Улица Дыбенко
12 мин.
Строится
Посмотреть 136 квартир в ЖК iD Kudrovo II
4-комн. квартира 47,98 м2 8 300 540
Этаж 9/9
ЛО, ЖК iD Kudrovo II (Айди Кудрово 2)
Улица Дыбенко
12 мин.
Строится
Этаж 2/9
ЛО, ЖК iD Kudrovo II (Айди Кудрово 2)
Улица Дыбенко
12 мин.
Строится
4-комн. квартира 64,35 м2 10 617 750
Этаж 4/10
ЛО, ЖК iD Kudrovo II (Айди Кудрово 2)
Улица Дыбенко
12 мин.
Строится
4-комн. квартира 72,00 м2 11 880 000
Этаж 3/10
ЛО, ЖК iD Kudrovo II (Айди Кудрово 2)
Улица Дыбенко
12 мин.
Строится
Посмотреть 11 квартир в ЖК iD Kudrovo II

Скидки и спецпредложения от застройщиков

ЖК iD Kudrovo II (Айди Кудрово 2) на карте

Выгодные предложения на новостройки

Отзывы о ЖК iD Kudrovo II

Самый полезный отзыв
ЭР
25 марта
Оценка:
Социальная инфраструктура
Самое классное, что рядом уже есть полноценная инфраструктура. Школы, магазины, медицинские учреждения и транспорт — всё под рукой. Жить в таком районе — это здорово, когда не надо тратить много времени на поиск необходимых сервисов.
Ответить
Полезный отзыв?
Самый новый отзыв
ДР
31 августа
Оценка:
Инвестировал в квартиру с продуманной планировкой. Думаю, в таком ЖК с хорошей инфраструктурой цена будет только расти. Очень доволен выбором
Ответить
Полезный отзыв?
Добавьте отзыв, заполнив личные данные, или сначала войдите на сайт, тогда информация будет автоматически взята из личного профиля.
Оценка*