Переверните экран
Поиск домов и коттеджей

Найдите идеальный дом или коттедж в Санкт-Петербурге и области

Найдите идеальный дом или коттедж в Санкт-Петербурге и области

Перейти к поиску
Новостройки Квартиры Ипотека Медиа О проекте Контакты Реклама на сайте Vk Youtube Telegram Дзен Продавцы и застройщики Коммерческие помещения Квартиры на карте Эксперты и авторы Машиноместа Акции от застройщиков Банки и программы Апартаменты Новостройки на карте 4-комнатные и более Готовые новостройки 3-комнатные Военная ипотека Покупателю Новостройки Санкт-Петербурга Видеообзор новостроек Семейная ипотека Аналитика рынка Панорамы новостроек 1-комнатные Субсидированная застройщиком Мнение эксперта Студии Ипотечный калькулятор Новости недвижимости Новостройки Ленинградской области ИТ-ипотека Квартиры со скидками до 25% Новостройки премиум-класса Новостройки бизнес-класса Дома и коттеджи Коттеджные поселки в Санкт-Петербурге Коттеджные поселки в Ленинградской обл Готовые коттеджные поселки Строящиеся коттеджные поселки Коттеджные поселки у леса Коттеджные поселки у водоема Коттеджные поселки в ипотеку Бизнес-центры Коттеджи Ипотека со ставкой 0,1% Траншевая ипотека
4-комн. таунхаус, 81.10 м2, 2 этажа
Сдан
11 759 500 
145 000 2
обновлено 4 мая

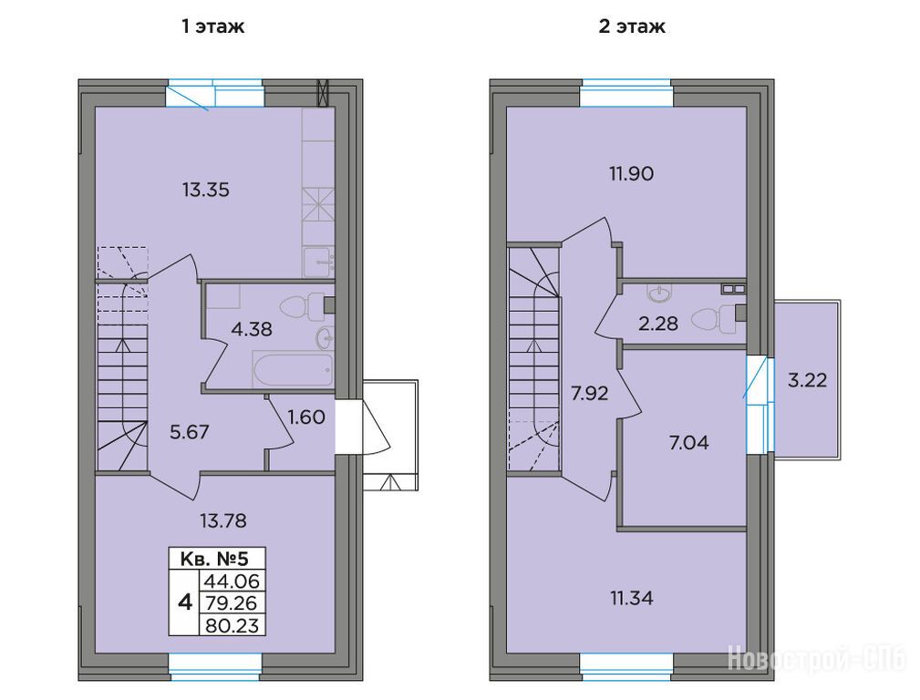
Описание 4-комн. таунхауса

Застройщик
Срок ГК
Дом сдан
Стадия строительства
выдача ключей + заселение
Тип проекта
Общая площадь
81.10 м2
Электричество
да
Вода
да
Канализация
да
Этажность
2
Отделка
под чистовую

Расположение 4-комн. таунхауса

Метро
Купчино
35 мин.
Ж/Д-станция
Дом
4
Адрес
ул. Шоссейная, корп. 4

Способы покупки

Особенности

Продается четырехкомнатный таунхаус в новостройке Поселок таунхаусов «Федоровское» по адресу Ленинградская область, Тосненский район, Федоровское, ул. Шоссейная, корп. 4. Общая площадь таунхауса - 81.1 кв. м. Тип проекта, по которому построен дом — Кирпичный, компания-застройщик — ИСК Вита. Стоимость таунхауса — 11 759 500 руб. Способы оплаты можно уточнить у продавца. Более подробная информация по телефону.

Правовые документы

Инфоцентр новостроек
Инфоцентр новостроек
+7 (812) 424-49-09
Время работы 9:00 — 21:00
3-комн. таунхаус 66,36 м2 9 622 200
2 этажа
ЛО, Поселок таунхаусов «Федоровское»
Купчино
35 мин.
Сдан
2 этажа
ЛО, Поселок таунхаусов «Федоровское»
Купчино
35 мин.
Сдан
3-комн. таунхаус 67,24 м2 9 749 800
2 этажа
ЛО, Поселок таунхаусов «Федоровское»
Купчино
35 мин.
Сдан
3-комн. таунхаус 67,60 м2 9 802 000
2 этажа
ЛО, Поселок таунхаусов «Федоровское»
Купчино
35 мин.
Сдан
Посмотреть 62 таунхауса в поселке таунхаусов «Федоровское»
4-комн. таунхаус 80,86 м2 11 724 700
2 этажа
ЛО, Поселок таунхаусов «Федоровское»
Купчино
35 мин.
Сдан
Посмотреть 25 таунхаусов в поселке таунхаусов «Федоровское»

Скидки и спецпредложения от застройщиков

Поселок таунхаусов «Федоровское» на карте

Выгодные предложения на новостройки

Отзывы о поселке таунхаусов «Федоровское»

Самый полезный отзыв
Т
16 октября 2018
Оценка:
Достоинства
Транспортная доступность
Экология
Планировки
Двор, окружение
Расположение
Недостатки
Готовность
Квартиры будут сдаваться в состоянии предчистовой отделки. Это не просто электропроводку кинули и котел поставили - это ж вся малярка уже сделана. Осталась только самая приятная часть ремонта) Порадовали!
Ответить
Самый новый отзыв
Л
05 апреля
Оценка:
Учитывая скорость строительства ЖК «Фёдоровского», думаю, мы получим ключи раньше срока, и уже вовсю планируем расстановку мебели. Стройка не просто идёт она летит: уже почти все готово. Соседи в чате шутят, что застройщик работает, как швейцарские часы, без сбоев и красиво. Это даёт уверенность, что к лету мы будем жарить шашлык в своём дворике, а не смотреть на фотографии из арендованной квартиры.
Ответить

Оставить отзыв

Добавьте отзыв, заполнив личные данные, или сначала войдите на сайт, тогда информация будет автоматически взята из личного профиля.
Оценка*