Переверните экран
Поиск бизнес центров

Найдите современный офис в деловых районах Санкт-Петербурга

Найдите современный офис в деловых районах Санкт-Петербурга

Перейти к поиску
Новостройки Квартиры Ипотека Медиа О проекте Контакты Реклама на сайте Vk Youtube Telegram Дзен Продавцы и застройщики Коммерческие помещения Квартиры на карте Эксперты и авторы Машиноместа Акции от застройщиков Банки и программы Апартаменты Новостройки на карте 4-комнатные и более Готовые новостройки 3-комнатные Военная ипотека Покупателю Новостройки Санкт-Петербурга Видеообзор новостроек Семейная ипотека Аналитика рынка Панорамы новостроек 1-комнатные Субсидированная застройщиком Мнение эксперта Студии Ипотечный калькулятор Новости недвижимости Новостройки Ленинградской области ИТ-ипотека Квартиры со скидками до 25% Новостройки премиум-класса Новостройки бизнес-класса Дома и коттеджи Бизнес-центры Бизнес-центры в Санкт-Петербурге Бизнес-центры рядом с метро Строящиеся бизнес-центры Бизнес-центры класса A Ипотека со ставкой 0,1% Траншевая ипотека
помещение-студия, 34.70 м2, 6 этаж
Срок сдачи 2 квартал 2026 года
12 318 500 
355 000 2
обновлено 19 марта

Описание помещения-студии

Застройщик
Срок ГК
2 квартал 2026 года
Общая площадь
34.70 м2
Площадь
23.00 м2
Площадь кухни
5.90 м2
Этаж
6 / 19
Отделка
чистовая

Расположение помещения-студии

Локация
Дом
1
Адрес
пр. Ленинский, д. 153, секция 1

Особенности

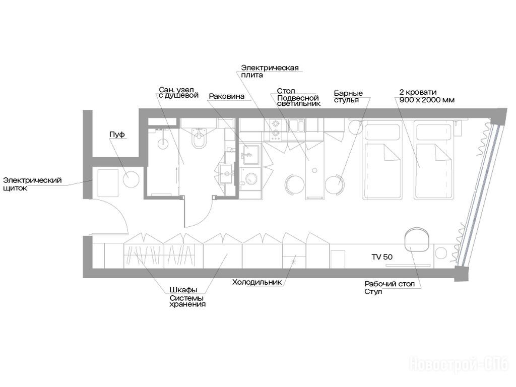
Продается помещение-студия в новостройке Апарт-отель «Велл Московский» по адресу Санкт-Петербург, Московский, пр. Ленинский, д. 153. Общая площадь помещения - 34.7 кв. м. Тип проекта, по которому построен дом — Монолитно-кирпичный, компания-застройщик — СЗ Тайвас. Стоимость помещения — 12 318 500 руб. Способы оплаты можно уточнить у продавца. Срок сдачи — 2 квартал 2026. Более подробная информация по телефону.
Инфоцентр новостроек
Инфоцентр новостроек
+7 (812) 424-49-09
Время работы 9:00 — 21:00

Похожие помещения в Апарт-отель «Велл Московский»

6 этаж
из 19 2 квартал 2026
Санкт-Петербург, Санкт-Петербург
Московская
19 мин.
1
Корпус
чистовая
Отделка
3.00 м
Потолки
Апарт-отель «Велл Московский»
12 318 500
6 этаж
из 19 2 квартал 2026
Санкт-Петербург, Санкт-Петербург
Московская
19 мин.
1
Корпус
чистовая
Отделка
3.00 м
Потолки
Апарт-отель «Велл Московский»
12 318 500
6 этаж
из 19 2 квартал 2026
Санкт-Петербург, Санкт-Петербург
Московская
19 мин.
1
Корпус
чистовая
Отделка
3.00 м
Потолки
Апарт-отель «Велл Московский»
12 318 500
8 этаж
из 19 2 квартал 2026
Санкт-Петербург, Санкт-Петербург
Московская
19 мин.
1
Корпус
чистовая
Отделка
3.00 м
Потолки
Апарт-отель «Велл Московский»
12 318 500
8 этаж
из 19 2 квартал 2026
Санкт-Петербург, Санкт-Петербург
Московская
19 мин.
1
Корпус
чистовая
Отделка
3.00 м
Потолки
Апарт-отель «Велл Московский»
12 318 500
6 этаж
из 19 2 квартал 2026
Санкт-Петербург, Санкт-Петербург
Московская
19 мин.
1
Корпус
чистовая
Отделка
3.00 м
Потолки
Апарт-отель «Велл Московский»
12 322 050
помещение-студия 22,20 м2 7 873 900
Этаж 6/19
СПБ, Апарт-отель «Велл Московский»
Московская
19 мин.
Строится
помещение-студия 26,40 м2 9 386 200
Этаж 8/19
СПБ, Апарт-отель «Велл Московский»
Московская
19 мин.
Строится
помещение-студия 31,80 м2 11 289 000
Этаж 7/19
СПБ, Апарт-отель «Велл Московский»
Московская
19 мин.
Строится
Этаж 6/19
СПБ, Апарт-отель «Велл Московский»
Московская
19 мин.
Строится
Посмотреть 47 помещений в Апарт-отель «Велл Московский»
1-комн. помещение 41,20 м2 14 618 900
Этаж 6/19
СПБ, Апарт-отель «Велл Московский»
Московская
19 мин.
Строится
1-комн. помещение 44,00 м2 15 623 550
Этаж 7/19
СПБ, Апарт-отель «Велл Московский»
Московская
19 мин.
Строится
1-комн. помещение 44,50 м2 15 808 150
Этаж 8/19
СПБ, Апарт-отель «Велл Московский»
Московская
19 мин.
Строится
1-комн. помещение 45,90 м2 16 294 500
Этаж 6/19
СПБ, Апарт-отель «Велл Московский»
Московская
19 мин.
Строится
Посмотреть 15 помещений в Апарт-отель «Велл Московский»

Скидки и спецпредложения от застройщиков

Апарт-отель «Велл Московский» на карте

Выгодные предложения на новостройки

Отзывы о Апарт-отель «Велл Московский»

Самый полезный отзыв
М
27 октября 2025
Оценка:
Неплохие юниты для сдачи. По цене более чем комфортно, хороший старт в инвестиции. Взял себе номер, посмотрим как пойдет.
Ответить
Самый новый отзыв
СР
11 января
Оценка:
Достоинства
Двор, окружение
Расположение
рассматривал проект как вариант под сдачу: нравится, что локация выглядит «живой» и понятной по спросу, а сам формат апартов под это подходит. При этом покупку всё равно делал бы с холодной головой: в отзывах прямо пишут, что не всё идеально, но район в целом сильный и развивается - для меня это скорее «плюс с оговорками», чем безусловная рекомендация
Ответить

Оставить отзыв

Добавьте отзыв, заполнив личные данные, или сначала войдите на сайт, тогда информация будет автоматически взята из личного профиля.
Оценка*