Переверните экран
Поиск домов и коттеджей

Найдите идеальный дом или коттедж в Санкт-Петербурге и области

Найдите идеальный дом или коттедж в Санкт-Петербурге и области

Перейти к поиску
Новостройки Квартиры Ипотека Медиа О проекте Контакты Реклама на сайте Vk Youtube Telegram Дзен Продавцы и застройщики Коммерческие помещения Квартиры на карте Эксперты и авторы Машиноместа Акции от застройщиков Банки и программы Апартаменты Новостройки на карте 4-комнатные и более Готовые новостройки 3-комнатные Военная ипотека Покупателю Новостройки Санкт-Петербурга Видеообзор новостроек Семейная ипотека Аналитика рынка Панорамы новостроек 1-комнатные Субсидированная застройщиком Мнение эксперта Студии Ипотечный калькулятор Новости недвижимости Новостройки Ленинградской области IT-ипотека Квартиры со скидками до 25% Новостройки премиум-класса Новостройки бизнес-класса Дома и коттеджи Бизнес-центры Бизнес-центры в Санкт-Петербурге Бизнес-центры рядом с метро Строящиеся бизнес-центры Бизнес-центры класса A
помещение-студия, 37.60 м2, 6 этаж
Срок сдачи 4 квартал 2025 года
12 318 500 
327 620 2
обновлено 5 декабря

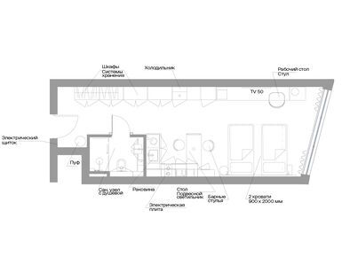
Описание помещения-студии

Застройщик
Срок ГК
4 квартал 2025 года
Общая площадь
37.60 м2
Этаж
6 / 22
Отделка
чистовая

Расположение помещения-студии

Локация
Дом
1
Адрес
пр. Ленинский, д. 153

Особенности

Продается помещение-студия в новостройке Апарт-отель Well Московский по адресу Санкт-Петербург, Московский, пр. Ленинский, д. 153. Общая площадь помещения - 37.6 кв. м. Тип проекта, по которому построен дом — Монолитно-кирпичный, компания-застройщик — СЗ Тайвас. Стоимость помещения — 12 318 500 руб. Способы оплаты можно уточнить у продавца. Срок сдачи — 4 квартал 2025. Более подробная информация по телефону.
Инфоцентр новостроек
Инфоцентр новостроек
+7 (812) 424-49-09
Время работы 9:00 — 21:00

Похожие помещения в Well Московский

6 этаж
из 22 4 квартал 2025
Санкт-Петербург, Санкт-Петербург
Московская
19 мин.
1
Корпус
чистовая
Отделка
3.00 м
Потолки
Апарт-отель Well Московский
12 318 500
8 этаж
из 22 4 квартал 2025
Санкт-Петербург, Санкт-Петербург
Московская
19 мин.
1
Корпус
чистовая
Отделка
3.00 м
Потолки
Апарт-отель Well Московский
12 318 500
8 этаж
из 22 4 квартал 2025
Санкт-Петербург, Санкт-Петербург
Московская
19 мин.
1
Корпус
чистовая
Отделка
3.00 м
Потолки
Апарт-отель Well Московский
12 318 500
8 этаж
из 22 4 квартал 2025
Санкт-Петербург, Санкт-Петербург
Московская
19 мин.
1
Корпус
чистовая
Отделка
3.00 м
Потолки
Апарт-отель Well Московский
12 318 500
6 этаж
из 22 4 квартал 2025
Санкт-Петербург, Санкт-Петербург
Московская
19 мин.
1
Корпус
чистовая
Отделка
3.00 м
Потолки
Апарт-отель Well Московский
12 322 050
8 этаж
из 22 4 квартал 2025
Санкт-Петербург, Санкт-Петербург
Московская
19 мин.
1
Корпус
чистовая
Отделка
3.00 м
Потолки
Апарт-отель Well Московский
12 322 050
8 этаж
из 22 4 квартал 2025
Санкт-Петербург, Санкт-Петербург
Московская
19 мин.
1
Корпус
чистовая
Отделка
3.00 м
Потолки
Апарт-отель Well Московский
12 322 050
8 этаж
из 22 4 квартал 2025
Санкт-Петербург, Санкт-Петербург
Московская
19 мин.
1
Корпус
чистовая
Отделка
3.00 м
Потолки
Апарт-отель Well Московский
12 677 050
6 этаж
из 22 4 квартал 2025
Санкт-Петербург, Санкт-Петербург
Московская
19 мин.
1
Корпус
чистовая
Отделка
3.00 м
Потолки
Апарт-отель Well Московский
13 351 550
6 этаж
из 22 4 квартал 2025
Санкт-Петербург, Санкт-Петербург
Московская
19 мин.
1
Корпус
чистовая
Отделка
3.00 м
Потолки
Апарт-отель Well Московский
13 351 550
6 этаж
из 22 4 квартал 2025
Санкт-Петербург, Санкт-Петербург
Московская
19 мин.
1
Корпус
чистовая
Отделка
3.00 м
Потолки
Апарт-отель Well Московский
13 351 550
8 этаж
из 22 4 квартал 2025
Санкт-Петербург, Санкт-Петербург
Московская
19 мин.
1
Корпус
чистовая
Отделка
3.00 м
Потолки
Апарт-отель Well Московский
13 383 500
6 этаж
из 22 4 квартал 2025
Санкт-Петербург, Санкт-Петербург
Московская
19 мин.
1
Корпус
чистовая
Отделка
3.00 м
Потолки
Апарт-отель Well Московский
17 373 700
Посмотреть все спецпредложения
Этаж 6/22
СПБ, Апарт-отель Well Московский
Московская
19 мин.
Строится
Этаж 8/22
СПБ, Апарт-отель Well Московский
Московская
19 мин.
Строится
Этаж 7/22
СПБ, Апарт-отель Well Московский
Московская
19 мин.
Строится
Этаж 6/22
СПБ, Апарт-отель Well Московский
Московская
19 мин.
Строится
Посмотреть 69 помещений в Well Московский
Этаж 6/22
СПБ, Апарт-отель Well Московский
Московская
19 мин.
Строится
Этаж 7/22
СПБ, Апарт-отель Well Московский
Московская
19 мин.
Строится
Этаж 8/22
СПБ, Апарт-отель Well Московский
Московская
19 мин.
Строится
Этаж 6/22
СПБ, Апарт-отель Well Московский
Московская
19 мин.
Строится
Посмотреть 13 помещений в Well Московский

Скидки и спецпредложения от застройщиков

Апарт-отель Well Московский на карте

Выгодные предложения на новостройки

Отзывы о Well Московский

Самый новый отзыв
М
27 октября
Оценка:
Неплохие юниты для сдачи. По цене более чем комфортно, хороший старт в инвестиции. Взял себе номер, посмотрим как пойдет.
Ответить
Полезный отзыв?
Добавьте отзыв, заполнив личные данные, или сначала войдите на сайт, тогда информация будет автоматически взята из личного профиля.
Оценка*