Переверните экран
Поиск домов и коттеджей

Найдите идеальный дом или коттедж в Санкт-Петербурге и области

Найдите идеальный дом или коттедж в Санкт-Петербурге и области

Перейти к поиску
Новостройки Квартиры Ипотека Медиа О проекте Контакты Реклама на сайте Vk Youtube Telegram Дзен Продавцы и застройщики Коммерческие помещения Квартиры на карте Эксперты и авторы Машиноместа Акции от застройщиков Банки и программы Апартаменты Новостройки на карте 4-комнатные и более Готовые новостройки 3-комнатные Военная ипотека Покупателю Новостройки Санкт-Петербурга Видеообзор новостроек Семейная ипотека Аналитика рынка Панорамы новостроек 1-комнатные Субсидированная застройщиком Мнение эксперта Студии Ипотечный калькулятор Новости недвижимости Новостройки Ленинградской области IT-ипотека Квартиры со скидками до 25% Новостройки премиум-класса Новостройки бизнес-класса Дома и коттеджи Бизнес-центры Бизнес-центры в Санкт-Петербурге Бизнес-центры рядом с метро Строящиеся бизнес-центры Бизнес-центры класса A
1-комн. помещение, 52.40 м2, 13 этаж
Сдан
11 149 999 
15 067 566
212 786 2
обновлено 5 декабря

Описание 1-комн. помещения

Новостройка
Застройщик
Срок ГК
Дом сдан
Стадия строительства
выдача ключей + заселение
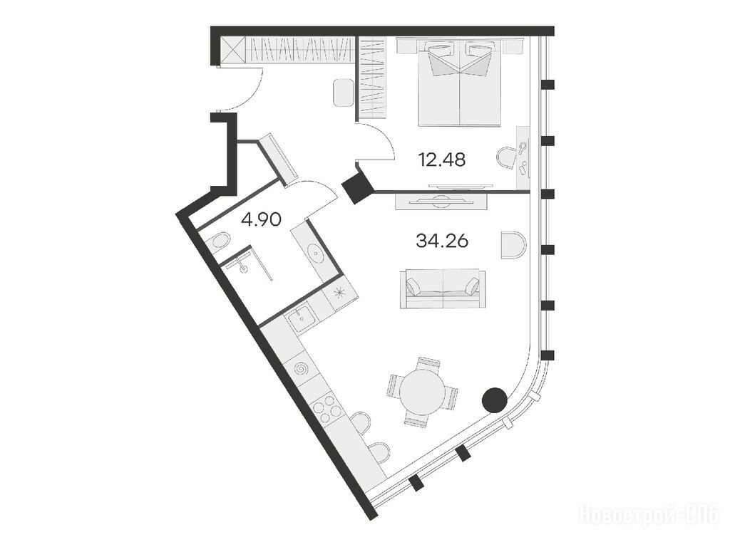
Общая площадь
52.40 м2
Жилая площадь
12.48 м2
Площадь кухни
34.26 м2
Этаж
13 / 15
Отделка
нет

Расположение 1-комн. помещения

Дом
1
Адрес
проспект Энергетиков, 2к1, стр.1, секция 7

Способы покупки

Особенности

Продается однокомнатное помещение в новостройке «25/7 Заневский» по адресу Санкт-Петербург, Красногвардейский, проспект Энергетиков, 2к1, стр.1. Общая площадь помещения - 52.4 кв. м. Тип проекта, по которому построен дом — Монолитно-кирпичный, компания-застройщик — GloraX (Глоракс). Стоимость помещения — 11 149 999 руб. Способы оплаты можно уточнить у продавца. Более подробная информация по телефону.
Инфоцентр новостроек
Инфоцентр новостроек
+7 (812) 424-49-09
Время работы 9:00 — 21:00
Посмотреть все спецпредложения
помещение-студия 20,80 м2 5 449 999
Этаж 2/15
СПБ, «25/7 Заневский»
Ладожская
2 мин.
Сдан
помещение-студия 21,10 м2 5 399 999
Этаж 7/15
СПБ, «25/7 Заневский»
Ладожская
2 мин.
Сдан
помещение-студия 21,20 м2 5 279 999
Этаж 3/15
СПБ, «25/7 Заневский»
Ладожская
2 мин.
Сдан
помещение-студия 21,30 м2 5 369 999
Этаж 15/15
СПБ, «25/7 Заневский»
Ладожская
2 мин.
Сдан
Посмотреть 143 помещения в «25/7 Заневский»
1-комн. помещение 43,40 м2 9 739 999
Этаж 3/15
СПБ, «25/7 Заневский»
Ладожская
2 мин.
Сдан
1-комн. помещение 43,80 м2 9 829 999
Этаж 4/15
СПБ, «25/7 Заневский»
Ладожская
2 мин.
Сдан
1-комн. помещение 43,90 м2 9 829 999
Этаж 5/15
СПБ, «25/7 Заневский»
Ладожская
2 мин.
Сдан
1-комн. помещение 46,10 м2 10 219 999
Этаж 6/15
СПБ, «25/7 Заневский»
Ладожская
2 мин.
Сдан
Посмотреть 19 помещений в «25/7 Заневский»
2-комн. помещение 41,30 м2 9 279 999
Этаж 10/15
СПБ, «25/7 Заневский»
Ладожская
2 мин.
Сдан
2-комн. помещение 41,80 м2 9 149 999
Этаж 9/15
СПБ, «25/7 Заневский»
Ладожская
2 мин.
Сдан
2-комн. помещение 76,40 м2 14 869 999
Этаж 6/15
СПБ, «25/7 Заневский»
Ладожская
2 мин.
Сдан
2-комн. помещение 77,10 м2 15 349 999
Этаж 10/15
СПБ, «25/7 Заневский»
Ладожская
2 мин.
Сдан
Посмотреть 12 помещений в «25/7 Заневский»

Скидки и спецпредложения от застройщиков

«25/7 Заневский» на карте

Выгодные предложения на новостройки

Отзывы о «25/7 Заневский»

Самый полезный отзыв
К
30 августа 2022
Оценка:
Строительство идет быстро. Особенно если сравнивать уровень построенного весной и свежий отчет. Думаю, такими темпами, отель может быть сдан и раньше срока.
Ответить
Полезный отзыв?
Самый новый отзыв
Р
26 ноября
Оценка:
В качестве пассивной инвестиции это, мне кажется, оптимальный вариант. Во-первых, недвижимость - это всегда беспроигрышное решение в плане вложений, во-вторых, идея с передачей апартаментов в ведение управляющей компании - прекрасная находка. УК берет на себя все вопросы по обслуживанию апартаментов, по поиску арендаторов и так далее. Через личный кабинет удобно следить за тем, как идут дела. Сейчас еще туристический сезон не закончился и делать долгосрочные выводы рано, но пока мои апартаменты всего несколько дней простаивали, и то, это было в самом начале, когда апарт-отель только запускали. Надо было несколько апартаментов брать.
Ответить
Полезный отзыв?
Добавьте отзыв, заполнив личные данные, или сначала войдите на сайт, тогда информация будет автоматически взята из личного профиля.
Оценка*