Переверните экран
Поиск бизнес центров

Найдите современный офис в деловых районах Санкт-Петербурга

Найдите современный офис в деловых районах Санкт-Петербурга

Перейти к поиску
Новостройки Квартиры Ипотека Медиа О проекте Контакты Реклама на сайте Vk Youtube Telegram Дзен Продавцы и застройщики Коммерческие помещения Квартиры на карте Эксперты и авторы Машиноместа Акции от застройщиков Банки и программы Апартаменты Новостройки на карте 4-комнатные и более Готовые новостройки 3-комнатные Военная ипотека Покупателю Новостройки Санкт-Петербурга Видеообзор новостроек Семейная ипотека Аналитика рынка Панорамы новостроек 1-комнатные Субсидированная застройщиком Мнение эксперта Студии Ипотечный калькулятор Новости недвижимости Новостройки Ленинградской области IT-ипотека Квартиры со скидками до 25% Новостройки премиум-класса Новостройки бизнес-класса Дома и коттеджи Бизнес-центры Бизнес-центры в Санкт-Петербурге Бизнес-центры рядом с метро Строящиеся бизнес-центры Бизнес-центры класса A
1-комн. помещение, 20.51 м2, 6 этаж
Срок сдачи 4 квартал 2026 года
15 829 618 
771 800 2
обновлено 5 декабря

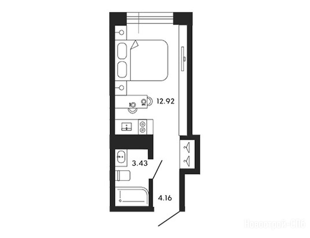
Описание 1-комн. помещения

Застройщик
Срок ГК
4 квартал 2026 года
Стадия строительства
монтаж верхних этажей
Тип проекта
Общая площадь
20.51 м2
Этаж
6 / 8
Отделка
под чистовую

Расположение 1-комн. помещения

Метро
Дом
CLUB
Адрес
Ремесленная ул., д. 17, лит. 3

Особенности

Продается однокомнатное помещение в новостройке «17/33 RESIDENCE на Петровском острове» по адресу Санкт-Петербург, Петроградский, Ремесленная ул., д. 17, лит. 3. Общая площадь помещения - 20.51 кв. м. Тип проекта, по которому построен дом — Монолит, компания-застройщик — Element Development. Стоимость помещения — 15 829 618 руб. Способы оплаты можно уточнить у продавца. Срок сдачи — 4 квартал 2026. Более подробная информация по телефону.
Element Development
Element Development
Сданных 1
|
Строящихся 5
Выбирайте помещения в «17/33 RESIDENCE на Петровском острове» по ценам от застройщика

Похожие помещения в «17/33 RESIDENCE на Петровском острове»

6 этаж
из 8 4 квартал 2026
Санкт-Петербург, Санкт-Петербург
Спортивная
12 мин.
CLUB
Корпус
под чистовую
Отделка
3.00 м
Потолки
«17/33 RESIDENCE на Петровском острове»
16 544 392
6 этаж
из 8 4 квартал 2026
Санкт-Петербург, Санкт-Петербург
Спортивная
12 мин.
CLUB
Корпус
под чистовую
Отделка
3.00 м
Потолки
«17/33 RESIDENCE на Петровском острове»
16 544 392
Посмотреть все спецпредложения
1-комн. помещение 20,51 м2 16 544 392
Этаж 6/8
СПБ, «17/33 RESIDENCE на Петровском острове»
Спортивная
12 мин.
Строится
1-комн. помещение 20,58 м2 16 828 266
Этаж 7/8
СПБ, «17/33 RESIDENCE на Петровском острове»
Спортивная
12 мин.
Строится
1-комн. помещение 20,70 м2 32 094 887
Этаж 8/8
СПБ, «17/33 RESIDENCE на Петровском острове»
Спортивная
12 мин.
Строится
1-комн. помещение 20,72 м2 15 833 188
Этаж 5/8
СПБ, «17/33 RESIDENCE на Петровском острове»
Спортивная
12 мин.
Строится
Посмотреть 32 помещения в «17/33 RESIDENCE на Петровском острове»
2-комн. помещение 61,68 м2 60 082 488
Этаж 6/8
СПБ, «17/33 RESIDENCE на Петровском острове»
Спортивная
12 мин.
Строится
3-комн. помещение 218,26 м2 235 982 712
Этаж 5/8
СПБ, «17/33 RESIDENCE на Петровском острове»
Спортивная
12 мин.
Строится
3-комн. помещение 218,34 м2 188 744 013
Этаж 3/8
СПБ, «17/33 RESIDENCE на Петровском острове»
Спортивная
12 мин.
Строится
3-комн. помещение 231,21 м2 283 394 097
Этаж 5/8
СПБ, «17/33 RESIDENCE на Петровском острове»
Спортивная
12 мин.
Строится
3-комн. помещение 231,57 м2 218 486 295
Этаж 3/8
СПБ, «17/33 RESIDENCE на Петровском острове»
Спортивная
12 мин.
Строится
4-комн. помещение 413,10 м2 492 642 405
Этаж 5/8
СПБ, «17/33 RESIDENCE на Петровском острове»
Спортивная
12 мин.
Строится
4-комн. помещение 413,14 м2 426 670 335
Этаж 3/8
СПБ, «17/33 RESIDENCE на Петровском острове»
Спортивная
12 мин.
Строится

Скидки и спецпредложения от застройщиков

«17/33 RESIDENCE на Петровском острове» на карте

Выгодные предложения на новостройки

Отзывы о «17/33 RESIDENCE на Петровском острове»

Самый полезный отзыв
П
27 августа 2024
Оценка:
Экология
Внешний вид фасада
Двор, окружение
Здания максимум 8 этажей, все апартаменты видовые, высокие потолки, большая внутренняя территория - сразу видно, что комплекс продуман от и до. Есть вопросы, как будут делать подъезд к ЖК, чтобы избежать "бутылочного горлышка"
Ответить
Полезный отзыв?
Самый новый отзыв
ВП
01 декабря
Оценка:
Купил здесь апартаменты из-за удобства, взял сразу с отделкой, чтобы после сдачи не тратить месяцы на ремонт и поиски бригад. Хочу сразу заехать и заниматься делами, а не плиткой и плинтусами. В доме можно будет заказать клининг или ужин из ресторана прямо в квартиру. По технике все выглядит взросло: умный дом, фильтрация и обеззараживание воздуха, охрана, камеры и подземный паркинг. Также на территории будет библиотека, фитнес и спа. Еще обещают велодорожки и зоны отдыха. Проект еще строится, часть сервиса проверим позже на практике, но в целом набор решений интересный, всего и не вспомнишь сразу. А вообще, если все заявленное заработает как задумано, это будет уже половина спокойной жизни
Ответить
Полезный отзыв?
Добавьте отзыв, заполнив личные данные, или сначала войдите на сайт, тогда информация будет автоматически взята из личного профиля.
Оценка*