Переверните экран
Поиск домов и коттеджей

Найдите идеальный дом или коттедж в Санкт-Петербурге и области

Найдите идеальный дом или коттедж в Санкт-Петербурге и области

Перейти к поиску
Новостройки Квартиры Ипотека Медиа О проекте Контакты Реклама на сайте Vk Youtube Telegram Дзен Продавцы и застройщики Коммерческие помещения Квартиры на карте Эксперты и авторы Машиноместа Акции от застройщиков Банки и программы Апартаменты Новостройки на карте 4-комнатные и более Готовые новостройки 3-комнатные Военная ипотека Покупателю Новостройки Санкт-Петербурга Видеообзор новостроек Семейная ипотека Аналитика рынка Панорамы новостроек 1-комнатные Субсидированная застройщиком Мнение эксперта Студии Ипотечный калькулятор Новости недвижимости Новостройки Ленинградской области ИТ-ипотека Квартиры со скидками до 25% Новостройки премиум-класса Новостройки бизнес-класса Дома и коттеджи Коттеджные поселки в Санкт-Петербурге Коттеджные поселки в Ленинградской обл Готовые коттеджные поселки Строящиеся коттеджные поселки Коттеджные поселки у леса Коттеджные поселки у водоема Коттеджные поселки в ипотеку Бизнес-центры Коттеджи Ипотека со ставкой 0,1% Траншевая ипотека
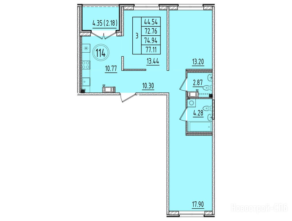
3-комн. квартира, 72.76 м2, 4 этаж
Срок сдачи 1 квартал 2028 года
16 007 200 
220 000 2
обновлено 4 мая

Описание 3-комн. квартиры

Срок ГК
1 квартал 2028 года
Стадия строительства
Общая площадь
72.76 м2
Этаж
4 / 4
Отделка
нет

Расположение 3-комн. квартиры

Локация
Дом
1
Адрес
ул. Кокколевская, ЖК «Образцовый квартал 6.4», корпус 1, секция 1

Способы покупки

Особенности

Продается трехкомнатная квартира в новостройке ЖК «Образцовый квартал 6.4» по адресу Санкт-Петербург, Пушкинский, Шушары пос., ул. Кокколевская, ЖК «Образцовый квартал 6.4», корпус 1. Общая площадь квартиры - 72.76 кв. м. Тип проекта, по которому построен дом — Монолитно-кирпичный, компания-застройщик — СЗ «Терминал Ресурс». Стоимость квартиры — 16 007 200 руб. Способы оплаты можно уточнить у продавца. Срок сдачи — 1 квартал 2028. Более подробная информация по телефону.
Инфоцентр новостроек
Инфоцентр новостроек
Время работы 9:00 — 21:00
Выбирайте квартиру в ЖК «Образцовый квартал 6.4» по ценам от застройщика
Этаж 1/4
СПБ, ЖК «Образцовый квартал 6.4»
Проспект Ветеранов
33 мин.
Строится
Этаж 4/4
СПБ, ЖК «Образцовый квартал 6.4»
Проспект Ветеранов
33 мин.
Строится
Этаж 3/4
СПБ, ЖК «Образцовый квартал 6.4»
Проспект Ветеранов
33 мин.
Строится
Этаж 1/4
СПБ, ЖК «Образцовый квартал 6.4»
Проспект Ветеранов
33 мин.
Строится
Этаж 4/4
СПБ, ЖК «Образцовый квартал 6.4»
Проспект Ветеранов
33 мин.
Строится
Посмотреть 240 квартир в ЖК «Образцовый квартал 6.4»
Этаж 4/4
СПБ, ЖК «Образцовый квартал 6.4»
Проспект Ветеранов
33 мин.
Строится
Этаж 2/4
СПБ, ЖК «Образцовый квартал 6.4»
Проспект Ветеранов
33 мин.
Строится
Этаж 1/4
СПБ, ЖК «Образцовый квартал 6.4»
Проспект Ветеранов
33 мин.
Строится
Этаж 4/4
СПБ, ЖК «Образцовый квартал 6.4»
Проспект Ветеранов
33 мин.
Строится
Посмотреть 63 квартиры в ЖК «Образцовый квартал 6.4»
Этаж 2/4
СПБ, ЖК «Образцовый квартал 6.4»
Проспект Ветеранов
33 мин.
Строится
Этаж 1/4
СПБ, ЖК «Образцовый квартал 6.4»
Проспект Ветеранов
33 мин.
Строится
Этаж 4/4
СПБ, ЖК «Образцовый квартал 6.4»
Проспект Ветеранов
33 мин.
Строится
Этаж 2/4
СПБ, ЖК «Образцовый квартал 6.4»
Проспект Ветеранов
33 мин.
Строится
Посмотреть 39 квартир в ЖК «Образцовый квартал 6.4»

Скидки и спецпредложения от застройщиков

ЖК «Образцовый квартал 6.4» на карте

Выгодные предложения на новостройки

Отзывы о ЖК «Образцовый квартал 6.4»

Самый полезный отзыв
Ж
17 декабря 2025
Оценка:
Достоинства
Социальная инфраструктура
Планировки
Способы покупки
Двор, окружение
Нравится сама логика «Образцовых кварталов»: малоэтажность и «двор без машин» психологически совсем другое качество жизни. Для меня плюс — рядом уже есть/будет базовая инфраструктура в соседних очередях. Но я трезво смотрю: район развивается, и часть сервиса первое время может быть «в процессе», а до города придётся ездить.
Ответить
Самый новый отзыв
Т
12 марта
Оценка:
Достоинства
Планировки
Внешний вид фасада
Двор, окружение
Покупателям обычно нравится более низкая этажность и ощущение воздуха по сравнению с типовыми массивами. Но по таким локациям всегда остается осторожность: пока район окончательно не дозреет, часть повседневных сценариев все равно завязана на машину.
Ответить

Оставить отзыв

Добавьте отзыв, заполнив личные данные, или сначала войдите на сайт, тогда информация будет автоматически взята из личного профиля.
Оценка*