Переверните экран
Поиск бизнес центров

Найдите современный офис в деловых районах Санкт-Петербурга

Найдите современный офис в деловых районах Санкт-Петербурга

Перейти к поиску
Новостройки Квартиры Ипотека Медиа О проекте Контакты Реклама на сайте Vk Youtube Telegram Дзен Продавцы и застройщики Коммерческие помещения Квартиры на карте Эксперты и авторы Машиноместа Акции от застройщиков Банки и программы Апартаменты Новостройки на карте 4-комнатные и более Готовые новостройки 3-комнатные Военная ипотека Покупателю Новостройки Санкт-Петербурга Видеообзор новостроек Семейная ипотека Аналитика рынка Панорамы новостроек 1-комнатные Субсидированная застройщиком Мнение эксперта Студии Ипотечный калькулятор Новости недвижимости Новостройки Ленинградской области IT-ипотека Квартиры со скидками до 25% Новостройки премиум-класса Новостройки бизнес-класса Дома и коттеджи Бизнес-центры Бизнес-центры в Санкт-Петербурге Бизнес-центры рядом с метро Строящиеся бизнес-центры Бизнес-центры класса A
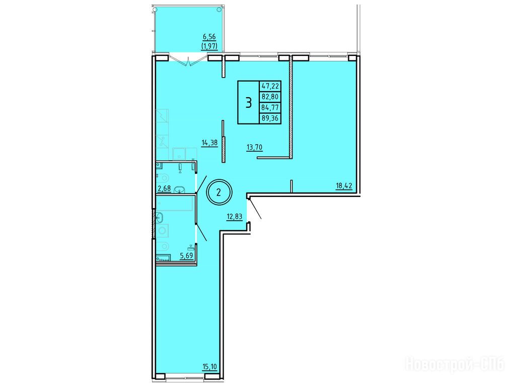
3-комн. квартира, 82.80 м2, 1 этаж
Срок сдачи 3 квартал 2026 года
15 732 000 
190 000 2
обновлено 2 февраля

Описание 3-комн. квартиры

Срок ГК
3 квартал 2026 года
Общая площадь
82.80 м2
Этаж
1 / 4
Отделка
нет

Расположение 3-комн. квартиры

Локация
Метро
Купчино
14 мин.
Дом
1
Адрес
Соколиная ул., ЖК «Образцовый квартал 16», секция 1

Особенности

Продается трехкомнатная квартира в новостройке ЖК «Образцовый квартал 16» по адресу Санкт-Петербург, Пушкинский, Шушары пос., Соколиная ул., ЖК «Образцовый квартал 16». Общая площадь квартиры - 82.8 кв. м. Тип проекта, по которому построен дом — Монолитно-кирпичный, компания-застройщик — СЗ «Терминал Ресурс». Стоимость квартиры — 15 732 000 руб. Способы оплаты можно уточнить у продавца. Срок сдачи — 3 квартал 2026. Более подробная информация по телефону.
Инфоцентр новостроек
Инфоцентр новостроек
+7 (812) 424-49-09
Время работы 9:00 — 21:00
Посмотреть все спецпредложения
студия 26,30 м2 5 996 400
Этаж 4/4
СПБ, ЖК «Образцовый квартал 16»
Купчино
14 мин.
Строится
студия 26,41 м2 6 021 480
Этаж 2/4
СПБ, ЖК «Образцовый квартал 16»
Купчино
14 мин.
Строится
студия 29,46 м2 6 716 880
Этаж 4/4
СПБ, ЖК «Образцовый квартал 16»
Купчино
14 мин.
Строится
студия 29,64 м2 6 431 880
Этаж 2/4
СПБ, ЖК «Образцовый квартал 16»
Купчино
14 мин.
Строится
Посмотреть 10 квартир в ЖК «Образцовый квартал 16»
1-комн. квартира 32,40 м2 7 387 200
Этаж 4/4
СПБ, ЖК «Образцовый квартал 16»
Купчино
14 мин.
Строится
1-комн. квартира 32,58 м2 7 069 860
Этаж 2/4
СПБ, ЖК «Образцовый квартал 16»
Купчино
14 мин.
Строится
1-комн. квартира 33,67 м2 7 306 390
Этаж 2/4
СПБ, ЖК «Образцовый квартал 16»
Купчино
14 мин.
Строится
1-комн. квартира 34,14 м2 7 783 920
Этаж 4/4
СПБ, ЖК «Образцовый квартал 16»
Купчино
14 мин.
Строится
Посмотреть 298 квартир в ЖК «Образцовый квартал 16»
2-комн. квартира 51,30 м2 10 619 100
Этаж 3/4
СПБ, ЖК «Образцовый квартал 16»
Купчино
14 мин.
Строится
2-комн. квартира 51,88 м2 10 116 600
Этаж 1/4
СПБ, ЖК «Образцовый квартал 16»
Купчино
14 мин.
Строится
2-комн. квартира 54,30 м2 11 267 250
Этаж 4/4
СПБ, ЖК «Образцовый квартал 16»
Купчино
14 мин.
Строится
2-комн. квартира 54,39 м2 10 986 780
Этаж 2/4
СПБ, ЖК «Образцовый квартал 16»
Купчино
14 мин.
Строится
Посмотреть 31 квартира в ЖК «Образцовый квартал 16»
3-комн. квартира 76,47 м2 14 529 300
Этаж 1/4
СПБ, ЖК «Образцовый квартал 16»
Купчино
14 мин.
Строится
3-комн. квартира 78,17 м2 15 634 000
Этаж 3/4
СПБ, ЖК «Образцовый квартал 16»
Купчино
14 мин.
Строится
3-комн. квартира 78,69 м2 14 951 100
Этаж 1/4
СПБ, ЖК «Образцовый квартал 16»
Купчино
14 мин.
Строится
3-комн. квартира 78,90 м2 14 991 000
Этаж 1/4
СПБ, ЖК «Образцовый квартал 16»
Купчино
14 мин.
Строится
Посмотреть 25 квартир в ЖК «Образцовый квартал 16»

Скидки и спецпредложения от застройщиков

ЖК «Образцовый квартал 16» на карте

Выгодные предложения на новостройки

Отзывы о ЖК «Образцовый квартал 16»

Самый полезный отзыв
АТ
28 февраля 2025
Оценка:
Планировки
Внешний вид фасада
Двор, окружение
Расположение
Привлекают зелёные газоны с декоративными кустарниками и молодыми деревьями, которые создают приятную атмосферу. Широкие улицы позволяют комфортно гулять, а для стоянки автомобилей предусмотрено достаточное пространство, что исключает проблему с нехваткой мест. Отдельно хотелось бы отметить, что строительство и сдача домов здесь всегда происходят в срок.
Ответить
Полезный отзыв?
Самый новый отзыв
РФ
24 декабря 2025
Оценка:
Планировки
Внешний вид фасада
Двор, окружение
Покупали для семьи. Понравилось ощущение пространства, малоэтажность и дворы без машин. Качество домов достойное. Из минусов - цена выше средней и необходимость ждать развития части инфраструктуры. В целом комфортный формат.
Ответить
Полезный отзыв?
Добавьте отзыв, заполнив личные данные, или сначала войдите на сайт, тогда информация будет автоматически взята из личного профиля.
Оценка*