Переверните экран
Новостройки Квартиры Ипотека Медиа О проекте Контакты Реклама на сайте Vk Youtube Telegram Дзен Продавцы и застройщики Коммерческие помещения Квартиры на карте Эксперты и авторы Машиноместа Акции от застройщиков Банки и программы Апартаменты Новостройки на карте 4-комнатные и более Готовые новостройки 3-комнатные Военная ипотека Покупателю Новостройки Санкт-Петербурга Видеообзор новостроек Семейная ипотека Аналитика рынка Панорамы новостроек 1-комнатные Субсидированная застройщиком Мнение эксперта Студии Ипотечный калькулятор Новости недвижимости Новостройки Ленинградской области IT-ипотека Квартиры со скидками до 25% Новостройки премиум-класса Новостройки бизнес-класса Дома и коттеджи Бизнес-центры Бизнес-центры в Санкт-Петербурге Бизнес-центры рядом с метро Строящиеся бизнес-центры Бизнес-центры класса A
Данное предложение на 16.12.2025 неактуально. Пожалуйста, ознакомьтесь с другими похожими предложениями в ЖК «Образцовый квартал 14» .
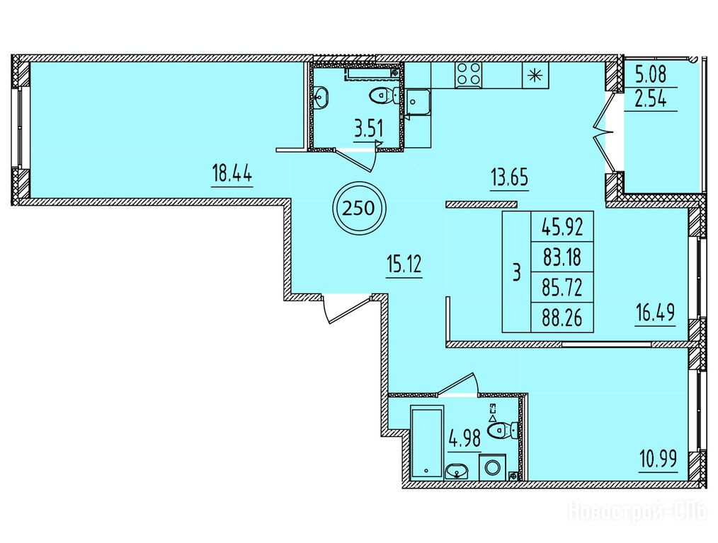
3-комн. квартира, 83.18 м2, 1 этаж
Срок сдачи 2 квартал 2026 года
14 690 600 
176 612 2
обновлено 9 октября

Описание 3-комн. квартиры

Срок ГК
2 квартал 2026 года
Общая площадь
83.18 м2
Этаж
1 / 4
Отделка
нет

Расположение 3-комн. квартиры

Локация
Метро
Купчино
14 мин.
Дом
3
Адрес
ул. Соколиная, ЖК «Образцовый квартал 14», секция 1-9

Особенности

Продается трехкомнатная квартира в новостройке ЖК «Образцовый квартал 14» по адресу Санкт-Петербург, Пушкинский, Шушары пос., ул. Соколиная, ЖК «Образцовый квартал 14». Общая площадь квартиры - 83.18 кв. м. Тип проекта, по которому построен дом — Монолитно-кирпичный, компания-застройщик — СЗ «Терминал Ресурс». Стоимость квартиры — 14 690 600 руб. Способы оплаты можно уточнить у продавца. Срок сдачи — 2 квартал 2026. Более подробная информация по телефону.
СЗ «Терминал Ресурс»
СЗ «Терминал Ресурс»
Сданных 12
|
Строящихся 5
Выбирайте квартиру в ЖК «Образцовый квартал 14» по ценам от застройщика
Посмотреть все спецпредложения
1-комн. квартира 33,81 м2 7 304 809
Этаж 4/4
СПБ, ЖК «Образцовый квартал 14»
Купчино
14 мин.
Строится
1-комн. квартира 34,06 м2 7 334 098
Этаж 4/4
СПБ, ЖК «Образцовый квартал 14»
Купчино
14 мин.
Строится
1-комн. квартира 34,11 м2 7 337 191
Этаж 4/4
СПБ, ЖК «Образцовый квартал 14»
Купчино
14 мин.
Строится
1-комн. квартира 34,20 м2 7 324 240
Этаж 4/4
СПБ, ЖК «Образцовый квартал 14»
Купчино
14 мин.
Строится
Посмотреть 207 квартир в ЖК «Образцовый квартал 14»
2-комн. квартира 61,00 м2 11 773 000
Этаж 1/4
СПБ, ЖК «Образцовый квартал 14»
Купчино
14 мин.
Строится
2-комн. квартира 62,16 м2 11 996 880
Этаж 1/4
СПБ, ЖК «Образцовый квартал 14»
Купчино
14 мин.
Строится
2-комн. квартира 64,01 м2 12 353 930
Этаж 1/4
СПБ, ЖК «Образцовый квартал 14»
Купчино
14 мин.
Строится
2-комн. квартира 70,38 м2 13 583 340
Этаж 1/4
СПБ, ЖК «Образцовый квартал 14»
Купчино
14 мин.
Строится

Скидки и спецпредложения от застройщиков

ЖК «Образцовый квартал 14» на карте

Выгодные предложения на новостройки

Отзывы о ЖК «Образцовый квартал 14»

Самый полезный отзыв
ММ
28 февраля
Оценка:
Социальная инфраструктура
Планировки
Способы покупки
Двор, окружение
Расположение
Мы живем в непосредственной близости к Пушкину и Санкт-Петербургу, что предоставляет нам отличные возможности для как культурных, так и развлекательных мероприятий. Легкий доступ к городу. В комплексе также заботятся о безопасности и комфорте - дворы чистые и ухоженные, радует
Ответить
Полезный отзыв?
Самый новый отзыв
СД
27 октября
Оценка:
Сдают к лету 26го, в квартирах судя по метражу и фоткам много света и воздуха. Инфраструктура также на уровне. Но волнует, что район только начинает застраиваться.
Ответить
Полезный отзыв?
Добавьте отзыв, заполнив личные данные, или сначала войдите на сайт, тогда информация будет автоматически взята из личного профиля.
Оценка*