Переверните экран
Новостройки Квартиры Ипотека Медиа О проекте Контакты Реклама на сайте Vk Youtube Telegram Дзен Продавцы и застройщики Коммерческие помещения Квартиры на карте Эксперты и авторы Машиноместа Акции от застройщиков Банки и программы Апартаменты Новостройки на карте 4-комнатные и более Готовые новостройки 3-комнатные Военная ипотека Покупателю Новостройки Санкт-Петербурга Видеообзор новостроек Семейная ипотека Аналитика рынка Панорамы новостроек 1-комнатные Субсидированная застройщиком Мнение эксперта Студии Ипотечный калькулятор Новости недвижимости Новостройки Ленинградской области IT-ипотека Квартиры со скидками до 25% Новостройки премиум-класса Новостройки бизнес-класса Дома и коттеджи Бизнес-центры Бизнес-центры в Санкт-Петербурге Бизнес-центры рядом с метро Строящиеся бизнес-центры Бизнес-центры класса A
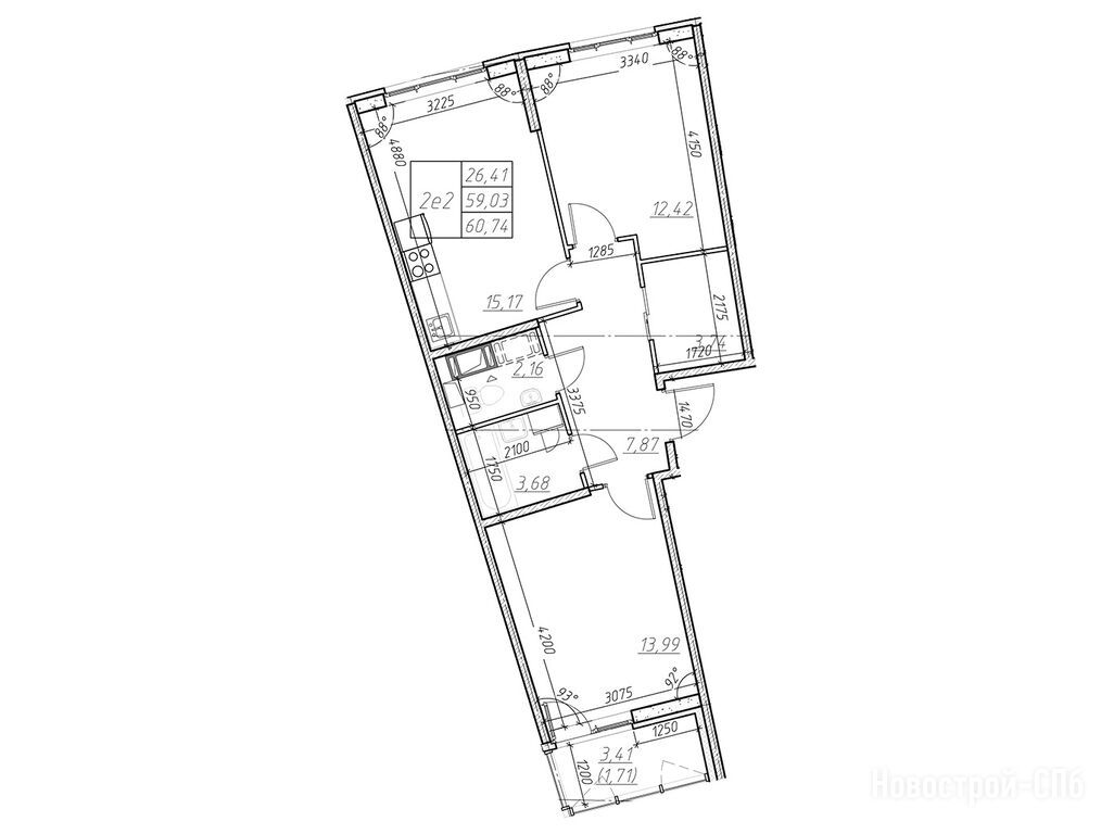
3-комн. квартира, 60.74 м2, 16 этаж
Срок сдачи 4 квартал 2025 года
8 801 373 
144 902 2
обновлено 17 декабря

Описание 3-комн. квартиры

Новостройка
Срок ГК
4 квартал 2025 года
Тип проекта
Общая площадь
60.74 м2
Этаж
16 / 22
Отделка
нет

Расположение 3-комн. квартиры

Метро
Ж/Д-станция
Дом
1
Адрес
ул. Оборонная, уч. 31/1

Способы покупки

Особенности

Продается трехкомнатная квартира в новостройке ЖК «Левитан» по адресу Ленинградская область, Всеволожский район, Мурино, Мурино, ул. Оборонная, уч. 31/1. Общая площадь квартиры - 60.74 кв. м. Тип проекта, по которому построен дом — Монолит, компания-застройщик — ЛенОблАИЖК. Стоимость квартиры — 8 801 373 руб. Способы оплаты можно уточнить у продавца. Срок сдачи — 4 квартал 2025. Более подробная информация по телефону.
Инфоцентр новостроек
Инфоцентр новостроек
+7 (812) 424-49-09
Время работы 9:00 — 21:00

Похожие квартиры в ЖК «Левитан»

13 этаж
из 22 4 квартал 2025
Ленинградская область, Мурино
Девяткино
21 мин.
1
Корпус
нет
Отделка
2.75 м
Потолки
ЖК «Левитан»
8 801 373
ВТБ, СберБанк, Т-Банк, АК БАРС , Банк Россия, Россельхозбанк, Промсвязьбанк, ДОМ.РФ, Абсолют Банк
6.00%
Ставка
20.10%
Первый взнос
от 52 769 /мес.
Все варианты
18 этаж
из 22 4 квартал 2025
Ленинградская область, Мурино
Девяткино
21 мин.
1
Корпус
нет
Отделка
2.75 м
Потолки
ЖК «Левитан»
8 801 373
ВТБ, СберБанк, Т-Банк, АК БАРС , Банк Россия, Россельхозбанк, Промсвязьбанк, ДОМ.РФ, Абсолют Банк
6.00%
Ставка
20.10%
Первый взнос
от 52 769 /мес.
Все варианты
14 этаж
из 22 4 квартал 2025
Ленинградская область, Мурино
Девяткино
21 мин.
1
Корпус
нет
Отделка
2.75 м
Потолки
ЖК «Левитан»
8 801 373
ВТБ, СберБанк, Т-Банк, АК БАРС , Банк Россия, Россельхозбанк, Промсвязьбанк, ДОМ.РФ, Абсолют Банк
6.00%
Ставка
20.10%
Первый взнос
от 52 769 /мес.
Все варианты
15 этаж
из 22 4 квартал 2025
Ленинградская область, Мурино
Девяткино
21 мин.
1
Корпус
нет
Отделка
2.75 м
Потолки
ЖК «Левитан»
8 801 373
ВТБ, СберБанк, Т-Банк, АК БАРС , Банк Россия, Россельхозбанк, Промсвязьбанк, ДОМ.РФ, Абсолют Банк
6.00%
Ставка
20.10%
Первый взнос
от 52 769 /мес.
Все варианты
12 этаж
из 22 4 квартал 2025
Ленинградская область, Мурино
Девяткино
21 мин.
1
Корпус
нет
Отделка
2.75 м
Потолки
ЖК «Левитан»
8 801 373
ВТБ, СберБанк, Т-Банк, АК БАРС , Банк Россия, Россельхозбанк, Промсвязьбанк, ДОМ.РФ, Абсолют Банк
6.00%
Ставка
20.10%
Первый взнос
от 52 769 /мес.
Все варианты
Посмотреть все спецпредложения
студия 24,74 м2 4 230 198
Этаж 22/22
ЛО, ЖК «Левитан»
Девяткино
21 мин.
Строится
студия 24,80 м2 4 240 971
Этаж 21/22
ЛО, ЖК «Левитан»
Девяткино
21 мин.
Строится
студия 24,83 м2 4 212 243
Этаж 21/22
ЛО, ЖК «Левитан»
Девяткино
21 мин.
Строится
студия 24,97 м2 4 258 926
Этаж 21/22
ЛО, ЖК «Левитан»
Девяткино
21 мин.
Строится
Посмотреть 277 квартир в ЖК «Левитан»
1-комн. квартира 37,90 м2 5 772 375
Этаж 17/22
ЛО, ЖК «Левитан»
Девяткино
21 мин.
Строится
1-комн. квартира 38,03 м2 6 288 815
Этаж 19/22
ЛО, ЖК «Левитан»
Девяткино
21 мин.
Строится
1-комн. квартира 38,09 м2 6 679 945
Этаж 4/22
ЛО, ЖК «Левитан»
Девяткино
21 мин.
Строится
1-комн. квартира 38,26 м2 5 825 925
Этаж 14/22
ЛО, ЖК «Левитан»
Девяткино
21 мин.
Строится
Посмотреть 41 квартира в ЖК «Левитан»
2-комн. квартира 38,61 м2 6 417 630
Этаж 7/22
ЛО, ЖК «Левитан»
Девяткино
21 мин.
Строится
2-комн. квартира 38,62 м2 5 866 875
Этаж 21/22
ЛО, ЖК «Левитан»
Девяткино
21 мин.
Строится
2-комн. квартира 38,66 м2 6 812 755
Этаж 20/22
ЛО, ЖК «Левитан»
Девяткино
21 мин.
Строится
2-комн. квартира 38,71 м2 5 926 725
Этаж 19/22
ЛО, ЖК «Левитан»
Девяткино
21 мин.
Строится
Посмотреть 279 квартир в ЖК «Левитан»
3-комн. квартира 53,27 м2 7 684 614
Этаж 17/22
ЛО, ЖК «Левитан»
Девяткино
21 мин.
Строится
3-комн. квартира 55,59 м2 7 991 760
Этаж 21/22
ЛО, ЖК «Левитан»
Девяткино
21 мин.
Строится
3-комн. квартира 56,16 м2 8 082 711
Этаж 22/22
ЛО, ЖК «Левитан»
Девяткино
21 мин.
Строится
3-комн. квартира 56,51 м2 8 142 351
Этаж 22/22
ЛО, ЖК «Левитан»
Девяткино
21 мин.
Строится
Посмотреть 273 квартиры в ЖК «Левитан»
4-комн. квартира 74,71 м2 10 209 812
Этаж 22/22
ЛО, ЖК «Левитан»
Девяткино
21 мин.
Строится
4-комн. квартира 75,35 м2 10 299 188
Этаж 5/22
ЛО, ЖК «Левитан»
Девяткино
21 мин.
Строится
4-комн. квартира 75,93 м2 10 380 185
Этаж 2/22
ЛО, ЖК «Левитан»
Девяткино
21 мин.
Строится
4-комн. квартира 75,95 м2 10 382 978
Этаж 14/22
ЛО, ЖК «Левитан»
Девяткино
21 мин.
Строится
Посмотреть 28 квартир в ЖК «Левитан»

Скидки и спецпредложения от застройщиков

ЖК «Левитан» на карте

Выгодные предложения на новостройки

Отзывы о ЖК «Левитан»

Самый полезный отзыв
МС
21 января 2023
Оценка:
Экология
Планировки
Двор, окружение
Выбирая из 3 ЖК выбрал Левитан. Нравится район, хоть и далековато от метро зато река и пляж рядом. По ценнику устраивает, квартира студия, но по планировке удачная, правильной формы, метраж нормальный.
Ответить
Полезный отзыв?
Самый новый отзыв
А
29 сентября
Оценка:
Мой будущий дом расположен в удачном месте. Удобные остановки общественного транспорта рядом, недалеко расположена станция метро. Это очень важно для меня.
Ответить
Полезный отзыв?
Добавьте отзыв, заполнив личные данные, или сначала войдите на сайт, тогда информация будет автоматически взята из личного профиля.
Оценка*