Переверните экран
Новостройки Квартиры Ипотека Медиа О проекте Контакты Реклама на сайте Vk Youtube Telegram Дзен Продавцы и застройщики Коммерческие помещения Квартиры на карте Эксперты и авторы Машиноместа Акции от застройщиков Банки и программы Апартаменты Новостройки на карте 4-комнатные и более Готовые новостройки 3-комнатные Военная ипотека Покупателю Новостройки Санкт-Петербурга Видеообзор новостроек Семейная ипотека Аналитика рынка Панорамы новостроек 1-комнатные Субсидированная застройщиком Мнение эксперта Студии Ипотечный калькулятор Новости недвижимости Новостройки Ленинградской области IT-ипотека Квартиры со скидками до 25% Новостройки премиум-класса Новостройки бизнес-класса Дома и коттеджи Бизнес-центры Бизнес-центры в Санкт-Петербурге Бизнес-центры рядом с метро Строящиеся бизнес-центры Бизнес-центры класса A
Данное предложение на 18.12.2025 неактуально. Пожалуйста, ознакомьтесь с другими похожими предложениями в ЖК OKLA (ОКЛА) .
студия, 29.31 м2, 2 этаж
Срок сдачи 2 квартал 2027 года
6 023 205 
205 500 2
обновлено 30 октября

Описание студии

Новостройка
Застройщик
Срок ГК
2 квартал 2027 года
Стадия строительства
монтаж нижних этажей
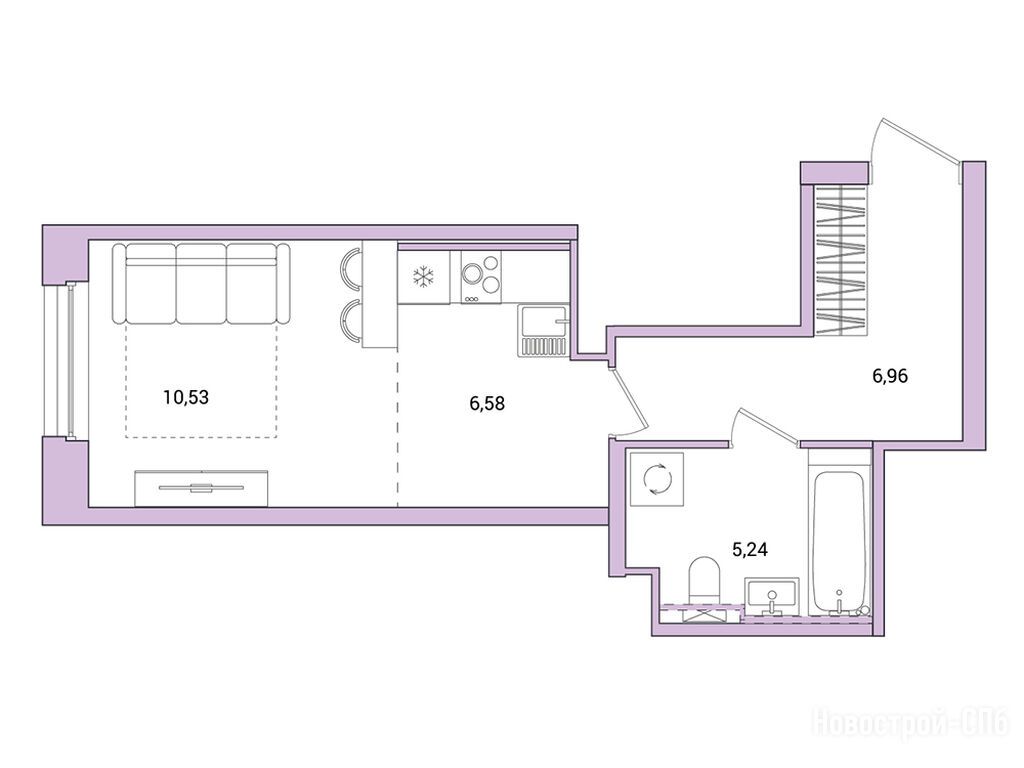
Общая площадь
29.31 м2
Жилая площадь
10.53 м2
Площадь кухни
6.58 м2
Этаж
2 / 25
Отделка
чистовая
Грузовой лифт
есть

Расположение студии

Локация
Ж/Д-станция
Дом
2.2.1
Адрес
Суздальское шоссе, 20., секция 1

Особенности

Продается студия в новостройке ЖК OKLA (ОКЛА) по адресу Санкт-Петербург, Приморский, Суздальское шоссе, 20.. Общая площадь квартиры - 29.31 кв. м. Тип проекта, по которому построен дом — Монолитно-кирпичный, компания-застройщик — «Ленстройтрест». Стоимость квартиры — 6 023 205 руб. Способы оплаты можно уточнить у продавца. Срок сдачи — 2 квартал 2027. Более подробная информация по телефону.
Инфоцентр новостроек
Инфоцентр новостроек
+7 (812) 424-49-09
Время работы 9:00 — 21:00
Посмотреть все спецпредложения
студия 28,02 м2 6 761 226
Этаж 18/25
СПБ, ЖК OKLA (ОКЛА)
Парнас
10 мин.
Строится
студия 28,05 м2 7 248 120
Этаж 18/25
СПБ, ЖК OKLA (ОКЛА)
Парнас
10 мин.
Строится
студия 28,10 м2 7 030 620
Этаж 17/25
СПБ, ЖК OKLA (ОКЛА)
Парнас
10 мин.
Строится
студия 28,15 м2 6 933 345
Этаж 17/25
СПБ, ЖК OKLA (ОКЛА)
Парнас
10 мин.
Строится
Посмотреть 143 квартиры в ЖК OKLA
1-комн. квартира 31,55 м2 8 641 545
Этаж 1/7
СПБ, ЖК OKLA (ОКЛА)
Парнас
10 мин.
Строится
1-комн. квартира 31,56 м2 8 802 084
Этаж 1/7
СПБ, ЖК OKLA (ОКЛА)
Парнас
10 мин.
Строится
1-комн. квартира 32,56 м2 9 178 664
Этаж 2/7
СПБ, ЖК OKLA (ОКЛА)
Парнас
10 мин.
Строится
1-комн. квартира 32,62 м2 8 999 858
Этаж 2/7
СПБ, ЖК OKLA (ОКЛА)
Парнас
10 мин.
Строится
Посмотреть 210 квартир в ЖК OKLA
2-комн. квартира 31,79 м2 8 681 849
Этаж 1/7
СПБ, ЖК OKLA (ОКЛА)
Парнас
10 мин.
Строится
2-комн. квартира 32,83 м2 8 791 874
Этаж 1/7
СПБ, ЖК OKLA (ОКЛА)
Парнас
10 мин.
Строится
2-комн. квартира 32,91 м2 9 320 112
Этаж 4/7
СПБ, ЖК OKLA (ОКЛА)
Парнас
10 мин.
Строится
2-комн. квартира 33,96 м2 9 546 156
Этаж 6/7
СПБ, ЖК OKLA (ОКЛА)
Парнас
10 мин.
Строится
Посмотреть 59 квартир в ЖК OKLA
3-комн. квартира 64,37 м2 18 075 096
Этаж 19/25
СПБ, ЖК OKLA (ОКЛА)
Парнас
10 мин.
Строится
3-комн. квартира 64,59 м2 18 505 035
Этаж 20/25
СПБ, ЖК OKLA (ОКЛА)
Парнас
10 мин.
Строится
3-комн. квартира 64,99 м2 16 799 915
Этаж 4/25
СПБ, ЖК OKLA (ОКЛА)
Парнас
10 мин.
Строится
3-комн. квартира 65,21 м2 16 628 550
Этаж 4/25
СПБ, ЖК OKLA (ОКЛА)
Парнас
10 мин.
Строится
Посмотреть 76 квартир в ЖК OKLA
4-комн. квартира 97,86 м2 25 717 608
Этаж 2/7
СПБ, ЖК OKLA (ОКЛА)
Парнас
10 мин.
Строится
Посмотреть 5 квартир в ЖК OKLA

Скидки и спецпредложения от застройщиков

ЖК OKLA (ОКЛА) на карте

Выгодные предложения на новостройки

Самый полезный отзыв
К
14 декабря 2020
Оценка:
Транспортная доступность
Экология
Социальная инфраструктура
Планировки
Скорость строительства
Подземный паркинг
Двор, окружение
Расположение
Почему-то на этом сайте мало отзывов, но я выбирала тут, так что решила оставить отзыв. Здорово, что участок около озёр отдали под новостройки. Не смогли удержаться от привлекательности современных ЖК и решили поменять свою старую квартиру на новую. Во-первых, контингент соседей в новых поприличнее старых кварталов, ну и конечно самое главное это безопасные дворы, ребенок подрастает, хочет уже самостоятельно гулять. ЖК выбрали по соотношение цена-отделка-планировка, но еще подкупило расположение. Вроде и в городе, метро рядом, Суздальский, ЗСД. Но при этом загородная экология, летом будет купаться где рядышком. Мы искали двушку, понравилось, что в Ойкумене полноценные изолированные двушки и кухня при этом нормального размера. Расположение с/у также радует. В цену входит отделка, так что цена очень выгодна. Ну и понравились зеленые виды из окна. Район этот обостроенный, мы тут давненько уже живём, всего для жизни хватает и торговых, и развлекательных. Радует, что у нового ЖК школа будет совсем рядышком, пешком.
Ответить
Полезный отзыв?
Самый новый отзыв
АИ
17 декабря
Оценка:
Планировки
Способы покупки
Внешний вид фасада
Двор, окружение
Расположение
Квартиру в Ойкумене (сейчас уже продают под брендом OKLA) брали, когда первые корпуса только сдавались, сейчас во дворе уже чувствуется «живой» квартал. Понравилось озеленение, закрытые дворы и отсутствие прямых окон-в-окна, есть где погулять детям. Минус пока в том, что проект большой, стройка вокруг не закончится ещё несколько лет, и к шуму спецтехники нужно относиться философски.
Ответить
Полезный отзыв?
Добавьте отзыв, заполнив личные данные, или сначала войдите на сайт, тогда информация будет автоматически взята из личного профиля.
Оценка*