Переверните экран
Новостройки Квартиры Ипотека Медиа О проекте Контакты Реклама на сайте Vk Youtube Telegram Дзен Продавцы и застройщики Коммерческие помещения Квартиры на карте Эксперты и авторы Машиноместа Акции от застройщиков Банки и программы Апартаменты Новостройки на карте 4-комнатные и более Готовые новостройки 3-комнатные Военная ипотека Покупателю Новостройки Санкт-Петербурга Видеообзор новостроек Семейная ипотека Аналитика рынка Панорамы новостроек 1-комнатные Субсидированная застройщиком Мнение эксперта Студии Ипотечный калькулятор Новости недвижимости Новостройки Ленинградской области IT-ипотека Квартиры со скидками до 25% Новостройки премиум-класса Новостройки бизнес-класса Дома и коттеджи Бизнес-центры Бизнес-центры в Санкт-Петербурге Бизнес-центры рядом с метро Строящиеся бизнес-центры Бизнес-центры класса A
Данное предложение на 16.12.2025 неактуально. Пожалуйста, ознакомьтесь с другими похожими предложениями в ЖК «Экография» .
студия, 25.20 м2, 3 этаж
Срок сдачи 2 квартал 2026 года
5 377 680 
213 400 2
обновлено 26 ноября

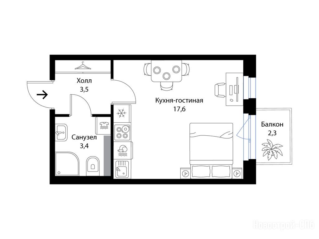
Описание студии

Новостройка
Застройщик
Срок ГК
2 квартал 2026 года
Стадия строительства
отделка фасада и внутренние работы
Общая площадь
25.20 м2
Жилая площадь
10.00 м2
Площадь кухни
7.60 м2
Этаж
3 / 3
Отделка
чистовая
Грузовой лифт
есть

Расположение студии

Ж/Д-станция
Дом
6
Адрес
Вишнёвая улица, ЖК «Экография», корпус 6, секция 2

Способы покупки

Особенности

Продается студия в новостройке ЖК «Экография» по адресу Ленинградская область, Ломоносовский район, Вишнёвая улица, ЖК «Экография», корпус 6. Общая площадь квартиры - 25.2 кв. м. Тип проекта, по которому построен дом — Монолитно-кирпичный, компания-застройщик — Охта Групп. Стоимость квартиры — 5 377 680 руб. Способы оплаты можно уточнить у продавца. Срок сдачи — 2 квартал 2026. Более подробная информация по телефону.
Инфоцентр новостроек
Инфоцентр новостроек
+7 (812) 424-49-09
Время работы 9:00 — 21:00
Посмотреть все спецпредложения
студия 24,10 м2 5 166 317
Этаж 1/3
ЛО, ЖК «Экография»
Проспект Ветеранов
28 мин.
Строится
студия 24,20 м2 5 328 598
Этаж 1/3
ЛО, ЖК «Экография»
Проспект Ветеранов
28 мин.
Строится
студия 24,70 м2 5 438 693
Этаж 1/3
ЛО, ЖК «Экография»
Проспект Ветеранов
28 мин.
Строится
студия 24,80 м2 5 460 712
Этаж 1/3
ЛО, ЖК «Экография»
Проспект Ветеранов
28 мин.
Строится
Посмотреть 44 квартиры в ЖК «Экография»
1-комн. квартира 32,40 м2 7 118 442
Этаж 3/3
ЛО, ЖК «Экография»
Проспект Ветеранов
28 мин.
Строится
1-комн. квартира 32,50 м2 7 140 413
Этаж 2/3
ЛО, ЖК «Экография»
Проспект Ветеранов
28 мин.
Строится
1-комн. квартира 33,20 м2 7 294 206
Этаж 1/3
ЛО, ЖК «Экография»
Проспект Ветеранов
28 мин.
Строится
1-комн. квартира 33,90 м2 7 398 675
Этаж 3/3
ЛО, ЖК «Экография»
Проспект Ветеранов
28 мин.
Строится
Посмотреть 115 квартир в ЖК «Экография»
Этаж 3/3
ЛО, ЖК «Экография»
Проспект Ветеранов
28 мин.
Строится
2-комн. квартира 49,30 м2 10 759 725
Этаж 2/3
ЛО, ЖК «Экография»
Проспект Ветеранов
28 мин.
Строится
Этаж 3/3
ЛО, ЖК «Экография»
Проспект Ветеранов
28 мин.
Строится
Этаж 2/3
ЛО, ЖК «Экография»
Проспект Ветеранов
28 мин.
Строится
Посмотреть 11 квартир в ЖК «Экография»

Скидки и спецпредложения от застройщиков

ЖК «Экография» на карте

Выгодные предложения на новостройки

Отзывы о ЖК «Экография»

Самый полезный отзыв
Н
31 октября 2023
Оценка:
Экология
Социальная инфраструктура
Планировки
Внешний вид фасада
Двор, окружение
Расположение
Транспортная доступность
Будет детский сад на 120 мест, торговый центр в рамках проекта, КАД рядом, закрытый двор, цена вообще отличная для таких квартир. Очень интересный ЖК. Посмотрела по магазинам (кроме того, что наверняка будет в ТЦ) - и Пятёрочка, и Перекрёсток, и ВкусВилл - в 10 минутах на машине в округе, как говорится, на любой вкус. Рядом парки, конные клубы и много всего интересного в Петергофе. Квартиры в домах в 3 этажа с лифтом, это редкость - вроде и загород, но комфорт как в своей квартире.
Ответить
Полезный отзыв?
Самый новый отзыв
ИР
31 августа
Оценка:
Я считаю, что этот ЖК - отличная возможность для инвестиций. Красивые планировки и развитая инфраструктура – это то, что всегда ценится на рынке недвижимости
Ответить
Полезный отзыв?
Добавьте отзыв, заполнив личные данные, или сначала войдите на сайт, тогда информация будет автоматически взята из личного профиля.
Оценка*