Переверните экран
Поиск домов и коттеджей

Найдите идеальный дом или коттедж в Санкт-Петербурге и области

Найдите идеальный дом или коттедж в Санкт-Петербурге и области

Перейти к поиску
Новостройки Квартиры Ипотека Медиа О проекте Контакты Реклама на сайте Vk Youtube Telegram Дзен Продавцы и застройщики Коммерческие помещения Квартиры на карте Эксперты и авторы Машиноместа Акции от застройщиков Банки и программы Апартаменты Новостройки на карте 4-комнатные и более Готовые новостройки 3-комнатные Военная ипотека Покупателю Новостройки Санкт-Петербурга Видеообзор новостроек Семейная ипотека Аналитика рынка Панорамы новостроек 1-комнатные Субсидированная застройщиком Мнение эксперта Студии Ипотечный калькулятор Новости недвижимости Новостройки Ленинградской области IT-ипотека Квартиры со скидками до 25% Новостройки премиум-класса Новостройки бизнес-класса Дома и коттеджи Бизнес-центры Бизнес-центры в Санкт-Петербурге Бизнес-центры рядом с метро Строящиеся бизнес-центры Бизнес-центры класса A
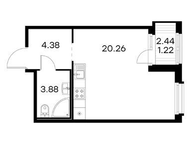
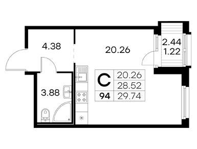
студия, 29.74 м2, 8 этаж
Срок сдачи 4 квартал 2025 года
6 769 999 
9 148 647
227 640 2
обновлено 5 декабря

Описание студии

Застройщик
GloraX (Глоракс) СЗ «Эс Пи Райтерс»
Срок ГК
4 квартал 2025 года
Стадия строительства
монтаж верхних этажей
Общая площадь
29.74 м2
Жилая площадь
15.26 м2
Площадь кухни
5.00 м2
Этаж
8 / 15
Отделка
нет

Расположение студии

Локация
Ж/Д-станция
Дом
4
Адрес
Михайловская дорога, корп. 4, секция 1

Способы покупки

Особенности

Продается студия в новостройке ЖК GloraX Парголово (Глоракс Парголово) по адресу Санкт-Петербург, Выборгский, поселок Парголово, Михайловская дорога, корп. 4. Общая площадь квартиры - 29.74 кв. м. Тип проекта, по которому построен дом — Монолитно-кирпичный, компания-застройщик — GloraX (Глоракс), СЗ «Эс Пи Райтерс». Стоимость квартиры — 6 769 999 руб. Способы оплаты можно уточнить у продавца. Срок сдачи — 4 квартал 2025. Более подробная информация по телефону.
+7 (812) 424-49-09
Время работы 9:00 — 21:00

Похожие квартиры в ЖК GloraX Парголово

10 этаж
из 15 4 квартал 2025
Санкт-Петербург, Выборгский
Проспект Просвещения
15 мин.
4
Корпус
нет
Отделка
2.70 м
Потолки
ЖК GloraX Парголово (Глоракс Парголово)
6 829 999 9 229 728
СберБанк
19.10%
Ставка
15.01%
Первый взнос
от 109 672 /мес.
Все варианты
10 этаж
из 15 4 квартал 2025
Санкт-Петербург, Выборгский
Проспект Просвещения
15 мин.
4
Корпус
нет
Отделка
2.70 м
Потолки
ЖК GloraX Парголово (Глоракс Парголово)
6 829 999 9 229 728
СберБанк
19.10%
Ставка
15.01%
Первый взнос
от 109 672 /мес.
Все варианты
11 этаж
из 15 4 квартал 2025
Санкт-Петербург, Выборгский
Проспект Просвещения
15 мин.
4
Корпус
нет
Отделка
2.70 м
Потолки
ЖК GloraX Парголово (Глоракс Парголово)
6 859 999 9 270 269
СберБанк
19.10%
Ставка
15.01%
Первый взнос
от 110 153 /мес.
Все варианты
11 этаж
из 15 4 квартал 2025
Санкт-Петербург, Выборгский
Проспект Просвещения
15 мин.
4
Корпус
нет
Отделка
2.70 м
Потолки
ЖК GloraX Парголово (Глоракс Парголово)
6 859 999 9 270 269
СберБанк
19.10%
Ставка
15.01%
Первый взнос
от 110 153 /мес.
Все варианты
12 этаж
из 15 4 квартал 2025
Санкт-Петербург, Выборгский
Проспект Просвещения
15 мин.
4
Корпус
нет
Отделка
2.70 м
Потолки
ЖК GloraX Парголово (Глоракс Парголово)
6 879 999 9 297 296
СберБанк
19.10%
Ставка
15.01%
Первый взнос
от 110 475 /мес.
Все варианты
12 этаж
из 15 4 квартал 2025
Санкт-Петербург, Выборгский
Проспект Просвещения
15 мин.
4
Корпус
нет
Отделка
2.70 м
Потолки
ЖК GloraX Парголово (Глоракс Парголово)
6 889 999 9 310 809
СберБанк
19.10%
Ставка
15.01%
Первый взнос
от 110 635 /мес.
Все варианты
13 этаж
из 15 4 квартал 2025
Санкт-Петербург, Выборгский
Проспект Просвещения
15 мин.
4
Корпус
нет
Отделка
2.70 м
Потолки
ЖК GloraX Парголово (Глоракс Парголово)
6 929 999 9 364 864
СберБанк
19.10%
Ставка
15.01%
Первый взнос
от 111 277 /мес.
Все варианты
13 этаж
из 15 4 квартал 2025
Санкт-Петербург, Выборгский
Проспект Просвещения
15 мин.
4
Корпус
нет
Отделка
2.70 м
Потолки
ЖК GloraX Парголово (Глоракс Парголово)
6 929 999 9 364 864
СберБанк
19.10%
Ставка
15.01%
Первый взнос
от 111 277 /мес.
Все варианты
14 этаж
из 15 4 квартал 2025
Санкт-Петербург, Выборгский
Проспект Просвещения
15 мин.
4
Корпус
нет
Отделка
2.70 м
Потолки
ЖК GloraX Парголово (Глоракс Парголово)
6 949 999 9 391 891
СберБанк
19.10%
Ставка
15.01%
Первый взнос
от 111 599 /мес.
Все варианты
14 этаж
из 15 4 квартал 2025
Санкт-Петербург, Выборгский
Проспект Просвещения
15 мин.
4
Корпус
нет
Отделка
2.70 м
Потолки
ЖК GloraX Парголово (Глоракс Парголово)
6 949 999 9 391 891
СберБанк
19.10%
Ставка
15.01%
Первый взнос
от 111 599 /мес.
Все варианты
Посмотреть все спецпредложения
студия 28,71 м2 4 919 999
Этаж 14/15
СПБ, ЖК GloraX Парголово (Глоракс Парголово)
Проспект Просвещения
15 мин.
Строится
студия 28,78 м2 6 879 999
Этаж 15/15
СПБ, ЖК GloraX Парголово (Глоракс Парголово)
Проспект Просвещения
15 мин.
Строится
студия 29,01 м2 7 029 999
Этаж 14/15
СПБ, ЖК GloraX Парголово (Глоракс Парголово)
Проспект Просвещения
15 мин.
Строится
студия 29,02 м2 4 799 999
Этаж 14/15
СПБ, ЖК GloraX Парголово (Глоракс Парголово)
Проспект Просвещения
15 мин.
Строится
Посмотреть 82 квартиры в ЖК GloraX Парголово
1-комн. квартира 32,42 м2 8 409 999
Этаж 14/15
СПБ, ЖК GloraX Парголово (Глоракс Парголово)
Проспект Просвещения
15 мин.
Строится
1-комн. квартира 32,45 м2 8 109 999
Этаж 14/15
СПБ, ЖК GloraX Парголово (Глоракс Парголово)
Проспект Просвещения
15 мин.
Строится
1-комн. квартира 32,46 м2 5 949 999
Этаж 14/15
СПБ, ЖК GloraX Парголово (Глоракс Парголово)
Проспект Просвещения
15 мин.
Строится
1-комн. квартира 32,93 м2 5 799 999
Этаж 14/15
СПБ, ЖК GloraX Парголово (Глоракс Парголово)
Проспект Просвещения
15 мин.
Строится
Посмотреть 261 квартира в ЖК GloraX Парголово
3-комн. квартира 85,98 м2 20 689 999
Этаж 15/15
СПБ, ЖК GloraX Парголово (Глоракс Парголово)
Проспект Просвещения
15 мин.
Строится
3-комн. квартира 87,54 м2 20 869 999
Этаж 15/15
СПБ, ЖК GloraX Парголово (Глоракс Парголово)
Проспект Просвещения
15 мин.
Строится

Скидки и спецпредложения от застройщиков

ЖК GloraX Парголово (Глоракс Парголово) на карте

Выгодные предложения на новостройки

Отзывы о ЖК GloraX Парголово

Самый полезный отзыв
Л
12 февраля
Оценка:
Единственное, с чем я довольно быстро определился, это с тем, что хочу больше жить ближе к природе: экология здесь лучше, цены на недвижку ниже, а при наличии автомобиля нет никаких проблем с тем, чтобы быстро добраться до любой питерской локации. А вот искал варианты долго, но в итоге остановился на ЖК Парголово. Застройщик уже со сложившейся репутацией, долгосроев на его счету нет, изучил отзывы тех, кто живет в домах от Глоракс, все устроило. Это не самый дешевый застройщик в Питере, но с учетом локации ЖК и того что строительство началось недавно, цены еще невысокие, тем более, что удалось взять ипотеку на хороших условиях (льготную по семейке).
Ответить
Полезный отзыв?
Самый новый отзыв
П
29 сентября
Оценка:
Комплекс расположен очень удачно, и к моменту завершения строительства инфраструктура уже будет достаточно развита. Стоит отметить, что это территория Выборгского района Санкт-Петербурга.
Ответить
Полезный отзыв?
Добавьте отзыв, заполнив личные данные, или сначала войдите на сайт, тогда информация будет автоматически взята из личного профиля.
Оценка*