Переверните экран
Поиск домов и коттеджей

Найдите идеальный дом или коттедж в Санкт-Петербурге и области

Найдите идеальный дом или коттедж в Санкт-Петербурге и области

Перейти к поиску
Новостройки Квартиры Ипотека Медиа О проекте Контакты Реклама на сайте Vk Youtube Telegram Дзен Продавцы и застройщики Коммерческие помещения Квартиры на карте Эксперты и авторы Машиноместа Акции от застройщиков Банки и программы Апартаменты Новостройки на карте 4-комнатные и более Готовые новостройки 3-комнатные Военная ипотека Покупателю Новостройки Санкт-Петербурга Видеообзор новостроек Семейная ипотека Аналитика рынка Панорамы новостроек 1-комнатные Субсидированная застройщиком Мнение эксперта Студии Ипотечный калькулятор Новости недвижимости Новостройки Ленинградской области IT-ипотека Квартиры со скидками до 25% Новостройки премиум-класса Новостройки бизнес-класса Дома и коттеджи Бизнес-центры Бизнес-центры в Санкт-Петербурге Бизнес-центры рядом с метро Строящиеся бизнес-центры Бизнес-центры класса A
студия, 22.76 м2, 2 этаж
Срок сдачи 4 квартал 2025 года
4 169 999 
4 905 881
183 216 2
обновлено 5 декабря

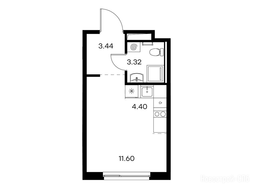
Описание студии

Застройщик
Срок ГК
4 квартал 2025 года
Стадия строительства
монтаж средних этажей
Общая площадь
22.76 м2
Жилая площадь
11.60 м2
Площадь кухни
4.40 м2
Этаж
2 / 9
Отделка
нет

Расположение студии

Дом
3
Адрес
городской поселок Новоселье, секция 3

Особенности

Продается студия в новостройке ЖК GloraX Новоселье (Глоракс Новоселье) по адресу Ленинградская область, Ломоносовский район, городской поселок Новоселье. Общая площадь квартиры - 22.76 кв. м. Тип проекта, по которому построен дом — Монолитно-панельный, компания-застройщик — GloraX (Глоракс). Стоимость квартиры — 4 169 999 руб. Способы оплаты можно уточнить у продавца. Срок сдачи — 4 квартал 2025. Более подробная информация по телефону.
+7 (812) 424-49-09
Время работы 9:00 — 21:00

Похожие квартиры в ЖК GloraX Новоселье

4 этаж
из 9 4 квартал 2025
Ленинградская область, Ленинградская область
Проспект Ветеранов
17 мин.
3
Корпус
нет
Отделка
2.56 м
Потолки
ЖК GloraX Новоселье (Глоракс Новоселье)
4 249 999 4 999 999
8 этаж
из 9 4 квартал 2025
Ленинградская область, Ленинградская область
Проспект Ветеранов
17 мин.
3
Корпус
нет
Отделка
2.56 м
Потолки
ЖК GloraX Новоселье (Глоракс Новоселье)
4 299 999 5 810 809
6 этаж
из 9 4 квартал 2025
Ленинградская область, Ленинградская область
Проспект Ветеранов
17 мин.
3
Корпус
нет
Отделка
2.56 м
Потолки
ЖК GloraX Новоселье (Глоракс Новоселье)
4 319 999 5 082 352
6 этаж
из 9 4 квартал 2025
Ленинградская область, Ленинградская область
Проспект Ветеранов
17 мин.
3
Корпус
нет
Отделка
2.56 м
Потолки
ЖК GloraX Новоселье (Глоракс Новоселье)
4 319 999 5 082 352
8 этаж
из 9 4 квартал 2025
Ленинградская область, Ленинградская область
Проспект Ветеранов
17 мин.
3
Корпус
нет
Отделка
2.56 м
Потолки
ЖК GloraX Новоселье (Глоракс Новоселье)
4 399 999 5 176 469
8 этаж
из 9 4 квартал 2025
Ленинградская область, Ленинградская область
Проспект Ветеранов
17 мин.
3
Корпус
нет
Отделка
2.56 м
Потолки
ЖК GloraX Новоселье (Глоракс Новоселье)
4 399 999 5 176 469
Посмотреть все спецпредложения
студия 20,82 м2 4 619 999
Этаж 9/9
ЛО, ЖК GloraX Новоселье (Глоракс Новоселье)
Проспект Ветеранов
17 мин.
Строится
студия 20,83 м2 4 559 999
Этаж 9/9
ЛО, ЖК GloraX Новоселье (Глоракс Новоселье)
Проспект Ветеранов
17 мин.
Строится
студия 20,90 м2 4 569 999
Этаж 11/12
ЛО, ЖК GloraX Новоселье (Глоракс Новоселье)
Проспект Ветеранов
17 мин.
Строится
студия 20,91 м2 4 489 999
Этаж 11/12
ЛО, ЖК GloraX Новоселье (Глоракс Новоселье)
Проспект Ветеранов
17 мин.
Строится
Посмотреть 132 квартиры в ЖК GloraX Новоселье
1-комн. квартира 30,22 м2 6 059 999
Этаж 9/9
ЛО, ЖК GloraX Новоселье (Глоракс Новоселье)
Проспект Ветеранов
17 мин.
Строится
1-комн. квартира 30,39 м2 6 159 999
Этаж 8/9
ЛО, ЖК GloraX Новоселье (Глоракс Новоселье)
Проспект Ветеранов
17 мин.
Строится
1-комн. квартира 30,47 м2 6 189 999
Этаж 9/9
ЛО, ЖК GloraX Новоселье (Глоракс Новоселье)
Проспект Ветеранов
17 мин.
Строится
Этаж 9/9
ЛО, ЖК GloraX Новоселье (Глоракс Новоселье)
Проспект Ветеранов
17 мин.
Строится
Посмотреть 195 квартир в ЖК GloraX Новоселье
Этаж 9/9
ЛО, ЖК GloraX Новоселье (Глоракс Новоселье)
Проспект Ветеранов
17 мин.
Строится
Этаж 9/9
ЛО, ЖК GloraX Новоселье (Глоракс Новоселье)
Проспект Ветеранов
17 мин.
Строится
2-комн. квартира 46,11 м2 8 439 999
Этаж 8/9
ЛО, ЖК GloraX Новоселье (Глоракс Новоселье)
Проспект Ветеранов
17 мин.
Строится
2-комн. квартира 46,25 м2 8 469 999
Этаж 8/9
ЛО, ЖК GloraX Новоселье (Глоракс Новоселье)
Проспект Ветеранов
17 мин.
Строится
Посмотреть 71 квартира в ЖК GloraX Новоселье
Этаж 12/12
ЛО, ЖК GloraX Новоселье (Глоракс Новоселье)
Проспект Ветеранов
17 мин.
Строится
Этаж 9/9
ЛО, ЖК GloraX Новоселье (Глоракс Новоселье)
Проспект Ветеранов
17 мин.
Строится
Этаж 9/9
ЛО, ЖК GloraX Новоселье (Глоракс Новоселье)
Проспект Ветеранов
17 мин.
Строится

Скидки и спецпредложения от застройщиков

ЖК GloraX Новоселье (Глоракс Новоселье) на карте

Выгодные предложения на новостройки

Отзывы о ЖК GloraX Новоселье

Самый полезный отзыв
МЧ
28 февраля
Оценка:
Планировки
Способы покупки
Внешний вид фасада
Двор, окружение
Расположение
Комплекс с двух сторон окружен лесным массивом Стрельнинского лесопитомника, и у меня есть возможность наслаждаться потрясающими природными пейзажами прямо из окна. Ближайшие соседи — это 4-этажный социальный жилой дом и частный сектор, плюс спокойствия и уюта этому району. Здесь нет трафика или лишнего шума, и это служит отличным убежищем от городской жизни.
Ответить
Полезный отзыв?
Самый новый отзыв
ОС
27 октября
Оценка:
Срок сдачи – 2024 год. Мне понравилась большая территория. Есть много зелени и мест для отдыха. Слышал, что инфраструктура будет более развита, хотя и сейчас есть магазины, поликлиника, набережная ухоженая. Но пока есть только планы, так что жду завершения стройки.
Ответить
Полезный отзыв?
Добавьте отзыв, заполнив личные данные, или сначала войдите на сайт, тогда информация будет автоматически взята из личного профиля.
Оценка*