Переверните экран
Поиск домов и коттеджей

Найдите идеальный дом или коттедж в Санкт-Петербурге и области

Найдите идеальный дом или коттедж в Санкт-Петербурге и области

Перейти к поиску
Новостройки Квартиры Ипотека Медиа О проекте Контакты Реклама на сайте Vk Youtube Telegram Дзен Продавцы и застройщики Коммерческие помещения Квартиры на карте Эксперты и авторы Машиноместа Акции от застройщиков Банки и программы Апартаменты Новостройки на карте 4-комнатные и более Готовые новостройки 3-комнатные Военная ипотека Покупателю Новостройки Санкт-Петербурга Видеообзор новостроек Семейная ипотека Аналитика рынка Панорамы новостроек 1-комнатные Субсидированная застройщиком Мнение эксперта Студии Ипотечный калькулятор Новости недвижимости Новостройки Ленинградской области ИТ-ипотека Квартиры со скидками до 25% Новостройки премиум-класса Новостройки бизнес-класса Дома и коттеджи Коттеджные поселки в Санкт-Петербурге Коттеджные поселки в Ленинградской обл Готовые коттеджные поселки Строящиеся коттеджные поселки Коттеджные поселки у леса Коттеджные поселки у водоема Коттеджные поселки в ипотеку Бизнес-центры Коттеджи Ипотека со ставкой 0,1% Траншевая ипотека
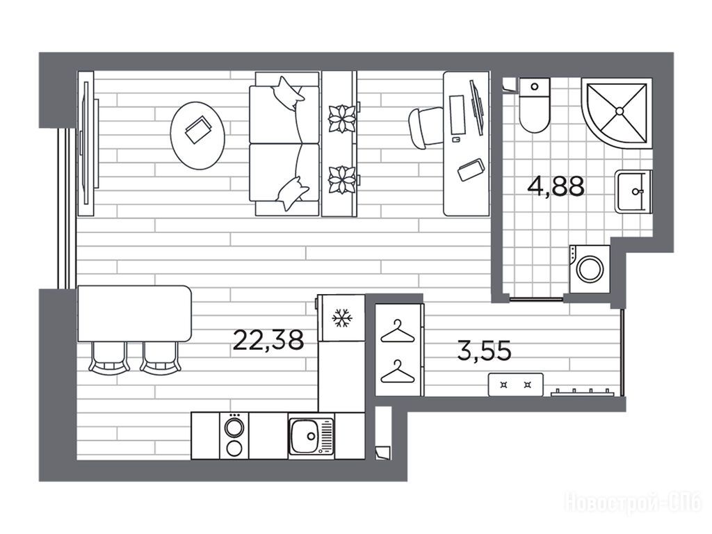
студия, 30.81 м2, 2 этаж
Срок сдачи 3 квартал 2028 года
15 267 895 
495 550 2
обновлено 21 апреля

Описание студии

Срок ГК
3 квартал 2028 года
Стадия строительства
котлован/фундамент
Общая площадь
30.81 м2
Этаж
2 / 12
Грузовой лифт
есть

Расположение студии

Дом
1
Адрес
Шкиперский проток, секция 1

Способы покупки

Особенности

Продается студия в новостройке ЖК «Галерная гавань» по адресу Санкт-Петербург, Василеостровский, Шкиперский проток. Общая площадь квартиры - 30.81 кв. м. Тип проекта, по которому построен дом — Монолитно-кирпичный, компания-застройщик — ГК «ПСК», СЗ «Проект С-37». Стоимость квартиры — 15 267 895 руб. Способы оплаты можно уточнить у продавца. Срок сдачи — 3 квартал 2028. Более подробная информация по телефону.
Инфоцентр новостроек
Инфоцентр новостроек
Время работы 9:00 — 21:00
Выбирайте квартиру в ЖК «Галерная гавань» по ценам от застройщика

Похожие квартиры в ЖК «Галерная гавань»

3 этаж
из 12 3 квартал 2028
Санкт-Петербург, Санкт-Петербург
Приморская
8 мин.
1
Корпус
нет данных
Отделка
3.02 м
Потолки
ЖК «Галерная гавань»
15 406 540
ДОМ.РФ
6.00%
Ставка
20.01%
Первый взнос
от 92 370 /мес.
Все варианты
4 этаж
из 12 3 квартал 2028
Санкт-Петербург, Санкт-Петербург
Приморская
8 мин.
1
Корпус
нет данных
Отделка
3.02 м
Потолки
ЖК «Галерная гавань»
15 437 350
ДОМ.РФ
6.00%
Ставка
20.01%
Первый взнос
от 92 555 /мес.
Все варианты
5 этаж
из 12 3 квартал 2028
Санкт-Петербург, Санкт-Петербург
Приморская
8 мин.
1
Корпус
нет данных
Отделка
3.02 м
Потолки
ЖК «Галерная гавань»
15 468 160
ДОМ.РФ
6.00%
Ставка
20.01%
Первый взнос
от 92 739 /мес.
Все варианты
8 этаж
из 12 3 квартал 2028
Санкт-Петербург, Санкт-Петербург
Приморская
8 мин.
1
Корпус
нет данных
Отделка
3.02 м
Потолки
ЖК «Галерная гавань»
15 560 590
ДОМ.РФ
6.00%
Ставка
20.01%
Первый взнос
от 93 294 /мес.
Все варианты
студия 29,45 м2 15 315 472
Этаж 4/12
СПБ, ЖК «Галерная гавань»
Приморская
8 мин.
Строится
студия 30,81 м2 15 437 350
Этаж 4/12
СПБ, ЖК «Галерная гавань»
Приморская
8 мин.
Строится
Посмотреть 11 квартир в ЖК «Галерная гавань»
1-комн. квартира 33,96 м2 19 335 126
Этаж 5/12
СПБ, ЖК «Галерная гавань»
Приморская
8 мин.
Строится
1-комн. квартира 34,02 м2 18 069 723
Этаж 2/12
СПБ, ЖК «Галерная гавань»
Приморская
8 мин.
Строится
Этаж 3/6
СПБ, ЖК «Галерная гавань»
Приморская
8 мин.
Строится
1-комн. квартира 36,47 м2 17 985 180
Этаж 2/12
СПБ, ЖК «Галерная гавань»
Приморская
8 мин.
Строится
Посмотреть 65 квартир в ЖК «Галерная гавань»
2-комн. квартира 53,92 м2 24 342 184
Этаж 2/12
СПБ, ЖК «Галерная гавань»
Приморская
8 мин.
Строится
2-комн. квартира 54,06 м2 25 346 031
Этаж 2/6
СПБ, ЖК «Галерная гавань»
Приморская
8 мин.
Строится
2-комн. квартира 60,25 м2 25 205 587
Этаж 2/12
СПБ, ЖК «Галерная гавань»
Приморская
8 мин.
Строится
2-комн. квартира 60,35 м2 24 595 642
Этаж 2/12
СПБ, ЖК «Галерная гавань»
Приморская
8 мин.
Строится
Посмотреть 112 квартир в ЖК «Галерная гавань»
3-комн. квартира 73,88 м2 30 021 138
Этаж 2/12
СПБ, ЖК «Галерная гавань»
Приморская
8 мин.
Строится
3-комн. квартира 75,67 м2 31 505 204
Этаж 2/12
СПБ, ЖК «Галерная гавань»
Приморская
8 мин.
Строится
3-комн. квартира 81,52 м2 32 701 748
Этаж 2/12
СПБ, ЖК «Галерная гавань»
Приморская
8 мин.
Строится
3-комн. квартира 84,85 м2 33 104 227
Этаж 2/12
СПБ, ЖК «Галерная гавань»
Приморская
8 мин.
Строится
Посмотреть 54 квартиры в ЖК «Галерная гавань»
4-комн. квартира 101,87 м2 45 877 154
Этаж 2/12
СПБ, ЖК «Галерная гавань»
Приморская
8 мин.
Строится
4-комн. квартира 104,98 м2 48 548 001
Этаж 11/12
СПБ, ЖК «Галерная гавань»
Приморская
8 мин.
Строится
4-комн. квартира 134,08 м2 99 274 172
Этаж 12/12
СПБ, ЖК «Галерная гавань»
Приморская
8 мин.
Строится
Посмотреть 8 квартир в ЖК «Галерная гавань»

Скидки и спецпредложения от застройщиков

ЖК «Галерная гавань» на карте

Выгодные предложения на новостройки

Отзывы о ЖК «Галерная гавань»

Самый полезный отзыв
К
23 декабря 2025
Оценка:
Хороший должен получиться комплекс. Особенно понравилась идея с общественным пространством. Сможем прогуливаться не только во дворе комплекса, но и по променаду вдоль набережной, любоваться красивыми видами, дышать морским воздухом. Думаю, выбрали правильное место для жизни
Ответить
Самый новый отзыв
НБ
07 апреля
Оценка:
Работаю в сфере недвижимости и специально поехал в офис, чтобы узнать все подробности проекта. Бизнес-класс с премиальными сервисами, продуманной инженерией, сейчас на старте строительства. В принципе, на сайте вся информация по комплексу верная, можно ее придерживаться для ознакомления с проектом.
Ответить

Оставить отзыв

Добавьте отзыв, заполнив личные данные, или сначала войдите на сайт, тогда информация будет автоматически взята из личного профиля.
Оценка*