Переверните экран
Новостройки Квартиры Ипотека Медиа О проекте Контакты Реклама на сайте Vk Youtube Telegram Дзен Продавцы и застройщики Коммерческие помещения Квартиры на карте Эксперты и авторы Машиноместа Акции от застройщиков Банки и программы Апартаменты Новостройки на карте 4-комнатные и более Готовые новостройки 3-комнатные Военная ипотека Покупателю Новостройки Санкт-Петербурга Видеообзор новостроек Семейная ипотека Аналитика рынка Панорамы новостроек 1-комнатные Субсидированная застройщиком Мнение эксперта Студии Ипотечный калькулятор Новости недвижимости Новостройки Ленинградской области IT-ипотека Квартиры со скидками до 25% Новостройки премиум-класса Новостройки бизнес-класса Дома и коттеджи Бизнес-центры Бизнес-центры в Санкт-Петербурге Бизнес-центры рядом с метро Строящиеся бизнес-центры Бизнес-центры класса A
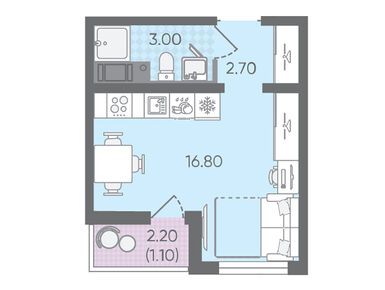
студия, 23.60 м2, 14 этаж
Срок сдачи 3 квартал 2026 года
4 609 080 
195 300 2
обновлено 16 декабря

Описание студии

Новостройка
Срок ГК
3 квартал 2026 года
Тип проекта
монолитно-панельный
Общая площадь
23.60 м2
Жилая площадь
9.90 м2
Площадь кухни
8.00 м2
Высота потолков
2.55
Этаж
14 / 25
Балкон
лоджия
Отделка
чистовая
Вид из окна
во двор

Расположение студии

Дом
7 (29 квартал)
Адрес
Муринская дорога, секция 2

Способы покупки

Особенности

Продается студия в новостройке ЖК «Цветной город» по адресу Санкт-Петербург, Красногвардейский, Муринская дорога. Общая площадь квартиры - 23.6 кв. м. Тип проекта, по которому построен дом — Монолитно-панельный, компания-застройщик — ООО «ЛСР. Недвижимость–Северо-Запад». Стоимость квартиры — 4 609 080 руб. Способы оплаты можно уточнить у продавца. Срок сдачи — 3 квартал 2026. Более подробная информация по телефону.

Правовые документы

Инфоцентр новостроек
Инфоцентр новостроек
+7 (812) 424-49-09
Время работы 9:00 — 21:00

Похожие квартиры в ЖК «Цветной город»

9 этаж
из 25 3 квартал 2026
Санкт-Петербург, Санкт-Петербург
Гражданский проспект
13 мин.
7 (29 квартал)
Корпус
чистовая
Отделка
2.55 м
Потолки
ЖК «Цветной город»
4 408 480
Альфа-Банк, СберБанк, ВТБ, Банк Санкт-Петербург, Совкомбанк, ДОМ.РФ, Уралсиб
6.00%
Ставка
30.10%
Первый взнос
от 26 431 /мес.
Все варианты
10 этаж
из 25 3 квартал 2026
Санкт-Петербург, Санкт-Петербург
Гражданский проспект
13 мин.
7 (29 квартал)
Корпус
чистовая
Отделка
2.55 м
Потолки
ЖК «Цветной город»
4 408 480
Альфа-Банк, СберБанк, ВТБ, Банк Санкт-Петербург, Совкомбанк, ДОМ.РФ, Уралсиб
6.00%
Ставка
30.10%
Первый взнос
от 26 431 /мес.
Все варианты
13 этаж
из 25 3 квартал 2026
Санкт-Петербург, Санкт-Петербург
Гражданский проспект
13 мин.
7 (29 квартал)
Корпус
чистовая
Отделка
2.55 м
Потолки
ЖК «Цветной город»
4 408 480
Альфа-Банк, СберБанк, ВТБ, Банк Санкт-Петербург, Совкомбанк, ДОМ.РФ, Уралсиб
6.00%
Ставка
30.10%
Первый взнос
от 26 431 /мес.
Все варианты
14 этаж
из 25 3 квартал 2026
Санкт-Петербург, Санкт-Петербург
Гражданский проспект
13 мин.
7 (29 квартал)
Корпус
чистовая
Отделка
2.55 м
Потолки
ЖК «Цветной город»
4 408 480
Альфа-Банк, СберБанк, ВТБ, Банк Санкт-Петербург, Совкомбанк, ДОМ.РФ, Уралсиб
6.00%
Ставка
30.10%
Первый взнос
от 26 431 /мес.
Все варианты
15 этаж
из 25 3 квартал 2026
Санкт-Петербург, Санкт-Петербург
Гражданский проспект
13 мин.
7 (29 квартал)
Корпус
чистовая
Отделка
2.55 м
Потолки
ЖК «Цветной город»
4 408 480
Альфа-Банк, СберБанк, ВТБ, Банк Санкт-Петербург, Совкомбанк, ДОМ.РФ, Уралсиб
6.00%
Ставка
30.10%
Первый взнос
от 26 431 /мес.
Все варианты
20 этаж
из 25 3 квартал 2026
Санкт-Петербург, Санкт-Петербург
Гражданский проспект
13 мин.
7 (29 квартал)
Корпус
чистовая
Отделка
2.55 м
Потолки
ЖК «Цветной город»
4 408 480
Альфа-Банк, СберБанк, ВТБ, Банк Санкт-Петербург, Совкомбанк, ДОМ.РФ, Уралсиб
6.00%
Ставка
30.10%
Первый взнос
от 26 431 /мес.
Все варианты
11 этаж
из 25 3 квартал 2026
Санкт-Петербург, Санкт-Петербург
Гражданский проспект
13 мин.
7 (29 квартал)
Корпус
чистовая
Отделка
2.55 м
Потолки
ЖК «Цветной город»
4 408 480
Альфа-Банк, СберБанк, ВТБ, Банк Санкт-Петербург, Совкомбанк, ДОМ.РФ, Уралсиб
6.00%
Ставка
30.10%
Первый взнос
от 26 431 /мес.
Все варианты
14 этаж
из 25 3 квартал 2026
Санкт-Петербург, Санкт-Петербург
Гражданский проспект
13 мин.
7 (29 квартал)
Корпус
чистовая
Отделка
2.55 м
Потолки
ЖК «Цветной город»
4 408 480
Альфа-Банк, СберБанк, ВТБ, Банк Санкт-Петербург, Совкомбанк, ДОМ.РФ, Уралсиб
6.00%
Ставка
30.10%
Первый взнос
от 26 431 /мес.
Все варианты
18 этаж
из 25 3 квартал 2026
Санкт-Петербург, Санкт-Петербург
Гражданский проспект
13 мин.
7 (29 квартал)
Корпус
чистовая
Отделка
2.55 м
Потолки
ЖК «Цветной город»
4 408 480
Альфа-Банк, СберБанк, ВТБ, Банк Санкт-Петербург, Совкомбанк, ДОМ.РФ, Уралсиб
6.00%
Ставка
30.10%
Первый взнос
от 26 431 /мес.
Все варианты
19 этаж
из 25 3 квартал 2026
Санкт-Петербург, Санкт-Петербург
Гражданский проспект
13 мин.
7 (29 квартал)
Корпус
чистовая
Отделка
2.55 м
Потолки
ЖК «Цветной город»
4 408 480
Альфа-Банк, СберБанк, ВТБ, Банк Санкт-Петербург, Совкомбанк, ДОМ.РФ, Уралсиб
6.00%
Ставка
30.10%
Первый взнос
от 26 431 /мес.
Все варианты
20 этаж
из 25 3 квартал 2026
Санкт-Петербург, Санкт-Петербург
Гражданский проспект
13 мин.
7 (29 квартал)
Корпус
чистовая
Отделка
2.55 м
Потолки
ЖК «Цветной город»
4 408 480
Альфа-Банк, СберБанк, ВТБ, Банк Санкт-Петербург, Совкомбанк, ДОМ.РФ, Уралсиб
6.00%
Ставка
30.10%
Первый взнос
от 26 431 /мес.
Все варианты
21 этаж
из 25 3 квартал 2026
Санкт-Петербург, Санкт-Петербург
Гражданский проспект
13 мин.
7 (29 квартал)
Корпус
чистовая
Отделка
2.55 м
Потолки
ЖК «Цветной город»
4 408 480
Альфа-Банк, СберБанк, ВТБ, Банк Санкт-Петербург, Совкомбанк, ДОМ.РФ, Уралсиб
6.00%
Ставка
30.10%
Первый взнос
от 26 431 /мес.
Все варианты
22 этаж
из 25 3 квартал 2026
Санкт-Петербург, Санкт-Петербург
Гражданский проспект
13 мин.
7 (29 квартал)
Корпус
чистовая
Отделка
2.55 м
Потолки
ЖК «Цветной город»
4 408 480
Альфа-Банк, СберБанк, ВТБ, Банк Санкт-Петербург, Совкомбанк, ДОМ.РФ, Уралсиб
6.00%
Ставка
30.10%
Первый взнос
от 26 431 /мес.
Все варианты
23 этаж
из 25 3 квартал 2026
Санкт-Петербург, Санкт-Петербург
Гражданский проспект
13 мин.
7 (29 квартал)
Корпус
чистовая
Отделка
2.55 м
Потолки
ЖК «Цветной город»
4 408 480
Альфа-Банк, СберБанк, ВТБ, Банк Санкт-Петербург, Совкомбанк, ДОМ.РФ, Уралсиб
6.00%
Ставка
30.10%
Первый взнос
от 26 431 /мес.
Все варианты
24 этаж
из 25 3 квартал 2026
Санкт-Петербург, Санкт-Петербург
Гражданский проспект
13 мин.
7 (29 квартал)
Корпус
чистовая
Отделка
2.55 м
Потолки
ЖК «Цветной город»
4 408 480
Альфа-Банк, СберБанк, ВТБ, Банк Санкт-Петербург, Совкомбанк, ДОМ.РФ, Уралсиб
6.00%
Ставка
30.10%
Первый взнос
от 26 431 /мес.
Все варианты
16 этаж
из 25 3 квартал 2026
Санкт-Петербург, Санкт-Петербург
Гражданский проспект
13 мин.
7 (29 квартал)
Корпус
чистовая
Отделка
2.55 м
Потолки
ЖК «Цветной город»
4 408 480
Альфа-Банк, СберБанк, ВТБ, Банк Санкт-Петербург, Совкомбанк, ДОМ.РФ, Уралсиб
6.00%
Ставка
30.10%
Первый взнос
от 26 431 /мес.
Все варианты
18 этаж
из 25 3 квартал 2026
Санкт-Петербург, Санкт-Петербург
Гражданский проспект
13 мин.
7 (29 квартал)
Корпус
чистовая
Отделка
2.55 м
Потолки
ЖК «Цветной город»
4 408 480
Альфа-Банк, СберБанк, ВТБ, Банк Санкт-Петербург, Совкомбанк, ДОМ.РФ, Уралсиб
6.00%
Ставка
30.10%
Первый взнос
от 26 431 /мес.
Все варианты
19 этаж
из 25 3 квартал 2026
Санкт-Петербург, Санкт-Петербург
Гражданский проспект
13 мин.
7 (29 квартал)
Корпус
чистовая
Отделка
2.55 м
Потолки
ЖК «Цветной город»
4 408 480
Альфа-Банк, СберБанк, ВТБ, Банк Санкт-Петербург, Совкомбанк, ДОМ.РФ, Уралсиб
6.00%
Ставка
30.10%
Первый взнос
от 26 431 /мес.
Все варианты
21 этаж
из 25 3 квартал 2026
Санкт-Петербург, Санкт-Петербург
Гражданский проспект
13 мин.
7 (29 квартал)
Корпус
чистовая
Отделка
2.55 м
Потолки
ЖК «Цветной город»
4 408 480
Альфа-Банк, СберБанк, ВТБ, Банк Санкт-Петербург, Совкомбанк, ДОМ.РФ, Уралсиб
6.00%
Ставка
30.10%
Первый взнос
от 26 431 /мес.
Все варианты
22 этаж
из 25 3 квартал 2026
Санкт-Петербург, Санкт-Петербург
Гражданский проспект
13 мин.
7 (29 квартал)
Корпус
чистовая
Отделка
2.55 м
Потолки
ЖК «Цветной город»
4 408 480
Альфа-Банк, СберБанк, ВТБ, Банк Санкт-Петербург, Совкомбанк, ДОМ.РФ, Уралсиб
6.00%
Ставка
30.10%
Первый взнос
от 26 431 /мес.
Все варианты
23 этаж
из 25 3 квартал 2026
Санкт-Петербург, Санкт-Петербург
Гражданский проспект
13 мин.
7 (29 квартал)
Корпус
чистовая
Отделка
2.55 м
Потолки
ЖК «Цветной город»
4 408 480
Альфа-Банк, СберБанк, ВТБ, Банк Санкт-Петербург, Совкомбанк, ДОМ.РФ, Уралсиб
6.00%
Ставка
30.10%
Первый взнос
от 26 431 /мес.
Все варианты
11 этаж
из 25 3 квартал 2026
Санкт-Петербург, Санкт-Петербург
Гражданский проспект
13 мин.
7 (29 квартал)
Корпус
чистовая
Отделка
2.55 м
Потолки
ЖК «Цветной город»
4 408 480
Альфа-Банк, СберБанк, ВТБ, Банк Санкт-Петербург, Совкомбанк, ДОМ.РФ, Уралсиб
6.00%
Ставка
30.10%
Первый взнос
от 26 431 /мес.
Все варианты
16 этаж
из 25 3 квартал 2026
Санкт-Петербург, Санкт-Петербург
Гражданский проспект
13 мин.
7 (29 квартал)
Корпус
чистовая
Отделка
2.55 м
Потолки
ЖК «Цветной город»
4 408 480
Альфа-Банк, СберБанк, ВТБ, Банк Санкт-Петербург, Совкомбанк, ДОМ.РФ, Уралсиб
6.00%
Ставка
30.10%
Первый взнос
от 26 431 /мес.
Все варианты
6 этаж
из 25 3 квартал 2026
Санкт-Петербург, Санкт-Петербург
Гражданский проспект
13 мин.
7 (29 квартал)
Корпус
чистовая
Отделка
2.55 м
Потолки
ЖК «Цветной город»
4 609 080
Альфа-Банк, СберБанк, ВТБ, Банк Санкт-Петербург, Совкомбанк, ДОМ.РФ, Уралсиб
6.00%
Ставка
30.10%
Первый взнос
от 27 634 /мес.
Все варианты
9 этаж
из 25 3 квартал 2026
Санкт-Петербург, Санкт-Петербург
Гражданский проспект
13 мин.
7 (29 квартал)
Корпус
чистовая
Отделка
2.55 м
Потолки
ЖК «Цветной город»
4 609 080
Альфа-Банк, СберБанк, ВТБ, Банк Санкт-Петербург, Совкомбанк, ДОМ.РФ, Уралсиб
6.00%
Ставка
30.10%
Первый взнос
от 27 634 /мес.
Все варианты
10 этаж
из 25 3 квартал 2026
Санкт-Петербург, Санкт-Петербург
Гражданский проспект
13 мин.
7 (29 квартал)
Корпус
чистовая
Отделка
2.55 м
Потолки
ЖК «Цветной город»
4 609 080
Альфа-Банк, СберБанк, ВТБ, Банк Санкт-Петербург, Совкомбанк, ДОМ.РФ, Уралсиб
6.00%
Ставка
30.10%
Первый взнос
от 27 634 /мес.
Все варианты
13 этаж
из 25 3 квартал 2026
Санкт-Петербург, Санкт-Петербург
Гражданский проспект
13 мин.
7 (29 квартал)
Корпус
чистовая
Отделка
2.55 м
Потолки
ЖК «Цветной город»
4 609 080
Альфа-Банк, СберБанк, ВТБ, Банк Санкт-Петербург, Совкомбанк, ДОМ.РФ, Уралсиб
6.00%
Ставка
30.10%
Первый взнос
от 27 634 /мес.
Все варианты
15 этаж
из 25 3 квартал 2026
Санкт-Петербург, Санкт-Петербург
Гражданский проспект
13 мин.
7 (29 квартал)
Корпус
чистовая
Отделка
2.55 м
Потолки
ЖК «Цветной город»
4 609 080
Альфа-Банк, СберБанк, ВТБ, Банк Санкт-Петербург, Совкомбанк, ДОМ.РФ, Уралсиб
6.00%
Ставка
30.10%
Первый взнос
от 27 634 /мес.
Все варианты
7 этаж
из 25 3 квартал 2026
Санкт-Петербург, Санкт-Петербург
Гражданский проспект
13 мин.
7 (29 квартал)
Корпус
чистовая
Отделка
2.55 м
Потолки
ЖК «Цветной город»
4 609 080
Альфа-Банк, СберБанк, ВТБ, Банк Санкт-Петербург, Совкомбанк, ДОМ.РФ, Уралсиб
6.00%
Ставка
30.10%
Первый взнос
от 27 634 /мес.
Все варианты
17 этаж
из 25 3 квартал 2026
Санкт-Петербург, Санкт-Петербург
Гражданский проспект
13 мин.
7 (29 квартал)
Корпус
чистовая
Отделка
2.55 м
Потолки
ЖК «Цветной город»
4 609 080
Альфа-Банк, СберБанк, ВТБ, Банк Санкт-Петербург, Совкомбанк, ДОМ.РФ, Уралсиб
6.00%
Ставка
30.10%
Первый взнос
от 27 634 /мес.
Все варианты
18 этаж
из 25 3 квартал 2026
Санкт-Петербург, Санкт-Петербург
Гражданский проспект
13 мин.
7 (29 квартал)
Корпус
чистовая
Отделка
2.55 м
Потолки
ЖК «Цветной город»
4 609 080
Альфа-Банк, СберБанк, ВТБ, Банк Санкт-Петербург, Совкомбанк, ДОМ.РФ, Уралсиб
6.00%
Ставка
30.10%
Первый взнос
от 27 634 /мес.
Все варианты
19 этаж
из 25 3 квартал 2026
Санкт-Петербург, Санкт-Петербург
Гражданский проспект
13 мин.
7 (29 квартал)
Корпус
чистовая
Отделка
2.55 м
Потолки
ЖК «Цветной город»
4 609 080
Альфа-Банк, СберБанк, ВТБ, Банк Санкт-Петербург, Совкомбанк, ДОМ.РФ, Уралсиб
6.00%
Ставка
30.10%
Первый взнос
от 27 634 /мес.
Все варианты
21 этаж
из 25 3 квартал 2026
Санкт-Петербург, Санкт-Петербург
Гражданский проспект
13 мин.
7 (29 квартал)
Корпус
чистовая
Отделка
2.55 м
Потолки
ЖК «Цветной город»
4 609 080
Альфа-Банк, СберБанк, ВТБ, Банк Санкт-Петербург, Совкомбанк, ДОМ.РФ, Уралсиб
6.00%
Ставка
30.10%
Первый взнос
от 27 634 /мес.
Все варианты
22 этаж
из 25 3 квартал 2026
Санкт-Петербург, Санкт-Петербург
Гражданский проспект
13 мин.
7 (29 квартал)
Корпус
чистовая
Отделка
2.55 м
Потолки
ЖК «Цветной город»
4 609 080
Альфа-Банк, СберБанк, ВТБ, Банк Санкт-Петербург, Совкомбанк, ДОМ.РФ, Уралсиб
6.00%
Ставка
30.10%
Первый взнос
от 27 634 /мес.
Все варианты
23 этаж
из 25 3 квартал 2026
Санкт-Петербург, Санкт-Петербург
Гражданский проспект
13 мин.
7 (29 квартал)
Корпус
чистовая
Отделка
2.55 м
Потолки
ЖК «Цветной город»
4 609 080
Альфа-Банк, СберБанк, ВТБ, Банк Санкт-Петербург, Совкомбанк, ДОМ.РФ, Уралсиб
6.00%
Ставка
30.10%
Первый взнос
от 27 634 /мес.
Все варианты
24 этаж
из 25 3 квартал 2026
Санкт-Петербург, Санкт-Петербург
Гражданский проспект
13 мин.
7 (29 квартал)
Корпус
чистовая
Отделка
2.55 м
Потолки
ЖК «Цветной город»
4 609 080
Альфа-Банк, СберБанк, ВТБ, Банк Санкт-Петербург, Совкомбанк, ДОМ.РФ, Уралсиб
6.00%
Ставка
30.10%
Первый взнос
от 27 634 /мес.
Все варианты
Посмотреть все спецпредложения
студия 20,70 м2 4 257 990
Этаж 21/25 лоджия
СПБ, ЖК «Цветной город»
Гражданский проспект
13 мин.
Строится
студия 21,10 м2 4 762 270
Этаж 17/25 лоджия
СПБ, ЖК «Цветной город»
Гражданский проспект
13 мин.
Строится
студия 21,40 м2 4 960 520
Этаж 20/24 лоджия
СПБ, ЖК «Цветной город»
Гражданский проспект
13 мин.
Строится
студия 21,50 м2 5 013 800
Этаж 24/24 лоджия
СПБ, ЖК «Цветной город»
Гражданский проспект
13 мин.
Строится
Посмотреть 218 квартир в ЖК «Цветной город»
1-комн. квартира 26,80 м2 5 191 160
Этаж 20/25 балкон
СПБ, ЖК «Цветной город»
Гражданский проспект
13 мин.
Строится
1-комн. квартира 27,00 м2 5 327 100
Этаж 8/23 балкон
СПБ, ЖК «Цветной город»
Гражданский проспект
13 мин.
Строится
Этаж 6/23 балкон
СПБ, ЖК «Цветной город»
Гражданский проспект
13 мин.
Строится
1-комн. квартира 29,80 м2 5 650 080
Этаж 15/25 балкон
СПБ, ЖК «Цветной город»
Гражданский проспект
13 мин.
Строится
Посмотреть 145 квартир в ЖК «Цветной город»
2-комн. квартира 38,60 м2 7 110 120
Этаж 18/25 лоджия
СПБ, ЖК «Цветной город»
Гражданский проспект
13 мин.
Строится
2-комн. квартира 41,90 м2 9 138 390
Этаж 23/25 лоджия
СПБ, ЖК «Цветной город»
Гражданский проспект
13 мин.
Строится
2-комн. квартира 42,70 м2 9 274 440
Этаж 19/25 лоджия
СПБ, ЖК «Цветной город»
Гражданский проспект
13 мин.
Строится
2-комн. квартира 44,30 м2 10 224 440
Этаж 11/25 лоджия
СПБ, ЖК «Цветной город»
Гражданский проспект
13 мин.
Строится
Посмотреть 253 квартиры в ЖК «Цветной город»
3-комн. квартира 55,00 м2 9 438 000
Этаж 4/23
СПБ, ЖК «Цветной город»
Гражданский проспект
13 мин.
Строится
3-комн. квартира 57,30 м2 10 170 750
Этаж 11/23 лоджия
СПБ, ЖК «Цветной город»
Гражданский проспект
13 мин.
Строится
3-комн. квартира 57,60 м2 11 145 600
Этаж 3/23
СПБ, ЖК «Цветной город»
Гражданский проспект
13 мин.
Строится
3-комн. квартира 61,10 м2 12 372 750
Этаж 9/23 лоджия
СПБ, ЖК «Цветной город»
Гражданский проспект
13 мин.
Строится
Посмотреть 17 квартир в ЖК «Цветной город»

Скидки и спецпредложения от застройщиков

ЖК «Цветной город» на карте

Выгодные предложения на новостройки

Отзывы о ЖК «Цветной город»

Самый полезный отзыв
П
20 февраля 2019
Оценка:
К моменту сдачи проекта (полностью) будет уютно, но надо пережить процесс строительства. Видимо и цены гуманные, потому что ЖК «Цветной город» - проект огромного масштаба. Квартиры конечно разбирают с бешеной скоростью, успели купить одну из последних трешек.
Ответить
Полезный отзыв?
Самый новый отзыв
ЕК
23 мая
Оценка:
Живём здесь с мужем уже полгода пока довольны. Квартиру брали с отделкой, заехали почти сразу. Всё как обещали — стены ровные, сантехника работает, лифт не зависает. Главное для нас парковка, и с этим тоже всё ок, места хватает. Время от времени ремонтируем какие-то мелочи, но это, наверное, у всех так. В остальном всё супер.
Ответить
Полезный отзыв?
Добавьте отзыв, заполнив личные данные, или сначала войдите на сайт, тогда информация будет автоматически взята из личного профиля.
Оценка*