Переверните экран
Новостройки Квартиры Ипотека Медиа О проекте Контакты Реклама на сайте Vk Youtube Telegram Дзен Продавцы и застройщики Коммерческие помещения Квартиры на карте Эксперты и авторы Машиноместа Акции от застройщиков Банки и программы Апартаменты Новостройки на карте 4-комнатные и более Готовые новостройки 3-комнатные Военная ипотека Покупателю Новостройки Санкт-Петербурга Видеообзор новостроек Семейная ипотека Аналитика рынка Панорамы новостроек 1-комнатные Субсидированная застройщиком Мнение эксперта Студии Ипотечный калькулятор Новости недвижимости Новостройки Ленинградской области IT-ипотека Квартиры со скидками до 25% Новостройки премиум-класса Новостройки бизнес-класса Дома и коттеджи Бизнес-центры Бизнес-центры в Санкт-Петербурге Бизнес-центры рядом с метро Строящиеся бизнес-центры Бизнес-центры класса A
Данное предложение на 15.12.2025 неактуально. Пожалуйста, ознакомьтесь с другими похожими предложениями в ЖК «Большая Охта» .
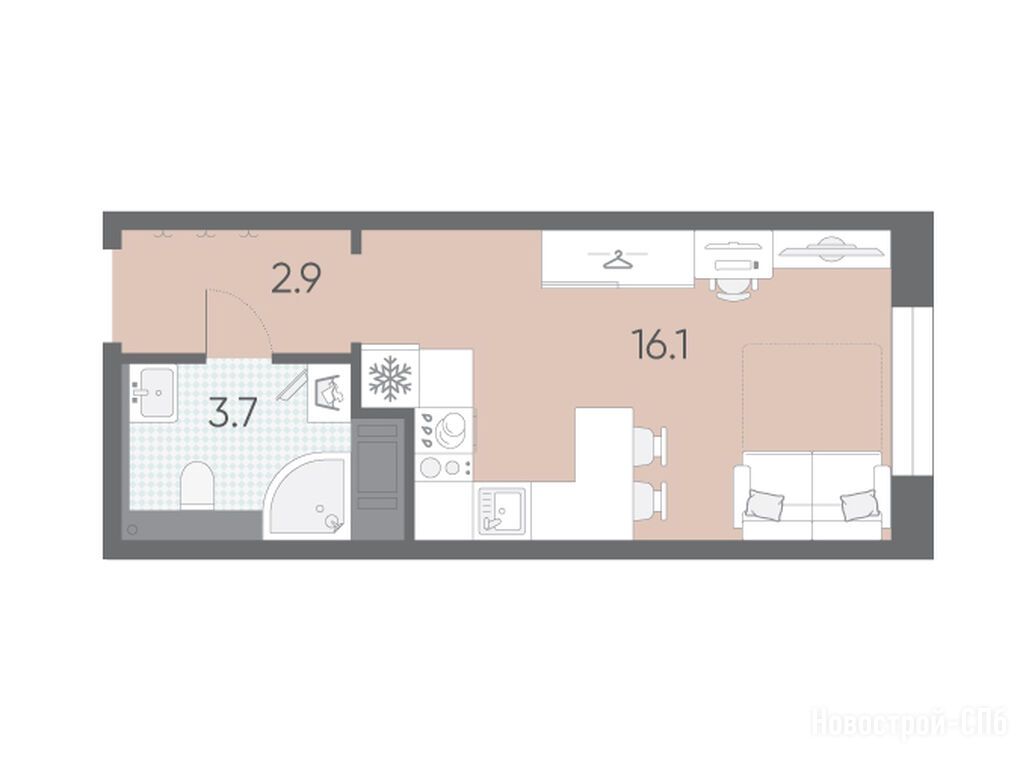
студия, 22.70 м2, 9 этаж
Срок сдачи 3 квартал 2027 года
8 128 870 
358 100 2
обновлено 13 декабря

Описание студии

Новостройка
Срок ГК
3 квартал 2027 года
Стадия строительства
монтаж нижних этажей
Общая площадь
22.70 м2
Жилая площадь
11.10 м2
Площадь кухни
6.10 м2
Высота потолков
2.87
Этаж
9 / 12
Отделка
white box
Вид из окна
во двор
Грузовой лифт
есть

Расположение студии

Дом
6
Адрес
ул. Партизанская, д. 3А, д. 5Б, секция 3

Способы покупки

Особенности

Продается студия в новостройке ЖК «Большая Охта» по адресу Санкт-Петербург, Красногвардейский, ул. Партизанская, д. 3А, д. 5Б. Общая площадь квартиры - 22.7 кв. м. Тип проекта, по которому построен дом — Монолитно-каркасный, компания-застройщик — ООО «ЛСР. Недвижимость–Северо-Запад». Стоимость квартиры — 8 128 870 руб. Способы оплаты можно уточнить у продавца. Срок сдачи — 3 квартал 2027. Более подробная информация по телефону.
Инфоцентр новостроек
Инфоцентр новостроек
+7 (812) 424-49-09
Время работы 9:00 — 21:00

Похожие квартиры в ЖК «Большая Охта»

3 этаж
из 12 3 квартал 2027
Санкт-Петербург, Санкт-Петербург
Новочеркасская
28 мин.
6
Корпус
white box
Отделка
2.70 м
Потолки
ЖК «Большая Охта»
7 940 460
Альфа-Банк, Всероссийский банк развития регионов (ВБРР), Сургутнефтегазбанк (СНГБ), СберБанк, Совкомбанк, Банк Санкт-Петербург, Промсвязьбанк, ДОМ.РФ, Уралсиб, Банк Россия, ВТБ
6.00%
Ставка
30.10%
Первый взнос
от 47 607 /мес.
Все варианты
3 этаж
из 12 3 квартал 2027
Санкт-Петербург, Санкт-Петербург
Новочеркасская
28 мин.
6
Корпус
white box
Отделка
2.70 м
Потолки
ЖК «Большая Охта»
7 940 460
Альфа-Банк, Всероссийский банк развития регионов (ВБРР), Сургутнефтегазбанк (СНГБ), СберБанк, Совкомбанк, Банк Санкт-Петербург, Промсвязьбанк, ДОМ.РФ, Уралсиб, Банк Россия, ВТБ
6.00%
Ставка
30.10%
Первый взнос
от 47 607 /мес.
Все варианты
3 этаж
из 12 3 квартал 2027
Санкт-Петербург, Санкт-Петербург
Новочеркасская
28 мин.
6
Корпус
white box
Отделка
2.70 м
Потолки
ЖК «Большая Охта»
7 963 160
Альфа-Банк, Всероссийский банк развития регионов (ВБРР), Сургутнефтегазбанк (СНГБ), СберБанк, Совкомбанк, Банк Санкт-Петербург, Промсвязьбанк, ДОМ.РФ, Уралсиб, Банк Россия, ВТБ
6.00%
Ставка
30.10%
Первый взнос
от 47 743 /мес.
Все варианты
4 этаж
из 12 3 квартал 2027
Санкт-Петербург, Санкт-Петербург
Новочеркасская
28 мин.
6
Корпус
white box
Отделка
2.70 м
Потолки
ЖК «Большая Охта»
7 963 160
Альфа-Банк, Всероссийский банк развития регионов (ВБРР), Сургутнефтегазбанк (СНГБ), СберБанк, Совкомбанк, Банк Санкт-Петербург, Промсвязьбанк, ДОМ.РФ, Уралсиб, Банк Россия, ВТБ
6.00%
Ставка
30.10%
Первый взнос
от 47 743 /мес.
Все варианты
5 этаж
из 12 3 квартал 2027
Санкт-Петербург, Санкт-Петербург
Новочеркасская
28 мин.
6
Корпус
white box
Отделка
2.70 м
Потолки
ЖК «Большая Охта»
7 988 130
Альфа-Банк, Всероссийский банк развития регионов (ВБРР), Сургутнефтегазбанк (СНГБ), СберБанк, Совкомбанк, Банк Санкт-Петербург, Промсвязьбанк, ДОМ.РФ, Уралсиб, Банк Россия, ВТБ
6.00%
Ставка
30.10%
Первый взнос
от 47 893 /мес.
Все варианты
7 этаж
из 12 3 квартал 2027
Санкт-Петербург, Санкт-Петербург
Новочеркасская
28 мин.
6
Корпус
white box
Отделка
2.70 м
Потолки
ЖК «Большая Охта»
8 081 200
Альфа-Банк, Всероссийский банк развития регионов (ВБРР), Сургутнефтегазбанк (СНГБ), СберБанк, Совкомбанк, Банк Санкт-Петербург, Промсвязьбанк, ДОМ.РФ, Уралсиб, Банк Россия, ВТБ
6.00%
Ставка
30.10%
Первый взнос
от 48 451 /мес.
Все варианты
9 этаж
из 12 3 квартал 2027
Санкт-Петербург, Санкт-Петербург
Новочеркасская
28 мин.
6
Корпус
white box
Отделка
2.70 м
Потолки
ЖК «Большая Охта»
8 128 870
Альфа-Банк, Всероссийский банк развития регионов (ВБРР), Сургутнефтегазбанк (СНГБ), СберБанк, Совкомбанк, Банк Санкт-Петербург, Промсвязьбанк, ДОМ.РФ, Уралсиб, Банк Россия, ВТБ
6.00%
Ставка
30.10%
Первый взнос
от 48 737 /мес.
Все варианты
10 этаж
из 12 3 квартал 2027
Санкт-Петербург, Санкт-Петербург
Новочеркасская
28 мин.
6
Корпус
white box
Отделка
2.70 м
Потолки
ЖК «Большая Охта»
8 176 540
Альфа-Банк, Всероссийский банк развития регионов (ВБРР), Сургутнефтегазбанк (СНГБ), СберБанк, Совкомбанк, Банк Санкт-Петербург, Промсвязьбанк, ДОМ.РФ, Уралсиб, Банк Россия, ВТБ
6.00%
Ставка
30.10%
Первый взнос
от 49 022 /мес.
Все варианты
Посмотреть все спецпредложения
студия 21,20 м2 8 041 160
Этаж 4/10
СПБ, ЖК «Большая Охта»
Новочеркасская
28 мин.
Строится
студия 21,70 м2 8 701 700
Этаж 7/10
СПБ, ЖК «Большая Охта»
Новочеркасская
28 мин.
Строится
студия 21,80 м2 9 572 380
Этаж 3/10
СПБ, ЖК «Большая Охта»
Новочеркасская
28 мин.
Строится
студия 21,90 м2 8 409 600
Этаж 2/10
СПБ, ЖК «Большая Охта»
Новочеркасская
28 мин.
Строится
Посмотреть 194 квартиры в ЖК «Большая Охта»
1-комн. квартира 34,30 м2 12 251 960
Этаж 3/10
СПБ, ЖК «Большая Охта»
Новочеркасская
28 мин.
Строится
1-комн. квартира 34,50 м2 12 361 350
Этаж 5/10
СПБ, ЖК «Большая Охта»
Новочеркасская
28 мин.
Строится
1-комн. квартира 34,80 м2 12 357 480
Этаж 3/10
СПБ, ЖК «Большая Охта»
Новочеркасская
28 мин.
Строится
1-комн. квартира 34,90 м2 12 375 540
Этаж 3/10
СПБ, ЖК «Большая Охта»
Новочеркасская
28 мин.
Строится
Посмотреть 118 квартир в ЖК «Большая Охта»
2-комн. квартира 55,50 м2 18 542 550
Этаж 3/12
СПБ, ЖК «Большая Охта»
Новочеркасская
28 мин.
Строится
2-комн. квартира 55,70 м2 18 570 380
Этаж 3/12
СПБ, ЖК «Большая Охта»
Новочеркасская
28 мин.
Строится
2-комн. квартира 57,60 м2 19 774 080
Этаж 4/12
СПБ, ЖК «Большая Охта»
Новочеркасская
28 мин.
Строится
2-комн. квартира 57,70 м2 19 721 860
Этаж 3/12
СПБ, ЖК «Большая Охта»
Новочеркасская
28 мин.
Строится
Посмотреть 46 квартир в ЖК «Большая Охта»
3-комн. квартира 68,40 м2 22 517 280
Этаж 2/10
СПБ, ЖК «Большая Охта»
Новочеркасская
28 мин.
Строится
3-комн. квартира 69,00 м2 23 087 400
Этаж 3/10
СПБ, ЖК «Большая Охта»
Новочеркасская
28 мин.
Строится
3-комн. квартира 69,80 м2 22 447 680
Этаж 3/10
СПБ, ЖК «Большая Охта»
Новочеркасская
28 мин.
Строится
3-комн. квартира 70,10 м2 22 347 880
Этаж 3/10
СПБ, ЖК «Большая Охта»
Новочеркасская
28 мин.
Строится
Посмотреть 53 квартиры в ЖК «Большая Охта»

Скидки и спецпредложения от застройщиков

ЖК «Большая Охта» на карте

Выгодные предложения на новостройки

Отзывы о ЖК «Большая Охта»

Самый полезный отзыв
С
13 марта 2024
Оценка:
Радует, что в комплекс заложены паркинги, в старых домах это сейчас большая проблема. Даже если не купим, можно будет хотя бы арендовать.
Ответить
Полезный отзыв?
Самый новый отзыв
А
29 сентября
Оценка:
До станции метро можно дойти пешком за 20-25 минут, это точно! Район очень развит: вблизи находятся школы, детские сады, магазины, парки и многое другое.
Ответить
Полезный отзыв?
Добавьте отзыв, заполнив личные данные, или сначала войдите на сайт, тогда информация будет автоматически взята из личного профиля.
Оценка*