Переверните экран
Поиск бизнес центров

Найдите современный офис в деловых районах Санкт-Петербурга

Найдите современный офис в деловых районах Санкт-Петербурга

Перейти к поиску
Новостройки Квартиры Ипотека Медиа О проекте Контакты Реклама на сайте Vk Youtube Telegram Дзен Продавцы и застройщики Коммерческие помещения Квартиры на карте Эксперты и авторы Машиноместа Акции от застройщиков Банки и программы Апартаменты Новостройки на карте 4-комнатные и более Готовые новостройки 3-комнатные Военная ипотека Покупателю Новостройки Санкт-Петербурга Видеообзор новостроек Семейная ипотека Аналитика рынка Панорамы новостроек 1-комнатные Субсидированная застройщиком Мнение эксперта Студии Ипотечный калькулятор Новости недвижимости Новостройки Ленинградской области IT-ипотека Квартиры со скидками до 25% Новостройки премиум-класса Новостройки бизнес-класса Дома и коттеджи Бизнес-центры Бизнес-центры в Санкт-Петербурге Бизнес-центры рядом с метро Строящиеся бизнес-центры Бизнес-центры класса A
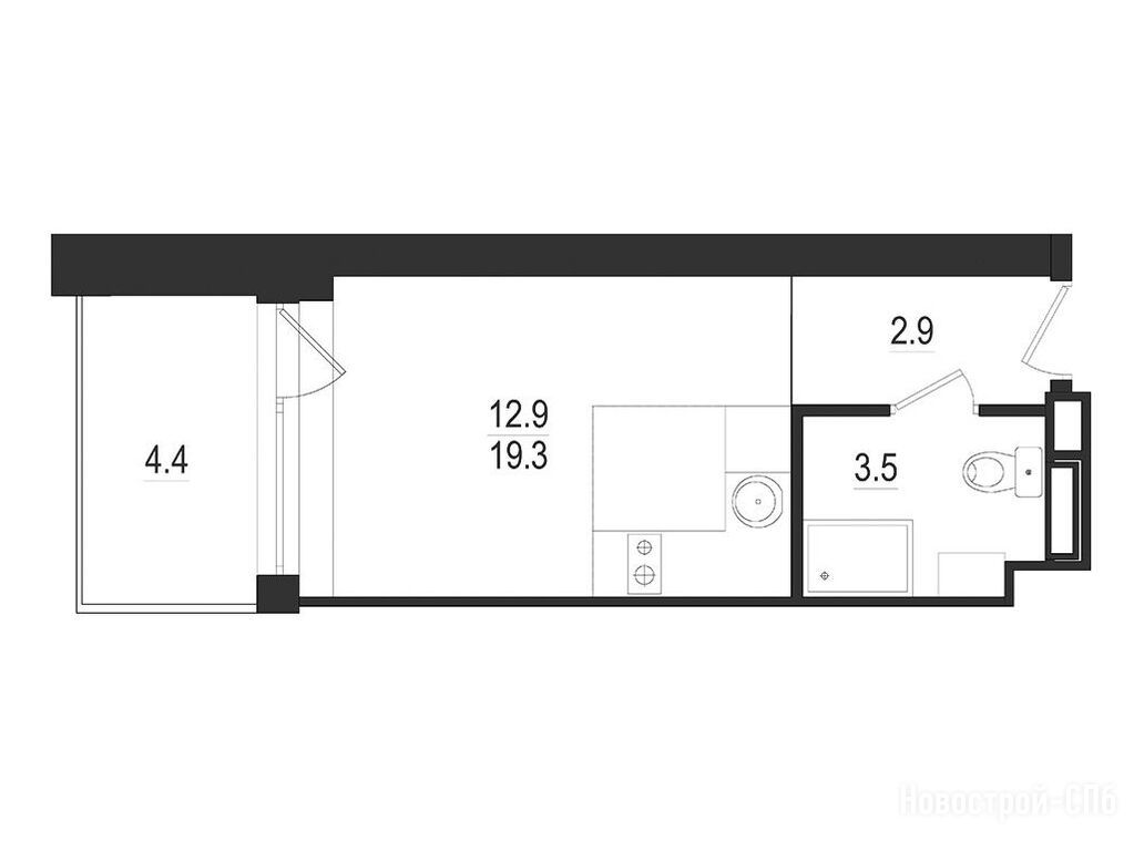
помещение-студия, 23.70 м2, 10 этаж
Сдан
14 312 857 
603 918 2
обновлено 3 февраля

Описание помещения-студии

Новостройка
Срок ГК
Дом сдан
Стадия строительства
выдача ключей + заселение
Тип проекта
Общая площадь
23.70 м2
Этаж
10 / 13
Отделка
чистовая
Мебель
есть

Расположение помещения-студии

Локация
Ж/Д-станция
Дом
1
Адрес
г. Зеленогорск, Приморское шоссе, 570Л

Особенности

Продается помещение-студия в новостройке «Морская Ривьера» по адресу Санкт-Петербург, Курортный, г. Зеленогорск, Приморское шоссе, 570Л. Общая площадь помещения - 23.7 кв. м. Тип проекта, по которому построен дом — Монолит, компания-застройщик — Строительный холдинг «Сенатор». Стоимость помещения — 14 312 857 руб. Способы оплаты можно уточнить у продавца. Более подробная информация по телефону.
Инфоцентр новостроек
Инфоцентр новостроек
+7 (812) 424-49-09
Время работы 9:00 — 21:00

Похожие помещения в «Морская Ривьера»

10 этаж
из 13 Дом сдан
Санкт-Петербург, Санкт-Петербург
Зеленогорск (ж/д)
10 мин.
1
Корпус
чистовая
Отделка
2.65 м
Потолки
«Морская Ривьера»
14 612 857
Посмотреть все спецпредложения
помещение-студия 22,40 м2 13 133 736
Этаж 9/13
СПБ, «Морская Ривьера»
Зеленогорск (ж/д)
10 мин.
Сдан
помещение-студия 22,60 м2 12 865 050
Этаж 8/13
СПБ, «Морская Ривьера»
Зеленогорск (ж/д)
10 мин.
Сдан
помещение-студия 23,10 м2 13 544 165
Этаж 9/13
СПБ, «Морская Ривьера»
Зеленогорск (ж/д)
10 мин.
Сдан
помещение-студия 23,40 м2 13 720 064
Этаж 9/13
СПБ, «Морская Ривьера»
Зеленогорск (ж/д)
10 мин.
Сдан
Посмотреть 32 помещения в «Морская Ривьера»
1-комн. помещение 45,90 м2 27 189 554
Этаж 9/13
СПБ, «Морская Ривьера»
Зеленогорск (ж/д)
10 мин.
Сдан
1-комн. помещение 46,00 м2 26 313 794
Этаж 9/13
СПБ, «Морская Ривьера»
Зеленогорск (ж/д)
10 мин.
Сдан
1-комн. помещение 46,60 м2 26 657 017
Этаж 9/13
СПБ, «Морская Ривьера»
Зеленогорск (ж/д)
10 мин.
Сдан
1-комн. помещение 47,20 м2 26 732 900
Этаж 8/13
СПБ, «Морская Ривьера»
Зеленогорск (ж/д)
10 мин.
Сдан
Посмотреть 23 помещения в «Морская Ривьера»
2-комн. помещение 46,30 м2 27 154 950
Этаж 8/13
СПБ, «Морская Ривьера»
Зеленогорск (ж/д)
10 мин.
Сдан
2-комн. помещение 57,10 м2 33 160 825
Этаж 9/13
СПБ, «Морская Ривьера»
Зеленогорск (ж/д)
10 мин.
Сдан
2-комн. помещение 59,60 м2 34 958 857
Этаж 10/13
СПБ, «Морская Ривьера»
Зеленогорск (ж/д)
10 мин.
Сдан
2-комн. помещение 70,70 м2 40 652 500
Этаж 8/13
СПБ, «Морская Ривьера»
Зеленогорск (ж/д)
10 мин.
Сдан
Посмотреть 7 помещений в «Морская Ривьера»
Этаж 9/13
СПБ, «Морская Ривьера»
Зеленогорск (ж/д)
10 мин.
Сдан

Скидки и спецпредложения от застройщиков

«Морская Ривьера» на карте

Выгодные предложения на новостройки

Отзывы о «Морская Ривьера»

Самый полезный отзыв
АК
25 марта 2025
Оценка:
Планировки
Способы покупки
Двор, окружение
Расположение
Апартаменты просто замечательные, с хорошим свежим ремонтом. Заходишь и сразу чувствуется уют и комфорт. Во дворе есть бассейн с небесно-голубой водой. Он выглядит так привлекательно, невозможно не захотеть поплавать. Здорово будет расслабляться в жаркий день, фактически не выходя из дома.
Ответить
Полезный отзыв?
Самый новый отзыв
АВ
31 августа 2025
Оценка:
Застройщик продумал всё до мелочей, начиная от красивых и функциональных планировок, заканчивая отличной инфраструктурой. Уже с нетерпением жду переезда
Ответить
Полезный отзыв?
Добавьте отзыв, заполнив личные данные, или сначала войдите на сайт, тогда информация будет автоматически взята из личного профиля.
Оценка*