Переверните экран
Поиск бизнес центров

Найдите современный офис в деловых районах Санкт-Петербурга

Найдите современный офис в деловых районах Санкт-Петербурга

Перейти к поиску
Новостройки Квартиры Ипотека Медиа О проекте Контакты Реклама на сайте Vk Youtube Telegram Дзен Продавцы и застройщики Коммерческие помещения Квартиры на карте Эксперты и авторы Машиноместа Акции от застройщиков Банки и программы Апартаменты Новостройки на карте 4-комнатные и более Готовые новостройки 3-комнатные Военная ипотека Покупателю Новостройки Санкт-Петербурга Видеообзор новостроек Семейная ипотека Аналитика рынка Панорамы новостроек 1-комнатные Субсидированная застройщиком Мнение эксперта Студии Ипотечный калькулятор Новости недвижимости Новостройки Ленинградской области ИТ-ипотека Квартиры со скидками до 25% Новостройки премиум-класса Новостройки бизнес-класса Дома и коттеджи Бизнес-центры Бизнес-центры в Санкт-Петербурге Бизнес-центры рядом с метро Строящиеся бизнес-центры Бизнес-центры класса A Ипотека со ставкой 0,1% Траншевая ипотека
1-комн. квартира, 34.09 м2, 5 этаж
Срок сдачи 4 квартал 2027 года
8 825 901 
258 900 2
обновлено 4 марта

Описание 1-комн. квартиры

Новостройка
Срок ГК
4 квартал 2027 года
Стадия строительства
отделка фасада и внутренние работы
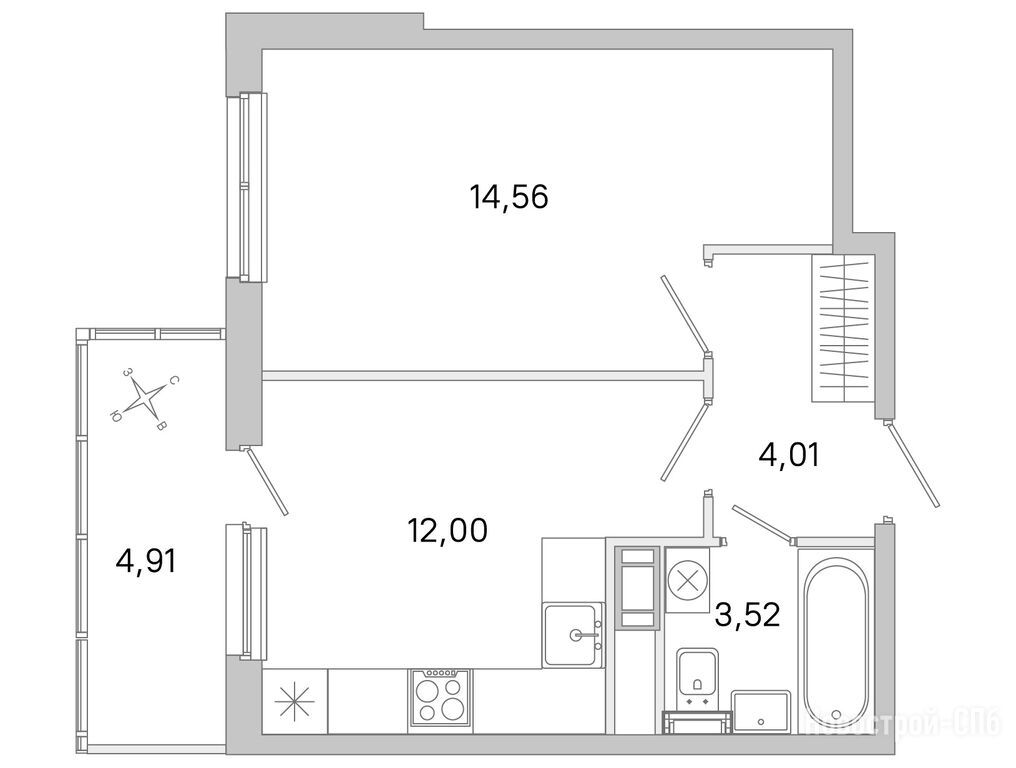
Общая площадь
34.09 м2
Площадь кухни
12.00 м2
Этаж
5 / 5
Отделка
чистовая

Расположение 1-комн. квартиры

Локация
Метро
Дом
Австралия 6
Адрес
Северо-восточнее пересечения Пулковского и Волхонского шоссе

Способы покупки

Особенности

Продается однокомнатная квартира в новостройке ЖК «Югтаун» по адресу Санкт-Петербург, Пушкинский, Северо-восточнее пересечения Пулковского и Волхонского шоссе. Общая площадь квартиры - 34.09 кв. м. Тип проекта, по которому построен дом — Монолитно-кирпичный, компания-застройщик — КВС, ООО «СЗ КВС-Московский». Стоимость квартиры — 8 825 901 руб. Способы оплаты можно уточнить у продавца. Срок сдачи — 4 квартал 2027. Более подробная информация по телефону.
Инфоцентр новостроек
Инфоцентр новостроек
+7 (812) 424-49-09
Время работы 9:00 — 21:00

Похожие квартиры в ЖК «Югтаун»

4 этаж
из 5 4 квартал 2027
Санкт-Петербург, Санкт-Петербург
Московская
33 мин.
Австралия 6
Корпус
чистовая
Отделка
0.00 м
Потолки
ЖК «Югтаун»
8 825 901
СберБанк
19.70%
Ставка
20.10%
Первый взнос
от 145 305 /мес.
Все варианты
Этаж 4/5
СПБ, ЖК «Югтаун»
Московская
33 мин.
Строится
Этаж 2/5
СПБ, ЖК «Югтаун»
Московская
33 мин.
Строится
Этаж 5/5
СПБ, ЖК «Югтаун»
Московская
33 мин.
Строится
Этаж 2/5
СПБ, ЖК «Югтаун»
Московская
33 мин.
Строится
Посмотреть 37 квартир в ЖК «Югтаун»
Этаж 5/5
СПБ, ЖК «Югтаун»
Московская
33 мин.
Строится
Этаж 2/5
СПБ, ЖК «Югтаун»
Московская
33 мин.
Строится
Этаж 2/5
СПБ, ЖК «Югтаун»
Московская
33 мин.
Строится
Этаж 2/5
СПБ, ЖК «Югтаун»
Московская
33 мин.
Строится
Посмотреть 101 квартира в ЖК «Югтаун»
Этаж 3/5
СПБ, ЖК «Югтаун»
Московская
33 мин.
Строится
Этаж 2/5
СПБ, ЖК «Югтаун»
Московская
33 мин.
Строится
Этаж 3/5
СПБ, ЖК «Югтаун»
Московская
33 мин.
Строится
Этаж 3/5
СПБ, ЖК «Югтаун»
Московская
33 мин.
Строится
Посмотреть 73 квартиры в ЖК «Югтаун»
Этаж 4/5
СПБ, ЖК «Югтаун»
Московская
33 мин.
Строится
Этаж 5/5
СПБ, ЖК «Югтаун»
Московская
33 мин.
Строится
Этаж 4/5
СПБ, ЖК «Югтаун»
Московская
33 мин.
Строится
Этаж 2/5
СПБ, ЖК «Югтаун»
Московская
33 мин.
Строится
Посмотреть 39 квартир в ЖК «Югтаун»
Этаж 4/5
СПБ, ЖК «Югтаун»
Московская
33 мин.
Строится
Этаж 2/5
СПБ, ЖК «Югтаун»
Московская
33 мин.
Строится

Скидки и спецпредложения от застройщиков

ЖК «Югтаун» на карте

Выгодные предложения на новостройки

Отзывы о ЖК «Югтаун»

Самый полезный отзыв
А
28 июня 2018
Оценка:
Транспортная доступность
Внешний вид фасада
Входные группы
Готовность
Я от их "Невской ратуши" просто в восторге! Очень нужны городу такие проекты. Потому что ни музыка, ни великие картины и книги - ничто не является более убедительным и наглядным аргументом в защиту национального чувства прекрасного, чем архитектурные шедевры. Пусть будет новый красивый микрорайон! А инфраструктура подтянется обязательно! Тем более, что они и сами много что обещают сделать для жизни новоселов.
Ответить
Полезный отзыв?
Самый новый отзыв
А
27 февраля
Оценка:
Неплохое место для жизни. Да, тут не такая развитая инфраструктура пока. Но всё-таки более-менее уже лучше.
Ответить
Полезный отзыв?
Добавьте отзыв, заполнив личные данные, или сначала войдите на сайт, тогда информация будет автоматически взята из личного профиля.
Оценка*