Переверните экран
Новостройки Квартиры Ипотека Медиа О проекте Контакты Реклама на сайте Vk Youtube Telegram Дзен Продавцы и застройщики Коммерческие помещения Квартиры на карте Эксперты и авторы Машиноместа Акции от застройщиков Банки и программы Апартаменты Новостройки на карте 4-комнатные и более Готовые новостройки 3-комнатные Военная ипотека Покупателю Новостройки Санкт-Петербурга Видеообзор новостроек Семейная ипотека Аналитика рынка Панорамы новостроек 1-комнатные Субсидированная застройщиком Мнение эксперта Студии Ипотечный калькулятор Новости недвижимости Новостройки Ленинградской области IT-ипотека Квартиры со скидками до 25% Новостройки премиум-класса Новостройки бизнес-класса Дома и коттеджи Бизнес-центры Бизнес-центры в Санкт-Петербурге Бизнес-центры рядом с метро Строящиеся бизнес-центры Бизнес-центры класса A
Данное предложение на 16.12.2025 неактуально. Пожалуйста, ознакомьтесь с другими похожими предложениями в ЖК Yolkki Village (Ёлки Вилладж) .
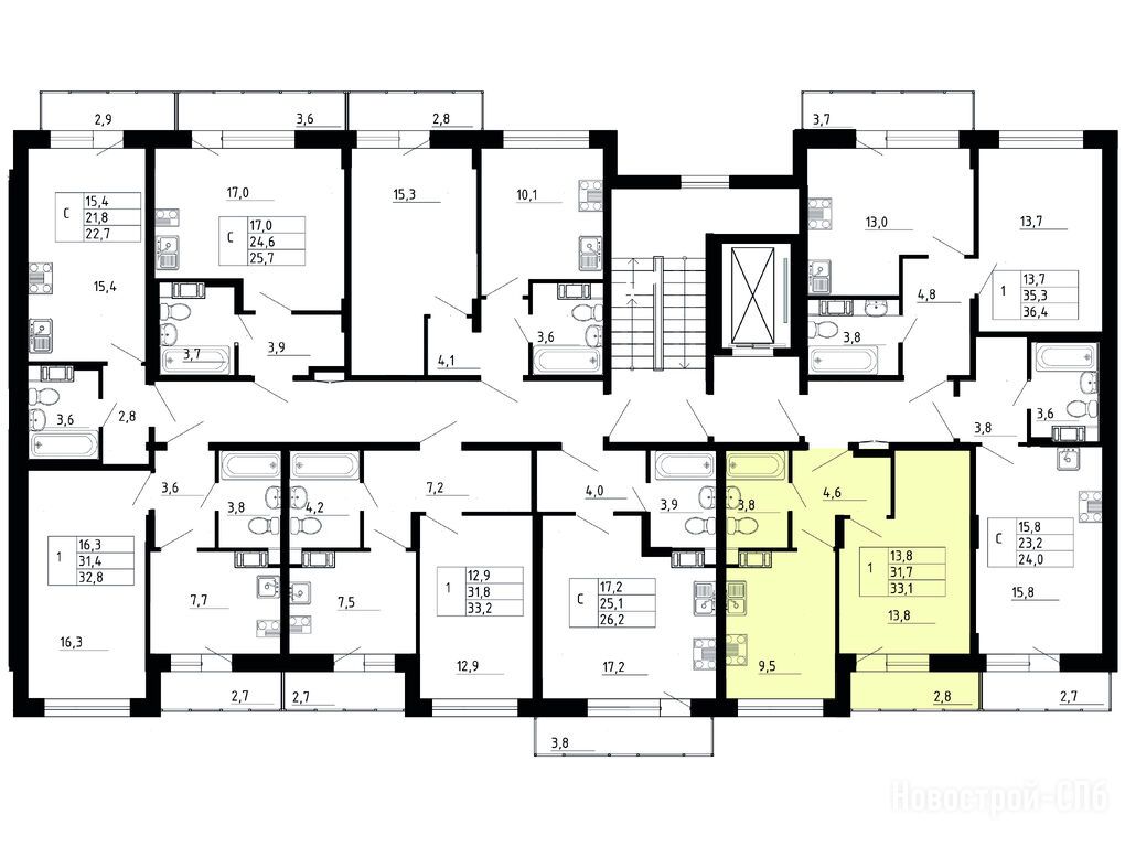
1-комн. квартира, 31.70 м2, 6 этаж
Сдан
3 487 000 
110 000 2
обновлено 10 октября

Описание 1-комн. квартиры

Застройщик
Срок ГК
Дом сдан
Стадия строительства
выдача ключей + заселение
Тип проекта
Общая площадь
31.70 м2
Этаж
6 / 8
Отделка
под чистовую
Мусоропровод
есть

Расположение 1-комн. квартиры

Метро
Парнас
18 мин.
Дом
2 оч. (д.2)
Адрес
Рождественская улица, 2

Особенности

Продается однокомнатная квартира в новостройке ЖК Yolkki Village (Ёлки Вилладж) по адресу Ленинградская область, Всеволожский район, Агалатовское, Скотное дер., Рождественская улица, 2. Общая площадь квартиры - 31.7 кв. м. Тип проекта, по которому построен дом — Монолит, компания-застройщик — ООО «Гранд-Строй», Фонд защиты участников долевого строительства ЛО. Стоимость квартиры — 3 487 000 руб. Способы оплаты можно уточнить у продавца. Более подробная информация по телефону.
Инфоцентр новостроек
Инфоцентр новостроек
Время работы 9:00 — 21:00
Выбирайте квартиру в ЖК Yolkki Village (Ёлки Вилладж) по ценам от застройщика
Посмотреть все спецпредложения

Скидки и спецпредложения от застройщиков

ЖК Yolkki Village (Ёлки Вилладж) на карте

Выгодные предложения на новостройки

Отзывы о ЖК Yolkki Village

Самый полезный отзыв
С
07 декабря 2017
Оценка:
Экология
Планировки
Способы покупки
Двор, окружение
Да, мне тоже комплекс очень понравился! Была на экскурсии на объекте, все в снегу уже. Показывали шоу-рум в первой очереди, сказали, что для второй скоро откроют новый, там уже другая отделка будет.
Показать все комментарии
Ответить
Полезный отзыв?
Самый новый отзыв
С
23 июля 2018
Оценка:
Дома возведены уже как почти два года назад, этой зимой работала котельная, на этом хорошее заканчивается. Стройка стоит, коммуникаций нет, перспективы очень туманные. Все восторженные отзывы - разводилово. Реальный форум дольщиков где была вся правда заблокирован, остальные группы от застроя или не ведутся или не о чем, рядом так же и по тем же причинам стоит Шотландия.
Ответить
Полезный отзыв?
Добавьте отзыв, заполнив личные данные, или сначала войдите на сайт, тогда информация будет автоматически взята из личного профиля.
Оценка*