Переверните экран
Новостройки Квартиры Ипотека Медиа О проекте Контакты Реклама на сайте Vk Youtube Telegram Дзен Продавцы и застройщики Коммерческие помещения Квартиры на карте Эксперты и авторы Машиноместа Акции от застройщиков Банки и программы Апартаменты Новостройки на карте 4-комнатные и более Готовые новостройки 3-комнатные Военная ипотека Покупателю Новостройки Санкт-Петербурга Видеообзор новостроек Семейная ипотека Аналитика рынка Панорамы новостроек 1-комнатные Субсидированная застройщиком Мнение эксперта Студии Ипотечный калькулятор Новости недвижимости Новостройки Ленинградской области IT-ипотека Квартиры со скидками до 25% Новостройки премиум-класса Новостройки бизнес-класса Дома и коттеджи Бизнес-центры Бизнес-центры в Санкт-Петербурге Бизнес-центры рядом с метро Строящиеся бизнес-центры Бизнес-центры класса A
1-комн. квартира, 32.77 м2, 9 этаж
Срок сдачи 4 квартал 2025 года
5 070 519 
154 731 2
обновлено 16 декабря

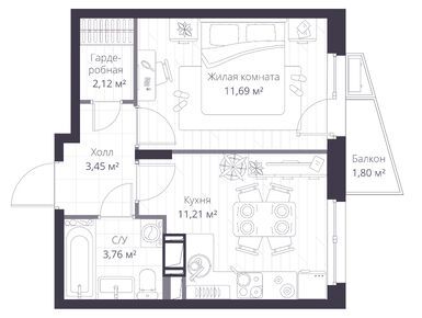
Описание 1-комн. квартиры

Новостройка
Срок ГК
4 квартал 2025 года
Стадия строительства
монтаж верхних этажей
Тип проекта
Общая площадь
32.77 м2
Жилая площадь
11.72 м2
Площадь кухни
11.21 м2
Этаж
9 / 11
Отделка
нет
Грузовой лифт
есть

Расположение 1-комн. квартиры

Дом
1
Адрес
ул. Дмитрия Кожемякина, ЖК Veren Nort Сертолово, корпус 1, секция 1

Особенности

Продается однокомнатная квартира в новостройке ЖК Veren Nort Сертолово по адресу Ленинградская область, Всеволожский район, Сертолово, ул. Дмитрия Кожемякина, ЖК Veren Nort Сертолово, корпус 1. Общая площадь квартиры - 32.77 кв. м. Тип проекта, по которому построен дом — Монолитно-кирпичный, компания-застройщик — Veren Group (Верен Груп), СЗ МКД 2. Стоимость квартиры — 5 070 519 руб. Способы оплаты можно уточнить у продавца. Срок сдачи — 4 квартал 2025. Более подробная информация по телефону.
Инфоцентр новостроек
Инфоцентр новостроек
+7 (812) 424-49-09
Время работы 9:00 — 21:00

Похожие квартиры в ЖК Veren Nort Сертолово

8 этаж
из 11 4 квартал 2025
Ленинградская область, Всеволожский район
Проспект Просвещения
39 мин.
1
Корпус
нет
Отделка
2.80 м
Потолки
ЖК Veren Nort Сертолово
5 026 958
Посмотреть все спецпредложения
студия 22,18 м2 4 426 493
Этаж 10/11
ЛО, ЖК Veren Nort Сертолово
Проспект Просвещения
39 мин.
Строится
студия 22,48 м2 4 384 789
Этаж 8/11
ЛО, ЖК Veren Nort Сертолово
Проспект Просвещения
39 мин.
Строится
студия 22,50 м2 4 275 738
Этаж 5/11
ЛО, ЖК Veren Nort Сертолово
Проспект Просвещения
39 мин.
Строится
студия 24,01 м2 3 916 913
Этаж 3/11
ЛО, ЖК Veren Nort Сертолово
Проспект Просвещения
39 мин.
Строится
Посмотреть 237 квартир в ЖК Veren Nort Сертолово
1-комн. квартира 32,13 м2 5 202 882
Этаж 4/11
ЛО, ЖК Veren Nort Сертолово
Проспект Просвещения
39 мин.
Строится
1-комн. квартира 32,14 м2 5 847 511
Этаж 3/11
ЛО, ЖК Veren Nort Сертолово
Проспект Просвещения
39 мин.
Строится
1-комн. квартира 32,17 м2 5 209 359
Этаж 4/11
ЛО, ЖК Veren Nort Сертолово
Проспект Просвещения
39 мин.
Строится
1-комн. квартира 32,18 м2 4 865 743
Этаж 4/11
ЛО, ЖК Veren Nort Сертолово
Проспект Просвещения
39 мин.
Строится
Посмотреть 71 квартира в ЖК Veren Nort Сертолово
2-комн. квартира 35,18 м2 5 666 717
Этаж 3/11
ЛО, ЖК Veren Nort Сертолово
Проспект Просвещения
39 мин.
Строится
2-комн. квартира 35,90 м2 7 725 021
Этаж 11/11
ЛО, ЖК Veren Nort Сертолово
Проспект Просвещения
39 мин.
Строится
2-комн. квартира 36,38 м2 5 500 597
Этаж 2/11
ЛО, ЖК Veren Nort Сертолово
Проспект Просвещения
39 мин.
Строится
2-комн. квартира 36,74 м2 5 542 964
Этаж 1/11
ЛО, ЖК Veren Nort Сертолово
Проспект Просвещения
39 мин.
Строится
Посмотреть 335 квартир в ЖК Veren Nort Сертолово
3-комн. квартира 48,63 м2 8 627 200
Этаж 3/11
ЛО, ЖК Veren Nort Сертолово
Проспект Просвещения
39 мин.
Строится
3-комн. квартира 48,64 м2 8 703 755
Этаж 4/11
ЛО, ЖК Veren Nort Сертолово
Проспект Просвещения
39 мин.
Строится
3-комн. квартира 48,73 м2 8 719 861
Этаж 4/11
ЛО, ЖК Veren Nort Сертолово
Проспект Просвещения
39 мин.
Строится
3-комн. квартира 49,11 м2 7 693 369
Этаж 2/11
ЛО, ЖК Veren Nort Сертолово
Проспект Просвещения
39 мин.
Строится
Посмотреть 185 квартир в ЖК Veren Nort Сертолово
4-комн. квартира 74,43 м2 12 430 427
Этаж 2/11
ЛО, ЖК Veren Nort Сертолово
Проспект Просвещения
39 мин.
Строится
4-комн. квартира 75,03 м2 12 471 262
Этаж 1/11
ЛО, ЖК Veren Nort Сертолово
Проспект Просвещения
39 мин.
Строится
4-комн. квартира 76,03 м2 13 327 301
Этаж 8/11
ЛО, ЖК Veren Nort Сертолово
Проспект Просвещения
39 мин.
Строится
4-комн. квартира 78,66 м2 17 142 501
Этаж 11/11
ЛО, ЖК Veren Nort Сертолово
Проспект Просвещения
39 мин.
Строится
Посмотреть 21 квартира в ЖК Veren Nort Сертолово

Скидки и спецпредложения от застройщиков

ЖК Veren Nort Сертолово на карте

Выгодные предложения на новостройки

Отзывы о ЖК Veren Nort Сертолово

Самый полезный отзыв
В
23 октября 2023
Оценка:
Ждать до 25 года бы не рискнул, если бы не узнал, что финансирует проект банк дом.рф. Бюджет значит заранее заложен, риски с поставками оборудования, стройматериалов и прочего точно исключены. Короче говоря, стройка на подстраховке.
Ответить
Полезный отзыв?
Самый новый отзыв
В
11 декабря
Оценка:
Когда познакомились с проектом Veren Nort Сертолово, сразу оценили задумку. Застройщик планирует создать жилой комплекс, где природа и современные удобства будут дополнять друг друга. По проекту во дворе предусмотрено много уютных мест для отдыха с приятной подсветкой. Видно, что над каждой деталью работают основательно.
Ответить
Полезный отзыв?
Добавьте отзыв, заполнив личные данные, или сначала войдите на сайт, тогда информация будет автоматически взята из личного профиля.
Оценка*