Переверните экран
Поиск домов и коттеджей

Найдите идеальный дом или коттедж в Санкт-Петербурге и области

Найдите идеальный дом или коттедж в Санкт-Петербурге и области

Перейти к поиску
Новостройки Квартиры Ипотека Медиа О проекте Контакты Реклама на сайте Vk Youtube Telegram Дзен Продавцы и застройщики Коммерческие помещения Квартиры на карте Эксперты и авторы Машиноместа Акции от застройщиков Банки и программы Апартаменты Новостройки на карте 4-комнатные и более Готовые новостройки 3-комнатные Военная ипотека Покупателю Новостройки Санкт-Петербурга Видеообзор новостроек Семейная ипотека Аналитика рынка Панорамы новостроек 1-комнатные Субсидированная застройщиком Мнение эксперта Студии Ипотечный калькулятор Новости недвижимости Новостройки Ленинградской области ИТ-ипотека Квартиры со скидками до 25% Новостройки премиум-класса Новостройки бизнес-класса Дома и коттеджи Бизнес-центры Бизнес-центры в Санкт-Петербурге Бизнес-центры рядом с метро Строящиеся бизнес-центры Бизнес-центры класса A Ипотека со ставкой 0,1% Траншевая ипотека
1-комн. квартира, 39.47 м2, 7 этаж
Срок сдачи 4 квартал 2027 года
7 005 925 
177 500 2
обновлено 1 апреля

Описание 1-комн. квартиры

Новостройка
Срок ГК
4 квартал 2027 года
Стадия строительства
Тип проекта
монолитно-панельный
Общая площадь
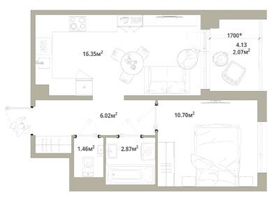
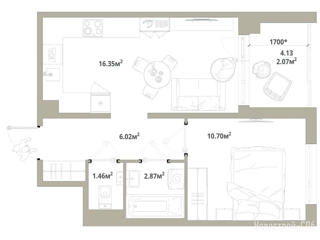
39.47 м2
Жилая площадь
10.70 м2
Этаж
7 / 12
Отделка
чистовая
Грузовой лифт
есть

Расположение 1-комн. квартиры

Ж/Д-станция
Дом
3.2-2
Адрес
гп Новоселье, ЖК «Тишин», корпус 3.2-2, секция 1

Способы покупки

Особенности

Продается однокомнатная квартира в новостройке ЖК «Тишин» по адресу Ленинградская область, Ломоносовский район, Аннинское, гп Новоселье, ЖК «Тишин», корпус 3.2-2. Общая площадь квартиры - 39.47 кв. м. Тип проекта, по которому построен дом — Монолитно-панельный, компания-застройщик — ГК ЕДИНО, СЗ Новоселье-2. Стоимость квартиры — 7 005 925 руб. Способы оплаты можно уточнить у продавца. Срок сдачи — 4 квартал 2027. Более подробная информация по телефону.
Инфоцентр новостроек
Инфоцентр новостроек
+7 (812) 424-49-09
Время работы 9:00 — 21:00

Похожие квартиры в ЖК «Тишин»

4 этаж
из 12 4 квартал 2027
Ленинградская область, Ломоносовский район
Проспект Ветеранов
17 мин.
3.2-2
Корпус
чистовая
Отделка
2.67 м
Потолки
ЖК «Тишин»
7 005 925
Альфа-Банк, СберБанк, ВТБ, ДОМ.РФ, Банк Санкт-Петербург, Металлинвестбанк, Абсолют Банк
6.00%
Ставка
30.10%
Первый взнос
от 42 004 /мес.
Все варианты
5 этаж
из 12 4 квартал 2027
Ленинградская область, Ломоносовский район
Проспект Ветеранов
17 мин.
3.2-2
Корпус
чистовая
Отделка
2.67 м
Потолки
ЖК «Тишин»
7 005 925
Альфа-Банк, СберБанк, ВТБ, ДОМ.РФ, Банк Санкт-Петербург, Металлинвестбанк, Абсолют Банк
6.00%
Ставка
30.10%
Первый взнос
от 42 004 /мес.
Все варианты
6 этаж
из 12 4 квартал 2027
Ленинградская область, Ломоносовский район
Проспект Ветеранов
17 мин.
3.2-2
Корпус
чистовая
Отделка
2.67 м
Потолки
ЖК «Тишин»
7 005 925
Альфа-Банк, СберБанк, ВТБ, ДОМ.РФ, Банк Санкт-Петербург, Металлинвестбанк, Абсолют Банк
6.00%
Ставка
30.10%
Первый взнос
от 42 004 /мес.
Все варианты
студия 28,04 м2 5 723 132
Этаж 4/12
ЛО, ЖК «Тишин»
Проспект Ветеранов
17 мин.
Строится
студия 28,31 м2 5 684 535
Этаж 1/12
ЛО, ЖК «Тишин»
Проспект Ветеранов
17 мин.
Строится
студия 28,44 м2 5 738 936
Этаж 1/12
ЛО, ЖК «Тишин»
Проспект Ветеранов
17 мин.
Строится
студия 29,22 м2 5 867 259
Этаж 2/12
ЛО, ЖК «Тишин»
Проспект Ветеранов
17 мин.
Строится
Посмотреть 20 квартир в ЖК «Тишин»
1-комн. квартира 28,00 м2 5 334 000
Этаж 10/12
ЛО, ЖК «Тишин»
Проспект Ветеранов
17 мин.
Строится
1-комн. квартира 28,03 м2 5 144 178
Этаж 2/12
ЛО, ЖК «Тишин»
Проспект Ветеранов
17 мин.
Строится
1-комн. квартира 31,64 м2 6 426 464
Этаж 4/12
ЛО, ЖК «Тишин»
Проспект Ветеранов
17 мин.
Строится
1-комн. квартира 33,15 м2 6 272 643
Этаж 1/12
ЛО, ЖК «Тишин»
Проспект Ветеранов
17 мин.
Строится
Посмотреть 583 квартиры в ЖК «Тишин»
2-комн. квартира 45,11 м2 7 939 360
Этаж 1/12
ЛО, ЖК «Тишин»
Проспект Ветеранов
17 мин.
Строится
2-комн. квартира 46,78 м2 8 467 180
Этаж 4/12
ЛО, ЖК «Тишин»
Проспект Ветеранов
17 мин.
Строится
2-комн. квартира 47,17 м2 8 537 770
Этаж 10/12
ЛО, ЖК «Тишин»
Проспект Ветеранов
17 мин.
Строится
2-комн. квартира 48,63 м2 9 106 308
Этаж 7/12
ЛО, ЖК «Тишин»
Проспект Ветеранов
17 мин.
Строится
Посмотреть 504 квартиры в ЖК «Тишин»
3-комн. квартира 67,18 м2 12 361 120
Этаж 10/12
ЛО, ЖК «Тишин»
Проспект Ветеранов
17 мин.
Строится
3-комн. квартира 67,22 м2 12 368 480
Этаж 2/12
ЛО, ЖК «Тишин»
Проспект Ветеранов
17 мин.
Строится
3-комн. квартира 68,11 м2 12 818 234
Этаж 8/12
ЛО, ЖК «Тишин»
Проспект Ветеранов
17 мин.
Строится
3-комн. квартира 69,36 м2 12 767 719
Этаж 7/12
ЛО, ЖК «Тишин»
Проспект Ветеранов
17 мин.
Строится
Посмотреть 59 квартир в ЖК «Тишин»
4-комн. квартира 104,12 м2 19 158 080
Этаж 1/12
ЛО, ЖК «Тишин»
Проспект Ветеранов
17 мин.
Строится

Скидки и спецпредложения от застройщиков

ЖК «Тишин» на карте

Выгодные предложения на новостройки

Отзывы о ЖК «Тишин»

Самый полезный отзыв
С
29 мая 2025
Оценка:
Достоинства
Планировки
Способы покупки
Внешний вид фасада
Двор, окружение
Расположение
Мы уже не первый раз связываемся с этим застройщиком – сделали повторную покупку и получили приятную скидку плюс сертификат на мебель! Это всегда приятно. Но главное – планировки! Сравнили всех конкурентов и поняли, что самые крутые, самые продуманные варианты – только тут. Прямо чувствуется, что люди думали, как сделать жизнь комфортнее, а не просто квадратные метры рисовали.
Ответить
Самый новый отзыв
КХ
28 февраля
Оценка:
Очень нравится местоположение, все рядом, но страдает шумоизоляция. Особенно слышно, когда ремонтируют квартиры в соседнем подъезде.
Ответить

Оставить отзыв

Добавьте отзыв, заполнив личные данные, или сначала войдите на сайт, тогда информация будет автоматически взята из личного профиля.
Оценка*