Переверните экран
Поиск бизнес центров

Найдите современный офис в деловых районах Санкт-Петербурга

Найдите современный офис в деловых районах Санкт-Петербурга

Перейти к поиску
Новостройки Квартиры Ипотека Медиа О проекте Контакты Реклама на сайте Vk Youtube Telegram Дзен Продавцы и застройщики Коммерческие помещения Квартиры на карте Эксперты и авторы Машиноместа Акции от застройщиков Банки и программы Апартаменты Новостройки на карте 4-комнатные и более Готовые новостройки 3-комнатные Военная ипотека Покупателю Новостройки Санкт-Петербурга Видеообзор новостроек Семейная ипотека Аналитика рынка Панорамы новостроек 1-комнатные Субсидированная застройщиком Мнение эксперта Студии Ипотечный калькулятор Новости недвижимости Новостройки Ленинградской области IT-ипотека Квартиры со скидками до 25% Новостройки премиум-класса Новостройки бизнес-класса Дома и коттеджи Бизнес-центры Бизнес-центры в Санкт-Петербурге Бизнес-центры рядом с метро Строящиеся бизнес-центры Бизнес-центры класса A
1-комн. квартира, 39.42 м2, 3 этаж
Срок сдачи 4 квартал 2027 года
6 524 010 
165 500 2
обновлено 5 декабря

Описание 1-комн. квартиры

Новостройка
Срок ГК
4 квартал 2027 года
Стадия строительства
Тип проекта
монолитно-панельный
Общая площадь
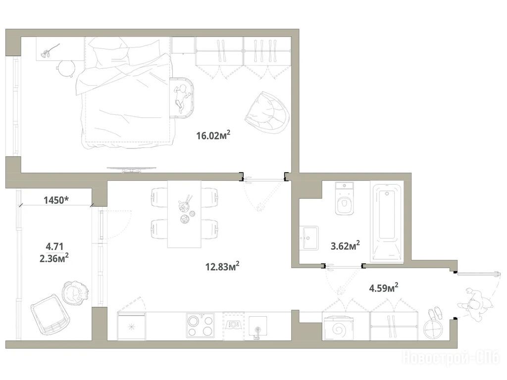
39.42 м2
Жилая площадь
16.02 м2
Площадь кухни
12.83 м2
Этаж
3 / 12
Отделка
чистовая
Грузовой лифт
есть

Расположение 1-комн. квартиры

Ж/Д-станция
Дом
3.2-2
Адрес
гп Новоселье, ЖК «Тишин», корпус 3.2-2, секция 1

Способы покупки

Особенности

Продается однокомнатная квартира в новостройке ЖК «Тишин» по адресу Ленинградская область, Ломоносовский район, Аннинское, гп Новоселье, ЖК «Тишин», корпус 3.2-2. Общая площадь квартиры - 39.42 кв. м. Тип проекта, по которому построен дом — Монолитно-панельный, компания-застройщик — ГК ЕДИНО, СЗ Новоселье-2. Стоимость квартиры — 6 524 010 руб. Способы оплаты можно уточнить у продавца. Срок сдачи — 4 квартал 2027. Более подробная информация по телефону.
Инфоцентр новостроек
Инфоцентр новостроек
+7 (812) 424-49-09
Время работы 9:00 — 21:00

Похожие квартиры в ЖК «Тишин»

4 этаж
из 12 4 квартал 2027
Ленинградская область, Ломоносовский район
Проспект Ветеранов
17 мин.
3.2-2
Корпус
чистовая
Отделка
2.67 м
Потолки
ЖК «Тишин»
6 721 110
Альфа-Банк, ВТБ, СберБанк, Банк Санкт-Петербург, Металлинвестбанк, ДОМ.РФ, Абсолют Банк
6.00%
Ставка
30.10%
Первый взнос
от 40 296 /мес.
Все варианты
5 этаж
из 12 4 квартал 2027
Ленинградская область, Ломоносовский район
Проспект Ветеранов
17 мин.
3.2-2
Корпус
чистовая
Отделка
2.67 м
Потолки
ЖК «Тишин»
6 721 110
Альфа-Банк, ВТБ, СберБанк, Банк Санкт-Петербург, Металлинвестбанк, ДОМ.РФ, Абсолют Банк
6.00%
Ставка
30.10%
Первый взнос
от 40 296 /мес.
Все варианты
6 этаж
из 12 4 квартал 2027
Ленинградская область, Ломоносовский район
Проспект Ветеранов
17 мин.
3.2-2
Корпус
чистовая
Отделка
2.67 м
Потолки
ЖК «Тишин»
6 721 110
Альфа-Банк, ВТБ, СберБанк, Банк Санкт-Петербург, Металлинвестбанк, ДОМ.РФ, Абсолют Банк
6.00%
Ставка
30.10%
Первый взнос
от 40 296 /мес.
Все варианты
7 этаж
из 12 4 квартал 2027
Ленинградская область, Ломоносовский район
Проспект Ветеранов
17 мин.
3.2-2
Корпус
чистовая
Отделка
2.67 м
Потолки
ЖК «Тишин»
6 721 110
Альфа-Банк, ВТБ, СберБанк, Банк Санкт-Петербург, Металлинвестбанк, ДОМ.РФ, Абсолют Банк
6.00%
Ставка
30.10%
Первый взнос
от 40 296 /мес.
Все варианты
Посмотреть все спецпредложения
студия 28,04 м2 5 610 972
Этаж 4/12
ЛО, ЖК «Тишин»
Проспект Ветеранов
17 мин.
Строится
студия 28,31 м2 5 571 302
Этаж 1/12
ЛО, ЖК «Тишин»
Проспект Ветеранов
17 мин.
Строится
студия 28,44 м2 5 625 176
Этаж 1/12
ЛО, ЖК «Тишин»
Проспект Ветеранов
17 мин.
Строится
студия 29,22 м2 5 750 387
Этаж 2/12
ЛО, ЖК «Тишин»
Проспект Ветеранов
17 мин.
Строится
Посмотреть 21 квартира в ЖК «Тишин»
1-комн. квартира 28,00 м2 5 196 800
Этаж 10/12
ЛО, ЖК «Тишин»
Проспект Ветеранов
17 мин.
Строится
1-комн. квартира 28,03 м2 5 006 831
Этаж 2/12
ЛО, ЖК «Тишин»
Проспект Ветеранов
17 мин.
Строится
1-комн. квартира 31,64 м2 6 299 888
Этаж 4/12
ЛО, ЖК «Тишин»
Проспект Ветеранов
17 мин.
Строится
1-комн. квартира 33,15 м2 6 140 043
Этаж 1/12
ЛО, ЖК «Тишин»
Проспект Ветеранов
17 мин.
Строится
Посмотреть 626 квартир в ЖК «Тишин»
2-комн. квартира 45,11 м2 7 691 255
Этаж 1/12
ЛО, ЖК «Тишин»
Проспект Ветеранов
17 мин.
Строится
2-комн. квартира 46,78 м2 8 209 890
Этаж 4/12
ЛО, ЖК «Тишин»
Проспект Ветеранов
17 мин.
Строится
2-комн. квартира 47,17 м2 8 278 335
Этаж 10/12
ЛО, ЖК «Тишин»
Проспект Ветеранов
17 мин.
Строится
2-комн. квартира 48,63 м2 8 897 199
Этаж 7/12
ЛО, ЖК «Тишин»
Проспект Ветеранов
17 мин.
Строится
Посмотреть 556 квартир в ЖК «Тишин»
Этаж 10/12
ЛО, ЖК «Тишин»
Проспект Ветеранов
17 мин.
Строится
Этаж 2/12
ЛО, ЖК «Тишин»
Проспект Ветеранов
17 мин.
Строится
3-комн. квартира 68,11 м2 12 285 614
Этаж 6/12
ЛО, ЖК «Тишин»
Проспект Ветеранов
17 мин.
Строится
3-комн. квартира 69,36 м2 12 469 482
Этаж 5/12
ЛО, ЖК «Тишин»
Проспект Ветеранов
17 мин.
Строится
Посмотреть 73 квартиры в ЖК «Тишин»
Этаж 1/12
ЛО, ЖК «Тишин»
Проспект Ветеранов
17 мин.
Строится

Скидки и спецпредложения от застройщиков

ЖК «Тишин» на карте

Выгодные предложения на новостройки

Отзывы о ЖК «Тишин»

Самый полезный отзыв
С
29 мая
Оценка:
Планировки
Способы покупки
Внешний вид фасада
Двор, окружение
Расположение
Мы уже не первый раз связываемся с этим застройщиком – сделали повторную покупку и получили приятную скидку плюс сертификат на мебель! Это всегда приятно. Но главное – планировки! Сравнили всех конкурентов и поняли, что самые крутые, самые продуманные варианты – только тут. Прямо чувствуется, что люди думали, как сделать жизнь комфортнее, а не просто квадратные метры рисовали.
Ответить
Полезный отзыв?
Самый новый отзыв
ОС
21 октября
Оценка:
Транспортная доступность
Экология
Социальная инфраструктура
Планировки
Готовность
Способы покупки
Скорость строительства
Внешний вид фасада
Входные группы
Двор, окружение
Расположение
Почему стоит выбрать ЖК Тишин? 1. Стильные квартиры, которые вдохновляют: Каждая квартира — это произведение искусства! Просторные планировки, современные отделки и огромные окна, через которые к вам в дом заглядывает солнечный свет. Здесь вы сможете создать пространство, о котором всегда мечтали. 2. Жизнь в ритме города: ЖК Тишин расположен в сердце города, где все важное в шаговой доступности. Магазины, кафе, рестораны — каждое утро вы будете начинать с улыбки, зная, что все необходимое под рукой! 3. Зеленый оазис среди мегаполиса: Не забывайте о своем отдыхе! Вокруг ЖК находятся парки и скверы, где вы сможете насладиться свежим воздухом и провести время с семьей и друзьями. 4. Удобная транспортная доступность: Быть в центре событий теперь проще простого! Ближайшие станции метро и остановки общественного транспорта позволят вам легко добраться в любую точку города.
Ответить
Полезный отзыв?
Добавьте отзыв, заполнив личные данные, или сначала войдите на сайт, тогда информация будет автоматически взята из личного профиля.
Оценка*