Переверните экран
Поиск домов и коттеджей

Найдите идеальный дом или коттедж в Санкт-Петербурге и области

Найдите идеальный дом или коттедж в Санкт-Петербурге и области

Перейти к поиску
Новостройки Квартиры Ипотека Медиа О проекте Контакты Реклама на сайте Vk Youtube Telegram Дзен Продавцы и застройщики Коммерческие помещения Квартиры на карте Эксперты и авторы Машиноместа Акции от застройщиков Банки и программы Апартаменты Новостройки на карте 4-комнатные и более Готовые новостройки 3-комнатные Военная ипотека Покупателю Новостройки Санкт-Петербурга Видеообзор новостроек Семейная ипотека Аналитика рынка Панорамы новостроек 1-комнатные Субсидированная застройщиком Мнение эксперта Студии Ипотечный калькулятор Новости недвижимости Новостройки Ленинградской области IT-ипотека Квартиры со скидками до 25% Новостройки премиум-класса Новостройки бизнес-класса Дома и коттеджи Бизнес-центры Бизнес-центры в Санкт-Петербурге Бизнес-центры рядом с метро Строящиеся бизнес-центры Бизнес-центры класса A
1-комн. квартира, 58.58 м2, 4 этаж
Срок сдачи 4 квартал 2027 года
9 402 090 
160 500 2
обновлено 3 февраля

Описание 1-комн. квартиры

Новостройка
Срок ГК
4 квартал 2027 года
Стадия строительства
Тип проекта
монолитно-панельный
Общая площадь
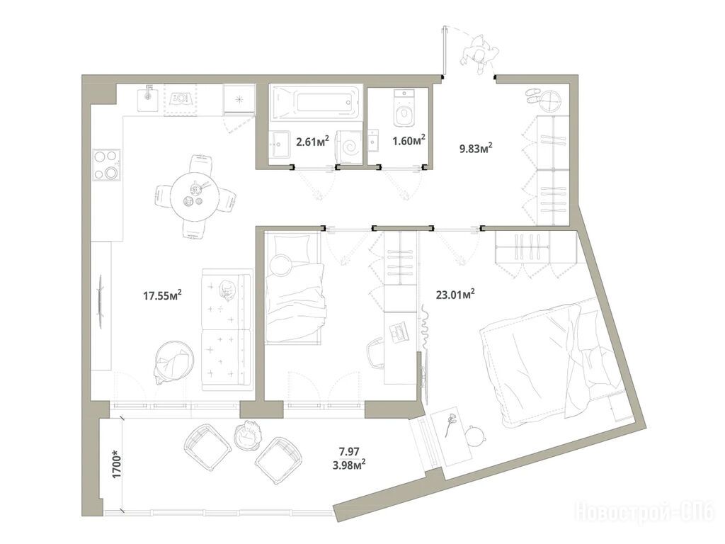
58.58 м2
Жилая площадь
23.01 м2
Площадь кухни
17.55 м2
Этаж
4 / 12
Отделка
чистовая
Грузовой лифт
есть

Расположение 1-комн. квартиры

Ж/Д-станция
Дом
3.2-1
Адрес
гп Новоселье, ЖК «Тишин», корпус 3.2-1, секция 3

Способы покупки

Особенности

Продается однокомнатная квартира в новостройке ЖК «Тишин» по адресу Ленинградская область, Ломоносовский район, Аннинское, гп Новоселье, ЖК «Тишин», корпус 3.2-1. Общая площадь квартиры - 58.58 кв. м. Тип проекта, по которому построен дом — Монолитно-панельный, компания-застройщик — ГК ЕДИНО, СЗ Новоселье-2. Стоимость квартиры — 9 402 090 руб. Способы оплаты можно уточнить у продавца. Срок сдачи — 4 квартал 2027. Более подробная информация по телефону.
Инфоцентр новостроек
Инфоцентр новостроек
+7 (812) 424-49-09
Время работы 9:00 — 21:00

Похожие квартиры в ЖК «Тишин»

2 этаж
из 12 4 квартал 2027
Ленинградская область, Ломоносовский район
Проспект Ветеранов
17 мин.
3.2-1
Корпус
чистовая
Отделка
2.67 м
Потолки
ЖК «Тишин»
9 226 350
Альфа-Банк, СберБанк, ВТБ, Банк Санкт-Петербург, ДОМ.РФ, Металлинвестбанк, Абсолют Банк
6.00%
Ставка
30.10%
Первый взнос
от 55 317 /мес.
Все варианты
3 этаж
из 12 4 квартал 2027
Ленинградская область, Ломоносовский район
Проспект Ветеранов
17 мин.
3.2-1
Корпус
чистовая
Отделка
2.67 м
Потолки
ЖК «Тишин»
9 226 350
Альфа-Банк, СберБанк, ВТБ, Банк Санкт-Петербург, ДОМ.РФ, Металлинвестбанк, Абсолют Банк
6.00%
Ставка
30.10%
Первый взнос
от 55 317 /мес.
Все варианты
5 этаж
из 12 4 квартал 2027
Ленинградская область, Ломоносовский район
Проспект Ветеранов
17 мин.
3.2-1
Корпус
чистовая
Отделка
2.67 м
Потолки
ЖК «Тишин»
9 402 090
Альфа-Банк, СберБанк, ВТБ, Банк Санкт-Петербург, ДОМ.РФ, Металлинвестбанк, Абсолют Банк
6.00%
Ставка
30.10%
Первый взнос
от 56 370 /мес.
Все варианты
6 этаж
из 12 4 квартал 2027
Ленинградская область, Ломоносовский район
Проспект Ветеранов
17 мин.
3.2-1
Корпус
чистовая
Отделка
2.67 м
Потолки
ЖК «Тишин»
9 402 090
Альфа-Банк, СберБанк, ВТБ, Банк Санкт-Петербург, ДОМ.РФ, Металлинвестбанк, Абсолют Банк
6.00%
Ставка
30.10%
Первый взнос
от 56 370 /мес.
Все варианты
7 этаж
из 12 4 квартал 2027
Ленинградская область, Ломоносовский район
Проспект Ветеранов
17 мин.
3.2-1
Корпус
чистовая
Отделка
2.67 м
Потолки
ЖК «Тишин»
9 402 090
Альфа-Банк, СберБанк, ВТБ, Банк Санкт-Петербург, ДОМ.РФ, Металлинвестбанк, Абсолют Банк
6.00%
Ставка
30.10%
Первый взнос
от 56 370 /мес.
Все варианты
8 этаж
из 12 4 квартал 2027
Ленинградская область, Ломоносовский район
Проспект Ветеранов
17 мин.
3.2-1
Корпус
чистовая
Отделка
2.67 м
Потолки
ЖК «Тишин»
9 402 090
Альфа-Банк, СберБанк, ВТБ, Банк Санкт-Петербург, ДОМ.РФ, Металлинвестбанк, Абсолют Банк
6.00%
Ставка
30.10%
Первый взнос
от 56 370 /мес.
Все варианты
9 этаж
из 12 4 квартал 2027
Ленинградская область, Ломоносовский район
Проспект Ветеранов
17 мин.
3.2-1
Корпус
чистовая
Отделка
2.67 м
Потолки
ЖК «Тишин»
9 402 090
Альфа-Банк, СберБанк, ВТБ, Банк Санкт-Петербург, ДОМ.РФ, Металлинвестбанк, Абсолют Банк
6.00%
Ставка
30.10%
Первый взнос
от 56 370 /мес.
Все варианты
Посмотреть все спецпредложения
студия 28,04 м2 5 667 052
Этаж 4/12
ЛО, ЖК «Тишин»
Проспект Ветеранов
17 мин.
Строится
студия 28,31 м2 5 627 915
Этаж 1/12
ЛО, ЖК «Тишин»
Проспект Ветеранов
17 мин.
Строится
студия 28,44 м2 5 682 056
Этаж 1/12
ЛО, ЖК «Тишин»
Проспект Ветеранов
17 мин.
Строится
студия 29,22 м2 5 808 819
Этаж 2/12
ЛО, ЖК «Тишин»
Проспект Ветеранов
17 мин.
Строится
Посмотреть 21 квартира в ЖК «Тишин»
1-комн. квартира 28,00 м2 5 269 600
Этаж 10/12
ЛО, ЖК «Тишин»
Проспект Ветеранов
17 мин.
Строится
1-комн. квартира 28,03 м2 5 079 709
Этаж 2/12
ЛО, ЖК «Тишин»
Проспект Ветеранов
17 мин.
Строится
1-комн. квартира 31,64 м2 6 374 163
Этаж 4/12
ЛО, ЖК «Тишин»
Проспект Ветеранов
17 мин.
Строится
1-комн. квартира 33,15 м2 6 206 343
Этаж 1/12
ЛО, ЖК «Тишин»
Проспект Ветеранов
17 мин.
Строится
Посмотреть 601 квартира в ЖК «Тишин»
2-комн. квартира 45,11 м2 7 849 140
Этаж 1/12
ЛО, ЖК «Тишин»
Проспект Ветеранов
17 мин.
Строится
2-комн. квартира 46,78 м2 8 373 620
Этаж 4/12
ЛО, ЖК «Тишин»
Проспект Ветеранов
17 мин.
Строится
2-комн. квартира 47,17 м2 8 443 430
Этаж 10/12
ЛО, ЖК «Тишин»
Проспект Ветеранов
17 мин.
Строится
2-комн. квартира 48,63 м2 9 009 048
Этаж 7/12
ЛО, ЖК «Тишин»
Проспект Ветеранов
17 мин.
Строится
Посмотреть 535 квартир в ЖК «Тишин»
3-комн. квартира 67,18 м2 12 226 760
Этаж 10/12
ЛО, ЖК «Тишин»
Проспект Ветеранов
17 мин.
Строится
3-комн. квартира 67,22 м2 12 234 040
Этаж 2/12
ЛО, ЖК «Тишин»
Проспект Ветеранов
17 мин.
Строится
3-комн. квартира 68,11 м2 12 425 035
Этаж 6/12
ЛО, ЖК «Тишин»
Проспект Ветеранов
17 мин.
Строится
3-комн. квартира 69,36 м2 12 608 191
Этаж 5/12
ЛО, ЖК «Тишин»
Проспект Ветеранов
17 мин.
Строится
Посмотреть 69 квартир в ЖК «Тишин»
4-комн. квартира 104,12 м2 18 949 840
Этаж 1/12
ЛО, ЖК «Тишин»
Проспект Ветеранов
17 мин.
Строится

Скидки и спецпредложения от застройщиков

ЖК «Тишин» на карте

Выгодные предложения на новостройки

Отзывы о ЖК «Тишин»

Самый полезный отзыв
С
29 мая 2025
Оценка:
Планировки
Способы покупки
Внешний вид фасада
Двор, окружение
Расположение
Мы уже не первый раз связываемся с этим застройщиком – сделали повторную покупку и получили приятную скидку плюс сертификат на мебель! Это всегда приятно. Но главное – планировки! Сравнили всех конкурентов и поняли, что самые крутые, самые продуманные варианты – только тут. Прямо чувствуется, что люди думали, как сделать жизнь комфортнее, а не просто квадратные метры рисовали.
Ответить
Полезный отзыв?
Самый новый отзыв
ОС
21 октября 2025
Оценка:
Транспортная доступность
Экология
Социальная инфраструктура
Планировки
Готовность
Способы покупки
Скорость строительства
Внешний вид фасада
Входные группы
Двор, окружение
Расположение
Почему стоит выбрать ЖК Тишин? 1. Стильные квартиры, которые вдохновляют: Каждая квартира — это произведение искусства! Просторные планировки, современные отделки и огромные окна, через которые к вам в дом заглядывает солнечный свет. Здесь вы сможете создать пространство, о котором всегда мечтали. 2. Жизнь в ритме города: ЖК Тишин расположен в сердце города, где все важное в шаговой доступности. Магазины, кафе, рестораны — каждое утро вы будете начинать с улыбки, зная, что все необходимое под рукой! 3. Зеленый оазис среди мегаполиса: Не забывайте о своем отдыхе! Вокруг ЖК находятся парки и скверы, где вы сможете насладиться свежим воздухом и провести время с семьей и друзьями. 4. Удобная транспортная доступность: Быть в центре событий теперь проще простого! Ближайшие станции метро и остановки общественного транспорта позволят вам легко добраться в любую точку города.
Ответить
Полезный отзыв?
Добавьте отзыв, заполнив личные данные, или сначала войдите на сайт, тогда информация будет автоматически взята из личного профиля.
Оценка*